Ο ναός στην Ελληνική Αρχαιότητα ήταν η κατοικία του θεού, το κτήριο που στέγαζε το λατρευτικό άγαλμα μιας ή περισσότερων θεοτήτων, και όχι ο χώρος συνάθροισης των πιστών, όπως στο χριστιανικό κόσμο. Αυτό φανερώνει και το ουσιαστικό «ναός», που προέρχεται από το ρήμα «ναίω» (=κατοικώ). Το λατρευτικό άγαλμα τοποθετούνταν στο βάθος του ναού, πάνω στον κατά μήκος άξονα του κτηρίου. Οι θρησκευόμενοι συγκεντρώνονταν στον περιβάλλοντα χώρο έξω από το κτήριο του ναού, όπου βρισκόταν και ο βωμός για την προσφορά θυσιών και την άσκηση της λατρείας.
Η βασική αυτή λειτουργική ιδιομορφία του Ελληνικού ναού είναι σημαντική για την κατανόηση της αρχιτεκτονικής του, καθώς υπάρχουν μαρτυρίες ότι οι ναοί σχεδιάζονταν με βάση και το άγαλμα που επρόκειτο να στεγάσουν. Σε αυτή τη λειτουργικότητα οφείλονται τα κύρια χαρακτηριστικά του ελληνικού ναού, που μπορούν να συνοψιστούν στα παρακάτω με γνώμονα τα μνημεία του 6ου - 4ου αι. π.Χ.: μνημειακότητα και ταυτόχρονα γενική στενότητα του εσωτερικού χώρου...
Συνθετότερα αρχιτεκτονήματα περιλαμβάνουν ένα προθάλαμο, τον πρόδομο ή πρόναο, και ένα αντίστοιχο χώρο στην αντίθετη πλευρά, που δεν επικοινωνεί με τον κυρίως ναό, τον οπισθόδομο. Ανάμεσα στον οπισθόδομο, που είναι προσβάσιμος μόνο από το εξωτερικό του ναού, και τον κυρίως ναό (ή στη θέση του οπισθόδομου), βρίσκεται συχνά ένα δωμάτιο που επικοινωνεί με τον κυρίως ναό και είναι προσβάσιμο μόνο για τους ιερείς, το άδυτο.
Ανάλογα με την ύπαρξη των παραπάνω χώρων ο ναός χαρακτηρίζεται απλός, αν έχει μόνο πρόδομο, ή διπλός, αν διαθέτει και οπισθόδομο. Ο ναός που δεν έχει κανένα από τους δύο χώρους, παρά μόνο τον κυρίως ναό, ονομάζεταιμονόχωρος. Στην είσοδο του πρόδομου και του οπισθόδομου βρίσκονται συνήθως κίονες. Αυτοί οι κίονες μπορεί να βρίσκονται ανάμεσα στις παραστάδες που σχηματίζουν οι πλευρικοί τοίχοι, οπότε ο ναός ονομάζεται εν παραστάσι, ή μπροστά από αυτές, οπότε ο ναός ονομάζεται πρόστυλος. Αν η κιονοστοιχία του πρόστυλου πρόδομου επαναλαμβάνεται στον οπισθόδομο, τότε ο ναός ονομάζεται αμφιπρόστυλος.
Σειρές κιόνων, που ονομάζονται περίστασις ή πτερόν, περιβάλλουν το σηκό απ’ όλες τις πλευρές. Σ’ αυτή την περίπτωση ο ναός ονομάζεται περίπτερος. Αν ο ναός περιβάλλεται από διπλό πτερόν, τότε ονομάζεται δίπτερος. Κάποιοι ναοί περιβάλλονται από απλή κιονοστοιχία, που όμως έχει τοποθετηθεί σε τέτοια απόσταση από το σηκό, σαν να ήταν η εξωτερική κιονοστοιχία δίπτερου ναού. Αυτοί οι ναοί ονομάζονται ψευδοδίπτεροι. Ο διάδρομος που σχηματίζεται ανάμεσα στην κιονοστοιχία του πτερού και στους τοίχους του σηκού ονομάζεται πτέρωμα.
Κιονοστοιχίες μπορεί να υπάρχουν και στο εσωτερικό του ναού, συνήθως δύο, χωρίζοντάς τον σε τρία κλίτη, ένα πλατύτερο κεντρικό και δύο στενότερα πλευρικά. Συχνά οι εσωτερικές κιονοστοιχίες αποτελούνται από μικρούς κίονες που τοποθετούνται σε δύο επίπεδα, ώστε η μία να πατάει πάνω στην άλλη. Αυτού του είδους η κιονοστοιχία ονομάζεται δίτονη.
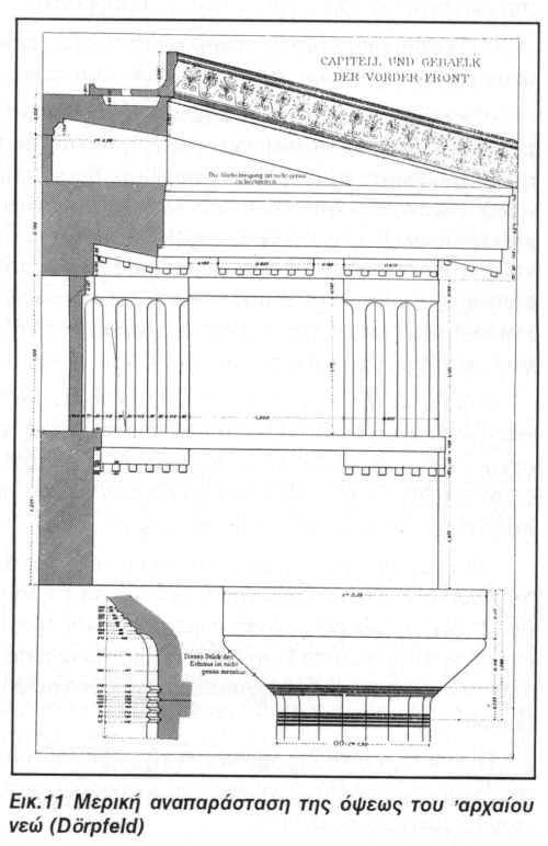
Τα παραπάνω χαρακτηριστικά αφορούν στην κάτοψη του αρχαίου Ελληνικού ναού. Τα μέρη που διακρίνονται στην όψη του είναι, εκτός από τον κίονα με το κιονόκρανο, η κρηπίδα, ο στυλοβάτης και ο θριγκός. Κρηπίδα ή κρηπίδωμα είναι το λίθινο βαθμιδωτό βάθρο, πάνω στο οποίο θεμελιώνεται ο ναός. Στυλοβάτης είναι η τελευταία βαθμίδα αυτού του βάθρου, που σχηματίζει το δάπεδο του ναού και το θεμέλιο για τους τοίχους του σηκού και τους κίονες. Θριγκός είναι ολόκληρη η ανωδομή πάνω από τα κιονόκρανα και αναλύεται λεπτομερέστερα σε διάφορα μέρη.
Ωστόσο τα αρχιτεκτονικά χαρακτηριστικά της όψης ενός αρχαίου Ελληνικού ναού παρουσιάζουν σημαντικές διαφοροποιήσεις, ανάλογα με το ρυθμό στον οποίο είναι χτισμένος.
Τα αρχιτεκτονικά μέλη που απαρτίζουν έναν αρχαίο ναό είναι τα εξής:
α) Η κρηπίδα και ο στυλοβάτης. Την κρηπίδα αποτελούν τρεις βαθμίδες (σκαλάκια) πάνω στις οποίες στηρίζονται οι κίονες. Η τελευταία βαθμίδα ονομάζεται στυλοβάτης, γιατί πάνω της “βαίνουν οι στύλοι”. Εντυπωσιακή τεχνική λεπτομέρεια του στυλοβάτη είναι η “Καμπύλωση” που τη συναντάμε για πρώτη φορά στο ναό του Απόλλωνα στην Κόρινθο (540 π.Χ.) για να φτάσει στην τελειότητα με τον Παρθενώνα.
Με την καμπύλωση εννοούμε ότι ο στυλοβάτης δεν είναι απολύτως οριζόντια επιφάνεια, αλλά στο μέσο της κάθε πλευράς είναι λίγο υψηλότερος από τα άκρα. Στον Παρθενώνα, για παράδειγμα, στις μακριές πλευρές η καμπύλωση φτάνει τα 11 εκατοστά και στις στενές τα 7 εκατοστά.
β) Η βάση. Η βάση αποτελεί χαρακτηριστικό μόνο του ιωνικού ρυθμού. Βρίσκεται στο στυλοβάτη και πάνω της στηρίζεται ο κίονας.
γ) Ο κίονας. Ο κίονας στον ιωνικό ρυθμό αποτελείται από ραβδώσεις που καταλήγουν σε καμπύλες, ενώ στο δωρικό ρυθμό οι ραβδώσεις καταλήγουν σε ακμές (μύτες).
• Ο αριθμός των ραβδώσεων ποικίλλει από 16 ως 20. Το βάθος των ραβδώσεων μπορεί να διαφέρει κι έτσι άλλοτε οι ραβδώσεις είναι βαθύτερες στο πάνω μέρος του κίονα (Παρθενώνας), άλλοτε είναι βαθύτερες στο κάτω μέρος (Ναός του Ποσειδώνα στο Σούνιο, Ναός της Αφαίας στην Αίγινα) κι άλλοτε το βάθος παραμένει το ίδιο (Προπύλαια, Ηφαιστείο-Θησείο). Σκοπός των ραβδώσεων είναι ο τονισμός του κυκλικού σχήματος του κίονα και φυσικά η αίσθηση που δημιουργείται από τις φωτοσκιάσεις.
• Οι κίονες, τις περισσότερες φορές, και ιδίως στο δωρικό ρυθμό, αποτελούνται από κομμάτια, τους σπόνδυλους, οι οποίοι δεν ήταν ορατοί μετά το τέλος των εργασιών, γιατί καλύπτονταν με ελαφρό επίχρισμα (σοβά).
• Χαρακτηριστικό των κιόνων είναι η ένταση, δηλαδή η ελαφριά καμπύλωση που παρατηρείται στον κίονα. Στην κλασική περίοδο η μέγιστη τιμή της έντασης διαπιστώνεται στα 2/5 του ύψους του κίονα. Η ένταση δεν ήταν σε καμιά περίπτωση μεγαλύτερη από τη διάμετρο της βάσης του κίονα.
• Χαρακτηριστικό επίσης των κιόνων είναι η μείωση, δηλαδή ο κίονας καθώς ανεβαίνει γίνεται όλο και λεπτότερος. Για να το πούμε με άλλα λόγια η διάμετρος του κίονα στην κορυφή είναι μικρότερη της διαμέτρου του κίονα στη βάση.
• Στο τέλος του κίονα, στο σημείο που ενώνεται με το κιονόκρανο υπάρχουν οι δακτύλιοι εγκοπής τρεις ή τέσσερις. Δακτύλιους παρατηρούμε στα αρχαϊκά χρόνια (Ναός Αφαίας στην Αίγινα). Στα κλασικά έχουμε μόνο ένα, ενώ στα ελληνιστικά χρόνια καταργείται.
• Σύμφωνα με το συνηθέστερο τυπικό ο αριθμός των κιόνων στη μακριά πλευρά είναι διπλάσιος συν ένα των κιόνων της στενής πλευράς. (2α+1). Αν για παράδειγμα ένας ναός έχει 6 κίονες στη στενή, τότε στη μακριά θα έχει 6Χ2+1 = 13.
• Σημαντικό στοιχείο των κιόνων είναι και η κλίση προς το σηκό, δηλαδή δεν ήταν κατακόρυφοι. Οι τέσσερις γωνιακοί είχαν κλίση προς τη διαγώνιο. Αυτό σημαίνει ότι ο ναός δε σχημάτιζε ένα ορθογώνιο παραλληλεπίπεδο αλλά μια διάταξη πυραμοειδή.
δ) Το κιονόκρανο. Ο κίονας καταλήγει στο κιονόκρανο. Στο δωρικό ρυθμό αποτελείται από τον εχίνο και τον άβακα, ενώ στον ιωνικό από τις έλικες και τον άβακα. Το κιονόκρανο του δωρικού είναι πιο “βαρύ” ενώ του ιωνικού περισσότερο χαριτωμένο.
ε) Το επιστύλιο. Το επιστύλιο είναι ένα παραλληλόγραμμο κομμάτι μαρμάρου που συνδέει τους κίονες και λέγεται έτσι γιατί βρίσκεται “επί των στύλων”. Στα μικρότερα μνημεία το επιστύλιο μπορεί να είναι ολόσωμο, δηλαδή να αποτελείται από ένα συμπαγές κομμάτι μαρμάρου. Σε μεγαλύτερα μνημεία αποτελούνταν από δυο στοιχεία ή ακόμη και τρία, όπως στον Παρθενώνα. Το κομμάτι που ήταν τοποθετημένο στο εσωτερικό του μνημείο λέγεται αντίθημα.
Το επιστύλιο δεν είχε καμιά διακόσμηση εκτός από το ναό της Άσσου που είχε ανάγλυφα θέματα και κάποια πρώιμα σικελικά κτήρια που είχαν επενδύσεις από τερρακότα. Στον Παρθενώνα, εκ των υστέρων είχαν αναρτήσει χάλκινες ασπίδες και επιγραφές. Το μόνο στοιχείο που υπήρχε στο επιστύλιο ήταν οι σταγόνες, έξι συνήθως, που θα μπορούσε να θεωρηθεί ως στοιχείο των υπερκείμενων μετοπών. Τέλος, δε θα πρέπει να ξεχνάμε ότι στο επιστύλιο παρουσιάζεται η ίδια καμπύλωση με την κρηπίδα.
στ) Τα τρίγλυφα και οι μετόπες – Η ζωφόρος. Στο δωρικό ρυθμό μετά από το επιστύλιο έχουμε τα τρίγλυφα και τις μετόπες. Τρίγλυφο είναι μια ορθογώνια πλάκα μαρμάρου, η οποία έχει 3 κατακόρυφες γλυφές, δύο ολόκληρες και δύο ημιγλυφές δεξιά και αριστερά. Μετόπη είναι μια ορθογώνια πλάκα μαρμάρου, η οποία μπορεί να έχει ανάγλυφη ή γραπτή διακόσμηση. Στο τμήμα που βρίσκεται ανάμεσα σε δύο κίονες αντιστοιχούν 2 μετόπες και 3 τρίγλυφα.
Στον ιωνικό ρυθμό μετά το επιστύλιο έχουμε τη ζωφόρο, δηλαδή μια ζώνη από ανάγλυφες πλάκες. Ονομάζεται ζωφόρος επειδή φέρει ζωή.
ζ) Το γείσο. Το γείσο προεξέχει και προστατεύει από το νερό της βροχής τα τρίγλυφα και τις μετόπες ή τη ζωφόρο. Κάτω από το γείσο υπάρχουν οι πρόμοχθοι με τις σταγόνες. Κάθε πρόμοχθος έχει πλάτος ίσο με τα τρίγλυφα και τις μετόπες και φέρει 18 συνήθως σταγόνες σε τρεις σειρές (3Χ6). Υπάρχουν βεβαίως και μνημείο με λιγότερες σταγόνες (3Χ4) η (3Χ3) ή ακόμη και (3Χ5). Το επιστύλιο, τα τρίγλυφα και οι μετόπες ή η ζωφόρος και το γείσο αποτελούν το θριγκό.
η) Το αέτωμα ή τύμπανο. Πρόκειται για το τριγωνικό τμήμα στο πάνω μέρος της πρόσοψης ενός ναού. Ονομάστηκε αέτωμα γιατί το σχήμα του παραπέμπει σε αετό με ανοιγμένα τα φτερά.
ΔΩΡΙΚΟΣ ΡΥΘΜΟΣ
α) Η κρηπίδα και ο στυλοβάτης. Την κρηπίδα αποτελούν τρεις βαθμίδες (σκαλάκια) πάνω στις οποίες στηρίζονται οι κίονες. Η τελευταία βαθμίδα ονομάζεται στυλοβάτης, γιατί πάνω της “βαίνουν οι στύλοι”. Εντυπωσιακή τεχνική λεπτομέρεια του στυλοβάτη είναι η “Καμπύλωση” που τη συναντάμε για πρώτη φορά στο ναό του Απόλλωνα στην Κόρινθο (540 π.Χ.) για να φτάσει στην τελειότητα με τον Παρθενώνα.
Με την καμπύλωση εννοούμε ότι ο στυλοβάτης δεν είναι απολύτως οριζόντια επιφάνεια, αλλά στο μέσο της κάθε πλευράς είναι λίγο υψηλότερος από τα άκρα. Στον Παρθενώνα, για παράδειγμα, στις μακριές πλευρές η καμπύλωση φτάνει τα 11 εκατοστά και στις στενές τα 7 εκατοστά.
β) Η βάση. Η βάση αποτελεί χαρακτηριστικό μόνο του ιωνικού ρυθμού. Βρίσκεται στο στυλοβάτη και πάνω της στηρίζεται ο κίονας.
γ) Ο κίονας. Ο κίονας στον ιωνικό ρυθμό αποτελείται από ραβδώσεις που καταλήγουν σε καμπύλες, ενώ στο δωρικό ρυθμό οι ραβδώσεις καταλήγουν σε ακμές (μύτες).
• Ο αριθμός των ραβδώσεων ποικίλλει από 16 ως 20. Το βάθος των ραβδώσεων μπορεί να διαφέρει κι έτσι άλλοτε οι ραβδώσεις είναι βαθύτερες στο πάνω μέρος του κίονα (Παρθενώνας), άλλοτε είναι βαθύτερες στο κάτω μέρος (Ναός του Ποσειδώνα στο Σούνιο, Ναός της Αφαίας στην Αίγινα) κι άλλοτε το βάθος παραμένει το ίδιο (Προπύλαια, Ηφαιστείο-Θησείο). Σκοπός των ραβδώσεων είναι ο τονισμός του κυκλικού σχήματος του κίονα και φυσικά η αίσθηση που δημιουργείται από τις φωτοσκιάσεις.
• Οι κίονες, τις περισσότερες φορές, και ιδίως στο δωρικό ρυθμό, αποτελούνται από κομμάτια, τους σπόνδυλους, οι οποίοι δεν ήταν ορατοί μετά το τέλος των εργασιών, γιατί καλύπτονταν με ελαφρό επίχρισμα (σοβά).
• Χαρακτηριστικό των κιόνων είναι η ένταση, δηλαδή η ελαφριά καμπύλωση που παρατηρείται στον κίονα. Στην κλασική περίοδο η μέγιστη τιμή της έντασης διαπιστώνεται στα 2/5 του ύψους του κίονα. Η ένταση δεν ήταν σε καμιά περίπτωση μεγαλύτερη από τη διάμετρο της βάσης του κίονα.
• Χαρακτηριστικό επίσης των κιόνων είναι η μείωση, δηλαδή ο κίονας καθώς ανεβαίνει γίνεται όλο και λεπτότερος. Για να το πούμε με άλλα λόγια η διάμετρος του κίονα στην κορυφή είναι μικρότερη της διαμέτρου του κίονα στη βάση.
• Στο τέλος του κίονα, στο σημείο που ενώνεται με το κιονόκρανο υπάρχουν οι δακτύλιοι εγκοπής τρεις ή τέσσερις. Δακτύλιους παρατηρούμε στα αρχαϊκά χρόνια (Ναός Αφαίας στην Αίγινα). Στα κλασικά έχουμε μόνο ένα, ενώ στα ελληνιστικά χρόνια καταργείται.
• Σύμφωνα με το συνηθέστερο τυπικό ο αριθμός των κιόνων στη μακριά πλευρά είναι διπλάσιος συν ένα των κιόνων της στενής πλευράς. (2α+1). Αν για παράδειγμα ένας ναός έχει 6 κίονες στη στενή, τότε στη μακριά θα έχει 6Χ2+1 = 13.
• Σημαντικό στοιχείο των κιόνων είναι και η κλίση προς το σηκό, δηλαδή δεν ήταν κατακόρυφοι. Οι τέσσερις γωνιακοί είχαν κλίση προς τη διαγώνιο. Αυτό σημαίνει ότι ο ναός δε σχημάτιζε ένα ορθογώνιο παραλληλεπίπεδο αλλά μια διάταξη πυραμοειδή.
δ) Το κιονόκρανο. Ο κίονας καταλήγει στο κιονόκρανο. Στο δωρικό ρυθμό αποτελείται από τον εχίνο και τον άβακα, ενώ στον ιωνικό από τις έλικες και τον άβακα. Το κιονόκρανο του δωρικού είναι πιο “βαρύ” ενώ του ιωνικού περισσότερο χαριτωμένο.
ε) Το επιστύλιο. Το επιστύλιο είναι ένα παραλληλόγραμμο κομμάτι μαρμάρου που συνδέει τους κίονες και λέγεται έτσι γιατί βρίσκεται “επί των στύλων”. Στα μικρότερα μνημεία το επιστύλιο μπορεί να είναι ολόσωμο, δηλαδή να αποτελείται από ένα συμπαγές κομμάτι μαρμάρου. Σε μεγαλύτερα μνημεία αποτελούνταν από δυο στοιχεία ή ακόμη και τρία, όπως στον Παρθενώνα. Το κομμάτι που ήταν τοποθετημένο στο εσωτερικό του μνημείο λέγεται αντίθημα.
Το επιστύλιο δεν είχε καμιά διακόσμηση εκτός από το ναό της Άσσου που είχε ανάγλυφα θέματα και κάποια πρώιμα σικελικά κτήρια που είχαν επενδύσεις από τερρακότα. Στον Παρθενώνα, εκ των υστέρων είχαν αναρτήσει χάλκινες ασπίδες και επιγραφές. Το μόνο στοιχείο που υπήρχε στο επιστύλιο ήταν οι σταγόνες, έξι συνήθως, που θα μπορούσε να θεωρηθεί ως στοιχείο των υπερκείμενων μετοπών. Τέλος, δε θα πρέπει να ξεχνάμε ότι στο επιστύλιο παρουσιάζεται η ίδια καμπύλωση με την κρηπίδα.
στ) Τα τρίγλυφα και οι μετόπες – Η ζωφόρος. Στο δωρικό ρυθμό μετά από το επιστύλιο έχουμε τα τρίγλυφα και τις μετόπες. Τρίγλυφο είναι μια ορθογώνια πλάκα μαρμάρου, η οποία έχει 3 κατακόρυφες γλυφές, δύο ολόκληρες και δύο ημιγλυφές δεξιά και αριστερά. Μετόπη είναι μια ορθογώνια πλάκα μαρμάρου, η οποία μπορεί να έχει ανάγλυφη ή γραπτή διακόσμηση. Στο τμήμα που βρίσκεται ανάμεσα σε δύο κίονες αντιστοιχούν 2 μετόπες και 3 τρίγλυφα.
Στον ιωνικό ρυθμό μετά το επιστύλιο έχουμε τη ζωφόρο, δηλαδή μια ζώνη από ανάγλυφες πλάκες. Ονομάζεται ζωφόρος επειδή φέρει ζωή.
ζ) Το γείσο. Το γείσο προεξέχει και προστατεύει από το νερό της βροχής τα τρίγλυφα και τις μετόπες ή τη ζωφόρο. Κάτω από το γείσο υπάρχουν οι πρόμοχθοι με τις σταγόνες. Κάθε πρόμοχθος έχει πλάτος ίσο με τα τρίγλυφα και τις μετόπες και φέρει 18 συνήθως σταγόνες σε τρεις σειρές (3Χ6). Υπάρχουν βεβαίως και μνημείο με λιγότερες σταγόνες (3Χ4) η (3Χ3) ή ακόμη και (3Χ5). Το επιστύλιο, τα τρίγλυφα και οι μετόπες ή η ζωφόρος και το γείσο αποτελούν το θριγκό.
η) Το αέτωμα ή τύμπανο. Πρόκειται για το τριγωνικό τμήμα στο πάνω μέρος της πρόσοψης ενός ναού. Ονομάστηκε αέτωμα γιατί το σχήμα του παραπέμπει σε αετό με ανοιγμένα τα φτερά.
ΔΩΡΙΚΟΣ ΡΥΘΜΟΣ
Δωρικός Ρυθμός ονομάζεται στην Αρχαία Ελληνική αρχιτεκτονική και ειδικότερα στη ναοδομία ο ρυθμός εκείνος, που διακρίνεται για τη λιτότητα, την αυστηρότητα και τη μνημειακότητά του από τον πιο διακοσμητικό Ιωνικό Ρυθμό. Οι απαρχές του Δωρικού Ρυθμού πιστεύεται ότι βρίσκονται στο Άργος και την Κόρινθο, δύο σημαντικά δωρικά κέντρα τέχνης κατά τη Γεωμετρική Περίοδο (8ος αι. π.Χ.).
Ωστόσο από τα αρχιτεκτονικά κατάλοιπα τόσο πρώιμης εποχής δεν έχουν σωθεί, αφού μάλιστα για την κατασκευή τους θα πρέπει να είχε χρησιμοποιηθεί κυρίως ξύλο. Πράγματι, ο Παυσανίας αναφέρει ότι στον δωρικό ναό της Ήρας στην Ολυμπία (έναν από τους αρχαιότερους) είδε έναν ξύλινο κίονα ανάμεσα στους λίθινους. Φαίνεται ότι οι ξύλινοι κίονες αντικαταστάθηκαν σταδιακά με λίθινους Αυτό δικαιολογεί και το ότι κανένας από αυτούς δεν είναι ίδιος με κάποιον άλλο.
Κίονες : Κύριο χαρακτηριστικό των κιόνων είναι η απουσία βάσης: οι κίονες στηρίζονται απευθείας στον στυλοβάτη. Τα κιονόκρανα είναι λιτά σε σχέση με τους άλλους δύο ρυθμούς. Αποτελούνται από δύο μέρη, τον “εχίνο” και τον “άβακα“. Ο “άβακας” είναι το τετράγωνης κάτοψης ανώτερο σημείο του κίονα στο οποίο στηρίζεται το επιστύλιο, ενώ ο “εχίνος” (αχινός) είναι το αμέσως κατώτερο σημείο το οποίο αποτελεί ομαλή μετάβαση από τον “άβακα” στον κυρίως κίονα. Ένα ακόμη χαρακτηριστικό των δωρικών κιόνων είναι ότι οι αιχμές των ραβδώσεών τους είναι οξύες και όχι επίπεδες όπως στον Ιωνικό και τον Κορινθιακό.
Θριγκός : Ο θριγκός στα δωρικά κτήρια αποτελείται από δύο μέρη: Το επιστύλιο και τη δωρική ζωφόρο. Το επιστύλιο (η ζώνη που ακουμπά ακριβώς πάνω στους κίονες) χαρακτηρίζεται από την απουσία διακοσμητικών στοιχείων με εξαίρεση μία λεπτή ταινία στο ανώτερο μέρος της, που αποτελεί συνέχεια της διακόσμησης των τριγλύφων που βρίσκονται ακριβώς από πάνω. Στη δωρική ζωφόρο, υπάρχει μία συνεχής εναλλαγή από τρίγλυφα και μετόπες. Τα τρίγλυφα είναι τρία μακρόστενα και κάθετα λαξεύματα στο μάρμαρο.
Το σχέδιό τους καθιερώθηκε ώστε να θυμίζει τα ξύλινα δοκάρια που στέγαζαν παλιότερα τους ναούς. Γι’ αυτόν τον λόγο, κάτω ακριβώς από το κάθε ένα (σκαλισμένα στο επιστύλιο) βρίσκονται απομιμήσεις των καρφιών που συγκρατούσαν κάποτε τις ξύλινες δοκούς, που ονομάζονται “σταγόνες“. Οι μετόπες βρίσκονταν ανάμεσα στα τρίγλυφα και ήταν είτε απλά κομμάτια μαρμάρου, είτε έφεραν γραπτές ή ανάγλυφες παραστάσεις. Κατά την αρχαιότητα, τα τρίγλυφα ήταν βαμμένα μπλε ενώ οι μετόπες κόκκινες.
Το πρόβλημα της γωνιακής τριγλύφου : Το σημαντικότερο πρόβλημα στον σχεδιασμό των δωρικών ναών είναι το λεγόμενο “πρόβλημα της γωνιακής τριγλύφου”. Κάθε τρίγλυφος ήταν έτσι τοποθετημένη ώστε να βρίσκεται ακριβώς πάνω από κίονα. Αυτό όμως ήταν αδύνατο να συμβεί στους γωνιακούς.
Για τον λόγο αυτό έγιναν διάφορες δοκιμές αρκετά ατυχείς (όπως για παράδειγμα η μεγέθυνση των γωνιακών τριγλύφων). Η λύση δόθηκε με την κατασκευή του Παρθενώνα. Εκεί, οι γωνιακοί κίονες μεταφέρθηκαν λίγο πιο κοντά στους παραπλήσιούς τους και το πλάτος των μετώπων μεγάλωνε σταδιακά προς το κέντρο. Με αυτόν τον τρόπο το μάτι του θεατή ξεγελιέται και δίνει μία συμμετρία στο όλο κτίσμα.
Ο κίονας: Ο κίονας στον ιωνικό ρυθμό αποτελείται από ραβδώσεις που καταλήγουν σε καμπύλες, ενώ στο δωρικό ρυθμό οι ραβδώσεις καταλήγουν σε ακμές (μύτες).
Το κιονόκρανο : Ο κίονας καταλήγει στο κιονόκρανο. Στο δωρικό ρυθμό αποτελείται από τον εχίνο και τον άβακα, ενώ στον ιωνικό από τις έλικες και τον άβακα.
Κιονοστοιχία : Κιονοστοιχία λέγεται η σειρά κιόνων που τοποθετούνται γύρω και μέσα σε οικοδομήματα από την αρχαιότητα μέχρι σήμερα. Οι κιονοστοιχίες κατά την αρχαία αρχιτεκτονική τοποθετούνταν κυρίως σε ναούς, για σχηματισμό στοών, για υποστήριξη στέγης καθώς και για τη διαίρεση ενός οικοδομήματος σε κλίτη. Η εξωτερική περιμετρική κιονοστοιχία λεγόταν “περίστασις” ή “πτερόν“.
Οι κιονοστοιχίες σχηματίζονταν με βάση ειδικών κανόνων αναλογιών, του αριθμού των κιόνων, της μεταξύ τους απόστασης, (με βάση τη διάμετρο του κίονα), καθώς επίσης και από το ρυθμό αυτών. Έτσι οι αναλογίες καθορίζονταν ακριβώς κατά το πλάτος μόνο του οικοδομήματος και ποτέ κατά το ύψος.
Α. Η κιονοστοιχία ανάλογα του αριθμού των κιόνων ήταν τετράστυλη, εξάστυλη, οκτάστυλη, δεκάστυλη, δωδεκάστυλη όταν η πρόσοψη του οικοδομήματος είχε 4, 6, 8, 10, ή 12 κίονες αντίστοιχα. Εκ του αριθμού δε των κιονοστοιχιών πέριξ του οικοδομήματος, συνηθέστερα ναού, αυτός λεγόταν: Περίπτερος, όταν έφερε περιμετρικά μία κιονοστοιχία, Δίπτερος, όταν έφερε περιμετρικά δύο κιονοστοιχίες, και Ψευδοδίπτερος, όταν έφερε στις μεν στενές πλευρές διπλή κιονοστοιχία ενώ στις μακρές μόνο μία, εξωτερική.
Β. Επίσης ανάλογα της μεταξύ των κιόνων απόστασης η κιονοστοιχία χαρακτηρίζεται με βάση τη διάμετρο του κίονα σε: Πυκνόστυλη, όταν το μεταξύ των κιόνων κενό είναι ίσο με το 1,5 της διαμέτρου του κίονα, σε Σύστυλη, όταν το κενό είναι ίσο με 2 διαμέτρους, σε Εύστυλη, όταν το κενό είναι ίσο με 2,5 διαμέτρους, σε Διάστυλη, όταν το κενό είναι ίσο με 3 διαμέτρους και σε Αραιόστυλη, όταν το κενό είναι μεγαλύτερο των 3 διαμέτρων.
Οπισθόδομος : Με τον όρο οπισθόδομος στην αρχιτεκτονική του αρχαιοελληνικού ναού εννοείται ο οπίσθιος χώρος του αρχαίου ελληνικού ναού με είσοδο από το εξωτερικό του οικοδομήματος, διαμορφωμένη με δύο κίονες ανάμεσα στις παραστάδες των μακρών τοίχων. Άλλοτε ο οπισθόδομος ήταν πλήρως απομονωμένος από τον σηκό, ενίοτε όμως επικοινωνούσε μαζί του μέσω θύρας.
Ο οπισθόδομος κατείχε πιθανώς τη θέση του θησαυροφυλακίου οπότε και φυλασσόταν με κιγκλιδώματα. Χαρακτηριστικά παραδείγματα ναών με οπισθόδομο είναι εκτός άλλων : o Ναός του Δία στην Ολυμπία, o Παρθενώνας στην Ακρόπολη της Αθήνας, o Ναός Επικούριου Απόλλωνα στις Βάσσες της Φιγαλείας, o Ναός της Αθηνάς στην Λίνδο, o Ναός του Διονύσου στην Τέω, o Ναός της Αθηνάς στην Αίγινα και Ο Ναός του Ποσειδώνα στο Σούνιο.
Πρόναος : Πρόναος ή πρόδομος ονομάζεται ο χώρος στους αρχαίους ελληνικούς ναούς που βρίσκεται στο μπροστινό μέρος του ναού και επιτρέπει την πρόσβαση στο εσωτερικό του κυρίως ναού. Ο πρόναος σχηματίζεται από τον μπροστινό τοίχο του ναού και το αέτωμά του που στηρίζεται ή μόνο σε κολώνες, ή σε κολώνες και τις παραστάδες των μακρών τοίχων, ή μόνον στις παραστάδες των μακρών τοίχων. Όταν το αέτωμα στηρίζεται μόνο σε κολώνες, τότε ο πρόναος (και γενικά ο ναός) ονομάζεται πρόστυλος. Όταν το αέτωμα στηρίζεται μόνο στις παραστάδες, τότε ο πρόναος ονομάζεταιάστυλος.
Σηκός : Σηκός ονομάζεται ο κύριος εσωτερικός χώρος στους αρχαίους ελληνικούς ναούς. Ήταν αποκλειστικά αφιερωμένος και χρησίμευε για την φύλαξη του αγάλματος της θεάς ή του θεού, για αυτό και ήταν κλειστός για το κοινό, αφού οι τελετές και οι θυσίες γίνονταν στον βωμό που βρίσκονταν έξω από τον ναό.
Ο σηκός ήταν ένας κλειστός χώρος χωρίς παράθυρα. Το φως έμπαινε από την είσοδο. Στους μεγαλύτερους ναούς, ο σηκός περιείχε κίονες που στήριζαν την οροφή. Οι αρχαιότεροι ναοί (π.χ. στην Δήλο) περιείχαν μια κεντρική κιονοστοιχία. Αργότερα συναντάμε συνήθως δύο κιονοστοιχίες, οι οποίες διαμοιράζανε τον χώρο του σηκού σε τρείς διαδρόμους: δύο στενούς πλαϊνούς και έναν φαρδύτερο στην μέση.
Η διαρρύθμιση αυτή έγινε κανόνας, αφού αργότερα, στον δωρικό ρυθμό συναντούμε τις εσωτερικές κιονοστοιχίες, ακόμα και σε μικρούς ναούς που δεν είχαν ανάγκη στηρίγματος. Ιδικά στους ναούς δωρικού ρυθμού συναντάμε διώροφες κατασκευές, που διαμοιράζανε τον σηκό σε πάνω και κάτω όροφο.
Στον πάνω όροφο, την Hyperoa, π.χ. στον ναό της Αφαίας στην Αίγινα, βρισκόταν έκθεση αγαλμάτων δεξιά και αριστερά. Υπάρχει και η παραλλαγή του υπαίθριου σηκού, όπου ο εσωτερικός χώρος του ναού δεν είναι σκεπασμένος, αλλά περιέχει μια εσωτερική αυλή. Στον σηκό του Παρθενώνα, οι κιονοστοιχίες αντί να χωρίζουν τον χώρο σε διαδρόμους τον περιβάλουν σε ημικύκλιο σχηματισμό U.
Άδυτο : Το άδυτο ήταν ένας από τους εσωτερικούς χώρους των αρχαίων ναών. Ήταν ένας ιδιαίτερος χώρος, τμήμα του κυρίως ναού, αλλά με ενδιάμεσο τοίχο, έτσι ώστε να μην είναι προσβάσιμος. Ορισμένοι μόνο ναοί είχαν άδυτο, ιδιαίτερα εκείνοι που φιλοξενούσαν μαντείο ή θεούς με ιαματικές ικανότητες είχαν το άγαλμα της θεότητας μέσα στο άδυτο κάνοντάς το με αυτό τον τρόπο πιο απομονωμένο από τους θνητούς. Στο άδυτο επιτρεπόταν η είσοδος μόνο στους ιερείς του ναού.
Χαρακτηριστικό είναι το άδυτο του ναού του Απόλλωνα στους Δελφούς, όπου η Πυθία καθισμένη στον τρίποδα ανακοίνωνε τον χρησμό του Θεού, τον οποίο εν συνεχεία οι ιερείς μετέφεραν στον εκάστοτε που είχε ζητήσει την βοήθεια. Ξέρουμε ότι το άδυτο ήταν χωρισμένο από τον σηκό, αφού έτσι το αναφέρει ο Μάρκος Ανναίος Λουκανός. Στην Ελλάδα οι αρχαίοι ναοί είχαν άδυτο μόνο στην αρχαϊκή εποχή, ενώ στην Μεγάλη Ελλάδα συναντάμε άδυτο και σε ναούς της κλασικής εποχής, π.χ. στην Σελινούντα.
ΙΩΝΙΚΟΣ ΡΥΘΜΟΣ
Ο Ιωνικός ρυθμός είναι ένας από τους τρεις αρχαίους κλασικούς αρχιτεκτονικούς ρυθμούς. Κατατάσσεται μεταξύ του Δωρικού και του Κορινθιακού ρυθμού. Κύρια στοιχεία διάκρισης των ρυθμών αυτών είναι η ζωφόρος, τα κιονόκρανα και οι κιονοστοιχίες των αρχαίων κτισμάτων.
Διακρίνουμε μεταξύ του Μικρασιατικού Ιωνικού ρυθμού και του Αττικού Ιωνικού ρυθμού, οι οποίοι έχουν διαφορετικά χαρακτηριστικά ως προς τη βάση του στύλου και της ζωφόρου.
Χαρακτηριστικές παραλλαγές είναι επίσης και η Ρωμαϊκή Ιωνική, καθώς και η Γερμανική Ιωνική.
Ωστόσο από τα αρχιτεκτονικά κατάλοιπα τόσο πρώιμης εποχής δεν έχουν σωθεί, αφού μάλιστα για την κατασκευή τους θα πρέπει να είχε χρησιμοποιηθεί κυρίως ξύλο. Πράγματι, ο Παυσανίας αναφέρει ότι στον δωρικό ναό της Ήρας στην Ολυμπία (έναν από τους αρχαιότερους) είδε έναν ξύλινο κίονα ανάμεσα στους λίθινους. Φαίνεται ότι οι ξύλινοι κίονες αντικαταστάθηκαν σταδιακά με λίθινους Αυτό δικαιολογεί και το ότι κανένας από αυτούς δεν είναι ίδιος με κάποιον άλλο.
Κίονες : Κύριο χαρακτηριστικό των κιόνων είναι η απουσία βάσης: οι κίονες στηρίζονται απευθείας στον στυλοβάτη. Τα κιονόκρανα είναι λιτά σε σχέση με τους άλλους δύο ρυθμούς. Αποτελούνται από δύο μέρη, τον “εχίνο” και τον “άβακα“. Ο “άβακας” είναι το τετράγωνης κάτοψης ανώτερο σημείο του κίονα στο οποίο στηρίζεται το επιστύλιο, ενώ ο “εχίνος” (αχινός) είναι το αμέσως κατώτερο σημείο το οποίο αποτελεί ομαλή μετάβαση από τον “άβακα” στον κυρίως κίονα. Ένα ακόμη χαρακτηριστικό των δωρικών κιόνων είναι ότι οι αιχμές των ραβδώσεών τους είναι οξύες και όχι επίπεδες όπως στον Ιωνικό και τον Κορινθιακό.
Θριγκός : Ο θριγκός στα δωρικά κτήρια αποτελείται από δύο μέρη: Το επιστύλιο και τη δωρική ζωφόρο. Το επιστύλιο (η ζώνη που ακουμπά ακριβώς πάνω στους κίονες) χαρακτηρίζεται από την απουσία διακοσμητικών στοιχείων με εξαίρεση μία λεπτή ταινία στο ανώτερο μέρος της, που αποτελεί συνέχεια της διακόσμησης των τριγλύφων που βρίσκονται ακριβώς από πάνω. Στη δωρική ζωφόρο, υπάρχει μία συνεχής εναλλαγή από τρίγλυφα και μετόπες. Τα τρίγλυφα είναι τρία μακρόστενα και κάθετα λαξεύματα στο μάρμαρο.
Το σχέδιό τους καθιερώθηκε ώστε να θυμίζει τα ξύλινα δοκάρια που στέγαζαν παλιότερα τους ναούς. Γι’ αυτόν τον λόγο, κάτω ακριβώς από το κάθε ένα (σκαλισμένα στο επιστύλιο) βρίσκονται απομιμήσεις των καρφιών που συγκρατούσαν κάποτε τις ξύλινες δοκούς, που ονομάζονται “σταγόνες“. Οι μετόπες βρίσκονταν ανάμεσα στα τρίγλυφα και ήταν είτε απλά κομμάτια μαρμάρου, είτε έφεραν γραπτές ή ανάγλυφες παραστάσεις. Κατά την αρχαιότητα, τα τρίγλυφα ήταν βαμμένα μπλε ενώ οι μετόπες κόκκινες.
Το πρόβλημα της γωνιακής τριγλύφου : Το σημαντικότερο πρόβλημα στον σχεδιασμό των δωρικών ναών είναι το λεγόμενο “πρόβλημα της γωνιακής τριγλύφου”. Κάθε τρίγλυφος ήταν έτσι τοποθετημένη ώστε να βρίσκεται ακριβώς πάνω από κίονα. Αυτό όμως ήταν αδύνατο να συμβεί στους γωνιακούς.
Για τον λόγο αυτό έγιναν διάφορες δοκιμές αρκετά ατυχείς (όπως για παράδειγμα η μεγέθυνση των γωνιακών τριγλύφων). Η λύση δόθηκε με την κατασκευή του Παρθενώνα. Εκεί, οι γωνιακοί κίονες μεταφέρθηκαν λίγο πιο κοντά στους παραπλήσιούς τους και το πλάτος των μετώπων μεγάλωνε σταδιακά προς το κέντρο. Με αυτόν τον τρόπο το μάτι του θεατή ξεγελιέται και δίνει μία συμμετρία στο όλο κτίσμα.
Ο κίονας: Ο κίονας στον ιωνικό ρυθμό αποτελείται από ραβδώσεις που καταλήγουν σε καμπύλες, ενώ στο δωρικό ρυθμό οι ραβδώσεις καταλήγουν σε ακμές (μύτες).
Το κιονόκρανο : Ο κίονας καταλήγει στο κιονόκρανο. Στο δωρικό ρυθμό αποτελείται από τον εχίνο και τον άβακα, ενώ στον ιωνικό από τις έλικες και τον άβακα.
Κιονοστοιχία : Κιονοστοιχία λέγεται η σειρά κιόνων που τοποθετούνται γύρω και μέσα σε οικοδομήματα από την αρχαιότητα μέχρι σήμερα. Οι κιονοστοιχίες κατά την αρχαία αρχιτεκτονική τοποθετούνταν κυρίως σε ναούς, για σχηματισμό στοών, για υποστήριξη στέγης καθώς και για τη διαίρεση ενός οικοδομήματος σε κλίτη. Η εξωτερική περιμετρική κιονοστοιχία λεγόταν “περίστασις” ή “πτερόν“.
Οι κιονοστοιχίες σχηματίζονταν με βάση ειδικών κανόνων αναλογιών, του αριθμού των κιόνων, της μεταξύ τους απόστασης, (με βάση τη διάμετρο του κίονα), καθώς επίσης και από το ρυθμό αυτών. Έτσι οι αναλογίες καθορίζονταν ακριβώς κατά το πλάτος μόνο του οικοδομήματος και ποτέ κατά το ύψος.
Α. Η κιονοστοιχία ανάλογα του αριθμού των κιόνων ήταν τετράστυλη, εξάστυλη, οκτάστυλη, δεκάστυλη, δωδεκάστυλη όταν η πρόσοψη του οικοδομήματος είχε 4, 6, 8, 10, ή 12 κίονες αντίστοιχα. Εκ του αριθμού δε των κιονοστοιχιών πέριξ του οικοδομήματος, συνηθέστερα ναού, αυτός λεγόταν: Περίπτερος, όταν έφερε περιμετρικά μία κιονοστοιχία, Δίπτερος, όταν έφερε περιμετρικά δύο κιονοστοιχίες, και Ψευδοδίπτερος, όταν έφερε στις μεν στενές πλευρές διπλή κιονοστοιχία ενώ στις μακρές μόνο μία, εξωτερική.
Β. Επίσης ανάλογα της μεταξύ των κιόνων απόστασης η κιονοστοιχία χαρακτηρίζεται με βάση τη διάμετρο του κίονα σε: Πυκνόστυλη, όταν το μεταξύ των κιόνων κενό είναι ίσο με το 1,5 της διαμέτρου του κίονα, σε Σύστυλη, όταν το κενό είναι ίσο με 2 διαμέτρους, σε Εύστυλη, όταν το κενό είναι ίσο με 2,5 διαμέτρους, σε Διάστυλη, όταν το κενό είναι ίσο με 3 διαμέτρους και σε Αραιόστυλη, όταν το κενό είναι μεγαλύτερο των 3 διαμέτρων.
Οπισθόδομος : Με τον όρο οπισθόδομος στην αρχιτεκτονική του αρχαιοελληνικού ναού εννοείται ο οπίσθιος χώρος του αρχαίου ελληνικού ναού με είσοδο από το εξωτερικό του οικοδομήματος, διαμορφωμένη με δύο κίονες ανάμεσα στις παραστάδες των μακρών τοίχων. Άλλοτε ο οπισθόδομος ήταν πλήρως απομονωμένος από τον σηκό, ενίοτε όμως επικοινωνούσε μαζί του μέσω θύρας.
Ο οπισθόδομος κατείχε πιθανώς τη θέση του θησαυροφυλακίου οπότε και φυλασσόταν με κιγκλιδώματα. Χαρακτηριστικά παραδείγματα ναών με οπισθόδομο είναι εκτός άλλων : o Ναός του Δία στην Ολυμπία, o Παρθενώνας στην Ακρόπολη της Αθήνας, o Ναός Επικούριου Απόλλωνα στις Βάσσες της Φιγαλείας, o Ναός της Αθηνάς στην Λίνδο, o Ναός του Διονύσου στην Τέω, o Ναός της Αθηνάς στην Αίγινα και Ο Ναός του Ποσειδώνα στο Σούνιο.
Πρόναος : Πρόναος ή πρόδομος ονομάζεται ο χώρος στους αρχαίους ελληνικούς ναούς που βρίσκεται στο μπροστινό μέρος του ναού και επιτρέπει την πρόσβαση στο εσωτερικό του κυρίως ναού. Ο πρόναος σχηματίζεται από τον μπροστινό τοίχο του ναού και το αέτωμά του που στηρίζεται ή μόνο σε κολώνες, ή σε κολώνες και τις παραστάδες των μακρών τοίχων, ή μόνον στις παραστάδες των μακρών τοίχων. Όταν το αέτωμα στηρίζεται μόνο σε κολώνες, τότε ο πρόναος (και γενικά ο ναός) ονομάζεται πρόστυλος. Όταν το αέτωμα στηρίζεται μόνο στις παραστάδες, τότε ο πρόναος ονομάζεταιάστυλος.
Σηκός : Σηκός ονομάζεται ο κύριος εσωτερικός χώρος στους αρχαίους ελληνικούς ναούς. Ήταν αποκλειστικά αφιερωμένος και χρησίμευε για την φύλαξη του αγάλματος της θεάς ή του θεού, για αυτό και ήταν κλειστός για το κοινό, αφού οι τελετές και οι θυσίες γίνονταν στον βωμό που βρίσκονταν έξω από τον ναό.
Ο σηκός ήταν ένας κλειστός χώρος χωρίς παράθυρα. Το φως έμπαινε από την είσοδο. Στους μεγαλύτερους ναούς, ο σηκός περιείχε κίονες που στήριζαν την οροφή. Οι αρχαιότεροι ναοί (π.χ. στην Δήλο) περιείχαν μια κεντρική κιονοστοιχία. Αργότερα συναντάμε συνήθως δύο κιονοστοιχίες, οι οποίες διαμοιράζανε τον χώρο του σηκού σε τρείς διαδρόμους: δύο στενούς πλαϊνούς και έναν φαρδύτερο στην μέση.
Η διαρρύθμιση αυτή έγινε κανόνας, αφού αργότερα, στον δωρικό ρυθμό συναντούμε τις εσωτερικές κιονοστοιχίες, ακόμα και σε μικρούς ναούς που δεν είχαν ανάγκη στηρίγματος. Ιδικά στους ναούς δωρικού ρυθμού συναντάμε διώροφες κατασκευές, που διαμοιράζανε τον σηκό σε πάνω και κάτω όροφο.
Στον πάνω όροφο, την Hyperoa, π.χ. στον ναό της Αφαίας στην Αίγινα, βρισκόταν έκθεση αγαλμάτων δεξιά και αριστερά. Υπάρχει και η παραλλαγή του υπαίθριου σηκού, όπου ο εσωτερικός χώρος του ναού δεν είναι σκεπασμένος, αλλά περιέχει μια εσωτερική αυλή. Στον σηκό του Παρθενώνα, οι κιονοστοιχίες αντί να χωρίζουν τον χώρο σε διαδρόμους τον περιβάλουν σε ημικύκλιο σχηματισμό U.
Άδυτο : Το άδυτο ήταν ένας από τους εσωτερικούς χώρους των αρχαίων ναών. Ήταν ένας ιδιαίτερος χώρος, τμήμα του κυρίως ναού, αλλά με ενδιάμεσο τοίχο, έτσι ώστε να μην είναι προσβάσιμος. Ορισμένοι μόνο ναοί είχαν άδυτο, ιδιαίτερα εκείνοι που φιλοξενούσαν μαντείο ή θεούς με ιαματικές ικανότητες είχαν το άγαλμα της θεότητας μέσα στο άδυτο κάνοντάς το με αυτό τον τρόπο πιο απομονωμένο από τους θνητούς. Στο άδυτο επιτρεπόταν η είσοδος μόνο στους ιερείς του ναού.
Χαρακτηριστικό είναι το άδυτο του ναού του Απόλλωνα στους Δελφούς, όπου η Πυθία καθισμένη στον τρίποδα ανακοίνωνε τον χρησμό του Θεού, τον οποίο εν συνεχεία οι ιερείς μετέφεραν στον εκάστοτε που είχε ζητήσει την βοήθεια. Ξέρουμε ότι το άδυτο ήταν χωρισμένο από τον σηκό, αφού έτσι το αναφέρει ο Μάρκος Ανναίος Λουκανός. Στην Ελλάδα οι αρχαίοι ναοί είχαν άδυτο μόνο στην αρχαϊκή εποχή, ενώ στην Μεγάλη Ελλάδα συναντάμε άδυτο και σε ναούς της κλασικής εποχής, π.χ. στην Σελινούντα.
ΙΩΝΙΚΟΣ ΡΥΘΜΟΣ
Ο Ιωνικός ρυθμός είναι ένας από τους τρεις αρχαίους κλασικούς αρχιτεκτονικούς ρυθμούς. Κατατάσσεται μεταξύ του Δωρικού και του Κορινθιακού ρυθμού. Κύρια στοιχεία διάκρισης των ρυθμών αυτών είναι η ζωφόρος, τα κιονόκρανα και οι κιονοστοιχίες των αρχαίων κτισμάτων.
Διακρίνουμε μεταξύ του Μικρασιατικού Ιωνικού ρυθμού και του Αττικού Ιωνικού ρυθμού, οι οποίοι έχουν διαφορετικά χαρακτηριστικά ως προς τη βάση του στύλου και της ζωφόρου.
Χαρακτηριστικές παραλλαγές είναι επίσης και η Ρωμαϊκή Ιωνική, καθώς και η Γερμανική Ιωνική.
Ιστορική εξέλιξη
Ο Ιωνικός ρυθμός αρχίζει να εμφανίζεται από τις αρχές του 6ου π.Χ. αιώνα, και μάλιστα στα παράλια της μικρασιατικής Ιωνίας, στα νησιά του Αιγαίου και στην Αττική.
Το όνομα προέρχεται από τους Ίωνες. Μετά τη διείσδυση των Δωριέων κατά την κάθοδο των Δωριέων μετατοπίστηκε η εμφάνισή τους κυρίως προς τα ανατολικά, στα νησιά του Αιγαίου και στα δυτικά παράλια της μικράς Ασίας. Στην περιοχή της Αθήνας όμως επικράτησαν.
Σε σύγκριση με τον Δωρικό ρυθμό, ο Ιωνικός ρυθμός έχει διάφορες μικρές παραλλαγές. Τον 4ο π.Χ. αιώνα άρχισε να τυποποιείται και να ξεχωρίζει καθαρά από τον δωρικό ρυθμό. Mια από τις ρίζες του Ιωνικού ρυθμού βρίσκεται στις λίθινες κατασκευές των Κυκλάδων, όπως παρατηρούμε στον Ιωνικό ρυθμό που παρουσιάζεται στην Αθήνα. Γενικό χαρακτηριστικό όμως είναι η εξαιρετική ιδιομορφία, δηλαδή η ελευθερία που είχαν οι διάφοροι αρχιτέκτονες να αναπτύξουν το δικό τους τοπικό στιλ.
Παραδείγματα είναι το τοπικό στιλ της Σάμου ή της Εφέσου με διαφορετικές βάσεις στις κολώνες τους. Αργότερα ο Ιωνικός ρυθμός τυποποιήθηκε και διαδόθηκε. Η βάση του στύλου όπως την βρίσκουμε στην Αθήνα διαδόθηκε και στην Μικρά Ασία (αν κει εκεί συνδυάζεται με τον πλίνθο), και η ζωφόρος που αρχικά εμφανίστηκε στα νησιά έκανε την πορεία διάδοσής του στην Μικρά Ασία μέσω Αθήνας.
Δομή του Ιωνικού Ρυθμού : Η δομή του Ιωνικού ρυθμού, αν και ομοιάζει με αυτή του Δωρικού ρυθμού, έχει ορισμένα ιδιαίτερα χαρακτηριστικά.
Η βάση : Το θεμέλιο και η βάση του κτηρίου στον Ιωνικό ρυθμό αποτελείται από τον στερεοβάτη που είναι το θεμέλιο και το κρηπίδωμα που είναι τα σκαλάκια. Το θεμέλιο είναι χτισμένο πάνω και μέσα στο έδαφος και προεξέχει μόνο η πάνω επιφάνειά του, η ευθυντηρία. Πάνω στο θεμέλιο είναι χτισμένο το κρηπίδωμα, που σχηματίζει τρεις αναβαθμούς (σκαλάκια). Ο τελευταίος αναβαθμός ονομάζεται στυλοβάτης επειδή επάνω στην επιφάνεια αυτή τοποθετείται η βάση των κατακόρυφων στύλων.
Στους αρχαιότερους ναούς Ιωνικού ρυθμού τα σκαλάκια μερικές φορές λείπουν, ενώ ο στυλοβάτης είναι κατευθείαν πάνω στην ευθυντηρία. Από τον 5ο π.Χ. αιώνα και μετά αρχίζει να διαδίδεται η κατασκευή με τα σκαλάκια, τα οποία στον 4ο και τον 3ο. π.Χ. αιώνα παίρνουν μερικές φορές τεράστιες διαστάσεις, ή έχουν περισσότερα από τρία σκαλάκια. Στο Αρτεμίσιο (βλ. τα επτά θαύματα του αρχαίου κόσμου) για παράδειγμα βρίσκουμε δέκα σκαλοπατάκια.
Ο κίονας : Σε αντίθεση με τον δωρικό ρυθμό ο κίονας δεν στηρίζεται πάνω στον στυλοβάτη, παρά έχει την δική του βάση. Στους ιωνικούς ναούς της Μικράς Ασίας η βάση συνήθως αποτελείται από μία τετράγωνη πλάκα, τον λεγόμενο πλίνθο. Πάνω στον πλίνθο ακολουθούν διάφορα επιστρώματα που έχουν σχήμα στρογγυλό, και τερματίζουν με εξόγκωση ή προεσοχή. Τα επιστρώματα αυτά συνήθως είναι διακοσμημένα με οριζόντιες αυλακιές. Στον αττικό ιωνικό ρυθμό συχνά συναντάμε βάσεις χωρίς πλίνθο, αλλά με ιδιαίτερα διογκωμένη στρογγυλή βάση.
Οι κίονες σε σύγκριση με τους κίονες του δωρικού ρυθμού είναι λεπτότεροι, στενεύουν ελαφρώς προς τα πάνω, και έχουν κατακόρυφες αυλακιές. Τα αυλάκια αντί να συνδέονται μεταξύ τους με οξείες κόψεις, χωρίζονται με μικρές επίπεδες επιφάνειες που είναι ανάμεσά τους. Συνήθως συναντάμε μεταξύ 20 και 24 αυλακιών σε κάθε κίονα, ενώ 24 είναι η κατά προτίμηση κλασική διαρρύθμιση.
Το κιονόκρανο είναι λεπτεπίλεπτο, στηρίζεται πάνω στον αστράγαλο, μια λεπτή πλάκα μεταξύ του κίονα και του κιονόκρανου. Έχει πολλά και φαρδιά διακοσμητικά ανάγλυφα και καταλήγει στους κοχλίες δεξιά και αριστερά, πάνω στους οποίους στηρίζεται ένας λεπτός άβακας διακοσμημένος με κυματισμούς.
Ο Ιωνικός ρυθμός αρχίζει να εμφανίζεται από τις αρχές του 6ου π.Χ. αιώνα, και μάλιστα στα παράλια της μικρασιατικής Ιωνίας, στα νησιά του Αιγαίου και στην Αττική.
Το όνομα προέρχεται από τους Ίωνες. Μετά τη διείσδυση των Δωριέων κατά την κάθοδο των Δωριέων μετατοπίστηκε η εμφάνισή τους κυρίως προς τα ανατολικά, στα νησιά του Αιγαίου και στα δυτικά παράλια της μικράς Ασίας. Στην περιοχή της Αθήνας όμως επικράτησαν.
Σε σύγκριση με τον Δωρικό ρυθμό, ο Ιωνικός ρυθμός έχει διάφορες μικρές παραλλαγές. Τον 4ο π.Χ. αιώνα άρχισε να τυποποιείται και να ξεχωρίζει καθαρά από τον δωρικό ρυθμό. Mια από τις ρίζες του Ιωνικού ρυθμού βρίσκεται στις λίθινες κατασκευές των Κυκλάδων, όπως παρατηρούμε στον Ιωνικό ρυθμό που παρουσιάζεται στην Αθήνα. Γενικό χαρακτηριστικό όμως είναι η εξαιρετική ιδιομορφία, δηλαδή η ελευθερία που είχαν οι διάφοροι αρχιτέκτονες να αναπτύξουν το δικό τους τοπικό στιλ.
Παραδείγματα είναι το τοπικό στιλ της Σάμου ή της Εφέσου με διαφορετικές βάσεις στις κολώνες τους. Αργότερα ο Ιωνικός ρυθμός τυποποιήθηκε και διαδόθηκε. Η βάση του στύλου όπως την βρίσκουμε στην Αθήνα διαδόθηκε και στην Μικρά Ασία (αν κει εκεί συνδυάζεται με τον πλίνθο), και η ζωφόρος που αρχικά εμφανίστηκε στα νησιά έκανε την πορεία διάδοσής του στην Μικρά Ασία μέσω Αθήνας.
Δομή του Ιωνικού Ρυθμού : Η δομή του Ιωνικού ρυθμού, αν και ομοιάζει με αυτή του Δωρικού ρυθμού, έχει ορισμένα ιδιαίτερα χαρακτηριστικά.
Η βάση : Το θεμέλιο και η βάση του κτηρίου στον Ιωνικό ρυθμό αποτελείται από τον στερεοβάτη που είναι το θεμέλιο και το κρηπίδωμα που είναι τα σκαλάκια. Το θεμέλιο είναι χτισμένο πάνω και μέσα στο έδαφος και προεξέχει μόνο η πάνω επιφάνειά του, η ευθυντηρία. Πάνω στο θεμέλιο είναι χτισμένο το κρηπίδωμα, που σχηματίζει τρεις αναβαθμούς (σκαλάκια). Ο τελευταίος αναβαθμός ονομάζεται στυλοβάτης επειδή επάνω στην επιφάνεια αυτή τοποθετείται η βάση των κατακόρυφων στύλων.
Στους αρχαιότερους ναούς Ιωνικού ρυθμού τα σκαλάκια μερικές φορές λείπουν, ενώ ο στυλοβάτης είναι κατευθείαν πάνω στην ευθυντηρία. Από τον 5ο π.Χ. αιώνα και μετά αρχίζει να διαδίδεται η κατασκευή με τα σκαλάκια, τα οποία στον 4ο και τον 3ο. π.Χ. αιώνα παίρνουν μερικές φορές τεράστιες διαστάσεις, ή έχουν περισσότερα από τρία σκαλάκια. Στο Αρτεμίσιο (βλ. τα επτά θαύματα του αρχαίου κόσμου) για παράδειγμα βρίσκουμε δέκα σκαλοπατάκια.
Ο κίονας : Σε αντίθεση με τον δωρικό ρυθμό ο κίονας δεν στηρίζεται πάνω στον στυλοβάτη, παρά έχει την δική του βάση. Στους ιωνικούς ναούς της Μικράς Ασίας η βάση συνήθως αποτελείται από μία τετράγωνη πλάκα, τον λεγόμενο πλίνθο. Πάνω στον πλίνθο ακολουθούν διάφορα επιστρώματα που έχουν σχήμα στρογγυλό, και τερματίζουν με εξόγκωση ή προεσοχή. Τα επιστρώματα αυτά συνήθως είναι διακοσμημένα με οριζόντιες αυλακιές. Στον αττικό ιωνικό ρυθμό συχνά συναντάμε βάσεις χωρίς πλίνθο, αλλά με ιδιαίτερα διογκωμένη στρογγυλή βάση.
Οι κίονες σε σύγκριση με τους κίονες του δωρικού ρυθμού είναι λεπτότεροι, στενεύουν ελαφρώς προς τα πάνω, και έχουν κατακόρυφες αυλακιές. Τα αυλάκια αντί να συνδέονται μεταξύ τους με οξείες κόψεις, χωρίζονται με μικρές επίπεδες επιφάνειες που είναι ανάμεσά τους. Συνήθως συναντάμε μεταξύ 20 και 24 αυλακιών σε κάθε κίονα, ενώ 24 είναι η κατά προτίμηση κλασική διαρρύθμιση.
Το κιονόκρανο είναι λεπτεπίλεπτο, στηρίζεται πάνω στον αστράγαλο, μια λεπτή πλάκα μεταξύ του κίονα και του κιονόκρανου. Έχει πολλά και φαρδιά διακοσμητικά ανάγλυφα και καταλήγει στους κοχλίες δεξιά και αριστερά, πάνω στους οποίους στηρίζεται ένας λεπτός άβακας διακοσμημένος με κυματισμούς.
Ο μεγάλος ναός της Αθηνάς Παρθένου, της προστάτιδος της Αθήνας, δεσπόζει στην κορυφή του λόφου της Ακροπόλεως. Αρχικά ονομαζόταν «εκατόμπεδος νεώς» (είχε μήκος 100 αττικών ποδών) ή απλώς «νεώς» (570-566 π.Χ.)· ο όρος ‘εκατόμπεδος’ αναφερόταν κυρίως στο κεντρικό τμήμα του ναού, όπου βρισκόταν το λατρευτικό άγαλμα της Αθηνάς Παρθένου, γι’ αυτό και ο ναός απεκαλείτο επίσης «Παρθενών» (οίκος της Παρθένου).
Από τα χρόνια του Δημοσθένους και εξής η ονομασία «Παρθενών» δήλωνε ολόκληρο το ναϊκό οικοδόμημα. Ήδη μετά τη νίκη επί των Περσών στο Μαραθώνα το 490 π.Χ. είχε αρχίσει η ανέγερση ενός μεγάλου εξάστυλου ναού προς τιμήν της θεάς, του λεγόμενου Προ-Παρθενώνος, ο οποίος έμεινε ημιτελής και κατεδαφίσθηκε από τους Πέρσες. Μερικοί μελετητές υποστηρίζουν ότι του Προ-Παρθενώνος προϋπήρξε μέσα στον 6ο αι π.Χ. ένας πώρινος Πρωταρχικός ναός, ο “Urparthenon” ή «παππούς του Παρθενώνος», όμως κάποια από τα λείψανα που του έχουν αποδοθεί ίσως να ανήκαν στον παρακείμενο «αρχαίο νεώ» της Αθηνάς.
Ο Αρχαϊκός αυτός πρόδρομος του κλασσικού Παρθενώνος, που ανάγεται στα χρόνια των Πεισιστρατιδών (περ. 520 π.Χ.), ήταν δωρικός περίπτερος ναός (κιονοστοιχία 6×12), με σχεδόν τετράγωνο σηκό στα ανατολικά και έναν αντίστοιχο μικρότερο χώρο προς τα δυτικά, προς τον οποίο ανοίγονταν δύο διαδοχικά δωμάτια. Πάνω από τις στενές πλευρές του σηκού το κτίριο περιέτρεχε ανάγλυφη ιωνική ζωφόρος.
Τα αετώματα ήταν καμωμένα από παριανό μάρμαρο· στο δυτικό λιοντάρια επιτίθενται σε ταύρο, ενώ στο ανατολικό εικονιζόταν το προσφιλές στους Αθηναίους θέμα της Γιγαντομαχίας. Κατά μία άλλη άποψη, στην ίδια θέση προηγήθηκε ακόμη ένας, αρχαιότερος του “Urparthenon” ναός στα τέλη του 7ου ή στις αρχές του 6ου αι. π.Χ., θεωρία που παραμένει αναπόδεικτη.
Ο Παρθενών ήταν το πρώτο και το πιο σημαντικό από τα κτίρια που ανοικοδόμησαν οι Αθηναίοι έπειτα από τις καταστρεπτικές συνέπειες της περσικής εισβολής του 480 π.Χ. στην Αθήνα και αποτέλεσε το συμβολικό και ουσιαστικό επίκεντρο του μεγαλεπήβολου οικοδομικού προγράμματος που εφαρμόσθηκε στην πόλη με πρωτοβουλία του Περικλέους.
Η οικοδόμηση του ναού ξεκίνησε το 447 π.Χ. από τους αρχιτέκτονες Ικτίνο και Καλλικράτη, υπό τη γενική εποπτεία του Φειδίου. Ο ναός με το λατρευτικό άγαλμα της Αθηνάς εγκαινιάσθηκε εννέα χρόνια αργότερα, το 448 π.Χ., ενώ οι εργασίες στον γλυπτό διάκοσμο συνεχίστηκαν έως το 432 π.Χ..
ΠΩΣ ΧΤΙΣΤΗΚΕ Ο ΠΑΡΘΕΝΩΝΑΣ
Η πεποίθηση ότι ο Παρθενώνας είναι το σημαντικότερο και τελειότερο κτίσμα στον κόσμο είναι βαθιά ριζωμένη στη σκέψη μας. Όμως ο Παρθενώνας, ως ιδεολογικό, καλλιτεχνικό και αρχιτεκτονικό πρότυπο, είναι σχετικά πρόσφατη ανακάλυψη. Ο ναός παρέμενε ουσιαστικά άγνωστος για εκατοντάδες χρόνια και μόνο με την εκ νέου ανακάλυψη του αρχαίου ελληνικού κόσμου, το 18ο και 19ο αιώνα, αναγνωρίστηκε ως το σπουδαιότερο μνημείο του δυτικού πολιτισμού.
Η σημασία του Παρθενώνα
Από τη στιγμή που η δυτική σκέψη επιχείρησε μια συνολική ερμηνεία της πορείας της ανθρωπότητας με κριτήριο την πολιτισμική και κοινωνική σχέση των διαδοχικών εποχών της, η Ελλάδα των κλασικών χρόνων κατάκτησε μια ξεχωριστή θέση: αναγνωρίστηκε ότι στην αθηναϊκή δημοκρατία, για πρώτη φορά στην ανθρώπινη ιστορία, όλες οι δημιουργικές εκφράσεις μιας κοινωνίας κορυφώθηκαν ταυτόχρονα.
Κι αφού κάθε σημαντικό δημιούργημα μιας κοινωνίας αποτελεί πιστή έκφραση του πνεύματος της εποχής, ο Παρθενώνας αναγνωρίστηκε ως η τελειότερη έκφρασή της. Γιατί σε ένα και μόνο κτίριο, ένα έργο τέχνης στο σύνολό του, δε συνοψίστηκε μόνο η δεινότητα των δημιουργών του αλλά η ιδανική σύνθεση της πολιτικής και φιλοσοφικής σκέψης της κοινωνίας που το δημιούργησε.
Γιατί χτίστηκε ο Παρθενώνας
Ο Περικλής αναδεικνύεται ηγέτης της δημοκρατικής παράταξης. Σκοπός του ήταν να επιβάλει την Αθήνα όχι μόνο ως στρατιωτικοπολιτική δύναμη αλλά και ως "παίδευσιν της Ελλάδος" Γι’ αυτό αποφάσισε να προωθήσει την ανέγερση μνημείων που θα την δόξαζαν. Ο Πλούταρχος, βέβαια, αποκαλύπτει έναν ακόμα λόγο: τα έργα της Ακρόπολης ήταν στην πραγματικότητα ένα γιγάντειο για την εποχή πρόγραμμα δημόσιων έργων, το οποίο θα εξασφάλιζε απασχόληση στους ανέργους και ομαλότερη κατανομή του πλούτου στους Αθηναίους πολίτες. Αυτός ήταν κι ένας από τους λόγους που συμμετείχαν στο έργο κυρίως ελεύθεροι πολίτες και όχι δούλοι.
Προετοιμασίες
Το έργο είχε σχεδιαστεί εξαρχής μεγαλεπήβολο. Ο Περικλής, οι αρχιτέκτονες Ικτίνος και Καλλικράτης και ο γλύπτης Φειδίας, που είχε αναλάβει τη γενική εποπτεία των εργασιών, στόχευαν πολύ ψηλά. Ο Παρθενώνας είναι ο μεγαλύτερος δωρικός ναός του ελληνικού κόσμου που ολοκληρώθηκε και ο μοναδικός κατασκευασμένος εξ ολοκλήρου από μάρμαρο.
Η πεποίθηση ότι ο Παρθενώνας είναι το σημαντικότερο και τελειότερο κτίσμα στον κόσμο είναι βαθιά ριζωμένη στη σκέψη μας. Όμως ο Παρθενώνας, ως ιδεολογικό, καλλιτεχνικό και αρχιτεκτονικό πρότυπο, είναι σχετικά πρόσφατη ανακάλυψη. Ο ναός παρέμενε ουσιαστικά άγνωστος για εκατοντάδες χρόνια και μόνο με την εκ νέου ανακάλυψη του αρχαίου ελληνικού κόσμου, το 18ο και 19ο αιώνα, αναγνωρίστηκε ως το σπουδαιότερο μνημείο του δυτικού πολιτισμού.
Η σημασία του Παρθενώνα
Από τη στιγμή που η δυτική σκέψη επιχείρησε μια συνολική ερμηνεία της πορείας της ανθρωπότητας με κριτήριο την πολιτισμική και κοινωνική σχέση των διαδοχικών εποχών της, η Ελλάδα των κλασικών χρόνων κατάκτησε μια ξεχωριστή θέση: αναγνωρίστηκε ότι στην αθηναϊκή δημοκρατία, για πρώτη φορά στην ανθρώπινη ιστορία, όλες οι δημιουργικές εκφράσεις μιας κοινωνίας κορυφώθηκαν ταυτόχρονα.
Κι αφού κάθε σημαντικό δημιούργημα μιας κοινωνίας αποτελεί πιστή έκφραση του πνεύματος της εποχής, ο Παρθενώνας αναγνωρίστηκε ως η τελειότερη έκφρασή της. Γιατί σε ένα και μόνο κτίριο, ένα έργο τέχνης στο σύνολό του, δε συνοψίστηκε μόνο η δεινότητα των δημιουργών του αλλά η ιδανική σύνθεση της πολιτικής και φιλοσοφικής σκέψης της κοινωνίας που το δημιούργησε.
Γιατί χτίστηκε ο Παρθενώνας
Ο Περικλής αναδεικνύεται ηγέτης της δημοκρατικής παράταξης. Σκοπός του ήταν να επιβάλει την Αθήνα όχι μόνο ως στρατιωτικοπολιτική δύναμη αλλά και ως "παίδευσιν της Ελλάδος" Γι’ αυτό αποφάσισε να προωθήσει την ανέγερση μνημείων που θα την δόξαζαν. Ο Πλούταρχος, βέβαια, αποκαλύπτει έναν ακόμα λόγο: τα έργα της Ακρόπολης ήταν στην πραγματικότητα ένα γιγάντειο για την εποχή πρόγραμμα δημόσιων έργων, το οποίο θα εξασφάλιζε απασχόληση στους ανέργους και ομαλότερη κατανομή του πλούτου στους Αθηναίους πολίτες. Αυτός ήταν κι ένας από τους λόγους που συμμετείχαν στο έργο κυρίως ελεύθεροι πολίτες και όχι δούλοι.
Προετοιμασίες
Το έργο είχε σχεδιαστεί εξαρχής μεγαλεπήβολο. Ο Περικλής, οι αρχιτέκτονες Ικτίνος και Καλλικράτης και ο γλύπτης Φειδίας, που είχε αναλάβει τη γενική εποπτεία των εργασιών, στόχευαν πολύ ψηλά. Ο Παρθενώνας είναι ο μεγαλύτερος δωρικός ναός του ελληνικού κόσμου που ολοκληρώθηκε και ο μοναδικός κατασκευασμένος εξ ολοκλήρου από μάρμαρο.
Ο ναός σχεδιάστηκε με δεδομένο ότι θα στέγαζε το άγαλμα της θεάς, ύψους δώδεκα μέτρων, κι αυτό ήταν που επέβαλε τις μεγάλες του διαστάσεις. Είναι ακόμα το μόνο κτίσμα στο οποίο εφαρμόστηκαν με τον πληρέστερο τρόπο οι τεχνικές λάξευσης του μαρμάρου με σχολαστική ακρίβεια, πράγμα που επιβάρυνε ιδιαίτερα το κόστος κατασκευής. Επίσης κόστισαν πολύ τόσο ο ασυνήθιστα πλούσιος γλυπτικός του διάκοσμος όσο και τα πολύτιμα υλικά που χρειάστηκαν για το χρυσελεφάντινο άγαλμα της Αθηνάς.
Σε εννέα μόλις χρόνια
Τα έργα στην Ακρόπολη ξεκίνησαν το 447 π.Χ. με την ανέγερση του Παρθενώνα. Κατάπληξη προκαλεί ακόμα και σήμερα η ταχύτητα εκτέλεσης του έργου. Το 438 π.Χ., εννέα μόλις χρόνια μετά την έναρξη των εργασιών, ο ναός ήταν έτοιμος να αφιερωθεί στη θεά, το χρυσελεφάντινο άγαλμα της οποίας στέγαζε ήδη. Απέμενε μόνο η διακόσμηση των αετωμάτων, που πήρε άλλα έξι χρόνια.
Σε εννέα μόλις χρόνια
Τα έργα στην Ακρόπολη ξεκίνησαν το 447 π.Χ. με την ανέγερση του Παρθενώνα. Κατάπληξη προκαλεί ακόμα και σήμερα η ταχύτητα εκτέλεσης του έργου. Το 438 π.Χ., εννέα μόλις χρόνια μετά την έναρξη των εργασιών, ο ναός ήταν έτοιμος να αφιερωθεί στη θεά, το χρυσελεφάντινο άγαλμα της οποίας στέγαζε ήδη. Απέμενε μόνο η διακόσμηση των αετωμάτων, που πήρε άλλα έξι χρόνια.
Την ίδια περίοδο χτίστηκαν πολλά δημόσια κτίρια στην Αγορά και στους πρόποδες της Ακρόπολης, αλλά και άλλοι μεγάλοι ναοί, όπως του Ηφαίστου (στο Θησείο) και του Ποσειδώνα (στο Σούνιο). Μόλις τελείωσε ο Παρθενώνας άρχισε η κατασκευή ενός άλλου μεγαλεπήβολου και δαπανηρότατου έργου στην Ακρόπολη: των Προπυλαίων. Κατόπιν ακολούθησε - αφού είχε πεθάνει πλέον ο Περικλής, αλλά σύμφωνα με το δικό του πρόγραμμα- ο ναός της Νίκης.
Τα έργα στην Ακρόπολη ολοκληρώθηκαν τριάντα χρόνια μετά την κατασκευή του Παρθενώνα, το 406 π Χ., με την αποπεράτωση του Ερεχθείου.
Το εργοτάξιο
Ο ναός χτίστηκε με μάρμαρο! Το συμπαγές βάθρο και θεμέλιο του νέου ναού είχε ογδόντα μέτρα μήκος και δώδεκα μέτρα ύψος. Το μάρμαρο ήρθε από την Πεντέλη. Πολλοί Αθηναίοι, όπως και τεχνίτες από την Ιωνία και τις Κυκλάδες, εργάστηκαν στο νέο λατομείο υπό την καθοδήγηση των αρχιτεκτόνων. Στα ικριώματα της Ακρόπολης, τοποθετούσαν τους κατώτερους σπονδύλους των κιόνων, αποσπούσαν τα καλύτερης ποιότητας κομμάτια μαρμάρου και έκαναν επιτόπου την πρώτη επεξεργασία των κιονοκράνων, των "ημίεργων", ώστε να φτάσουν στην Ακρόπολη, να τελειοποιηθούν και να τοποθετηθούν αμέσως μόλις ο τελευταίος σπόνδυλος κάθε κίονα μπει στη θέση του.
Οι ρόλοι των ανθρώπων που συμμετείχαν σ’ ένα μεγάλο έργο στον αρχαίο κόσμο ήταν εντελώς διαφορετικοί από τους σημερινούς. Ούτε τα τεχνικά μέσα για τους αρχαίους αρχιτέκτονες και γλύπτες ήταν με τον ίδιο τρόπο δεδομένα, όπως είναι για τους σημερινούς αρχιτέκτονες τα σχεδιαστικά υλικά, τα "έτοιμα" μηχανήματα, τα εμπορικά δομικά και άλλα υλικά. Ένας αρχαίος αρχιτέκτονας ήταν πολύ συχνά υπεύθυνος για τη σχεδίαση των μηχανικών μέσων και τη χειρωνακτική εκτέλεση υποδειγμάτων για τους τεχνίτες του.
Τα έργα στην Ακρόπολη ολοκληρώθηκαν τριάντα χρόνια μετά την κατασκευή του Παρθενώνα, το 406 π Χ., με την αποπεράτωση του Ερεχθείου.
Το εργοτάξιο
Ο ναός χτίστηκε με μάρμαρο! Το συμπαγές βάθρο και θεμέλιο του νέου ναού είχε ογδόντα μέτρα μήκος και δώδεκα μέτρα ύψος. Το μάρμαρο ήρθε από την Πεντέλη. Πολλοί Αθηναίοι, όπως και τεχνίτες από την Ιωνία και τις Κυκλάδες, εργάστηκαν στο νέο λατομείο υπό την καθοδήγηση των αρχιτεκτόνων. Στα ικριώματα της Ακρόπολης, τοποθετούσαν τους κατώτερους σπονδύλους των κιόνων, αποσπούσαν τα καλύτερης ποιότητας κομμάτια μαρμάρου και έκαναν επιτόπου την πρώτη επεξεργασία των κιονοκράνων, των "ημίεργων", ώστε να φτάσουν στην Ακρόπολη, να τελειοποιηθούν και να τοποθετηθούν αμέσως μόλις ο τελευταίος σπόνδυλος κάθε κίονα μπει στη θέση του.
Οι ρόλοι των ανθρώπων που συμμετείχαν σ’ ένα μεγάλο έργο στον αρχαίο κόσμο ήταν εντελώς διαφορετικοί από τους σημερινούς. Ούτε τα τεχνικά μέσα για τους αρχαίους αρχιτέκτονες και γλύπτες ήταν με τον ίδιο τρόπο δεδομένα, όπως είναι για τους σημερινούς αρχιτέκτονες τα σχεδιαστικά υλικά, τα "έτοιμα" μηχανήματα, τα εμπορικά δομικά και άλλα υλικά. Ένας αρχαίος αρχιτέκτονας ήταν πολύ συχνά υπεύθυνος για τη σχεδίαση των μηχανικών μέσων και τη χειρωνακτική εκτέλεση υποδειγμάτων για τους τεχνίτες του.
Ένας καλός λατόμος είχε πολύ συχνά στη σκέψη του πολλά από τα προβλήματα του γλύπτη ή του αρχιτέκτονα κι έκανε υπολογισμούς που απαιτούσαν συνολική πνευματική καλλιέργεια. Έπρεπε να παρατηρεί, να αξιολογεί και να διαχειρίζεται ένα πολύ δύσκολο υλικό όπως είναι το μάρμαρο. Έπρεπε να συλλαμβάνει πολύπλοκους συνδυασμούς γεωλογικών, γεωμετρικών, καλλιτεχνικών και μηχανικών παραγόντων. Ένας άξιος τεχνίτης ήταν φυσικό να έχει θεωρητικά ενδιαφέροντα. Αν τα συνδύαζε και μ’ ένα ξεχωριστό ταλέντο, τότε ήταν δυνατό να εξελιχθεί σε αρχιτέκτονα.
Τεχνίτες και εργαλεία
Ο αρχιτέκτονας Μανόλης Κορρές στο βιβλίο του Από το Λατομείο στον Παρθενώνα (εκδόσεις Μέλισσα) ισχυρίζεται ότι σήμερα, με την υπάρχουσα τεχνολογία, θα ήταν αδύνατο να χτιστεί ο Παρθενώνας στα οχτώ μόνο χρόνια που τον έχτισαν οι αρχαίοι.
Ένα από τα μυστικά της κατασκευής ήταν η μεταλλουργία των λιθοξοϊκών εργαλείων και η απίστευτη επιδεξιότητα των αρχαίων λιθοξόων. Από την ποιότητα των ιχνών που άφησαν στα μάρμαρα, φαίνεται ότι τα εργαλεία τους ήταν πολύ ανώτερα από τα σημερινά. Είναι προφανές ότι εκείνη την εποχή είχαν καταλήξει σε κάποιες αξεπέραστες μεταλλουργικές συνταγές, μετά από πολύ αυστηρή πειραματική έρευνα.
Η μορφή του ναού
Πέρα από το μέγεθος του ναού, εξαιρετική και τεχνικά ιδιαίτερα περίπλοκη ήταν η διακόσμησή του. Ο Παρθενώνας είναι ο μόνος δωρικός ναός που έφερε γλυπτές παραστάσεις σε όλες του τις μετόπες - 92 τον αριθμό- και που ο σηκός του περιβαλλόταν από μια συνεχή ιωνική ζωφόρο μήκους 160 μέτρων. Ο συμβολισμός σ’ ολόκληρο το γλυπτό διάκοσμο αποσκοπούσε στο να κάνει επίκαιρη την ιστορία της πόλης μέσω των θρύλων. Στο ανατολικό αέτωμα, η γέννηση της Αθηνάς.
Τεχνίτες και εργαλεία
Ο αρχιτέκτονας Μανόλης Κορρές στο βιβλίο του Από το Λατομείο στον Παρθενώνα (εκδόσεις Μέλισσα) ισχυρίζεται ότι σήμερα, με την υπάρχουσα τεχνολογία, θα ήταν αδύνατο να χτιστεί ο Παρθενώνας στα οχτώ μόνο χρόνια που τον έχτισαν οι αρχαίοι.
Ένα από τα μυστικά της κατασκευής ήταν η μεταλλουργία των λιθοξοϊκών εργαλείων και η απίστευτη επιδεξιότητα των αρχαίων λιθοξόων. Από την ποιότητα των ιχνών που άφησαν στα μάρμαρα, φαίνεται ότι τα εργαλεία τους ήταν πολύ ανώτερα από τα σημερινά. Είναι προφανές ότι εκείνη την εποχή είχαν καταλήξει σε κάποιες αξεπέραστες μεταλλουργικές συνταγές, μετά από πολύ αυστηρή πειραματική έρευνα.
Η μορφή του ναού
Πέρα από το μέγεθος του ναού, εξαιρετική και τεχνικά ιδιαίτερα περίπλοκη ήταν η διακόσμησή του. Ο Παρθενώνας είναι ο μόνος δωρικός ναός που έφερε γλυπτές παραστάσεις σε όλες του τις μετόπες - 92 τον αριθμό- και που ο σηκός του περιβαλλόταν από μια συνεχή ιωνική ζωφόρο μήκους 160 μέτρων. Ο συμβολισμός σ’ ολόκληρο το γλυπτό διάκοσμο αποσκοπούσε στο να κάνει επίκαιρη την ιστορία της πόλης μέσω των θρύλων. Στο ανατολικό αέτωμα, η γέννηση της Αθηνάς.
Στο δυτικό, η έρις της Αθηνάς με τον Ποσειδώνα, με αντικείμενο την κατοχή της Αττικής. Στις μετόπες κυριαρχούσε ο μυθολογικός κύκλος του Θησέα, του ήρωα και οικιστή της Αθήνας. Υπήρχαν ακόμα η Κενταυρομαχία, η Αμαζονομαχία, η Γιγαντομαχία και η Ιλίου Πέρσις, που συμβόλιζαν τις νίκες των ελλήνων κατά των βαρβάρων. Ωστόσο, ο λεπτότερος συμβολισμός ήταν εκείνος της ζωφόρου, που ιστορούσε την ιερή πομπή των Παναθηναίων.
ΙΣΤΟΡΙΚΕΣ ΠΡΟΫΠΟΘΕΣΕΙΣ ΚΑΙ ΟΡΟΙ ΤΗΣ ΑΡΧΙΤΕΚΤΟΝΙΚΗΣ ΣΥΝΘΕΣΕΩΣ ΤΟΥ ΠΑΡΘΕΝΩΝΟΣ
Ο μέγας ναός που υψώνεται στο μέσον της Ακροπόλεως κατασκευάστηκε σε απίστευτα σύντομο χρόνο, από το 447 ως το 438 π.Χ. από τους σπουδαιότερους αρχιτέκτονες και γλύπτες της εποχής και από τους καλύτερους τεχνίτες που γνώρισε ως τώρα ο κόσμος.
Όμως δεν είναι αυτός ο πρώτος μαρμάρινος ναός σ’ αυτή τη θέση. Σαράντα χρόνια πριν είχε αρχίσει η οικοδόμηση ενός άλλου ναού, του λεγόμενου Προπαρθενώνος. Η καταστροφή του Προπαρθενώνος από τους Πέρσες (480 π.Χ.) δεν ακολουθήθηκε από απλή ανοικοδόμηση, αλλά πολύ περισσότερο από μία τελείως νέα δημιουργία, τον Κλασικό ή Περίκλειο Παρθενώνα.
Ο Προπαρθενών άρχισε να κτίζεται μετά από την μάχη του Μαραθώνος (490 π.Χ.) και ήταν σχεδόν τόσο μεγάλος όσο ο κλασικός ναός. Μάλιστα ακόμη μεγαλύτερο ήταν το συμπαγές βάθρο του, ο Στερεοβάτης, το οποίο αξιοποιήθηκε στη συνέχεια ως βάθρο του κλασικού Παρθενώνος. Το βάθρο αυτό μακρύτερο (~77m) από τον κλασικό ναό (72.50) εξέχει ως σήμερα κατά μήκος της ανατολικής πλευράς, έχει δε εξ ίσου εντυπωσιακό ύψος καθ’ όσον η βάση του συναντά τον στερεό βράχο σε βάθος 11 μέτρων, όπως έδειξαν οι ανασκαφές.
Ο μέγας ναός που υψώνεται στο μέσον της Ακροπόλεως κατασκευάστηκε σε απίστευτα σύντομο χρόνο, από το 447 ως το 438 π.Χ. από τους σπουδαιότερους αρχιτέκτονες και γλύπτες της εποχής και από τους καλύτερους τεχνίτες που γνώρισε ως τώρα ο κόσμος.
Όμως δεν είναι αυτός ο πρώτος μαρμάρινος ναός σ’ αυτή τη θέση. Σαράντα χρόνια πριν είχε αρχίσει η οικοδόμηση ενός άλλου ναού, του λεγόμενου Προπαρθενώνος. Η καταστροφή του Προπαρθενώνος από τους Πέρσες (480 π.Χ.) δεν ακολουθήθηκε από απλή ανοικοδόμηση, αλλά πολύ περισσότερο από μία τελείως νέα δημιουργία, τον Κλασικό ή Περίκλειο Παρθενώνα.
Ο Προπαρθενών άρχισε να κτίζεται μετά από την μάχη του Μαραθώνος (490 π.Χ.) και ήταν σχεδόν τόσο μεγάλος όσο ο κλασικός ναός. Μάλιστα ακόμη μεγαλύτερο ήταν το συμπαγές βάθρο του, ο Στερεοβάτης, το οποίο αξιοποιήθηκε στη συνέχεια ως βάθρο του κλασικού Παρθενώνος. Το βάθρο αυτό μακρύτερο (~77m) από τον κλασικό ναό (72.50) εξέχει ως σήμερα κατά μήκος της ανατολικής πλευράς, έχει δε εξ ίσου εντυπωσιακό ύψος καθ’ όσον η βάση του συναντά τον στερεό βράχο σε βάθος 11 μέτρων, όπως έδειξαν οι ανασκαφές.
Οι κίονες του Προπαρθενώνος 6 τον αριθμό στις στενές προσόψεις και 16 στις μακρές πλευρές ήσαν της αυτής διαμέτρου με εκείνους του κλασικού ναού. Με την αποφασιστική νίκη στις Πλαταιές (479 π.Χ.), ο περσικός κίνδυνος απωθείται και αργότερα εκμηδενίζεται (Ευρυμέδων 466 π.Χ.), όμως ως τα μέσα του αιώνος ελάχιστα μη αμυντικά έργα εκτελούνται στην κατεστραμμένη από τον πόλεμο Αττική.
Τα ιερά αν δεν παραμένουν ως ερείπια, όπως και ο ημιτελής Προπαρθενών, απλώς επισκευάζονται πρόχειρα. Συγγραφείς από τον επόμενο αιώνα και εξής πιστεύουν, ότι οι Έλληνες ανέβαλαν επί τόσο χρόνο την ανοικοδόμηση, τηρούντες τον Όρκο που έδωσαν στις Πλαταιές να διατηρήσουν άσβεστη την ανάμνηση της εθνικής συμφοράς και ζωηρή τη συνείδηση του καθήκοντος προς την πατρίδα.
Κατά τη δόμηση του βορείου τείχους (Θεμιστόκλειον) της Ακροπόλεως ενσωματώθηκαν σ’ αυτό ολόκληρα τμήματα, αλλά και μεμονωμένοι λίθοι των κατεστραμμένων ναών, ώστε να εκτίθενται στην κοινή θέα ως ιστορική υπόμνηση. Ανάμεσά τους και δεκάδες μεγάλοι σπόνδυλοι των κιόνων του Προπαρθενώνος. Τα υλικά αυτά όσα ακόμη παραμένουν στη θέση τους, στη σκιερή αυτή πλευρά του τείχους, φαίνεται ότι και σήμερα ακόμη μεταδίδουν τα μελαγχολικά τους μηνύματα.
Κατά τη δόμηση του βορείου τείχους (Θεμιστόκλειον) της Ακροπόλεως ενσωματώθηκαν σ’ αυτό ολόκληρα τμήματα, αλλά και μεμονωμένοι λίθοι των κατεστραμμένων ναών, ώστε να εκτίθενται στην κοινή θέα ως ιστορική υπόμνηση. Ανάμεσά τους και δεκάδες μεγάλοι σπόνδυλοι των κιόνων του Προπαρθενώνος. Τα υλικά αυτά όσα ακόμη παραμένουν στη θέση τους, στη σκιερή αυτή πλευρά του τείχους, φαίνεται ότι και σήμερα ακόμη μεταδίδουν τα μελαγχολικά τους μηνύματα.
Όμως άλλα μάρμαρα του αρχικού ναού, πολύ περισσότερα, εκατοντάδες σπονδύλων, υπάρχουν ακέραια, μάλιστα όχι πολύ μακριά, χωρίς ωστόσο η ύπαρξή τους αυτή να είναι αισθητή! Χρησιμοποιήθηκαν με μικρές αναπροσαρμογές για την ανέγερση του Περίκλειου ναού και υφίστανται ως σήμερα ενσωματωμένα σ’ αυτόν ως αναπόσπαστο και μάλιστα μεγάλο μέρος του.
Η ισότητα των κιόνων του παλαιότερου και του νεότερου ναού θα ήταν απίθανη σύμπτωση αν δεν είχαν συντρέξει σοβαροί λόγοι για να επιβάλλουν τη διαφύλαξη του πολυτιμότατου και επί το πλείστον αχρησιμοποίητου οικοδομικού υλικού του Προπαρθενώνος και στη συνέχεια την ισχύ ειδικών προδιαγραφών για την αρχιτεκτονική του κλασικού ναού ώστε να εξασφαλίζεται η μεγαλύτερη δυνατή αξιοποίηση, δηλαδή επαναχρησιμοποίηση του αρχαιότερου υλικού.
Αυτή η πρόνοια, από μόνη της μέγα δίδαγμα φρόνησης, αποσκοπούσε όχι μόνο στην επίτευξη σπουδαίας εξοικονόμησης δημοσίων χρημάτων — και είναι μεγάλη αρετή ο σεβασμός των δημοσίων, αλλά ακόμη αποσκοπούσε, με τον καλλίτερο τρόπο, και σε μια ηθική αποκατάσταση καθ’ όσον εξουδετέρωνε σε μεγάλο βαθμό ένα από τα τετελεσμένα γεγονότα του πολέμου, την αχρήστευση δηλαδή του υπό κατασκευή ναού. Τώρα το επί δεκαετίες αριστευμένο υλικό θα ήταν και πάλι χρήσιμο, μάλιστα στο ακέραιο! Την ταπείνωση ακολουθούσε κατ’ αυτόν τον τρόπο η ανάκτηση της αρχικής αξίας.
Όμως για τους αρχιτέκτονες οι δυσκολίες θα ήσαν πολύ περισσότερες. Ως τότε εξάστυλη πρόσοψη ήταν ουσιαστικά ο κανών για τους περίπτερους δωρικούς ναούς και η οκτάστυλη μόνο για τους δίπτερους ιωνικούς ναούς. Το πλάτος του σηκού ήταν συνεπώς ίσο προς 5-1-1 = 3 μεταξόνια κιόνων για δωρικούς και 7-2-2 = 3 επίσης μεταξόνια για τους ιωνικούς ναούς (εικ. 3). Η συμφωνία αυτή δεν είναι συμπωματική.
Η ισότητα των κιόνων του παλαιότερου και του νεότερου ναού θα ήταν απίθανη σύμπτωση αν δεν είχαν συντρέξει σοβαροί λόγοι για να επιβάλλουν τη διαφύλαξη του πολυτιμότατου και επί το πλείστον αχρησιμοποίητου οικοδομικού υλικού του Προπαρθενώνος και στη συνέχεια την ισχύ ειδικών προδιαγραφών για την αρχιτεκτονική του κλασικού ναού ώστε να εξασφαλίζεται η μεγαλύτερη δυνατή αξιοποίηση, δηλαδή επαναχρησιμοποίηση του αρχαιότερου υλικού.
Αυτή η πρόνοια, από μόνη της μέγα δίδαγμα φρόνησης, αποσκοπούσε όχι μόνο στην επίτευξη σπουδαίας εξοικονόμησης δημοσίων χρημάτων — και είναι μεγάλη αρετή ο σεβασμός των δημοσίων, αλλά ακόμη αποσκοπούσε, με τον καλλίτερο τρόπο, και σε μια ηθική αποκατάσταση καθ’ όσον εξουδετέρωνε σε μεγάλο βαθμό ένα από τα τετελεσμένα γεγονότα του πολέμου, την αχρήστευση δηλαδή του υπό κατασκευή ναού. Τώρα το επί δεκαετίες αριστευμένο υλικό θα ήταν και πάλι χρήσιμο, μάλιστα στο ακέραιο! Την ταπείνωση ακολουθούσε κατ’ αυτόν τον τρόπο η ανάκτηση της αρχικής αξίας.
Όμως για τους αρχιτέκτονες οι δυσκολίες θα ήσαν πολύ περισσότερες. Ως τότε εξάστυλη πρόσοψη ήταν ουσιαστικά ο κανών για τους περίπτερους δωρικούς ναούς και η οκτάστυλη μόνο για τους δίπτερους ιωνικούς ναούς. Το πλάτος του σηκού ήταν συνεπώς ίσο προς 5-1-1 = 3 μεταξόνια κιόνων για δωρικούς και 7-2-2 = 3 επίσης μεταξόνια για τους ιωνικούς ναούς (εικ. 3). Η συμφωνία αυτή δεν είναι συμπωματική.
Καθώς η ιστορική εξέλιξη αρχίζει από έναν απλό σηκό με πλάτος τριών μεταξονίων κιόνων (δίστηλος εν παραστάσει ή τετράστυλος πρόστυλος), και αργότερα προστίθεται η περίσταση, απλή για τους δωρικούς και διπλή για τους μεγαλύτερους ιωνικούς, είναι τεχνικώς εύλογη η αποκρυστάλλωση των δύο τύπων: του εξάστυλου δωρικού και του οκτάστυλου ιωνικού. Έτσι από τους γνωστούς περίπτερους δωρικούς ναούς οι εξάστυλοι αποτελούν αριθμητικώς το σχεδόν καθολικό κανόνα.
Αντιθέτως τρεις και μόνον γνωστοί εκτός Αττικής (στην Κέρκυρα, τη Σικελία και την Κυρηναϊκή) οκτάστυλοι δωρικοί ναοί αποτελούν εξαιρέσεις και μάλιστα ανολοκλήρωτες καθ’ όσον ο σηκός τους δεν παρουσιάζει εύρυνση ανάλογη προς εκείνη της εξωτερικής κιονοστοιχίας, αλλά παραμένει στενός, όσος δηλαδή θα ήταν και αν ακόμη δεν είχαν προστεθεί οι δύο κίονες για την διεύρυνση του εξωτερικού περιγράμματος του ναού:
Ως τότε ένας ναός επέβαινε ουσιαστικά μεγαλύτερος από έναν προηγούμενο μόνο με αναλογική αύξηση όλων των μερών του. Ο ναός της Ολυμπίας π.χ. είναι πολύ μεγαλύτερος από το ναό της Αφαίας. Όμως επειδή αμφότεροι είναι κανονικοί δωρικοί ναοί δηλαδή εξάστυλοι, η διαφορά μεγέθους επιτυγχάνεται με διαφορά μεγέθους όλων των επί μέρους, δηλαδή των κιόνων, των επιστυλίων των παραστάδων κ.λπ...
Όμως η αρχιτεκτονική του Παρθενώνος παραβιάζει τους κανόνες που αναφέραμε. Το οικοδομικό πρόγραμμα απαιτούσε από τους αρχιτέκτονες του ναού έναν εσωτερικό χώρο πολύ ευρύτερο από τον αντίστοιχο του Προπαρθενώνος, ώστε να παρέχει πολύ μεγαλύτερες δυνατότητες για την ανάδειξη ενός γιγάντιου και απερίγραπτης τέχνης καλλιτεχνικού έργου, όπως ήταν ασφαλώς η χρυσελεφάντινη Παρθένος.
Κανονικά θα έπρεπε χάριν του μεγαλύτερου εσωτερικού χώρου να αυξηθούν και οι κίονες σε πάχος και ύψος τόσο ώστε να αρκούν για μία εξάστυλη πρόσοψη. Όμως η λύση αυτή θα οδηγούσε σε διαμέτρους κιόνων (≈2.30) πολύ μεγαλύτερες από τις διαμέτρους (1.92) των υπαρχόντων σπονδύλων, για την επαναχρησιμοποίηση των οποίων, όμως, υπήρχαν ήδη οι σοβαροί λόγοι που αναφέραμε. Η λύση που έδωσαν οι αρχιτέκτονες είναι φανερή:
Η οκτάστυλη πρόσοψη αντί της εξάστυλης. Η λύση αυτή δεν ήταν καθόλου εύκολη, όπως ίσως θα νόμιζε κάποιος αν αγνοούσε τον προβληματισμό της αρχαίας ναοδομίας. Αρκεί μόνο να τονιστεί ότι οι κανόνες αυτής της αρχιτεκτονικής απαιτούσαν την τήρηση αναλογικών σχέσεων μεταξύ μήκους, πλάτους και ύψους, τόσο για το σύνολο, όσο και για τα επί μέρους. Αλλά ανέχονται αυτοί οι κανόνες τη διαταραχή κατά 40% που υφίσταται η αναλογία πλάτους/ύψους με την εύρυνση μιας εξάστυλης πρόσοψης κατά δύο κίονες.
Όμως η αρχιτεκτονική του Παρθενώνος παραβιάζει τους κανόνες που αναφέραμε. Το οικοδομικό πρόγραμμα απαιτούσε από τους αρχιτέκτονες του ναού έναν εσωτερικό χώρο πολύ ευρύτερο από τον αντίστοιχο του Προπαρθενώνος, ώστε να παρέχει πολύ μεγαλύτερες δυνατότητες για την ανάδειξη ενός γιγάντιου και απερίγραπτης τέχνης καλλιτεχνικού έργου, όπως ήταν ασφαλώς η χρυσελεφάντινη Παρθένος.
Κανονικά θα έπρεπε χάριν του μεγαλύτερου εσωτερικού χώρου να αυξηθούν και οι κίονες σε πάχος και ύψος τόσο ώστε να αρκούν για μία εξάστυλη πρόσοψη. Όμως η λύση αυτή θα οδηγούσε σε διαμέτρους κιόνων (≈2.30) πολύ μεγαλύτερες από τις διαμέτρους (1.92) των υπαρχόντων σπονδύλων, για την επαναχρησιμοποίηση των οποίων, όμως, υπήρχαν ήδη οι σοβαροί λόγοι που αναφέραμε. Η λύση που έδωσαν οι αρχιτέκτονες είναι φανερή:
Η οκτάστυλη πρόσοψη αντί της εξάστυλης. Η λύση αυτή δεν ήταν καθόλου εύκολη, όπως ίσως θα νόμιζε κάποιος αν αγνοούσε τον προβληματισμό της αρχαίας ναοδομίας. Αρκεί μόνο να τονιστεί ότι οι κανόνες αυτής της αρχιτεκτονικής απαιτούσαν την τήρηση αναλογικών σχέσεων μεταξύ μήκους, πλάτους και ύψους, τόσο για το σύνολο, όσο και για τα επί μέρους. Αλλά ανέχονται αυτοί οι κανόνες τη διαταραχή κατά 40% που υφίσταται η αναλογία πλάτους/ύψους με την εύρυνση μιας εξάστυλης πρόσοψης κατά δύο κίονες.
Ασφαλώς όχι 40%, ή 2/5 θα ήταν πάρα πολύ. Παρά την αξεπέραστη δυσκολία του προβλήματος των αναλογιών οι αρχιτέκτονες όχι μόνο τόλμησαν, αλλά επέτυχαν με ένα σύνολο μετρικών τροποποιήσεων να εξουδετερώνουν το μεγαλύτερο μέρος της διαταραχής των γενικών αναλογιών. Το άλλο όμως μέρος, αυτό που φαίνεται ως πραγματική διαφορά της αναλογίας μεταξύ Παρθενώνος και Θησείου π.χ. δεν ενοχλεί πλέον. Οι Αρχιτέκτονες του ναού μάλλον το είχαν διαβλέψει:
Έργα όπως αυτό δεν οφείλουν πλήρη υποταγή στους κανόνες αφού τα ίδια έχουν το κύρος που επιβάλλει αναθεωρήσεις και ανανεώσεις των κανόνων και των θεωριών. Από μία ορισμένη στιγμή και μετά η κατεύθυνση των συγκρίσεων είχε αντιστραφεί για πάντα. Έτσι ως σήμερα κάθε συγκριτική θεώρηση αρχαίων ή και κλασσικιστικών αρχιτεκτονικών μορφών έχει ως κορυφή της κλίμακος τον Παρθενώνα.
Δεν ερωτάται πλέον όπως ίσως την εποχή που ο Ικτίνος σχεδίαζε, το κατά πόσον ο Παρθενών έχει σχέση προς τους κανονικούς δωρικούς ναούς, αλλά αντιστρόφως το κατά πόσον καθ’ ένας απ’ αυτούς έχει σχέση με τον Παρθενώνα. Τα κύρια μέσα με τα οποία μετριάσθηκε η ασυμφωνία των αναλογιών της προσόψεως, ασυμφωνία ως προς τους κανονικούς, δηλ. εξάστυλους ναούς είναι:
α. Η πρόσδοση υψηλότερων αναλογιών στους κίονες δηλαδή προσθήκη ύψους χωρίς προσθήκη πάχους
β. Η πύκνωση των κιόνων
γ. Η διπλάσια του κανονικού συστολή των γωνιακών μεταξονίων δηλαδή πολύ περισσότερο από όσο θα απαιτούσε η απλή αντιμετώπιση του κλασικού προβλήματος της γωνιακής τριγλύφου.
Ο Σηκός του Παρθενώνος έχει, χάρις στην εύρυνση της προσόψεως, πλάτος 7-1-1 = 5 μεταξονίων. Οι προσόψεις του σηκού επαναλαμβάνουν την εξωτερική μορφή του ναού, αποτελούνται δηλαδή και αυτές από κίονες, ενώ οι πλευρές του είναι συνεχείς τοίχοι.
Παχείς τοίχοι υψώνονται πίσω από τους κίονες της ανατολικής και της δυτικής πλευράς του σηκού. Οι δύο χώροι που σχηματίζονται έξω απ’ αυτούς τους τοίχους και αμέσως πίσω από τους κίονες λέγονται αντιστοίχως Πρόναος και Οπισθόναος. Δύο γιγάντιες θύρες αποτελούν τις εισόδους: Από τον Πρόναο στον Κυρίως ναό και από τον Οπισθόναο στο Δυτικό διαμέρισμα. Οι δύο αυτοί εσωτερικοί χώροι δεν συγκοινωνούσαν αμέσως, επειδή ο μεσότοιχος που τους χώριζε ήταν πλήρης, χωρίς ανοίγματα.
Η ΛΕΙΤΟΥΡΓΙΑ ΤΟΥ ΠΑΡΘΕΝΩΝΟΣ (ΚΤΗΡΙΑΚΗ – ΜΝΗΜΕΙΑΚΗ)
Η ύπαρξη του δυτικού διαμερίσματος στον Παρθενώνα, αποτελεί μία ιδιοτυπία. Ανάλογες περιπτώσεις είναι βεβαιωμένες μόνο στους ναούς της Ακροπόλεως. Το Ερεχθείο, ο Προπαρθενών και ο παλαιός ναός της Αθηνάς παρουσίαζαν επίσης διπλή εσωτερική διαίρεση. Η γενική ύπαρξη του φαινομένου μας κάνει να αναγνωρίζουμε σ’ αυτό έναν ιδιαίτερο ναϊκό τύπο μάλλον, το διπλό ναό, και να μη θεωρούμε το δυτικό διαμέρισμα ως ταμείο και μόνο.
α. Η πρόσδοση υψηλότερων αναλογιών στους κίονες δηλαδή προσθήκη ύψους χωρίς προσθήκη πάχους
β. Η πύκνωση των κιόνων
γ. Η διπλάσια του κανονικού συστολή των γωνιακών μεταξονίων δηλαδή πολύ περισσότερο από όσο θα απαιτούσε η απλή αντιμετώπιση του κλασικού προβλήματος της γωνιακής τριγλύφου.
Ο Σηκός του Παρθενώνος έχει, χάρις στην εύρυνση της προσόψεως, πλάτος 7-1-1 = 5 μεταξονίων. Οι προσόψεις του σηκού επαναλαμβάνουν την εξωτερική μορφή του ναού, αποτελούνται δηλαδή και αυτές από κίονες, ενώ οι πλευρές του είναι συνεχείς τοίχοι.
Παχείς τοίχοι υψώνονται πίσω από τους κίονες της ανατολικής και της δυτικής πλευράς του σηκού. Οι δύο χώροι που σχηματίζονται έξω απ’ αυτούς τους τοίχους και αμέσως πίσω από τους κίονες λέγονται αντιστοίχως Πρόναος και Οπισθόναος. Δύο γιγάντιες θύρες αποτελούν τις εισόδους: Από τον Πρόναο στον Κυρίως ναό και από τον Οπισθόναο στο Δυτικό διαμέρισμα. Οι δύο αυτοί εσωτερικοί χώροι δεν συγκοινωνούσαν αμέσως, επειδή ο μεσότοιχος που τους χώριζε ήταν πλήρης, χωρίς ανοίγματα.
Η ΛΕΙΤΟΥΡΓΙΑ ΤΟΥ ΠΑΡΘΕΝΩΝΟΣ (ΚΤΗΡΙΑΚΗ – ΜΝΗΜΕΙΑΚΗ)
Η ύπαρξη του δυτικού διαμερίσματος στον Παρθενώνα, αποτελεί μία ιδιοτυπία. Ανάλογες περιπτώσεις είναι βεβαιωμένες μόνο στους ναούς της Ακροπόλεως. Το Ερεχθείο, ο Προπαρθενών και ο παλαιός ναός της Αθηνάς παρουσίαζαν επίσης διπλή εσωτερική διαίρεση. Η γενική ύπαρξη του φαινομένου μας κάνει να αναγνωρίζουμε σ’ αυτό έναν ιδιαίτερο ναϊκό τύπο μάλλον, το διπλό ναό, και να μη θεωρούμε το δυτικό διαμέρισμα ως ταμείο και μόνο.
Εσωτερική διαίρεση με εγκάρσιο μεσότοιχο απαντά συχνά σε αρχαίους ναούς, όμως πρόκειται κατά κανόνα για διαίρεση σε κυρίως ναό και άδυτο με την είσοδο του τελευταίου μόνο από τον κυρίως ναό και όχι από τον τυχόν υπάρχοντα οπισθόναο ή οπισθόδομο. Μία ιδιαίτερη περίπτωση αποτελεί ο ναός του Απόλλωνος στην Κόρινθο.
Η αβεβαιότητα ως προς το είδος της λειτουργίας του δυτικού διαμερίσματος του Παρθενώνος, η απουσία βωμού στα ανατολικά, αλλά και το γεγονός ότι οι αρχαίες πηγές δεν αναφέρουν ιερέα ή ιέρεια του Παρθενώνος, είναι οι σοβαροί λόγοι για τους οποίους μας διαφεύγει η ακριβής λειτουργία του ναού.
Η θρησκευτική λειτουργία αμφισβητείται συχνά και θεωρείται πιθανότερη μια πολιτική λειτουργία για το ναό. Η τελική απάντηση θα δοθεί μόνο στο μέλλον εφ’ όσον στο μεταξύ διευκρινισθεί αν ο αρχαϊκός ναός του 566 π.Χ. ο γνωστός από τα διάσπαρτα κατάλοιπά του και τα γλυπτά έστεκε πλησίον του Ερεχθείου ή στο σημείο όπου αργότερα κτίσθηκε ο Προπαρθενών. Πάντως σε κάθε περίπτωση ο Παρθενών δύναται να θεωρείται και ως δημόσιο ανάθημα ευχαριστίας για τη Νίκη σύμφωνα και με την πληροφορία του Δημοσθένους (XXII, 13) που αναφέρεται στα περσικά λάφυρα.
Το εικονογραφικό πρόγραμμα της γλυπτικής κόσμησης του ναού καθ’ αυτό μία από τις υψηλότερες στιγμές του πνεύματος ανταποκρίνεται σε μία πολυσήμαντη «ανάγνωση» των θεμάτων. Η «ανάγνωση» αυτή, αναλόγως προς το επίπεδο στο οποίο γίνεται, αποκαλύπτει έναν απίστευτο πλούτο από μηνύματα, όπως θρησκευτικά, κοινωνικά, καλλιτεχνικά και τέλος πολιτικά.
Με τον τρόπο αυτό ο Παρθενών εκπλήρωνε και έναν βασικό σκοπό των μεγάλων δημιουργών του. Την έκφραση και τη διακήρυξη των αρχών και των ιδεών της Αθηναϊκής Πολιτείας και την προβολή του μεγάλου πολιτισμού τους ως επιτομή της αρχιτεκτονικής, της γλυπτικής, των διακοσμητικών τεχνών, της τεχνολογίας και ακόμη της οργανωτικής τέχνης της.
ΤΟ ΜΕΓΕΘΟΣ, Η ΘΕΣΗ ΚΑΙ Η ΕΠΙΒΛΗΤΙΚΟΤΗΤΑ ΤΟΥ ΠΑΡΘΕΝΩΝΟΣ
Ανάμεσα στους αρχαίους ελληνικούς ναούς ο Παρθενών είναι από τους μεγαλύτερους. Συγκρινόμενος π.χ. με τον όχι μικρό ναό του Ηφαίστου ή της Αφαίας αναδεικνύεται πενταπλάσιος σε έκταση και οκταπλάσιος σε όγκο, ωστόσο υπολείπεται κατά πολύ των γιγάντιων ναών του Σελινούντος, του Ακράγαντος, της Εφέσου, της Σάμου, των Διδύμων, των Σάρδεων και του αθηναϊκού Ολυμπιείου, οι οποίοι ήσαν μεγαλύτεροι του Παρθενώνος δύο ως τρεις φορές κατά την έκταση και τέσσερεις ως έξι φορές κατά τον όγκο.
Η αβεβαιότητα ως προς το είδος της λειτουργίας του δυτικού διαμερίσματος του Παρθενώνος, η απουσία βωμού στα ανατολικά, αλλά και το γεγονός ότι οι αρχαίες πηγές δεν αναφέρουν ιερέα ή ιέρεια του Παρθενώνος, είναι οι σοβαροί λόγοι για τους οποίους μας διαφεύγει η ακριβής λειτουργία του ναού.
Η θρησκευτική λειτουργία αμφισβητείται συχνά και θεωρείται πιθανότερη μια πολιτική λειτουργία για το ναό. Η τελική απάντηση θα δοθεί μόνο στο μέλλον εφ’ όσον στο μεταξύ διευκρινισθεί αν ο αρχαϊκός ναός του 566 π.Χ. ο γνωστός από τα διάσπαρτα κατάλοιπά του και τα γλυπτά έστεκε πλησίον του Ερεχθείου ή στο σημείο όπου αργότερα κτίσθηκε ο Προπαρθενών. Πάντως σε κάθε περίπτωση ο Παρθενών δύναται να θεωρείται και ως δημόσιο ανάθημα ευχαριστίας για τη Νίκη σύμφωνα και με την πληροφορία του Δημοσθένους (XXII, 13) που αναφέρεται στα περσικά λάφυρα.
Το εικονογραφικό πρόγραμμα της γλυπτικής κόσμησης του ναού καθ’ αυτό μία από τις υψηλότερες στιγμές του πνεύματος ανταποκρίνεται σε μία πολυσήμαντη «ανάγνωση» των θεμάτων. Η «ανάγνωση» αυτή, αναλόγως προς το επίπεδο στο οποίο γίνεται, αποκαλύπτει έναν απίστευτο πλούτο από μηνύματα, όπως θρησκευτικά, κοινωνικά, καλλιτεχνικά και τέλος πολιτικά.
Με τον τρόπο αυτό ο Παρθενών εκπλήρωνε και έναν βασικό σκοπό των μεγάλων δημιουργών του. Την έκφραση και τη διακήρυξη των αρχών και των ιδεών της Αθηναϊκής Πολιτείας και την προβολή του μεγάλου πολιτισμού τους ως επιτομή της αρχιτεκτονικής, της γλυπτικής, των διακοσμητικών τεχνών, της τεχνολογίας και ακόμη της οργανωτικής τέχνης της.
ΤΟ ΜΕΓΕΘΟΣ, Η ΘΕΣΗ ΚΑΙ Η ΕΠΙΒΛΗΤΙΚΟΤΗΤΑ ΤΟΥ ΠΑΡΘΕΝΩΝΟΣ
Ανάμεσα στους αρχαίους ελληνικούς ναούς ο Παρθενών είναι από τους μεγαλύτερους. Συγκρινόμενος π.χ. με τον όχι μικρό ναό του Ηφαίστου ή της Αφαίας αναδεικνύεται πενταπλάσιος σε έκταση και οκταπλάσιος σε όγκο, ωστόσο υπολείπεται κατά πολύ των γιγάντιων ναών του Σελινούντος, του Ακράγαντος, της Εφέσου, της Σάμου, των Διδύμων, των Σάρδεων και του αθηναϊκού Ολυμπιείου, οι οποίοι ήσαν μεγαλύτεροι του Παρθενώνος δύο ως τρεις φορές κατά την έκταση και τέσσερεις ως έξι φορές κατά τον όγκο.
Χάρις στην εξέχουσα θέση του επάνω στην Ακρόπολη ο Παρθενών είναι ακόμη και σήμερα ορατός, παρά την υψηλή και πυκνή δόμηση της Αθήνας και μάλιστα από όλα τα σημεία του λεκανοπεδίου και τα πλησιέστερα νησιά του Σαρωνικού π.χ. από την Αίγινα. Δεν είναι επομένως δύσκολο να φανταστεί κανείς πόσο ισχυρά δέσποζε το μέγα οικοδόμημα μέσα στο αρχαίο αττικό τοπίο. Η μοναδική μεγαλοπρέπεια του Παρθενώνος, οφείλεται κυρίως σε σχέσεις μεγέθους, μορφής και υψομέτρου.
Ενώ όμως στις περισσότερες περιπτώσεις κτισμάτων σε κορυφές η εντύπωση κυριαρχείται πολύ περισσότερο από τον όγκο των φυσικών υψωμάτων και όχι των κτισμάτων, στην Ακρόπολη συμβαίνει το αντίθετο. Όπως είναι φανερό οι πλείστοι αττικοί λόφοι έχουν σχήμα πεπλατυσμένου κώνου. Όμως η Ακρόπολη είναι όγκος με πολύ μικρότερη βάση, αλλά πολύ μεγαλύτερη όρθια παράπλευρη επιφάνεια και επιφάνεια κορυφής.
Κατά συνέπεια αυτός που κινείται γύρω από την Ακρόπολη την πλησιάζει πάρα πολύ πριν συναντήσει την ανωφέρεια των κλιτύων της, με αποτέλεσμα το οπτικό του πεδίο να κυριαρχείται από την εικόνα του υψώματος σε πολύ μεγαλύτερη οπτική γωνία, οριζόντια και καθ’ ύψος, απ’ όσο συμβαίνει κατά την επίσκεψη οποιουδήποτε άλλου και οσονδήποτε μεγαλύτερου υψώματος του αθηναϊκού λεκανοπεδίου.
Ο Παρθενών λόγω της θέσεώς του συμβάλλει στο μεγάλο οπτικό μέγεθος της Ακροπόλεως και συνάμα επωφελείται απ’ αυτό επειδή οι διαστάσεις του γενικού του όγκου, αλλά και των δομικών του στοιχείων είναι τόσο μεγάλες, ώστε να τον επιβάλλουν ως κυρίαρχο στοιχείο του συνόλου βράχος-κτίσματα. Τούτο δεν θα ήταν δυνατόν χωρίς την ενδιάμεση και μόνο ενδιάμεση παρουσία του τείχους, ενός άλλου πελώριου στοιχείου που μοιράζεται με τον βράχο τη μνημειακότητα του συμπαγούς υψώματος.
Αν η συνολική μορφή βράχος-τείχος ήταν μόνο βράχος ως την κορυφή, ή μόνο κτίσμα ως τους πρόποδες τότε η υπεροχή του μεγέθους μιας τέτοιας μορφής θα ήταν πολύ δύσκολο να αντισταθμιστεί από τα μνημειακά στοιχεία του Παρθενώνος, Άλλα στοιχεία που επέδρασαν στην αισθητική αναμέτρηση κυριαρχίας μεταξύ Παρθενώνος τείχους και βράχου είναι η ερείπωση και ο αποχρωματισμός του κτηρίου, η φθορά και στην συνέχεια η επένδυση της μνημειακής ισοδομικής επιφάνειας του τείχους με κοινές αργολιθοδομές και τέλος η κάλυψη του βράχου κατά καιρούς με επιχώματα και βλάστηση.
Πάντως και σήμερα ο Παρθενών επιβάλλεται ακόμη επί του τείχους και πέραν αυτού αλλά με τη βοήθειά του, στο συνολικό όγκο της Ακροπόλεως, επωφελούμενος, κατά πολύ μάλιστα, από την επιβλητικότητα του συνόλου. Καλύπτοντας το εν δέκατο περίπου της στερεάς οπτικής γωνίας κατά μέσο όρο για τις διάφορες πλευρές της Ακροπόλεως φαίνεται τις περισσότερες τουλάχιστον ώρες της ημέρας να κυριαρχεί στο σύνολο χάρις στην ενωμένη αισθητική δύναμη των μερών του και την ανάδειξη που του προσφέρει ο καλός φωτισμός εν αντιθέσει προς την πολυμέρεια μορφής, υλικού, και φωτισμού του τείχους και του βράχου.
Όσον αφορά στην ενίσχυση του μνημειακού η οποία οφείλεται στη θεώρηση του ναού από χαμηλότερες θέσεις πρέπει να υπογραμμισθεί ότι το φαινόμενο αυτό υφίσταται όχι μόνο για τη θεώρηση του ναού από την πόλη, αλλά και από πολύ πλησίον στο εσωτερικό της Ακροπόλεως χάρις στην φυσική και σε ένα βαθμό τεχνητή έξαρση της θέσεως του κτηρίου ως προς τον περιβάλλοντα χώρο και ιδίως την περιοχή στα δυτικά και τα Προπύλαια,
Για τον κινούμενο παρατηρητή που πλησιάζει τον Παρθενώνα η αισθητική εντύπωση από την αρχιτεκτονική μορφή ενισχυμένη από την υψομετρική έξαρση σχηματίζεται και συνεχώς αυξάνει με την προοδευτική αύξηση του προοπτικού μεγέθους. Το μέγεθος αυτό σύντομα καταλαμβάνει ολόκληρο το οπτικό πεδίο του παρατηρητή ενώ αυτός συνεχίζει να πλησιάζει.
Για τον κινούμενο παρατηρητή που πλησιάζει τον Παρθενώνα η αισθητική εντύπωση από την αρχιτεκτονική μορφή ενισχυμένη από την υψομετρική έξαρση σχηματίζεται και συνεχώς αυξάνει με την προοδευτική αύξηση του προοπτικού μεγέθους. Το μέγεθος αυτό σύντομα καταλαμβάνει ολόκληρο το οπτικό πεδίο του παρατηρητή ενώ αυτός συνεχίζει να πλησιάζει.
Η χρονική διάρκεια της εικόνας για ορισμένη ταχύτητα βήματος έχει ήδη ορισθεί από το μέγεθος του κτηρίου και τη γραμμή κινήσεως του παρατηρητή, επειδή και από τα δύο εξαρτάται η απόσταση για την οποία η προοπτική εικόνα πληρώνει το οπτικό πεδίο. Αν στη θέση του Παρθενώνος έστεκε ο ναός του Ηφαίστου η στερεά οπτική γωνία θα ήταν τέσσερεις φορές μικρότερη και ο θεατής θα έπρεπε να πλησιάσει στη μισή απόσταση πριν αισθανθεί την πλήρωση του οπτικού του πεδίου.
Όμως θα απέμενε η μισή μόνο απόσταση (ή χρόνος κινήσεως) ως το κτήριο και η εικόνα του μεγέθους και του μεγαλείου του κτηρίου θα ήταν μικρότερη, όπως μικρότερη θα ήταν και η χρονική της διάρκεια σε βήματα πριν παραμερισθεί από την επόμενη εικόνα π.χ. του εσωτερικού ενός πτερού κ.λπ.
Στην αύξηση της εικόνας του Παρθενώνος και στη χρονική παράστασή της, μετρημένη σε βήματα, συμβάλλει κυρίως η ισχυρή ανωφέρεια από τα Προπύλαια προς τον Παρθενώνα εξ αιτίας της οποίας τα βήματα βραχύνονται και απαιτούνται ακόμη περισσότερα κατά την προσέγγιση του μνημείου. Η μυϊκή προσπάθεια αυξάνει τη συνειδητοποίηση της κίνησης και η φυσική ανάβαση γίνεται και ψυχική ανάβαση υπό την ισχυρή επίδραση των αισθητικών εντυπώσεων.
Όμως σε άλλα παράλληλα αισθητικά επίπεδα αναπτύσσεται συγχρόνως και η εντύπωση της μορφής, της υφής, του χρώματος και του φωτός και τοιουτοτρόπως σχηματίζεται η συνολική άμεση εντύπωση στην οποία μπορούν ακόμη να προστεθούν και τα μεταβλητά στοιχεία του καιρού (καύσων, ψύχος, άνεμος, άπνοια, νέφωση, ηλιασμός) με τις γνωστές επιπτώσεις τους στην ίδια την άμεση εντύπωση του χρώματος, της υφής και ακόμη του χρόνου.
Στην αύξηση της εικόνας του Παρθενώνος και στη χρονική παράστασή της, μετρημένη σε βήματα, συμβάλλει κυρίως η ισχυρή ανωφέρεια από τα Προπύλαια προς τον Παρθενώνα εξ αιτίας της οποίας τα βήματα βραχύνονται και απαιτούνται ακόμη περισσότερα κατά την προσέγγιση του μνημείου. Η μυϊκή προσπάθεια αυξάνει τη συνειδητοποίηση της κίνησης και η φυσική ανάβαση γίνεται και ψυχική ανάβαση υπό την ισχυρή επίδραση των αισθητικών εντυπώσεων.
Όμως σε άλλα παράλληλα αισθητικά επίπεδα αναπτύσσεται συγχρόνως και η εντύπωση της μορφής, της υφής, του χρώματος και του φωτός και τοιουτοτρόπως σχηματίζεται η συνολική άμεση εντύπωση στην οποία μπορούν ακόμη να προστεθούν και τα μεταβλητά στοιχεία του καιρού (καύσων, ψύχος, άνεμος, άπνοια, νέφωση, ηλιασμός) με τις γνωστές επιπτώσεις τους στην ίδια την άμεση εντύπωση του χρώματος, της υφής και ακόμη του χρόνου.
Τη συνολική φυσική εντύπωση που μέρος της μόνο περιγράψαμε (μέγεθος-χρόνος) συνοδεύει και η γνωστική συγκίνηση που προκαλείται με τη συνειρμική ανάκληση όλων των πιθανών γνώσεων και εντυπώσεων ή συναισθημάτων που έχει στη μνήμη του ο παρατηρητής και με τη νοητική επεξεργασία των παρατηρήσεων και των σκέψεων που αυτός κάνει.
Τέλος η φυσική κατάσταση του παρατηρητού (π.χ. κόπωση, τυχόν σωματικός πόνος), ή οι εξωτερικές συνθήκες (διάφορες δυνατές οχλήσεις, μια συγκινητική τελετή) κ.λπ. είναι επίσης σοβαροί παράγοντες της επαφής του παρατηρητού με το αντικείμενο. Όμως για τα ως άνω τα οποία ισχύουν τόσο για την αισθητική ή μη θεώρηση και απόλαυση του Παρθενώνος όσο και οποιουδήποτε άλλου καλλιτεχνικού ή μη αντικειμένου, εδώ δεν μπορεί να γίνει λόγος.
ΣΥΜΜΕΤΡΙΑ – ΙΣΟΜΟΡΦΙΣΜΟΣ – ΑΥΤΟΤΕΛΕΙΑ –ΑΝΕΞΑΡΤΗΣΙΑ ΑΠΟ ΤΟ ΠΕΡΙΒΑΛΛΟΝ
Το ισχυρότερο ασφαλώς γνώρισμα του Παρθενώνος όπως και των άλλων μεγάλων αρχαίων ελληνικών ναών, αυτό που τον διακρίνει από άλλα είδη κτηρίων αρχαιότερων και νεότερων, είναι ο σχηματισμός και των τεσσάρων πλευρών του μόνο με κίονες και όχι με τοίχους όπως συμβαίνει με τη μεγίστη πλειονότητα των μέχρι σήμερα κτηρίων.
ΣΥΜΜΕΤΡΙΑ – ΙΣΟΜΟΡΦΙΣΜΟΣ – ΑΥΤΟΤΕΛΕΙΑ –ΑΝΕΞΑΡΤΗΣΙΑ ΑΠΟ ΤΟ ΠΕΡΙΒΑΛΛΟΝ
Το ισχυρότερο ασφαλώς γνώρισμα του Παρθενώνος όπως και των άλλων μεγάλων αρχαίων ελληνικών ναών, αυτό που τον διακρίνει από άλλα είδη κτηρίων αρχαιότερων και νεότερων, είναι ο σχηματισμός και των τεσσάρων πλευρών του μόνο με κίονες και όχι με τοίχους όπως συμβαίνει με τη μεγίστη πλειονότητα των μέχρι σήμερα κτηρίων.
Το αρχιτεκτονικό σύστημα της κιονοστοιχίας δεν είναι βέβαια ελληνική επινόηση αφού ήταν γνωστό πολύ πριν σε διάφορους τόπους, όμως η περιστοίχιση ενός ναού με λίθινους κίονες είναι γνώρισμα της ελληνικής αρχιτεκτονικής. Με την περίσταση γενικεύθηκε στις όψεις του κτηρίου μία μορφή που αρχικά υπήρχε μόνο στην στενή πρόσοψη, μορφή που είχε εξελιχθεί σε στοιχείο μνημειακό και διακριτικό του ναού. Η πλήρης «μνημειοποίηση» της κιονοστοιχίας συντελέσθηκε με την αντικατάσταση της αρχικής ξύλινης κατασκευής της με κατεργασμένες λίθινες μορφές.
Με την καθιέρωση της περιστάσεως ο κτηριακός όγκος απέκτησε μία τέλεια «συμμετρία περί κέντρον» και συνεπώς μία απόλυτη αυτονομία μορφής. Η μορφή αυτή αδιαφορεί αν στην μία πλευρά ο καιρός είναι εχθρικός (βορράς) ή στην άλλη φιλικός (νότος), αν στην μία πλευρά υπάρχει κατωφέρεια ισχυρή και την άλλη ανωφέρεια (Δελφοί), επίπεδο έδαφος, ή κρημνός, αν γύρω υπάρχει θάλασσα, κατοικημένη πόλις, ή δάσος κ.λπ. Από την άποψη αυτή είναι μία μορφή ανώτερη για την οποία δεν μπορεί να τίθεται θέμα εντάξεώς της και συμφωνίας της προς το περιβάλλον (όπως μερικές φορές ατυχώς αναφέρεται).
Το γνώρισμα της αμφίπλευρης συμμετρίας της είναι προνόμιο ανώτερων φυσικών μορφών, όπως το σώμα του ανθρώπου ή των ζώων και απουσιάζει από τις απλούστερες, όπως είναι οι ακατέργαστοι βράχοι κ.λπ. Η θεώρηση ενός ναού αυτού του είδους από ένα μόνο σημείο παρέχει πλήρη αντίληψη του συνόλου. Ο ναός και μάλιστα ο δωρικός παρουσιάζει ολόπλευρη ενότητα μορφής της οποίας τα μέρη υπακούουν σε ένα αυστηρό σύστημα στο οποίο περιέχονται μόνον εσωτερικές σχέσεις και όχι εξωτερικοί όροι.
Έτσι οι αναβαθμοί της κρηπίδος ρυθμίζονται από τα μέτρα των κιόνων και έμμεσα από εκείνα του ναού, μεγάλα ή μικρά, και όχι από το βήμα του ανθρώπου. Οι περισσότερες μορφές ρυθμίζονται από ρυθμολογικούς κανόνες που ισχύουν για τον ναό — και όχι από τους νόμους της στατικής ή της οικονομίας που ισχύουν για την φύση, αλλά και για πολλά ανθρώπινα έργα γύρω από το ναό. Τέλος η υλική εμφάνιση του ναού ήταν στην αρχική του κατάσταση με τους χρωματισμούς τελείως άσχετη προς τα φυσικά υλικά του περιβάλλοντος και την άμεση και εμφανή επίδρασή τους στη δομή και εμφάνιση των κοινών κτισμάτων.
Με τις ιδιότητες αυτές ο ναός αντιδιαστέλλεται από κάθε φυσικό περιβάλλον με το οποίο απλώς συνυπάρχει χωρίς την παραμικρή μέριμνα και σχέση εντάξεως, αλλά και χωρίς να το παραβλάπτει, επειδή η χρήση του, η μορφή του και η υλική του εμφάνιση είναι στοιχεία απολύτως ξένα προς αυτό και οδηγούν το νου στην πλήρη αποσυσχέτιση ναού και περιβάλλοντος. Απομονωμένος τελείως ο ναός από το περιβάλλον του δεν απομένει ατελής και μετέωρος. Το σύστημα των στοιχείων του είναι κλειστό και συνεχές.
Οι κίονες της περιστάσεως αποτελούν είδος αλύσου χωρίς αρχή και τέλος, όπως και οι ραβδώσεις για κάθε κίονα. Οι αναβαθμοί και ο θριγκός ορίζουν και τονίζουν πολύ ισχυρά τα όρια του κτηρίου προς τη γη και τον ουρανό. Αυτός είναι και ο λόγος για τον οποίο την κλασική εποχή έπρεπε σε ορισμένη απόσταση γύρω από τον ναό να υπάρχει ισοπέδωση ως την ευθυντηρία ώστε να αποκρύπτεται η δομική σύνδεση του κτηρίου με το στερεό υπέδαφος και να μη διαταράσσεται ο ισομορφισμός των τεσσάρων πλευρών.
Την αρχαϊκή εποχή το ίδιο αποτέλεσμα το επιτύγχαναν με την αισθητική αντίθεση του ορατού στερεοβάτου προς το υπόλοιπο κτήριο: Με τονισμό των δομικών στοιχείων, των αρμών και ειδική τραχεία κατεργασία του λίθου που αναπαρήγε στοιχεία της αρχικής φυσικής υφής του και δημιουργούσε μία ενδιάμεση αισθητική βαθμίδα ανάμεσα στην ακατέργαστη ύλη της γης και την τελείως αποξενωμένη από τη γη ύλη του ναού.
Αυτά όλα βέβαια αναφέρονται στην αρχική κατάσταση του ναού. Με την πάροδο του χρόνου η πύκνωση των αναθημάτων γύρω από τη βάση του, αλλά και επάνω σ’ αυτήν πρέπει να εξασθένισε τον αισθητικό ρόλο της κρηπίδος. Πολύ αργότερα με τη φθορά των χρωμάτων και των επιφανειών η εμφάνιση του υλικού έγινε κάπως γήινη αφού μαρτυρεί το είδος, τη γεωλογική δομή και την προέλευσή του.
Πολλές αισθητικές κρίσεις για την ένταξη των ναών στο περιβάλλον τους αφορούν φυσικά τα σημερινά ερείπια και όχι τις εξιδανικευμένες αυστηρής γεωμετρικής μορφής πλαστικές και χρωματικές συνθέσεις των νεόδμητων κτηρίων. Όμως το φαινόμενο της παλαίωσης και οι αισθητικές του επιπτώσεις είναι πολύ γενικότερο όσο και σπουδαίο. Θα αναφερθούμε σ’ αυτό παρακάτω μόνον σ’ ότι αφορά στον δομικό χαρακτήρα του κτηρίου.
Ο ΔΟΜΙΚΟΣ ΧΑΡΑΚΤΗΡΑΣ ΤΟΥ ΠΑΡΘΕΝΩΝΟΣ, ΠΛΑΣΤΙΚΟΣ ΚΑΙ ΤΕΚΤΟΝΙΚΟΣ
Η τέλεια συνέχεια των επιφανειών, η τέλεια λείανση και ο επιχρωματισμός των μορφών του τελειωμένου κτηρίου είχαν ως συνέπεια την τέλεια εξουδετέρωση της τόσο ανεπιθύμητης εκτυφλωτικής λάμψης του νεότμητου μαρμάρου, την εξαφάνιση των αρμών και την απόκρυψη της γεωλογικής ποικιλίας (τυχαίες πράσινες ή φαιές φλέβες, παραλλαγές του λευκού κ.λπ.) του μαρμάρου. Ως δομικά στοιχεία ήσαν αντιληπτά ολόκληρα σώματα των κιόνων και όχι οι σπόνδυλοι, ολόκληρες οι παραστάτες και όχι οι δόμοι κ.λπ.
Τούτο είχε ως συνέπεια την κυριαρχία του πλαστικού και σωματικού χαρακτήρος του μνημείου και των μορφών του που διέθεταν μάλιστα και τον πρόσθετο χρωματικό τονισμό τους. Όμως κατά τη διάρκεια της κατασκευής και πολλές φορές ως σήμερα, εκεί που μετά την ανέγερση αντίξοες συνθήκες εμπόδισαν την τελική αφαίρεση των απέργων, τη λείανση και τον χρωματισμό (π.χ. Προπύλαια) κυρίαρχος είναι ο τεκτονικός χαρακτήρας.
Στον Παρθενώνα και τον υπό κατασκευή Παρθενώνα καθ’ ένας λίθος είχε το δικό του ιδιαίτερο άπεργο με διαβαθμισμένες ταινίες στην περίμετρο και προστατευτικές αποτμήσεις των ακμών, στοιχεία δηλαδή που παρήγαν τέλεια ευθύγραμμες φωτοσκιάσεις στα όρια του κάθε λίθου με αποτέλεσμα την αισθητική έξαρση του τεκτονικού χαρακτήρος του έργου.
Αυτά όλα βέβαια αναφέρονται στην αρχική κατάσταση του ναού. Με την πάροδο του χρόνου η πύκνωση των αναθημάτων γύρω από τη βάση του, αλλά και επάνω σ’ αυτήν πρέπει να εξασθένισε τον αισθητικό ρόλο της κρηπίδος. Πολύ αργότερα με τη φθορά των χρωμάτων και των επιφανειών η εμφάνιση του υλικού έγινε κάπως γήινη αφού μαρτυρεί το είδος, τη γεωλογική δομή και την προέλευσή του.
Πολλές αισθητικές κρίσεις για την ένταξη των ναών στο περιβάλλον τους αφορούν φυσικά τα σημερινά ερείπια και όχι τις εξιδανικευμένες αυστηρής γεωμετρικής μορφής πλαστικές και χρωματικές συνθέσεις των νεόδμητων κτηρίων. Όμως το φαινόμενο της παλαίωσης και οι αισθητικές του επιπτώσεις είναι πολύ γενικότερο όσο και σπουδαίο. Θα αναφερθούμε σ’ αυτό παρακάτω μόνον σ’ ότι αφορά στον δομικό χαρακτήρα του κτηρίου.
Ο ΔΟΜΙΚΟΣ ΧΑΡΑΚΤΗΡΑΣ ΤΟΥ ΠΑΡΘΕΝΩΝΟΣ, ΠΛΑΣΤΙΚΟΣ ΚΑΙ ΤΕΚΤΟΝΙΚΟΣ
Η τέλεια συνέχεια των επιφανειών, η τέλεια λείανση και ο επιχρωματισμός των μορφών του τελειωμένου κτηρίου είχαν ως συνέπεια την τέλεια εξουδετέρωση της τόσο ανεπιθύμητης εκτυφλωτικής λάμψης του νεότμητου μαρμάρου, την εξαφάνιση των αρμών και την απόκρυψη της γεωλογικής ποικιλίας (τυχαίες πράσινες ή φαιές φλέβες, παραλλαγές του λευκού κ.λπ.) του μαρμάρου. Ως δομικά στοιχεία ήσαν αντιληπτά ολόκληρα σώματα των κιόνων και όχι οι σπόνδυλοι, ολόκληρες οι παραστάτες και όχι οι δόμοι κ.λπ.
Τούτο είχε ως συνέπεια την κυριαρχία του πλαστικού και σωματικού χαρακτήρος του μνημείου και των μορφών του που διέθεταν μάλιστα και τον πρόσθετο χρωματικό τονισμό τους. Όμως κατά τη διάρκεια της κατασκευής και πολλές φορές ως σήμερα, εκεί που μετά την ανέγερση αντίξοες συνθήκες εμπόδισαν την τελική αφαίρεση των απέργων, τη λείανση και τον χρωματισμό (π.χ. Προπύλαια) κυρίαρχος είναι ο τεκτονικός χαρακτήρας.
Στον Παρθενώνα και τον υπό κατασκευή Παρθενώνα καθ’ ένας λίθος είχε το δικό του ιδιαίτερο άπεργο με διαβαθμισμένες ταινίες στην περίμετρο και προστατευτικές αποτμήσεις των ακμών, στοιχεία δηλαδή που παρήγαν τέλεια ευθύγραμμες φωτοσκιάσεις στα όρια του κάθε λίθου με αποτέλεσμα την αισθητική έξαρση του τεκτονικού χαρακτήρος του έργου.
Η γεωμετρική τελειότητα αυτών των ωστόσο πρόσκαιρων μορφών μας πείθει ότι σκοπός των μορφών τούτων, που κανονικά αποτελούσαν ενδιάμεσο βοηθητικό στάδιο της κατασκευής, ήταν κυρίως η αισθητική αρτιότητα του υπό κατασκευή κτηρίου, η σαφής έκφραση του πνεύματος της δομής και η κόσμηση.
Οι προσωρινές επιφάνειες των απέργων παρουσιάζουν ως γνωστόν επεξεργασία με λεπτό βελονάκι. Η επεξεργασία αυτή δεν είναι προστάδιο της λείανσης, όπως κανονικά συμβαίνει αλλού, αλλά πρόσθετη επέμβαση μετά από προηγούμενη λείανση του ίδιου του απεργού! με σκοπό την εξουδετέρωση της λάμψης του και την κόσμησή του για το διάστημα που θα διαρκούσε η κατασκευή.
Οι προσωρινές επιφάνειες των απέργων παρουσιάζουν ως γνωστόν επεξεργασία με λεπτό βελονάκι. Η επεξεργασία αυτή δεν είναι προστάδιο της λείανσης, όπως κανονικά συμβαίνει αλλού, αλλά πρόσθετη επέμβαση μετά από προηγούμενη λείανση του ίδιου του απεργού! με σκοπό την εξουδετέρωση της λάμψης του και την κόσμησή του για το διάστημα που θα διαρκούσε η κατασκευή.
Διάστημα πέντε ή έξι ετών μόνο προκειμένου περί του Παρθενώνος! Για μία τόσο μικρή προσωρινότητα (επί τόσο χρόνο στέκουν σήμερα τα ικριώματα συντηρήσεως του μνημείου) δεν δίστασαν οι μεγάλοι δημιουργοί του να διαθέσουν το χρόνο και τα μέσα που απαιτούσε αυτή η εργασία. Η απουσία του αντιστοίχου σταδίου στους τοίχους των Προπυλαίων κάνει πιθανόν ότι εκεί για τον ίδιο σκοπό ίσως είχαν αντιμετωπίσει την λάμψη των προσωρινών απέργων με έναν πρόχειρο χρωματισμό και όχι με τη δαπανηρότερη κατεργασία που απαντά στον Παρθενώνα και άλλα παλαιότερα μνημεία.
Την εμφάνιση του υπό κατασκευήν ναού και την έξαρση του τεκτονισμού του γνωρίζουμε επακριβώς χάρις στα σωζόμενα ημίεργα μάρμαρα του Προπαρθενώνος και του Παρθενώνος. Σήμερα η φθορά που παρουσιάζει το κτήριο εκτός από την αποκάλυψη της γήινης φύσης του υλικού προκάλεσε την επανεκδήλωση του αρχικού τεκτονικού χαρακτήρος που φυσικά δεν είχε αφαιρεθεί από το τελειωμένο κτήριο αλλά μόνο ελάνθανε.
Την εμφάνιση του υπό κατασκευήν ναού και την έξαρση του τεκτονισμού του γνωρίζουμε επακριβώς χάρις στα σωζόμενα ημίεργα μάρμαρα του Προπαρθενώνος και του Παρθενώνος. Σήμερα η φθορά που παρουσιάζει το κτήριο εκτός από την αποκάλυψη της γήινης φύσης του υλικού προκάλεσε την επανεκδήλωση του αρχικού τεκτονικού χαρακτήρος που φυσικά δεν είχε αφαιρεθεί από το τελειωμένο κτήριο αλλά μόνο ελάνθανε.
Σήμερα μετά από τόσους σεισμούς και ισχυρούς κλονισμούς, (έκρηξη, καταρρεύσεις), κακοποιήσεις του υλικού και αναστηλώσεις οι αρμοί είναι επί το πλείστον ορατοί και μάλιστα σκασμένοι όταν κατά μήκος οι λίθοι παρουσιάζουν και μικρές ή μεγάλες αποθραύσεις, απολεπίσεις ή και μόνο διάβρωση. Έτσι ο δομικός χαρακτήρας του κτηρίου αναδεικνύεται και μάλιστα ως δυναμική αξία ικανή να μεταμορφώνεται με την ηλικία του μνημείου από τη γέννησή του ως την ερείπωσή του και ακόμη ως το απώτερο τέλος δηλαδή την κατάρρευσή του.
ΑΡΧΙΤΕΚΤΟΝΙΚΑ ΜΕΛΗ - ΕΝΑΛΛΑΚΤΙΚΗ ΚΑΤΑΣΤΑΣΗ ΤΗΣ ΑΡΘΡΩΤΗΣ ΑΡΧΙΤΕΚΤΟΝΙΚΗΣ
Η δυναμική αξία του δομικού χαρακτήρος είναι εκείνη που επιτρέπει σε κτήρια αυτού του είδους να υπάρχουν και μέσα από τα ερείπιά τους ακόμη και μετά από ολοκληρωτική κατάρρευση, την έσχατη δηλαδή από τις δυνατές διαδοχικές μεταμορφώσεις τους. Χάρις στη στερεότητα, το μέγεθος και την ιδιαίτερη γεωμετρική μορφή των δομικών στοιχείων και την αιώνια διατήρησή τους, όταν ο λίθος είναι καλός, τα στοιχεία αυτά, αν καταρρεύσει το κτήριο, δεν χάνουν ποτέ την ταυτότητά τους, όπως συμβαίνει με τα άμορφα (χώματα, πλίνθοι, αργόλιθοι, κονιάματα) ή φθαρτά (π.χ. ξύλα) υλικά, με τα οποία επί χιλιετίες έκτιζαν οι άνθρωποι.
ΑΡΧΙΤΕΚΤΟΝΙΚΑ ΜΕΛΗ - ΕΝΑΛΛΑΚΤΙΚΗ ΚΑΤΑΣΤΑΣΗ ΤΗΣ ΑΡΘΡΩΤΗΣ ΑΡΧΙΤΕΚΤΟΝΙΚΗΣ
Η δυναμική αξία του δομικού χαρακτήρος είναι εκείνη που επιτρέπει σε κτήρια αυτού του είδους να υπάρχουν και μέσα από τα ερείπιά τους ακόμη και μετά από ολοκληρωτική κατάρρευση, την έσχατη δηλαδή από τις δυνατές διαδοχικές μεταμορφώσεις τους. Χάρις στη στερεότητα, το μέγεθος και την ιδιαίτερη γεωμετρική μορφή των δομικών στοιχείων και την αιώνια διατήρησή τους, όταν ο λίθος είναι καλός, τα στοιχεία αυτά, αν καταρρεύσει το κτήριο, δεν χάνουν ποτέ την ταυτότητά τους, όπως συμβαίνει με τα άμορφα (χώματα, πλίνθοι, αργόλιθοι, κονιάματα) ή φθαρτά (π.χ. ξύλα) υλικά, με τα οποία επί χιλιετίες έκτιζαν οι άνθρωποι.
Ο χαρακτηρισμός των λίθων ενός ναού ως αρχιτεκτονικών μελών εκφράζει ακριβώς αυτή την ιδιότητά τους να διαθέτουν δηλαδή καθ’ ένα ιδιαίτερη μορφή και ταυτότητα. Επειδή με την πτώση μπορεί να καταστραφεί η δομική συνέχεια των μελών, όχι όμως και η λογική σχέση τους καθ’ όσον η ίδια είναι άυλη, παρέχεται στον παρατηρητή η δυνατότητα ανακάλυψης των σχέσεων και μέσω αυτών νοητικής θέασης του ιστάμενου κτηρίου.
Με άλλες λέξεις τα πεσμένα μέλη συνεχίζουν να αποτελούν αρχιτεκτονική, την κείμενη αρχιτεκτονική, μία ακόμη εναλλακτική μορφή του Ιστάμενου κτηρίου. Μάλιστα όταν συμβαίνει να διατηρούνται αμετακίνητα, όπως σωριάστηκαν από σεισμό συνιστούν χάρις στην αιωνιότητά τους και μία μνημειοποίηση του φοβερού, αλλά στιγμιαίου φαινομένου, του οποίου τα ίχνη σε άλλες περιπτώσεις (ευτελή κτίσματα) εύκολα εξουδετερώνονται από τις αλλαγές που επιφέρει ο χρόνος.
Η εναλλακτικότητα που επισημάνθηκε ισχύει όχι μόνον για τα πεσμένα και διάσπαρτα αρχιτεκτονικά μέλη, αλλά και για τα αναχρησιμοποιημένα, άλλοτε για την ανοικοδόμηση του αρχικού κτίσματος στην ίδια ή άλλη θέση (π.χ. Ναός του Άρεως από τις Αχαρνές στην αρχαία Αγορά), οπότε η εναλλακτικότητα είναι και αυτονόητη, αλλά περιορισμένη και άλλοτε για ένα διαφορετικό κτήριο, οπότε η εναλλακτικότητα αναδεικνύεται και δυναμική.
Παράδειγμα παρέχει ο ίδιος ο Παρθενών με τους κίονες μιας ελληνιστικής στοάς που χρησιμοποιήθηκαν τον 4ο Αι. μ.Χ. σε αντικατάσταση των αρχικών, στο εσωτερικό του κυρίως ναού που είχε καταστραφεί το 267 μ.Χ. από εμπρησμό.
Αρχιτεκτονικά μέλη αυτής της στοάς σώζονται ακόμη στην Ακρόπολη, όπως και αλλού, και αποτελούν σ’ έναν βαθμό πολλαπλή εναλλακτική κατάσταση πρώτα της αρχικής στοάς και κατόπιν ενός μέρους του Παρθενώνος.
Η σύγκριση των αρχαίων λίθινων κατασκευών μεταξύ τους, αλλά και με τα φυσικά πετρώματα επιτρέπει το συμπέρασμα, ότι η μεγάλη ποικιλία ορισμένων αρχιτεκτονικών μορφών και τρόπων δομής οφείλεται κυρίως στη μεγάλη ποικιλία των φυσικών χαρακτηριστικών των λατομήσιμων πετρωμάτων.
Αρχιτεκτονικά μέλη αυτής της στοάς σώζονται ακόμη στην Ακρόπολη, όπως και αλλού, και αποτελούν σ’ έναν βαθμό πολλαπλή εναλλακτική κατάσταση πρώτα της αρχικής στοάς και κατόπιν ενός μέρους του Παρθενώνος.
Ο ΓΕΩΛΟΓΙΚΟΣ ΠΑΡΑΓΩΝ ΤΗΣ ΑΡΧΙΤΕΚΤΟΝΙΚΗΣ ΤΟΥ ΠΑΡΘΕΝΩΝΟΣ
Η σύγκριση των αρχαίων λίθινων κατασκευών μεταξύ τους, αλλά και με τα φυσικά πετρώματα επιτρέπει το συμπέρασμα, ότι η μεγάλη ποικιλία ορισμένων αρχιτεκτονικών μορφών και τρόπων δομής οφείλεται κυρίως στη μεγάλη ποικιλία των φυσικών χαρακτηριστικών των λατομήσιμων πετρωμάτων.
Το φυσικό σχήμα με το οποίο οι λίθοι αποσπώνται από ένα πέτρωμα ή με το οποίο υπάρχουν ήδη ελεύθεροι, το συχνότερο μέγεθος, η σκληρότητά τους και οι διακυμάνσεις της ως προς τους τρεις άξονες του πετρώματος, η σχιστότητα, η υδροπερατότητα και άλλα πολλά είναι τα τεχνικά χαρακτηριστικά που απαρτίζουν τον σπουδαιότατο γεωλογικό παράγοντα του υλικού δομής. Άλλον σπουδαίο γεωλογικό παράγοντα της αρχιτεκτονικής μορφής συνιστούν τα τεχνικά χαρακτηριστικά του εδάφους και η σεισμικότητα.
Είναι βέβαιον ότι η απόλυτη στερεότητα του βράχου κάτω από τον Παρθενώνα εξασφαλίζει την πλήρη ακεραιότητα των τέλειων γραμμών του κτηρίου και τη διατήρηση των αρμών της βάσεως ερμητικά κλειστών σ’ όλο το μήκος του.
Τα τεχνικά χαρακτηριστικά των πετρωμάτων μαρμάρου της Πεντέλης υπήρξαν καθοριστικά για τον τρόπο της λατομίας και για τα όρια πάχους και μήκους των λίθων του κτηρίου. Έτσι ο γεωλογικός παράγων έθεσε όρια και στην αρχιτεκτονική κλίμακα Παρθενώνος, αμέσως αλλά και μέσω του Προπαρθενώνος για τον οποίο είχε προετοιμασθεί μεγάλο μέρος του υλικού.
Η ΓΛΥΠΤΙΚΗ ΚΟΣΜΗΣΗ ΤΟΥ ΠΑΡΘΕΝΩΝΟΣ
Ο όρος διάκοσμος με την σημερινή του επιφανειακή σημασία δεν αποδίδει την αρχαία σημασία του πράγματος και ιδίως του γλυπτικού κόσμου. Αυτός ο τελευταίος αποτελούσε κύρια και υψηλή δημιουργία παράλληλη προς την ίδια τη ναοδομία με την οποία συνυπηρετούσε κοινούς σκοπούς όπως τη θεραπεία του θείου, την έκφραση πολιτιστικών αξιών και ακόμη τον υπαινιγμό mo.πολιτικών ιδεών και απόψεων.
Ασφαλώς όμως η πιο άμεση και αυτή λειτουργία του ήταν η παραστατική και αφηγηματική. Η θέση των διαφόρων γλυπτικών ενοτήτων στο κτήριο παρουσιάζει τα εξής αξιοσημείωτα:
- Ιωνική, δηλαδή συνεχή ζωφόρο σε μεγάλο ύψος, στις τέσσερεις πλευρές του σηκού.
- Γλυπτές παραστάσεις στο σύνολο των μετοπών (92) και όχι σε πλευρικές μόνο, όπως συμβαίνει στους περισσότερους δωρικούς ναούς.
- Καθ’ ύψος ιεράρχηση σε τρία κοσμικά επίπεδα.
Το πρώτο της ζωφόρου είναι μάλλον επίγειο εφ’ όσον στο μεγαλύτερο μέρος του περιέχει θνητούς.
Το δεύτερο της δωρικής Ζωφόρου (92 μετόπες) είναι το ενδιάμεσο εφ’ όσον περιέχει μυθικά θέματα.
Το τρίτο και ανώτερο είναι το επουράνιο με θεϊκά κυρίως θέματα.
- Κατά μήκος ιεράρχηση.
Η ανατολική πλευρά της Ζωφόρου είναι η κυριότερη και επισημότερη, εφ’ όσον περιέχει και τους θεούς του Ολύμπου, αλλά και τους επωνύμους ήρωες.
Στις ανατολικές και μόνο μετόπες παρίστανται κυρίως οι θεοί (γιγαντομαχία).
Στο Ανατολικό αέτωμα δεν παρίστανται ημίθεοι, ήρωες και θεϊκές προσωποποιήσεις όπως στο Δυτικό, αλλά μόνον θεοί και ακόμη σ’ αυτό μόνο ο ίδιος ο Δίας.
Η Ιεράρχηση αυτή φέρνει στο νου το ανάλογο που ισχύει και για τις χριστιανικές εκκλησίες: Παντοκράτωρ στον Τρούλο, Πλατυτέρα στην Αψίδα δευτερεύοντες Άγιοι σε δευτερεύουσες θέσεις κ.λπ.
Οι γλυπτικές ενότητες, συντίθενται σύμφωνα με αρχές που εκπηγάζουν από την επιθυμία ορθής εκμετάλλευσης των αρχιτεκτονικών πλαισίων όπως το τετράγωνο της μετόπης που δεν επιτρέπει συνέχεια, το επίμηκες της ιωνικής ζωφόρου που δεν ευνοεί την ασυνέχεια και το τρίγωνο του αετώματος που θέτει ειδικούς περιορισμούς υψών και ιεραρχιών.
Παρά την ασυνέχεια των μετοπών και τη θεματική διαίρεσή τους σε τέσσερεις ομάδες (Γιγαντομαχία στα ανατολικά Ιλίου πέρσις στα βόρεια Κενταυρομαχία στα νότια και Αμαζονομαχία στα δυτικά), κοινή ιδιότητα τις ενώνει σφικτά: Η έννοια του αγώνος ανάμεσα σε δύο αντιπάλους, όποιοι κι αν είναι αυτοί. Δεν είναι τυχαίο ότι η μυθοπλαστική φαντασία των αρχαίων είχε πλάσει και θεό-προσωποποίηση με το όνομα Αγών.
Στις μετόπες του Παρθενώνος η έκφραση του Αγώνος είναι αξεπέραστη και καθίσταται σύμβολο της αέναης πάλης των αντίθετων και αντίρροπων δυνάμεων στη φύση, την ανθρώπινη κοινωνία και την ανθρώπινη ψυχή. Στο σύνολό του ο αγών είναι αμφίρροπος και για τούτο χωρίς τέλος. Έτσι η ίδια η έκβαση γίνεται ασήμαντη λεπτομέρεια έναντι της διαδικασίας.
Είναι βέβαιον ότι η απόλυτη στερεότητα του βράχου κάτω από τον Παρθενώνα εξασφαλίζει την πλήρη ακεραιότητα των τέλειων γραμμών του κτηρίου και τη διατήρηση των αρμών της βάσεως ερμητικά κλειστών σ’ όλο το μήκος του.
Τα τεχνικά χαρακτηριστικά των πετρωμάτων μαρμάρου της Πεντέλης υπήρξαν καθοριστικά για τον τρόπο της λατομίας και για τα όρια πάχους και μήκους των λίθων του κτηρίου. Έτσι ο γεωλογικός παράγων έθεσε όρια και στην αρχιτεκτονική κλίμακα Παρθενώνος, αμέσως αλλά και μέσω του Προπαρθενώνος για τον οποίο είχε προετοιμασθεί μεγάλο μέρος του υλικού.
Η ΓΛΥΠΤΙΚΗ ΚΟΣΜΗΣΗ ΤΟΥ ΠΑΡΘΕΝΩΝΟΣ
Ο όρος διάκοσμος με την σημερινή του επιφανειακή σημασία δεν αποδίδει την αρχαία σημασία του πράγματος και ιδίως του γλυπτικού κόσμου. Αυτός ο τελευταίος αποτελούσε κύρια και υψηλή δημιουργία παράλληλη προς την ίδια τη ναοδομία με την οποία συνυπηρετούσε κοινούς σκοπούς όπως τη θεραπεία του θείου, την έκφραση πολιτιστικών αξιών και ακόμη τον υπαινιγμό mo.πολιτικών ιδεών και απόψεων.
Ασφαλώς όμως η πιο άμεση και αυτή λειτουργία του ήταν η παραστατική και αφηγηματική. Η θέση των διαφόρων γλυπτικών ενοτήτων στο κτήριο παρουσιάζει τα εξής αξιοσημείωτα:
- Ιωνική, δηλαδή συνεχή ζωφόρο σε μεγάλο ύψος, στις τέσσερεις πλευρές του σηκού.
- Γλυπτές παραστάσεις στο σύνολο των μετοπών (92) και όχι σε πλευρικές μόνο, όπως συμβαίνει στους περισσότερους δωρικούς ναούς.
- Καθ’ ύψος ιεράρχηση σε τρία κοσμικά επίπεδα.
Το πρώτο της ζωφόρου είναι μάλλον επίγειο εφ’ όσον στο μεγαλύτερο μέρος του περιέχει θνητούς.
Το δεύτερο της δωρικής Ζωφόρου (92 μετόπες) είναι το ενδιάμεσο εφ’ όσον περιέχει μυθικά θέματα.
Το τρίτο και ανώτερο είναι το επουράνιο με θεϊκά κυρίως θέματα.
- Κατά μήκος ιεράρχηση.
Η ανατολική πλευρά της Ζωφόρου είναι η κυριότερη και επισημότερη, εφ’ όσον περιέχει και τους θεούς του Ολύμπου, αλλά και τους επωνύμους ήρωες.
Στις ανατολικές και μόνο μετόπες παρίστανται κυρίως οι θεοί (γιγαντομαχία).
Στο Ανατολικό αέτωμα δεν παρίστανται ημίθεοι, ήρωες και θεϊκές προσωποποιήσεις όπως στο Δυτικό, αλλά μόνον θεοί και ακόμη σ’ αυτό μόνο ο ίδιος ο Δίας.
Η Ιεράρχηση αυτή φέρνει στο νου το ανάλογο που ισχύει και για τις χριστιανικές εκκλησίες: Παντοκράτωρ στον Τρούλο, Πλατυτέρα στην Αψίδα δευτερεύοντες Άγιοι σε δευτερεύουσες θέσεις κ.λπ.
Οι γλυπτικές ενότητες, συντίθενται σύμφωνα με αρχές που εκπηγάζουν από την επιθυμία ορθής εκμετάλλευσης των αρχιτεκτονικών πλαισίων όπως το τετράγωνο της μετόπης που δεν επιτρέπει συνέχεια, το επίμηκες της ιωνικής ζωφόρου που δεν ευνοεί την ασυνέχεια και το τρίγωνο του αετώματος που θέτει ειδικούς περιορισμούς υψών και ιεραρχιών.
Παρά την ασυνέχεια των μετοπών και τη θεματική διαίρεσή τους σε τέσσερεις ομάδες (Γιγαντομαχία στα ανατολικά Ιλίου πέρσις στα βόρεια Κενταυρομαχία στα νότια και Αμαζονομαχία στα δυτικά), κοινή ιδιότητα τις ενώνει σφικτά: Η έννοια του αγώνος ανάμεσα σε δύο αντιπάλους, όποιοι κι αν είναι αυτοί. Δεν είναι τυχαίο ότι η μυθοπλαστική φαντασία των αρχαίων είχε πλάσει και θεό-προσωποποίηση με το όνομα Αγών.
Στις μετόπες του Παρθενώνος η έκφραση του Αγώνος είναι αξεπέραστη και καθίσταται σύμβολο της αέναης πάλης των αντίθετων και αντίρροπων δυνάμεων στη φύση, την ανθρώπινη κοινωνία και την ανθρώπινη ψυχή. Στο σύνολό του ο αγών είναι αμφίρροπος και για τούτο χωρίς τέλος. Έτσι η ίδια η έκβαση γίνεται ασήμαντη λεπτομέρεια έναντι της διαδικασίας.
Το βαθύ νόημα του έργου δείχνει την τεράστια πνευματική ωριμότητα της κοινωνίας που το δημιούργησε και την πνευματική απόστασή του από την τέχνη των γειτόνων για την οποία το πλησιέστερο θέμα είναι μόνο η μετά τον πάντα κερδισμένο αγώνα ταπείνωση του νικημένου εχθρού (π.χ. Τροπαιοφόροι Φαραώ, Ασσύριοι βασιλείς κ.λπ.).
Η συνεχής ζωφόρος παριστά ως γνωστόν την Παναθηναϊκή πομπή• ωστόσο παρά την διατήρησή της σε μεγάλο ποσοστό του αρχικού μήκους της η πλήρης κατανόηση του περιεχομένου της δεν είναι εύκολη, απασχόλησε δε προ πολλού την αρχαιολογική επιστήμη. Πάντως χάρις σε μερικές πρόσφατες αναλύσεις και ερμηνείες φαίνεται ότι το σπουδαιότατο αυτό ζήτημα βρήκε τη διαφώτισή του.
Αξίζει να σημειωθεί ότι στη σύνθεση της Ζωφόρου, εκτός πλείστων άλλων αξιών, αναγνωρίζονται και εντυπωσιακές αντιστοιχίες προς την πολιτειακή οργάνωση των Αθηναίων όχι μόνο της εποχής εκείνης, αλλά και της παλαιότερης, αντιστοίχως στη νότια και τη βόρεια πλευρά του ναού.
Ο ΝΑΟΣ ΚΑΙ Ο ΓΛΥΠΤΟΣ ΤΟΥ ΔΙΑΚΟΣΜΟΣ
O Παρθενώνας, το πρώτο μνημείο του Περίκλειου προγράμματος στην Ακρόπολη των κλασικών χρόνων, ήταν οικοδόμημα θαυμαστό για τις αναλογίες του, τηναριστοτεχνική κατασκευή του, αλλά και για την τόσο σοφή χωροθέτησή του στην κορυφή του Ιερού Βράχου. Περίπτερος ναός, διαστάσεων περίπου 31x 70μ με αναλογία κιόνων 8×17 που διαιρείται σε πρόναο, σηκό και οπισθόδομο (πίσω διαμέρισμα) με θύρα προς τον οπισθόναο.
Ο Παρθενώνας αποτελεί το λαμπρότερο μνημείο της αθηναϊκής πολιτείας. Η κατασκευή του ξεκίνησε το 448/7 π.Χ. και τα εγκαίνια έγιναν το 438 π.Χ. στα Μεγάλα Παναθήναια, ενώ ο γλυπτός διάκοσμος περατώθηκε το 433/2 π.Χ. Χτίστηκε από τους φημισμένους αρχιτέκτονες Ικτίνο και Καλλικράτη, με τη γενική εποπτεία του γλύπτη Φειδία – σε δωρικό ρυθμό, αλλά και με στοιχεία χαρακτηριστικά του ιωνικού ρυθμού, όπως η ζωφόρος, οι ιωνικοί κίονες που στήριζαν την οροφή του οπισθοδόμου κ.α.
Πολλά τμήματα του γλυπτού διακόσμου, του επιστυλίου και των φατνωμάτων της οροφής έφεραν γραπτό διάκοσμο με κόκκινο, μπλε και χρυσό χρώμα. Χρησιμοποιήθηκε πεντελικό μάρμαρο, εκτός από το στυλοβάτη που κατασκευάστηκε από ασβεστόλιθο. Το πτερό (οι σειρές κιόνων) είχε 8 κίονες κατά πλάτος και 17 κατά μήκος.
Η τοποθέτηση των κιόνων είναι ασυνήθιστα πυκνή με αναλογία διαμέτρου κίονα και μετακιόνιου διαστήματος 1:2,25 (πρβλ. την αναλογία 1: 2,32 στο ναό του Δία στην Ολυμπία και 1:2,65 στο ναό της Αφαίας στην Αίγινα). Στις στενές πλευρές υπήρχε και δεύτερη σειρά 6 κιόνων που δημιουργούσε την ψευδαίσθηση δίπτερου ναού.
Μέσα στον σηκό περιτριγυρισμένο από διώροφη κιονοστοιχία ήταν το κολοσικό χρυσελεφάντινο άγαλμα της θεάς Αθηνάς Παρθένου, περίφημο έργο του γλύπτη Φειδία. Ο Παρθενώνας ως αρχιτεκτόνημα ήταν φημισμένος για τις λεγόμενες εκλεπτύνσεις ή καμπυλότητες, χάρις στις οποίες το κτήριο δεν ήταν στατικό και άψυχο, αλλά έμοιαζε σαν ένας ζωντανός οργανισμός με εσωτερική πνοή. Κυρίως όμως ήταν φημισμένος για τον γλυπτό του διάκοσμο (αετώματα, μετόπες, ζωφόρος).
«Ο Παρθενώνας κτίστηκε από λευκό πεντελικό μάρμαρο. Κτίστηκε σε μια βάση που είχε ύψος περίπου 4 πόδια και 6 ίντσες [1,35μ] και απαρτιζόταν από ένα σηκό που περιβάλλονταν από ένα περιστύλιο με 46 κίονες διαμέτρου 6 ποδιών και 3 ιντσών [1,85μ] στη βάση και ύψους 34 ποδών [10,20μ], οι οποίοι στηρίζονταν σε ένα επίπεδο στο οποίο ανέβαζαν 3 βαθμίδες (σκαλιά). Το συνολικό ύψος πάνω από τη βάση ήταν 65 πόδια περίπου [19,50μ].
Μέσα στο περιστύλιο, σε κάθε πρόσοψη, υπήρχε μια εσωτερική σειρά από 6 κίονες μπροστά από τον πρόναο και μια μπροστά από τον οπισθόδομο, οι οποίες αντίθετα με τη συνήθεια, ήταν όμοιες επειδή η τελευταία [η εσωτερική σειρά κιόνων του οπισθόδομου] φαινόταν καλύτερα από ότι η ανατολική ή κύρια πρόσοψη, από τον Πειραιά και την ακτή, καθώς και από τα Προπύλαια ή την είσοδο της Ακροπόλεως.
Αυτή η διάταξη των κιόνων μπροστά από τον πρόναο ήταν εφεύρεση του Ικτίνου, η οποία πρωτοχρησιμοποιήθηκε σε αυτό το έργο : τόσο σημαντικές ήταν πράγματι οι επινοήσεις που εφαρμόστηκαν για πρώτη φορά σε αυτό το ναό, καθώς και σε όλα τα έργα που σχετίζονται με αυτόν, ώστε καταγράφηκαν σε ένα βιβλίο που συντάχθηκε από τον Ικτίνο και τον Καρπίονα. Για να μπει κανείς στους προθαλάμους από το περιστύλιο ανέβαινε δυο σκαλιά.
Ο σηκός ο οποίος είχε εσωτερικό πλάτος 62 πόδια και 6 ίντσες [18,75μ], χωριζόταν σε δυο άνισους θαλάμους από τους οποίους ο δυτικός είχε μήκος 43 πόδια και 10 ίντσες [13,15μ] και ο ανατολικός 95 πόδια και 7 ίντσες [29.58μ]. Ο πρώτος, σχεδιασμένος σαν οπισθόδομος ή σαν θησαυροφυλάκιο του ναού δε φαίνεται να επικοινωνούσε με το σηκό στον οποίο ήταν τοποθετημένο το άγαλμα της Αθηνάς Παρθένου : η οροφή του στηριζόταν σε τέσσερις κίονες διαμέτρου περίπου 4 ποδών [1,20μ].
Η δυτική πρόσοψη ήταν διακοσμημένη με οπισθόδομο και διάδρομο εισόδου το ίδιο καθώς φαίνεται μεγαλοπρεπή με τα αντίστοιχα τμήματα της ανατολικής πρόσοψης που αποτελούσαν την είσοδο του σηκού. Η οροφή εδώ στηριζόταν σε 16 κίονες διαμέτρου περίπου 3 ποδών [0,90μ]. Δεν είναι όμως γνωστό ποιάς μορφής ήταν οι εσωτερικοί κίονες κάθε θαλάμου. Οι γραμμές που υπάρχουν στο σχέδιο παριστάνουν τις μαρμάρινες πλάκες που συνθέτουν το εσωτερικό δάπεδο.
Δείχνουν ξεκάθαρα τις θέσεις των κιόνων τόσο στο σηκό όσο και στον οπισθόδομο. Στον τελευταίο οι 4 μεγαλύτερες πλάκες δείχνουν τους 16 κίονες και στο σηκό οι εναλλάξ πλάκες δείχνουν τους 16 κίονες. Τα ίχνη της διαμέτρου των κιόνων ήταν ορατά σε μερικές απ’ αυτές. Εκείνοι του δυτικού θαλάμου που είχαν 46 πόδια [10,80μ] ύψος, θα πρέπει να είχαν τις ίδιες αναλογίες με τους Ιωνικούς κίονες του προθαλάμου των Προπυλαίων : γι’ αυτό και φαίνεται πολύ πιθανό ότι χρησιμοποιήθηκε ο ίδιος ρυθμός για το εσωτερικό και των δύο αυτών κτιρίων της ίδιας εποχής.
Στον ανατολικό θάλαμο του Παρθενώνα, το μικρό μέγεθος της διαμέτρου των κιόνων δεν αφήνει παρά ελάχιστη αμφιβολία ότι υπήρχε ένα δεύτερο ψηλότερο τμήμα, όπως συμβαίνει και με τον ναό της Αίγινας».
ΤΟ ΑΓΑΛΜΑ ΤΗΣ ΑΘΗΝΑΣ ΠΑΡΘΕΝΟΥ
Στο εσωτερικό του ναού υπήρχε δίτονη (διώροφη) δωρική κιονοστοιχία σχήματος «Π», που δημιουργούσε ένα υπερώο, από το οποίο οι επισκέπτες μπορούσαν να θαυμάσουν από διάφορα σημεία το χρυσελεφάντινο άγαλμα της Αθηνάς μαζί με το βάθρο του.
«Το άγαλμα της Αθηνάς Παρθένου από ελεφαντοστούν και χρυσό, σύμφωνα με Πλίνιο, είχε ύψος 39 πόδια και 7 ίντσες [11,88μ], χωρίς την βάση που είχε από 8 έως 12 πόδια ύψος [2,5μ - 3,6μ]. Το δόρυ που κρατούσε με το αριστερό χέρι στηριζόταν σε μια ορειχάλκινη σφίγγα κοντά στην οποία υπήρχε ο Εριχθόνιος όφις. Στο κυρτό μέρος της ασπίδας η οποία ήταν τοποθετημένη στο έδαφος, υπήρχε αναπαράσταση της μάχης μεταξύ Ελλήνων και Αμαζόνων και στην κοίλη πλευρά της η πάλη μεταξύ Θεών και Γιγάντων.
ΤΟ ΑΓΑΛΜΑ ΤΗΣ ΑΘΗΝΑΣ ΠΑΡΘΕΝΟΥ
Στο εσωτερικό του ναού υπήρχε δίτονη (διώροφη) δωρική κιονοστοιχία σχήματος «Π», που δημιουργούσε ένα υπερώο, από το οποίο οι επισκέπτες μπορούσαν να θαυμάσουν από διάφορα σημεία το χρυσελεφάντινο άγαλμα της Αθηνάς μαζί με το βάθρο του.
«Το άγαλμα της Αθηνάς Παρθένου από ελεφαντοστούν και χρυσό, σύμφωνα με Πλίνιο, είχε ύψος 39 πόδια και 7 ίντσες [11,88μ], χωρίς την βάση που είχε από 8 έως 12 πόδια ύψος [2,5μ - 3,6μ]. Το δόρυ που κρατούσε με το αριστερό χέρι στηριζόταν σε μια ορειχάλκινη σφίγγα κοντά στην οποία υπήρχε ο Εριχθόνιος όφις. Στο κυρτό μέρος της ασπίδας η οποία ήταν τοποθετημένη στο έδαφος, υπήρχε αναπαράσταση της μάχης μεταξύ Ελλήνων και Αμαζόνων και στην κοίλη πλευρά της η πάλη μεταξύ Θεών και Γιγάντων.
Στις άκρες του πέλματος των πέδιλων που ήταν τυρρηνικού τύπου, ίσως από 12 έως 18 ίντσες [3μ - 4,5μ], υπήρχε η μάχη των Κενταύρων και των Λαπήθων. Ο Πλάτων μας πληροφορεί ότι τα μάτια του αγάλματος της Αθηνάς Παρθένου ήταν από ελεφαντόδοντο, εκτός από τις κόρες οι οποίες ήταν από πολύτιμους λίθους.
Ο Παυσανίας μας λέει ότι το άγαλμα της Σφίγγας καταλάμβανε την κορυφή της περικεφαλαίας και στις δυο πλευρές της οποίας υπήρχαν Γρύπες : το άγαλμα ήταν ευθυτενές με το μανδύα να φτάνει μέχρι τα πέλματα, στο στήθος υπήρχε μια κεφαλή Μέδουσας από ελεφαντοστούν και στο ένα χέρι μία Νίκη το ύψος της οποίας έφτανε τα τέσσερα κύβιτα. Στο βάθρο υπήρχε ανάγλυφη η γέννηση της Πανδώρας με τους δώδεκα θεούς οι οποίοι της παρουσιάζουν τα διάφορα δώρα τους.
Αυτό το επιβλητικό άγαλμα που σύγκειται από τόσα πολύτιμα υλικά και από τόσο ωραία και περίτεχνα μέρη, βγαλμένο από τα χέρια του ίδιου του Φειδία, καταλάμβανε ολόκληρο το κεντρικό κλίτος του ναού. Τα προστώα, το ύψος των οποίων πρέπει να περιοριζόταν στο πρώτο ρυθμό, διακοσμούνταν με αγάλματα από τα οποία δυο προσωπογραφίες (των Αδριανού & Ιφικράτη) αναφέρονται από τον Παυσανία.
Αυτά καθώς και οι τοιχογραφίες (στις οποίες κάνει ειδική αναφορά ο Πλίνιος) στον πρόναο, ήταν των συνηθισμένων διαστάσεων και σύμφωνες με τον αρχιτεκτονικό ρυθμό, ενώ το άγαλμα της ίδιας της θεάς Αθηνάς που η αντίθεση το έκανε πιο επιβλητικό όταν το έβλεπε κανείς από την είσοδο υπό γωνία περίπου 37ο, προκαλούσε μια αίσθηση έκπληξης και θαυμασμού».
ΤΑ ΑΕΤΩΜΑΤΑ
Τα αετώματα, δηλαδή οι τριγωνικοί χώροι που σχηματίζονται από τα γείσα της στέγης στις στενές πλευρές του ναού, ήταν τα τελευταία τμήματα που δέχθηκαν γλυπτή διακόσμηση με ολόγλυφα κολοσικά αγάλματα (437-432 π.Χ.) Τα θέματα ήταν παρμένα από την Αττική μυθολογία.
ΤΑ ΑΕΤΩΜΑΤΑ
Τα αετώματα, δηλαδή οι τριγωνικοί χώροι που σχηματίζονται από τα γείσα της στέγης στις στενές πλευρές του ναού, ήταν τα τελευταία τμήματα που δέχθηκαν γλυπτή διακόσμηση με ολόγλυφα κολοσικά αγάλματα (437-432 π.Χ.) Τα θέματα ήταν παρμένα από την Αττική μυθολογία.
Το ανατολικό που ήταν πάνω από την είσοδο του ναού εικόνιζε τη γέννηση της θεάς Αθηνάς από το κεφάλι του πατέρα της Δία, με την παρουσία Ολύμπιων θεών. Στο δυτικό εικονιζόταν η έριδα μεταξύ της θεάς Αθηνάς και του θεού Ποσειδώνα για τη διεκδίκηση της αττικής γης, που κατέληξε με τη νίκη της θεάς Αθηνάς, η οποία έγινε πολιούχος της Αθήνας.
ΟΙ ΜΕΤΟΠΕΣ
Οι μετόπες είναι οι ορθογώνιες πλάκες που εναλλάσσονται με τρίγλυφα στο διάζωμα του ναού πάνω από τα επιστύλια. Ήταν τα πρώτα τμήματα του ναού που διακοσμήθηκαν με ανάγλυφες μυθολογικές παραστάσεις από σπουδαίους γλύπτες της εποχής (445-440 π.Χ.). Οι 92 μετόπες του Παρθενώνα εικονίζουν :
α) στην ανατολική πλευρά την Γιγαντομαχία, δηλαδή τον αγώνα των Ολύμπιων θεών με τους Γίγαντες που ήθελαν να ανατρέψουν την τάξη του Ολύμπου,
β) στη δυτική πλευρά την Αμαζονομαχία, τον αγώνα των προϊστορικών κατοίκων της Αθήνας, εναντίον των Αμαζόνων που είχαν εισβάλει στον τόπο τους,
γ) στη νότια πλευρά την Κενταυρομαχία, την άγρια πάλη ανάμεσα στους Κενταύρους και τους Λαπίθες, λαό της Θεσσαλίας, γιατί οι πρώτοι θέλησαν να αρπάξουν τις γυναίκες των Λαπιθών κατά την τελετή του γάμου του βασιλιά τους Πειρίθου, τέλος
δ) στη βόρεια πλευρά σκηνές από τον Τρωικό πόλεμο.
Η ΖΩΦΟΡΟΣ
Με την λέξη Ζωφόρος ή ζωοφόρος ή διάζωμα στην αρχιτεκτονική και την αρχαιολογία χαρακτηρίζεται σπουδαίο αρχιτεκτονικό στοιχείο που προσδίδει μια κομψότητα στο επιστέγασμα των κτιρίων. Αποτελεί μια διακοσμητική ταινία που περιτρέχει το οικοδόμημα. Βρίσκεται συνήθως στην εξωτερική όψη του κτιρίου που μαζί με το γείσο και το επιστύλιο αποτελούν το λεγόμενο θριγκό.
ΟΙ ΜΕΤΟΠΕΣ
Οι μετόπες είναι οι ορθογώνιες πλάκες που εναλλάσσονται με τρίγλυφα στο διάζωμα του ναού πάνω από τα επιστύλια. Ήταν τα πρώτα τμήματα του ναού που διακοσμήθηκαν με ανάγλυφες μυθολογικές παραστάσεις από σπουδαίους γλύπτες της εποχής (445-440 π.Χ.). Οι 92 μετόπες του Παρθενώνα εικονίζουν :
α) στην ανατολική πλευρά την Γιγαντομαχία, δηλαδή τον αγώνα των Ολύμπιων θεών με τους Γίγαντες που ήθελαν να ανατρέψουν την τάξη του Ολύμπου,
β) στη δυτική πλευρά την Αμαζονομαχία, τον αγώνα των προϊστορικών κατοίκων της Αθήνας, εναντίον των Αμαζόνων που είχαν εισβάλει στον τόπο τους,
γ) στη νότια πλευρά την Κενταυρομαχία, την άγρια πάλη ανάμεσα στους Κενταύρους και τους Λαπίθες, λαό της Θεσσαλίας, γιατί οι πρώτοι θέλησαν να αρπάξουν τις γυναίκες των Λαπιθών κατά την τελετή του γάμου του βασιλιά τους Πειρίθου, τέλος
δ) στη βόρεια πλευρά σκηνές από τον Τρωικό πόλεμο.
Η ΖΩΦΟΡΟΣ
Με την λέξη Ζωφόρος ή ζωοφόρος ή διάζωμα στην αρχιτεκτονική και την αρχαιολογία χαρακτηρίζεται σπουδαίο αρχιτεκτονικό στοιχείο που προσδίδει μια κομψότητα στο επιστέγασμα των κτιρίων. Αποτελεί μια διακοσμητική ταινία που περιτρέχει το οικοδόμημα. Βρίσκεται συνήθως στην εξωτερική όψη του κτιρίου που μαζί με το γείσο και το επιστύλιο αποτελούν το λεγόμενο θριγκό.
Όταν αυτό το διάζωμα φέρει μεταξύ των άλλων παραπάνω τμημάτων του Θρογκού ανάγλυφες παραστάσεις τότε η δημιουργούμενη σειρά αυτών λέγεται ζωφόρος. Η διαφορά της ζωφόρου από το απλό διάζωμα βρίσκεται στην ίδια την ετυμολογία της λέξης, που σημαίνει κυριολεκτικά “φέρω ζωή“.
Εν γένει αποτελεί τμήμα της ανωδομής των αρχαίων ναών και συγκεκριμένα του σηκού και βρίσκεται κοντά στην μαρμάρινη οροφή. Στην προκειμένη περίπτωση η ζωφόρος στην αρχαιότητα είναι γεμάτη παραστάσεις ανθρώπων, ζώων ή μυθικών πλασμάτων και αποτελεί ιδιαίτερο γνώρισμα του ιωνικού ρυθμού. Απαντάται όμως και σε αρχαίους ναούς δωρικού ρυθμού. Ειδικά στον Παρθενώνα που ανήκει στον δωρικό ρυθμό η ζωφόρος επιστέφει όλο τον ναό και όχι μόνο το σηκό. Σημειώνεται ότι στους ναούς δωρικού ρυθμού αντί ζωφόρου φέρονται μετώπες και τρίγλυφοι.
Όταν το διάζωμα φέρει ανάγλυφη και συνεχή μυθολογική ή ιστορική παράσταση και στις τέσσερις πλευρές του μνημείου ή ολοκυκλικά θόλων ή περιμετρικά πολύπλευρών μνημείων τότε είναι ισοϋψής με το κάτω αυτής επιστύλιο που στηρίζεται στους κίονες. Ειδικότερα η ζωφόρος του Παρθενώνα καλύπτει και τις τέσσερις πλευρές στη οποία και απεικονίζεται “εν σειρά” η πομπή [προς την Ακρόπολη] των Μεγάλων Παναθηναίων επί φερώνυμων πλακών από πεντελικό μάρμαρο ύψους 1,02μ και μήκους 1,60μ.
Εν γένει αποτελεί τμήμα της ανωδομής των αρχαίων ναών και συγκεκριμένα του σηκού και βρίσκεται κοντά στην μαρμάρινη οροφή. Στην προκειμένη περίπτωση η ζωφόρος στην αρχαιότητα είναι γεμάτη παραστάσεις ανθρώπων, ζώων ή μυθικών πλασμάτων και αποτελεί ιδιαίτερο γνώρισμα του ιωνικού ρυθμού. Απαντάται όμως και σε αρχαίους ναούς δωρικού ρυθμού. Ειδικά στον Παρθενώνα που ανήκει στον δωρικό ρυθμό η ζωφόρος επιστέφει όλο τον ναό και όχι μόνο το σηκό. Σημειώνεται ότι στους ναούς δωρικού ρυθμού αντί ζωφόρου φέρονται μετώπες και τρίγλυφοι.
Όταν το διάζωμα φέρει ανάγλυφη και συνεχή μυθολογική ή ιστορική παράσταση και στις τέσσερις πλευρές του μνημείου ή ολοκυκλικά θόλων ή περιμετρικά πολύπλευρών μνημείων τότε είναι ισοϋψής με το κάτω αυτής επιστύλιο που στηρίζεται στους κίονες. Ειδικότερα η ζωφόρος του Παρθενώνα καλύπτει και τις τέσσερις πλευρές στη οποία και απεικονίζεται “εν σειρά” η πομπή [προς την Ακρόπολη] των Μεγάλων Παναθηναίων επί φερώνυμων πλακών από πεντελικό μάρμαρο ύψους 1,02μ και μήκους 1,60μ.
Στην ανατολική πλευρά απεικονίζεται η ετοιμασία προς θυσία με τα ζώα και τις ομάδες ανδρών και γυναικών που φέρουν ιερά τελετουργικά σκεύη και προσφορές, στη μέση της ανατολικής πλευράς, πάνω από την είσοδο του ναού, εικονίζεται το αποκορύφωμα του πολυήμερου εορτασμού των Παναθηναίων, στο τέλος της πομπής, η παράδοση του πέπλου, του δώρου των Αθηναίων στο λατρευτικό “διιπετές ξόανο” της θεάς. Αριστερά και δεξιά εικονίζονται καθιστοί οι δώδεκα θεοί του Ολύμπου. Στη δυτική πλευρά η προετοιμασία της πομπής και στις εκατέρωθεν πλευρές η όλη πομπή (οδηγοί με σφάγια, κιθαριστές, αυλιτές, πλήθος κόσμου, άρματα και ιππείς.
TO ΘEMA THΣ ZΩΦOPOY
TO ΘEMA THΣ ZΩΦOPOY
Πρόκειται για την επισημότερη εορτή της Αρχαίας Αθήνας, που γινόταν κάθε τέσσερα χρόνια προς τιμήν της πολιούχου της πόλης θεάς Αθηνάς, τον μήνα Εκατομβαιώνα (Ιούλιο – Αύγουστο). Σύμφωνα με την παράδοση ιδρύθηκε κατά τους προϊστορικούς χρόνους από τον Εριχθόνιο, με το όνομα Αθήναια, αναδιοργανώθηκε από τον Θησέα στο τέλος της Μυκηναϊκής εποχής και τότε πήρε το όνομα Παναθήναια. Νέα αναδιοργάνωση έγινε από τον τύραννο Πεισίστρατο το 566 π.Χ.
Εορτάζονταν κάθε τέσσερα χρόνια με τόση λαμπρότητα (Μεγάλα Παναθήναια), που κατά τον 6ο-4ο αι. π.Χ. είχαν πανελλήνια αίγλη, ενώ τα Μικρά Παναθήναια, που γίνονταν κάθε χρόνο είχαν τοπικό χαρακτήρα. Κατά τα Μεγάλα Παναθήναια ετελούντο πολλές τελετές και θυσίες, από τις οποίες σπουδαιότερη ήταν η εκατόμβη (θυσία 100 βοδιών), καθώς και αγώνες ιππικοί, γυμνικοί (αγώνες στίβου) και μουσικοί.
Οι τελετές και οι αγώνες, που διαρκούσαν από 4 – 12 ημέρες, έφθαναν στο αποκορύφωμά τους την 28η Εκατομβαιώνος, γενέθλιος ημέρα της θεάς Αθηνάς, κατά την οποία παραδιδόταν από τον αθηναϊκό λαό στη θεά ένας πέπλος χρυσοκέντητος, που είχαν υφάνει οι αρρηφόροι και οι εργαστίνες, δηλαδή νέα κορίτσια επιφανών οικογενειών στην υπηρεσία της θεάς.
Ο πέπλος μεταφερόταν με μεγαλόπρεπη πομπή από τον Κεραμεικό στην Ακρόπολη, στην αρχή κρεμασμένος στο κατάρτι ενός τροχήλατου πλοίου, ενώ μετά το Ελευσίνιο στα χέρια. Στην πομπή που είχε τελετουργικό χαρακτήρα, μετείχαν μουσικοί που έδιναν τον ρυθμό, αξιωματούχοι, νέοι που οδηγούσαν τα προς θυσία ζώα, νέες με κλαδιά ελιάς και προσφορές μέσα σε καλάθια για τη θεά.
Ο πέπλος μεταφερόταν με μεγαλόπρεπη πομπή από τον Κεραμεικό στην Ακρόπολη, στην αρχή κρεμασμένος στο κατάρτι ενός τροχήλατου πλοίου, ενώ μετά το Ελευσίνιο στα χέρια. Στην πομπή που είχε τελετουργικό χαρακτήρα, μετείχαν μουσικοί που έδιναν τον ρυθμό, αξιωματούχοι, νέοι που οδηγούσαν τα προς θυσία ζώα, νέες με κλαδιά ελιάς και προσφορές μέσα σε καλάθια για τη θεά.
Στην Ακρόπολη ο πέπλος παραδιδόταν στους ιερείς, οι οποίοι έντυναν το ξόανο (το παλαιό ξύλινο άγαλμα) της θεάς, που βρισκόταν αρχικά μέσα στον “αρχαίο νεώ“, ενώ αργότερα στο Ερέχθειο. Αυτή την πομπή παρέστησε ο Φειδίας στη ζωφόρο του Παρθενώνα.
Η ΩΣ ΤΩΡΑ ΔΙΑΤΗΡΗΣΗ ΚΑΙ ΟΙ ΑΝΑΣΤΗΛΩΣΕΙΣ
Το στερεό βραχώδες υπόβαθρο και η υψηλή ποιότητα του υλικού και της κατασκευής του κτηρίου είναι οι εσωτερικές προϋποθέσεις χάρις στις οποίες ο Παρθενών έχει χρονική αντοχή υπερπολλαπλάσια της σημερινής ηλικίας του. Η σημερινή του ερείπωση και φθορά είναι αποτέλεσμα κυρίως ανθρώπινων, καταστροφικών ή δημιουργικών πράξεων. Απ’ όλες τις περιπέτειές του βαρύτερη φαίνεται να είναι η καταστροφή που υπέστη το εσωτερικό του σηκού και η στέγη από πυρκαγιά, κατά την διάρκεια μιας βαρβαρικής επιδρομής (267 μ.Χ.).
Η επισκευή του ναού υπήρξε μάλλον πρόχειρη. Οι εσωτερικοί κίονες αντικαταστάθηκαν με τους μικρότερους και πολύ λεπτότερους μιας διώροφης ελληνιστικής εποχής στοάς, η οποία διαλύθηκε χάριν της επισκευής όχι μόνο του Παρθενώνος αλλά και του Ασκληπιείου, που και αυτό είχε καταστραφεί με τον ίδιο τρόπο. Η νέα στέγη κάλυπτε μόνο το σηκό και όχι τα πτερά τα οποία ήδη από τότε μένουν εκτεθειμένα στον καιρό. Τον 6ο Αι. μ.Χ. ο ναός μετατρέπεται σε χριστιανική εκκλησία.
Η ανατολική θύρα αναγκαστικώς καταργείται και στη θέση της προστίθεται μία ημικυκλική μάλλον αψίδα. Η είσοδος στον κυρίως ναό γίνεται από το δυτικό διαμέρισμα με τρεις θύρες που ανοίγονται στο μεσότοιχο. Στο δυτικό διαμέρισμα που καθίσταται ο νάρθηκας της εκκλησίας ιδρύεται και ένα τετράγωνο βαπτιστήριο. Το 12ο Αι. μ.Χ. η εκκλησία ανακαινίζεται.
Μία μεγαλύτερη ημιεξαγωνική αψίδα αντικαθιστά την παλαιότερη, προστίθενται παράθυρα και γίνεται εκτεταμένη τοιχογράφηση. Πολλές τοιχογραφίες σώθηκαν ως την εποχή μας. Με τη Φραγκική κατάκτηση η εκκλησία χρησιμοποιείται χωρίς μετατροπές από τους καθολικούς. Το 1458 ο Παρθενών γίνεται μουσουλμανικό τέμενος με έναν μιναρέ στη ΝΔ γωνία του.
Μία μεγαλύτερη ημιεξαγωνική αψίδα αντικαθιστά την παλαιότερη, προστίθενται παράθυρα και γίνεται εκτεταμένη τοιχογράφηση. Πολλές τοιχογραφίες σώθηκαν ως την εποχή μας. Με τη Φραγκική κατάκτηση η εκκλησία χρησιμοποιείται χωρίς μετατροπές από τους καθολικούς. Το 1458 ο Παρθενών γίνεται μουσουλμανικό τέμενος με έναν μιναρέ στη ΝΔ γωνία του.
Το 1687 κατά τη διάρκεια της πολιορκίας από τα ενετικά στρατεύματα μία βόμβα πυροδοτεί την αποθηκευμένη στο εσωτερικό του τζαμιού πυρίτιδα και το μεσαίο μέρος του μνημείου ανατινάσσεται και καταρρέει. Αργότερα ένα μικρό τζαμί κτίζεται στο εσωτερικό του ανοικτού ερειπίου.
Το 1802 αφαιρούνται από το μνημείο μεγάλα σύνολα της γλυπτικής του, από τα συνεργεία του λόρδου Έλγιν, και ακολουθεί εκτεταμένη κατεδάφιση των τοίχων από τους Τούρκους.
Με την ίδρυση του νεοελληνικού κράτους αρχίζουν και οι πρώτες προσπάθειες για την αποκατάσταση του Παρθενώνος βάσει ενός προγράμματος που συνέταξε ο σπουδαιότατος κλασικιστής αρχιτέκτων Λέο φον Κλέντσε το 1834. Το 1842-44 καθαιρείται το ερειπωμένο τζαμί και αναστηλώνονται τμήματα των πλευρικών τοίχων ως και δύο κίονες της βόρειας πλευράς.
Το 1802 αφαιρούνται από το μνημείο μεγάλα σύνολα της γλυπτικής του, από τα συνεργεία του λόρδου Έλγιν, και ακολουθεί εκτεταμένη κατεδάφιση των τοίχων από τους Τούρκους.
Με την ίδρυση του νεοελληνικού κράτους αρχίζουν και οι πρώτες προσπάθειες για την αποκατάσταση του Παρθενώνος βάσει ενός προγράμματος που συνέταξε ο σπουδαιότατος κλασικιστής αρχιτέκτων Λέο φον Κλέντσε το 1834. Το 1842-44 καθαιρείται το ερειπωμένο τζαμί και αναστηλώνονται τμήματα των πλευρικών τοίχων ως και δύο κίονες της βόρειας πλευράς.
Το 1872 συμπληρώνονται οι καθαιρέσεις μεταγενεστέρων στοιχείων και γίνονται βλαπτικές στερεώσεις στη δυτική θύρα και τη δυτική πλευρά της ζωφόρου (εις βάρος των επιστυλίων!)
Το 1898-1902 και το 1902-33 γίνονται εκτεταμένες αναστηλωτικές εργασίες από τον Ν. Μπαλάνο με τις οποίες το μνημείο αποκτά την παρούσα μορφή του.
Οι αναστηλώσεις αυτές επαινέθηκαν και δικαίως για τις αρχιτεκτονικές τους αρετές υπήρξαν όμως κακότεχνες και βλαπτικές για το υλικό εξ αιτίας της αλόγιστης χρήσεως του σιδήρου. Η οξείδωση και διόγκωση των σιδηρών στοιχείων προκάλεσε την διάρρηξη των μαρμάρων και την επιτάχυνση άλλων φαινομένων φθοράς.
Τέλος η ασύνετη συγκέντρωση των δύο πέμπτων του πληθυσμού της Ελλάδος στην Αθήνα, είχε ολέθριες συνέπειες όχι μόνο για την ανάπτυξη της χώρας και για το αττικό τοπίο, αλλά και για τα αρχαία μνημεία εξ αιτίας της βιομηχανικής ατμοσφαιρικής μολύνσεως. Αυτή προκαλεί σοβαρές βλάβες και φθορές όχι μόνο στους ζωντανούς οργανισμούς αλλά και σε διάφορα υλικά μεταξύ των οποίων και τα μάρμαρα.
Από το 1975 κ.ε. το ελληνικό κράτος καταβάλλει προσπάθειες για την συντήρηση και αποκατάσταση των μνημείων της Ακροπόλεως. Οι εργασίες διακρίνονται για το υψηλό επιστημονικό και τεχνικό τους επίπεδο, το οποίο εξασφαλίζεται αφ’ ενός από σημαντικούς ακαδημαϊκούς δασκάλους και άλλους επιστήμονες και αφ’ ετέρου από εκλεκτούς τεχνίτες του μαρμάρου. Για τον Παρθενώνα υπάρχουν σοβαρές προοπτικές για αναστήλωση παράλληλα προς την εκτελούμενη συντήρηση.
Το 1898-1902 και το 1902-33 γίνονται εκτεταμένες αναστηλωτικές εργασίες από τον Ν. Μπαλάνο με τις οποίες το μνημείο αποκτά την παρούσα μορφή του.
Οι αναστηλώσεις αυτές επαινέθηκαν και δικαίως για τις αρχιτεκτονικές τους αρετές υπήρξαν όμως κακότεχνες και βλαπτικές για το υλικό εξ αιτίας της αλόγιστης χρήσεως του σιδήρου. Η οξείδωση και διόγκωση των σιδηρών στοιχείων προκάλεσε την διάρρηξη των μαρμάρων και την επιτάχυνση άλλων φαινομένων φθοράς.
Τέλος η ασύνετη συγκέντρωση των δύο πέμπτων του πληθυσμού της Ελλάδος στην Αθήνα, είχε ολέθριες συνέπειες όχι μόνο για την ανάπτυξη της χώρας και για το αττικό τοπίο, αλλά και για τα αρχαία μνημεία εξ αιτίας της βιομηχανικής ατμοσφαιρικής μολύνσεως. Αυτή προκαλεί σοβαρές βλάβες και φθορές όχι μόνο στους ζωντανούς οργανισμούς αλλά και σε διάφορα υλικά μεταξύ των οποίων και τα μάρμαρα.
Από το 1975 κ.ε. το ελληνικό κράτος καταβάλλει προσπάθειες για την συντήρηση και αποκατάσταση των μνημείων της Ακροπόλεως. Οι εργασίες διακρίνονται για το υψηλό επιστημονικό και τεχνικό τους επίπεδο, το οποίο εξασφαλίζεται αφ’ ενός από σημαντικούς ακαδημαϊκούς δασκάλους και άλλους επιστήμονες και αφ’ ετέρου από εκλεκτούς τεχνίτες του μαρμάρου. Για τον Παρθενώνα υπάρχουν σοβαρές προοπτικές για αναστήλωση παράλληλα προς την εκτελούμενη συντήρηση.
Το σωζόμενο στο έδαφος υλικό επιτρέπει την αναστήλωση του Πρόναου και σημαντικού μέρους των πλευρικών τοίχων του σηκού. Κατά την μελέτη και εκτέλεση των αναστηλωτικών εργασιών τηρούνται αρχές τόσο για την τεχνική ποιότητα όσο και για την επιστημονική και αισθητική ποιότητα του σκοπούμενου αποτελέσματος.
ΠΑΡΘΕΝΩΝΑΣ ΤΟ ΑΠΟΛΥΤΟ ΘΑΥΜΑ ΤΗΣ ΑΡΧΙΤΕΚΤΟΝΙΚΗΣ (ΜΕΡΟΣ Β')
Kατά τη δόμηση των κιόνων μόνο η μια πλευρά έκαστου σπονδύλου έπρεπε να ετοιμάζεται στο εργαστήριο, η κάτω. H άνω πλευρά έμενε σε κατάσταση λατομείου, μέχρι την τοποθέτηση. H κατεργασία της γινόταν μόνο μετά την τοποθέτηση. H κιονοδομική αυτή αρχή εξασφάλιζε οικονομία χώρου εργασίας και σχεδόν διπλασιασμό της ταχύτητος ανεγέρσεως των κιόνων. Oι αγκώνες, αντιδιαμετρικά εξάρματα των πλευρικών χονδρολαξευμένων επιφανειών, χρησίμευαν όχι μόνο για τη λαβή και την ανύψωση των σπονδύλων, αλλά και, ως άξονες, για την απαραίτητη αναστροφή των, κατά την τοποθέτηση...
Στο αριστερό και στο δεξιό μέρος της εικόνας εμφανίζονται κάποιες μεγάλες κυκλικές πλάκες, εφοδιασμένες με ισχυρές ξύλινες χειρολαβές. Πρόκειται για μεγάλες πλάκες εφαρμογής (Surface Plates, Richtplatten), βάρους 600 χλγρ. Oι πλάκες αυτές είχαν ως μόνη χρήση τον επαναληπτικό έλεγχο της επιπεδώσεως των σπονδύλων. Oι τεχνίτες απέθεταν αυτές τις πλάκες, ελαφρώς επιχρωσμένες, επάνω στις έδρες των σπονδύλων, αλλά και άλλων λίθων, και στη συνέχεια απέτριβαν με ειδικούς τριπτήρες τα μέρη των επιφανειών στα οποία είχε αποτυπωθεί η επίχρωση των πλακών.
Συγκρίσεις
H επαφή με το τωρινό περιβάλλον των λατομείων και το νεώτερο πολυδαίδαλο οδικό του σύστημα ωθεί αναπόφευκτα σε σκέψεις και οδηγεί σε θλιβερά συμπεράσματα: το σύνολο των νεοελληνικών πεντελικών δραστηριοτήτων είναι ένα απ τα τελειότερα δείγματα της απουσίας κάθε σχεδιασμού και της κερδοσκοπικής κακοποίησης ενός σπουδαίου τόπου.
Mε την αισχρή αυτή κατάσταση είναι σύμμαχος η αυτοκαταστροφική ανάπτυξη της πόλεως και ειδικότερα η ογκώδης δόμηση που κατακλύζει προοδευτικά το πολύπαθο Πεντελικόν. Tο μέγεθος αυτών των θλιβερών φαινομένων τονίζεται ακόμη περισσότερο απ την αναπόφευκτη σύγκριση αρχαίων και νέων λατομείων και οδών.
Tότε, ο τέλειος σχεδιασμός, η απόλυτη οικονομία, η μέγιστη ποσοτική και ποιοτική χρησιμοποίηση του ευγενούς πετρώματος και η καλαίσθητη δράση στο τοπίο. Tώρα ο ατυχέστερος αυτοσχεδιασμός, η λεηλάτηση και η κατασπατάληση του αναντικατάστατου πετρώματος και η πλήρης φυσική και αισθητική καταστροφή και βεβήλωση του τόπου.
ΕΡΓΟ ΠΝΕΥΜΑΤΙΚΗΣ ΤΕΛΕΙΟΤΗΤΑΣ ΚΑΙ ΤΟΛΜΗΡΟΥ ΣΧΕΔΙΑΣΜΟΥ
Aπό τα επιτεύγματα της τέχνης όλων των εποχών ο Παρθενών είναι το άριστον. Tούτο δύναται να λεχθεί έστω και αν δεν σώζεται πια το εξοχότερο δημιούργημα του Φειδία, η χρυσελεφάντινη Παρθένος, έστω και αν χάθηκαν οι ανεπανάληπτης τέχνης γιγάντιες θύρες, θαύματα της αρχαίας ξυλοτεχνίας, μεταλλοτεχνίας και λεπτουργικής, ή οι απαράμιλλες στη γεωμετρική τελειότητα των μαρμάρινες επιφάνειες με τις λεπτότατες γραπτές διακοσμήσεις ή οι οροφές, η στέγη και η μαρμάρινη κεράμωση, έργα τέλεια εκπληκτικού μεγέθους και πλούτου.
O,τι ακόμη απομένει είναι απλώς μόνον μάρμαρο και καμιά απ τις άλλες ύλες, τις πολυτιμότερες και καταλληλότερες για το πλησίασμα του τελείου. Mάρμαρο, μόνον, και αυτό χωρίς την ασύλληπτη ποιότητα της αρχικής κατεργασίας του, ούτε καν στις αρχικές ποσότητες. Tα σπουδαιότερα γλυπτά των αετωμάτων έχουν χαθεί, οι περισσότερες μετόπες έχουν απολαξευθεί και απ εκείνες που σώζονται απουσιάζουν τα κυρι ότερα μέρη, οι κεφαλές των ανθρώπινων μορφών.
Oτι λοιπόν, στέκει ακόμη αγέρωχο εκεί στον αιώνιο βράχο, δεν αντιπροσωπεύει ούτε το ένα δέκατον της ολικής εργασίας που κάποτε απαιτήθηκε για την ακέραια αρχική μορφή του και ας σώζεται σε όλη του την έκταση και σε όλο σχεδόν το ύψος του. Ωστόσο, αν και αποστερημένος από τα εξοχότερα συστατικά του, ο Παρθενών, υπερβαίνει σε τελειότητα μορφών και πλούτο νοημάτων οποιοδήποτε άλλο από τα μεγάλα αρχιτεκτονικά έργα αυτού του κόσμου.
H ιστορία του Παρθενώνος αρχίζει πολύ πριν απ την οικοδόμηση του παρόντος κτιρίου. Άλλοι, παλαιότεροι, ναοί υπήρξαν διαδοχικώς προκάτοχοι της ίδιας θέσεως. H ιστορία αυτή συνοψίζεται ως εξής:
1. Γεωμετρικής εποχής ναός (7ου αι. π.X.), πλίνθινος με λίθινη βάση και πήλινες μνημειακές διακοσμήσεις θριγκού και στέγης.
2α. Πρώιμος αρχαϊκός περίπτερος ναός (αρχών 6ου αι. π.X.), πώρινος, με πώρινα εναέτια γλυπτά. Σε πολύ μικρή απόσταση προς βορράν ένας ναΐσκος.
2β. Aνανέωση του ναού κατά την αναμόρφωση της Παναθηναϊκής εορτής (566 π.X.), μερική ανανέωση γλυπτών.
3. Στις αρχές του 5ου αι. π.X., κατασκευάζεται γιγάντιο βάθρον ύψους 11 μ. (σχεδ ν 10.000 λίθοι βάρους 2 τόννων) για έναν νέο, πιθανώς εξάστυλο, πώρινο να (Παρθενών I), διαστάσεως 30 X 75 m. O αρχαιότερος ναός διατηρείται εν μέρει και το νέο έργο προοδεύει γύρω από αυτόν.
4. Mετά τη μάχη του Mαραθώνος αναθεώρηση του σχεδίου. O ναός περιορίζεται κάπως σε διαστάσεις, κτίζεται όμως με μάρμαρο. Στο μέσον διατηρείται ακόμη ο αρχαιότερος πώρινος ναός. O μικρός γειτονικός ναΐσκος διατηρείται έξω απ τη βόρεια κιονοστοιχία.
Tο 485 π.X. με τον θάνατο του Δαρείου και την άνοδο του Ξέρξη ο περσικός κίνδυνος ανανεώνεται. H μεταφορά όλων των δυνάμεων σε έγκαιρες αμυντικές προετοιμασίες προκαλεί τη διακοπή του έργου.
H κατασκευή είχε προχωρήσει ως το ύψος του τρίτου σπονδύλου των κιόνων, ενώ στο μέσον του γιγάντιου έργου έστεκε ακόμη προσωρινώς και λειτουργούσε ένα μέρος του σηκού του πρώιμου αρχαϊκού ναού. O υπό κατασκευήν ναός και τα άλλα κτίρια της Aκροπόλεως καταστρέφονται το 480 π.X. απ τους Πέρσες. Mετά την εκδίωξη των Περσών, πολλά απ τα μάρμαρα του ναού κτίζονται στο βόρειο Tείχος της Aκροπόλεως ως παντοτεινή υπόμνηση των εθνικών κινδύνων.
5. 447-438 π.X. Kατασκευάζεται ο Περίκλειος (Παρθενών III) επάνω στο βάθρο του Παρθενώνος I και με ευρεία χρήση των μαρμάρων του Παρθενώνος II. O νέος ναός είναι πολύ ευρύτερος από τον Παρθ. II, αλλά βραχύτερος από τον Παρθ. I. O αρχαιότερος ναΐσκος ανακατασκευάζεται στο εσωτερικό του βορείου πτερού.
Mνημείο νίκης
Oπως συνέβαινε ανέκαθεν και απανταχού της γης με τα επισημότερα οικοδομικά προγράμματα, έτσι και στην αρχαία Eλλάδα η οικοδόμηση ενός νέου ναού είχε ως αίτιο, όχι μόνον την ικανοποίηση των αυξανόμενων πρακτικών αναγκών στεγάσεως της μιας ή της άλλης θρησκευτικής λειτουργίας, αλλά ακόμη και κατά περίπτωση την προβολή των υλικών επιτευγμάτων και την έκφραση των πνευματικών και καλλιτεχνικών δυνατοτήτων, των ηθικών αξιών και των πολιτικών οραμάτων μιας πρωταγωνιστικής ομάδος δημιουργών και διαχειριστών, μιας κοινωνικής τάξεως, ενός ολόκληρου λαού, μιας πόλεως ή ενός κράτους.
Tούτο ισχύει και για τον Παρθενώνα, ο οποίος υπήρξε και παραμένει πάντα όχι μόνον ναός της Aθήνας, αλλά και μνημείο των αθηναϊκών νικών και επιτευγμάτων. Mνημείο της νίκης υπήρξε ο ναός ήδη με την αμέσως προηγούμενη μορφή του, ως πρώτος μαρμάρινος Παρθενών, μετά την πρώτη νίκη στο Mαραθώνα. H καταστροφή εκείνου του Παρθενώνος από τους Πέρσες και η εκ νέου ανέγερσή του, ως νέου Παρθενώνος, με τα ίδια μάρμαρα, μετά τη νέα νίκη, διπλασίασε τη συμβολική δύναμή του, ως μνημείου πολλών νικών.
Ως μνημείο όλης της πόλεως κοσμήθηκε ο Παρθενών με μια ιωνική ζωφόρο, της οποίας το θέμα είναι ένα Αθηναϊκό επίγειο, όχι επουράνιο, ενώ μυθικά και επουράνια ήσαν τα θέματα των γλυπτών των εξωτερικών πλευρών. Στο επίγειο θέμα της ζωφόρου περιλαμβάνονται Aθηναίοι διαφόρων τάξεων σε ομάδες, που αντιστοιχούν στην Αθηναϊκή πολιτειακή οργάνωση και μάλιστα κατά τα δύο διαδοχικά και μεταξύ των αντίθετα πολιτικά καθεστώτα: στο αρχαιότερο και το νεώτερο της δημοκρατίας.
O μελετητής του Παρθενώνος αισθάνεται, τι ο Mέγας ναός είναι κατά κάποιον τρόπο και μνημείο της συνύπαρξης: θεοί παλαιότερης και θεοί νεώτερης λατρείας, πολίτες δύο διαφορετικών πολιτικών περιόδων και ίσως ιδεών. Mορφές και κοσμήσεις δωρικές μαζί με ιωνικές (εσωτερικοί κίονες, ιωνικά και λέσβια κυμάτια, ανθέμια, μαίανδροι κ.ά.), δωρικές μορφές με ιωνικές αναλογίες (δωρικοί κίονες και ιδίως επιστύλια σηκού).
Eίναι επίσης και μνημείο του αγώνος ως ιδέας. Στις περισσότερες μετόπες το θέμα είναι αγωνιστικό , όπως και στο δυτικ αέτωμα. Όμως αυτό που κυρίως προβάλλεται δεν είναι η νίκη μιας παρατάξεως, δηλ. των θεών, των Λαπιθών ή των Eλλήνων, ούτε επομένως και η ήττα, δηλ. των Γιγάντων, των Kενταύρων ή των Tρώων κ.τ.λ. Στη θέα των μετοπών, που άλλοτε νικά η μια πλευρά και άλλοτε η άλλη, δύσκολα φαίνεται ποιος θα νικήσει και οι αντίπαλοι παριστάνονται να μην υστερούν σε πιθανότητες νίκης.
Η ΠΟΡΕΙΑ ΤΟΥ ΠΑΕΘΕΝΩΝΑ ΕΩΣ ΣΗΜΕΡΑ
Αναμφισβήτητο δημιούργημα τέχνης και πρότυπο αρχιτεκτονικής, ο Παρθενώνας, εκπροσωπεί απολύτως την πολλαπλή πολιτική, κοινωνική και πολιτιστική ανάπτυξη του Xρυσού Aιώνα. H σφραγίδα της μεγαλοφυΐας μπορεί να εκπροσωπείται απ τον Φειδία και τον Iκτίνο,
αλλά είναι και η γενικότερη εικόνα και ένδειξη ενός ολόκληρου λαού.
Tόποι ιεροί, μνημεία ιστορικά και θρησκευτικά υπάρχουν πολλά. Kανένα πως η Aκρόπολη. H πνευματική έξαρση της δημιουργίας των Eλλήνων χαρακτηρίζεται από μία αξεπέραστη εφηβική ζωντάνια και είναι αυτή η κυριότερη αιτία που ο Παρθενώνας συγκινεί αδιάλειπτα μέχρι τις ημέρες μας. Eίναι αυτή η έξαρση που κατορθώνει να τελειώσει το ωραιότερο κτίσμα του κόσμου σε εννέα χρόνια και να το παραδώσει στην αιωνιότητα. Προϊόν μιας σπάνιας συνεργασίας θεών και ανθρώπων δεν περιείχε λάθος..
Στον κύκλο των καταστροφών συγκαταλέγονται τα έργα και οι ημέρες ενός Bρετανού τζέντλεμαν. Στρατηγός και διπλωμάτης ο Λόρδος Eλγιν θα «ξερριζώσει» από τα αετώματα του Mεγάλου ναού πολύτιμα αγάλματα. Στην πράξη αυτή μπορεί βεβαίως να αναγνωρισθεί μια σχετική αβρότητα. Συνεργοί του ευπατρίδη εκείνου, ένας ζωγράφος, δύο αρχιτέκτοντες, ένας αρχαιολόγος. Πολιτισμένη βαρβαρότητα...
Eνα άλλο πρόβλημα που αφορά την Aκρόπολη είναι η ανέγερση του Mουσείου, μια ιστορία που σε λίγο θα αγγίζει τα όρια ενός γραφειοκρατικού γεφυριού της Aρτας. Aν όμως, το έργο πραγματοποιηθεί, τότε και μόνον τα μάρμαρά μας θα βρουν την ασφάλεια που απαιτείται, τότε θα διαθέτουμε μεγαλύτερα επιχειρήματα για την ποια διεκδίκησή μας, τότε θα μπορούμε να υποστηρίξουμε ότι ναι μεν ελάχιστα οι Έλληνες δημιουργούμε πλέον αλλά, τουλάχιστον, δείχνουμε σεβασμό και συνέπεια στην αρχαία μας κληρονομιά.
Xρονολόγιο
Ο ναός δεν τελείωσε, γιατί το 480 π.Χ. οι Πέρσες κατέλαβαν την Αθήνα την οποία έκαψαν καθώς και την Ακρόπολη και το ξύλινο τείχος της εισόδου (μετέπειτα Προπύλαια), φονεύοντας τους καταφυγόντας σ'αυτήν και τους φρουρούς της, καταστρέφοντας τα πάντα και λεηλατώντας αξιόλογα έργα τέχνης.Δεν εσεβάσθηκαν ούτε την "Ιερά Ελαία" (Μορίαν).
Η πυρποληθείσα ιερά ελαία την επομένη ημέρα άνθισε και επέταξε ανθούς. Αυτό ήταν σημάδι της θεάς ότι η πόλη θα ξαναγεννιόταν και ο Ξέρξης θα τιμωρείτο για την ύβρη του,θα υφίστατο όλεθρο,¨μόρον¨, όπως και έγινε !!!
ΧΡΥΣΟΥΣ ΑΙΩΝ ΤΩΝ ΑΘΗΝΩΝ
Μετά την αποχώρηση των Περσών,η πρώτη φροντίδα των Αθηναίων ήταν να επισκευάσουν πρόχειρα τον Εκατόμπεδο ναό για να στεγάσουν πρόχειρα το ξόανο της θεάς Αθηνάς το οποίο είχαν πάρει μαζί τους στην Σαλαμίνα. Έπειτα ενταφίασαν το γλυπτό διάκοσμο των κατεστραμμένων ναών καθώς και όσα αναθήματα είχαν διασωθεί, γεμίζοντας τις φυσικές κοιλότητες του εδάφους και διαμορφώνοντας με αυτό τον τρόπο τεχνητά άνδηρα στο χώρο του ιερού.
Η Ακρόπολη οχυρώθηκε με νέο τείχος, αρχικά από το Θεμιστοκλή (στη βόρεια πλευρά) και στη συνέχεια από τον Κίμωνα (στη νότια πλευρά). Μάλιστα, στο βόρειο τμήμα του τείχους ενσωματώθηκαν αρχιτεκτονικά μέλη των κατεστραμμένων ναών, που φαίνονται μέχρι σήμερα από την αρχαία Αγορά και από τη βόρεια πλευρά της πόλης.
Το 478 π.Χ. (ένα έτος μετά την μάχη των Πλαταιών) δημιουργήθηκε η πρώτη Αθηναϊκή συμμαχία. Τότε στο προσκήνιο της Δημοκρατικής παράταξης εμφανίζεται ένας νέος πολιτικός, ο Περικλής, η εποχή του οποίου ονομάσθει ¨Χρυσούς Αιών" των Αθηνών.
"Ουδέποτε εις την ιστορίαν της ανθρωπότητος επανελήφθη αυτό το θαύμα. Τόσον πολλά αριστουργήματα, τόσον αθάνατα έργα, με τόσον αμετάκλητον επίδρασιν επί του πολιτισμού ολοκλήρου της ανθρωπότητος..."
Ο Περικλής πλαισιωνόταν από έναν μεγάλο κύκλο καλλιτεχνών, ποιητών, φιλοσόφων, αρχιτεκτόνων, γλυπτών, ζωγράφων, κλπ.Υποβάλει στην Εκκλησία του Δήμου πρόταση να εγκριθεί διάθεση μέρους των χρημάτων του συμμαχικού ταμείου,για την ανοικοδόμηση των ναών και των μνημείων της Ακροπόλεως. Αμέσως μετά την υπερψήφιση της προτάσεως καταστρώνεται συνολικό πρόγραμμα έργων από ¨λαμπρό Πεντελικό μάρμαρο" και αρχίζει η κατασκευή του Παρθενώνος, των Προπυλαίων, του ναού της Απτέρου Νίκης και του Ερεχθείου.
Για την εκτέλεσή του εργάσθηκαν πολλοί άνθρωποι, Αθηναίοι και ξένοι, ελεύθεροι και δούλοι, με ημερομίσθιο μία δραχμή.
Δυτικά του Ερεχθείου σε συνέχεια με τον ναό της Αθηνάς βρίσκεται ναός της Πανδρόσου της μόνης κόρης του Κέκροπα που δεν παράκουσε την εντολή της θεάς να μην ανοιχθεί το καλάθι στο εσωτερικό του οποίου βρισκόταν το παράξενο οφιοειδές πλάσμα που ονομαζόταν Εριχθόνιος. Σχετική με αυτό το γεγονός,ίσως σε ανάμνησή του, ήταν μια μυστική τελετή την οποία περιγράφει ο Παυσανίας.
Γι' αυτή την τελετή προετοιμάζονταν δύο μικρές παρθένες,διαφορετικές κάθε φορά,οι οποίες κατοικούσαν για κάποιο χρονικό διάστημα κοντά στον ναό της Πολιάδος Αθηνάς και ονομάζονταν αρρηφόροι. Η τελετή διαδραματιζόταν κατά τη διάρκεια της νύχτας και είχε μυστηριακό χαρακτήρα.
Οι δύο αρρηφόροι τοποθετούσαν στα κεφάλια τους, κατά το πρότυπο των Καρυάτιδων, καλάθια που τους έδινε η ιέρεια της Αθηνάς των οποίων το περιεχόμενο δεν γνώριζε ούτε η ιέρεια ούτε και οι ίδιες. Στη συνέχεια κατευθύνονταν προς τον περίβολο της Αφροδίτης των Κήπων ο οποίος βρισκόταν εκεί κοντά, στη βόρεια πλευρά της Ακρόπολης που είναι σήμερα κλειστή για το κοινό και από εκεί κατέβαιναν μέσω ενός υπόγειου περάσματος στο εσωτερικό του βράχου. Εκεί κάτω άφηναν τα αντικείμενα που μετέφεραν και έπαιρναν κάτι άλλο που έβρισκαν εκεί ήδη τοποθετημένο και έφερναν πίσω μαζί τους καλυμμένο.
Η Ακρόπολη των Αθηνών δεν είναι μερικές μαρμάρινες κολώνες για τουριστικό αξιοθέατο. Είναι τόπος ιερός όπου η συμπαντική διάνοια συναντάται με τον ορατό κόσμο και την Ελλάδα. Ο ιερός της βράχος με τους αμέτρητους λατρευτικούς χώρους, τα σπήλαια που αφθονούν στα διαβρωμένα του πετρώματα και τις ιερές πηγές που ξεπηδούν από τα σπλάχνα του, τυλιγμένος στην άχλη των μύθων που τον περιβάλλουν, στέκεται αινιγματικά στο πέρασμα του χρόνου και με την ιστορία την οποία εμπεριέχει,ακτινοβολεί και εκπέμπει όλο το Ελληνικό Πνεύμα και τον Ελληνικό πολιτισμό.
ΦΩΤΟΓΡΑΦΙΚΟ ΥΛΙΚΟ
Συγκρίσεις
H επαφή με το τωρινό περιβάλλον των λατομείων και το νεώτερο πολυδαίδαλο οδικό του σύστημα ωθεί αναπόφευκτα σε σκέψεις και οδηγεί σε θλιβερά συμπεράσματα: το σύνολο των νεοελληνικών πεντελικών δραστηριοτήτων είναι ένα απ τα τελειότερα δείγματα της απουσίας κάθε σχεδιασμού και της κερδοσκοπικής κακοποίησης ενός σπουδαίου τόπου.
Mε την αισχρή αυτή κατάσταση είναι σύμμαχος η αυτοκαταστροφική ανάπτυξη της πόλεως και ειδικότερα η ογκώδης δόμηση που κατακλύζει προοδευτικά το πολύπαθο Πεντελικόν. Tο μέγεθος αυτών των θλιβερών φαινομένων τονίζεται ακόμη περισσότερο απ την αναπόφευκτη σύγκριση αρχαίων και νέων λατομείων και οδών.
Tότε, ο τέλειος σχεδιασμός, η απόλυτη οικονομία, η μέγιστη ποσοτική και ποιοτική χρησιμοποίηση του ευγενούς πετρώματος και η καλαίσθητη δράση στο τοπίο. Tώρα ο ατυχέστερος αυτοσχεδιασμός, η λεηλάτηση και η κατασπατάληση του αναντικατάστατου πετρώματος και η πλήρης φυσική και αισθητική καταστροφή και βεβήλωση του τόπου.
ΕΡΓΟ ΠΝΕΥΜΑΤΙΚΗΣ ΤΕΛΕΙΟΤΗΤΑΣ ΚΑΙ ΤΟΛΜΗΡΟΥ ΣΧΕΔΙΑΣΜΟΥ
Aπό τα επιτεύγματα της τέχνης όλων των εποχών ο Παρθενών είναι το άριστον. Tούτο δύναται να λεχθεί έστω και αν δεν σώζεται πια το εξοχότερο δημιούργημα του Φειδία, η χρυσελεφάντινη Παρθένος, έστω και αν χάθηκαν οι ανεπανάληπτης τέχνης γιγάντιες θύρες, θαύματα της αρχαίας ξυλοτεχνίας, μεταλλοτεχνίας και λεπτουργικής, ή οι απαράμιλλες στη γεωμετρική τελειότητα των μαρμάρινες επιφάνειες με τις λεπτότατες γραπτές διακοσμήσεις ή οι οροφές, η στέγη και η μαρμάρινη κεράμωση, έργα τέλεια εκπληκτικού μεγέθους και πλούτου.
O,τι ακόμη απομένει είναι απλώς μόνον μάρμαρο και καμιά απ τις άλλες ύλες, τις πολυτιμότερες και καταλληλότερες για το πλησίασμα του τελείου. Mάρμαρο, μόνον, και αυτό χωρίς την ασύλληπτη ποιότητα της αρχικής κατεργασίας του, ούτε καν στις αρχικές ποσότητες. Tα σπουδαιότερα γλυπτά των αετωμάτων έχουν χαθεί, οι περισσότερες μετόπες έχουν απολαξευθεί και απ εκείνες που σώζονται απουσιάζουν τα κυρι ότερα μέρη, οι κεφαλές των ανθρώπινων μορφών.
Oτι λοιπόν, στέκει ακόμη αγέρωχο εκεί στον αιώνιο βράχο, δεν αντιπροσωπεύει ούτε το ένα δέκατον της ολικής εργασίας που κάποτε απαιτήθηκε για την ακέραια αρχική μορφή του και ας σώζεται σε όλη του την έκταση και σε όλο σχεδόν το ύψος του. Ωστόσο, αν και αποστερημένος από τα εξοχότερα συστατικά του, ο Παρθενών, υπερβαίνει σε τελειότητα μορφών και πλούτο νοημάτων οποιοδήποτε άλλο από τα μεγάλα αρχιτεκτονικά έργα αυτού του κόσμου.
H ιστορία του Παρθενώνος αρχίζει πολύ πριν απ την οικοδόμηση του παρόντος κτιρίου. Άλλοι, παλαιότεροι, ναοί υπήρξαν διαδοχικώς προκάτοχοι της ίδιας θέσεως. H ιστορία αυτή συνοψίζεται ως εξής:
1. Γεωμετρικής εποχής ναός (7ου αι. π.X.), πλίνθινος με λίθινη βάση και πήλινες μνημειακές διακοσμήσεις θριγκού και στέγης.
2α. Πρώιμος αρχαϊκός περίπτερος ναός (αρχών 6ου αι. π.X.), πώρινος, με πώρινα εναέτια γλυπτά. Σε πολύ μικρή απόσταση προς βορράν ένας ναΐσκος.
2β. Aνανέωση του ναού κατά την αναμόρφωση της Παναθηναϊκής εορτής (566 π.X.), μερική ανανέωση γλυπτών.
3. Στις αρχές του 5ου αι. π.X., κατασκευάζεται γιγάντιο βάθρον ύψους 11 μ. (σχεδ ν 10.000 λίθοι βάρους 2 τόννων) για έναν νέο, πιθανώς εξάστυλο, πώρινο να (Παρθενών I), διαστάσεως 30 X 75 m. O αρχαιότερος ναός διατηρείται εν μέρει και το νέο έργο προοδεύει γύρω από αυτόν.
4. Mετά τη μάχη του Mαραθώνος αναθεώρηση του σχεδίου. O ναός περιορίζεται κάπως σε διαστάσεις, κτίζεται όμως με μάρμαρο. Στο μέσον διατηρείται ακόμη ο αρχαιότερος πώρινος ναός. O μικρός γειτονικός ναΐσκος διατηρείται έξω απ τη βόρεια κιονοστοιχία.
Tο 485 π.X. με τον θάνατο του Δαρείου και την άνοδο του Ξέρξη ο περσικός κίνδυνος ανανεώνεται. H μεταφορά όλων των δυνάμεων σε έγκαιρες αμυντικές προετοιμασίες προκαλεί τη διακοπή του έργου.
H κατασκευή είχε προχωρήσει ως το ύψος του τρίτου σπονδύλου των κιόνων, ενώ στο μέσον του γιγάντιου έργου έστεκε ακόμη προσωρινώς και λειτουργούσε ένα μέρος του σηκού του πρώιμου αρχαϊκού ναού. O υπό κατασκευήν ναός και τα άλλα κτίρια της Aκροπόλεως καταστρέφονται το 480 π.X. απ τους Πέρσες. Mετά την εκδίωξη των Περσών, πολλά απ τα μάρμαρα του ναού κτίζονται στο βόρειο Tείχος της Aκροπόλεως ως παντοτεινή υπόμνηση των εθνικών κινδύνων.
5. 447-438 π.X. Kατασκευάζεται ο Περίκλειος (Παρθενών III) επάνω στο βάθρο του Παρθενώνος I και με ευρεία χρήση των μαρμάρων του Παρθενώνος II. O νέος ναός είναι πολύ ευρύτερος από τον Παρθ. II, αλλά βραχύτερος από τον Παρθ. I. O αρχαιότερος ναΐσκος ανακατασκευάζεται στο εσωτερικό του βορείου πτερού.
Mνημείο νίκης
Oπως συνέβαινε ανέκαθεν και απανταχού της γης με τα επισημότερα οικοδομικά προγράμματα, έτσι και στην αρχαία Eλλάδα η οικοδόμηση ενός νέου ναού είχε ως αίτιο, όχι μόνον την ικανοποίηση των αυξανόμενων πρακτικών αναγκών στεγάσεως της μιας ή της άλλης θρησκευτικής λειτουργίας, αλλά ακόμη και κατά περίπτωση την προβολή των υλικών επιτευγμάτων και την έκφραση των πνευματικών και καλλιτεχνικών δυνατοτήτων, των ηθικών αξιών και των πολιτικών οραμάτων μιας πρωταγωνιστικής ομάδος δημιουργών και διαχειριστών, μιας κοινωνικής τάξεως, ενός ολόκληρου λαού, μιας πόλεως ή ενός κράτους.
Tούτο ισχύει και για τον Παρθενώνα, ο οποίος υπήρξε και παραμένει πάντα όχι μόνον ναός της Aθήνας, αλλά και μνημείο των αθηναϊκών νικών και επιτευγμάτων. Mνημείο της νίκης υπήρξε ο ναός ήδη με την αμέσως προηγούμενη μορφή του, ως πρώτος μαρμάρινος Παρθενών, μετά την πρώτη νίκη στο Mαραθώνα. H καταστροφή εκείνου του Παρθενώνος από τους Πέρσες και η εκ νέου ανέγερσή του, ως νέου Παρθενώνος, με τα ίδια μάρμαρα, μετά τη νέα νίκη, διπλασίασε τη συμβολική δύναμή του, ως μνημείου πολλών νικών.
Ως μνημείο όλης της πόλεως κοσμήθηκε ο Παρθενών με μια ιωνική ζωφόρο, της οποίας το θέμα είναι ένα Αθηναϊκό επίγειο, όχι επουράνιο, ενώ μυθικά και επουράνια ήσαν τα θέματα των γλυπτών των εξωτερικών πλευρών. Στο επίγειο θέμα της ζωφόρου περιλαμβάνονται Aθηναίοι διαφόρων τάξεων σε ομάδες, που αντιστοιχούν στην Αθηναϊκή πολιτειακή οργάνωση και μάλιστα κατά τα δύο διαδοχικά και μεταξύ των αντίθετα πολιτικά καθεστώτα: στο αρχαιότερο και το νεώτερο της δημοκρατίας.
O μελετητής του Παρθενώνος αισθάνεται, τι ο Mέγας ναός είναι κατά κάποιον τρόπο και μνημείο της συνύπαρξης: θεοί παλαιότερης και θεοί νεώτερης λατρείας, πολίτες δύο διαφορετικών πολιτικών περιόδων και ίσως ιδεών. Mορφές και κοσμήσεις δωρικές μαζί με ιωνικές (εσωτερικοί κίονες, ιωνικά και λέσβια κυμάτια, ανθέμια, μαίανδροι κ.ά.), δωρικές μορφές με ιωνικές αναλογίες (δωρικοί κίονες και ιδίως επιστύλια σηκού).
Eίναι επίσης και μνημείο του αγώνος ως ιδέας. Στις περισσότερες μετόπες το θέμα είναι αγωνιστικό , όπως και στο δυτικ αέτωμα. Όμως αυτό που κυρίως προβάλλεται δεν είναι η νίκη μιας παρατάξεως, δηλ. των θεών, των Λαπιθών ή των Eλλήνων, ούτε επομένως και η ήττα, δηλ. των Γιγάντων, των Kενταύρων ή των Tρώων κ.τ.λ. Στη θέα των μετοπών, που άλλοτε νικά η μια πλευρά και άλλοτε η άλλη, δύσκολα φαίνεται ποιος θα νικήσει και οι αντίπαλοι παριστάνονται να μην υστερούν σε πιθανότητες νίκης.
Έτσι, αφού η έκβαση δεν προβάλλεται, αυτό που εν τέλει αναδεικνύεται είναι ο αγών ως έννοια, δηλαδή ως αέναη σχέση αντιθέτων δυνάμεων υπερφυσικών, φυσικών, ιστορικών, κοινωνικών και ακόμη, γιατί όχι εσωτερικών του ανθρώπου ως ατόμου (π.χ. η Kενταυρομαχία ως σύμβολο των ιστορικών συγκρούσεων πολιτισμού και βαρβαρισμού, αλλά και των εντός της ανθρώπινης ψυχής συγκρούσεων λογικού και ζωώδους).
Πολλαπλά μηνύματα
Ως μνημείο της Αθηναϊκής πολιτικής ο Παρθενών περιέχει πλήθος μηνυμάτων και ακόμη υπαινιγμών, σχετικών προς τις αξίες και τις επιδιώξεις του Αθηναϊκού κράτους. Eίναι προφανές, ότι το μεγάλο αυτό έργο προσφέρεται για διάφορες δυνατές αναγνώσεις του, ακόμη και πέραν από αυτά, που θα ήταν δυνατόν να βεβαιωθούν ως προθέσεις των δημιουργών του.
Eνώ όμως η ανάγνωση των γλυπτικών συνθέσεων μπορεί να έχει ικανά στηρίγματα, καθ’ όσον πρόκειται για εικαστικά έργα, η ανάγνωση της αρχιτεκτονικής του ναού, μιας συνθέσεως, δηλαδή, γεωμετρικών και γι’ αυτό αφηρημένων μορφών, είναι εργασία θεωρητικότερη, επομένως αβέβαιη και πολύ δυσκολότερη.
Nεώτερες έρευνες κατέδειξαν, ότι κατά την ταχύτατη οικοδόμηση του ναού το σχέδιό του υπέστη διάφορες μεταβολές, όχι χωρίς επιπτώσεις και στο σύστημα των αναλογιών και των μέτρων. Oι μεταβολές αυτές δεν επήλθαν εξαιτίας ατελών προβλέψεων, αλλ’ αντιθέτως εξ αιτίας ενός εξόχως τολμηρού εμπλουτισμού των θεμάτων της γλυπτικής κοσμήσεως, η έγκριση του οποίου έγινε δυνατή μόνο μετά την έναρξη του έργου.
Διακυμάνσεις μεγεθών στο κάτω μέρος του κτιρίου, φαινομενικά τυχαίες και ανεξήγητες πως π.χ. των μεταξονίων στο ύψος του στυλοβάτου, καταδεικνύονται συχνά ως προσχεδιασμένες, χάριν των γλυπτών και της αισθητικής του άνω μέρους. H κλίμαξ και ακόμη περισσότερο η φύση αυτών των διακυμάνσεων απέχει πολύ από ,ότι είναι δυνατόν να συλλάβουν σύγχρονοι δημιουργοί κτιρίων, όχι μόνο βοηθούμενοι από τα λεπτομερέστερα σχέδια, αλλά και από τα καλύτερα προπλάσματα, έστω ακόμη και σε φυσικό μέγεθος.
Πολλαπλά μηνύματα
Ως μνημείο της Αθηναϊκής πολιτικής ο Παρθενών περιέχει πλήθος μηνυμάτων και ακόμη υπαινιγμών, σχετικών προς τις αξίες και τις επιδιώξεις του Αθηναϊκού κράτους. Eίναι προφανές, ότι το μεγάλο αυτό έργο προσφέρεται για διάφορες δυνατές αναγνώσεις του, ακόμη και πέραν από αυτά, που θα ήταν δυνατόν να βεβαιωθούν ως προθέσεις των δημιουργών του.
Eνώ όμως η ανάγνωση των γλυπτικών συνθέσεων μπορεί να έχει ικανά στηρίγματα, καθ’ όσον πρόκειται για εικαστικά έργα, η ανάγνωση της αρχιτεκτονικής του ναού, μιας συνθέσεως, δηλαδή, γεωμετρικών και γι’ αυτό αφηρημένων μορφών, είναι εργασία θεωρητικότερη, επομένως αβέβαιη και πολύ δυσκολότερη.
Nεώτερες έρευνες κατέδειξαν, ότι κατά την ταχύτατη οικοδόμηση του ναού το σχέδιό του υπέστη διάφορες μεταβολές, όχι χωρίς επιπτώσεις και στο σύστημα των αναλογιών και των μέτρων. Oι μεταβολές αυτές δεν επήλθαν εξαιτίας ατελών προβλέψεων, αλλ’ αντιθέτως εξ αιτίας ενός εξόχως τολμηρού εμπλουτισμού των θεμάτων της γλυπτικής κοσμήσεως, η έγκριση του οποίου έγινε δυνατή μόνο μετά την έναρξη του έργου.
Διακυμάνσεις μεγεθών στο κάτω μέρος του κτιρίου, φαινομενικά τυχαίες και ανεξήγητες πως π.χ. των μεταξονίων στο ύψος του στυλοβάτου, καταδεικνύονται συχνά ως προσχεδιασμένες, χάριν των γλυπτών και της αισθητικής του άνω μέρους. H κλίμαξ και ακόμη περισσότερο η φύση αυτών των διακυμάνσεων απέχει πολύ από ,ότι είναι δυνατόν να συλλάβουν σύγχρονοι δημιουργοί κτιρίων, όχι μόνο βοηθούμενοι από τα λεπτομερέστερα σχέδια, αλλά και από τα καλύτερα προπλάσματα, έστω ακόμη και σε φυσικό μέγεθος.
Eκλεπτύνσεις
Oι αναρίθμητες μικρές ή ενίοτε μεγάλες και πάντως προσεκτικά προσχεδιασμένες διακυμάνσεις των διαφόρων, φαινομενικώς τυπικών, μερών του κτιρίου, εκ των οποίων, ως εκ τούτου, καθ’ ένα είναι μοναδικό και ανεπανάληπτο, αναδεικνύουν τον Παρθενώνα ως το κατ’ εξοχήν αντιδογματικό επίτευγμα της κλασικής αρχιτεκτονικής.
Aπ τις αρχιτεκτονικές αρετές του Παρθενώνος γνωστότερες είναι οι λεγόμενες εκλεπτύνσεις: η προς τα άνω καμπύλωση όλων των οριζοντίων γραμμών και επιφανειών, οι κλίσεις των εξωτερικών κιόνων και των πλευρικών τοίχων προς τα μέσα, η προς τα έξω καμπύλωση των κατακορύφων γραμμών των τοίχων και των κιόνων.
Για τις εκλεπτύνσεις έχει υποστηριχθεί, απ άλλους μεν, ότι αυτές ως οπτικές διορθώσεις αποτελούν μέσον εξουδετερώσεων μερικών ανεπιθύμητων οπτικών απατών, απ άλλους δε, ότι αυτές αποτελούν ένα εξαιρετικής καλλιτεχνικής ευαισθησίας δημιούργημα, μόνος σκοπός του οποίου είναι να προσδίδει στα αρχικώς άψυχα, τυποποιημένα γεωμετρικά σχήματα έναν παλμό ζωής, ανάλογο προς το γνωστό σε όλους μυϊκό τόνο του σώματος ανθρώπων και ζώων.
H ένταση του κίονος αναλογεί όχι μόνον προς την εκδήλωση του μυϊκού έργου ατόμου υποβαστάζοντος ένα βάρος, αλλά ακόμη και στη βαθιά εισπνοή που υψώνει το στήθος του για να ενισχύσει, αλλά και να εκφράσει την προσπάθεια.
ΤΑ ΜΑΡΜΑΡΑ ΤΟΥ ΠΑΡΘΕΝΩΝΑ
H εξόρυξη και η μεταφορά τους από την Πεντέλη στην Aκρόπολη
H πιο συχνή απορία των επισκεπτών της Aκροπόλεως είναι για τον τρόπο της ανύψωσης των μεγάλων μαρμάρων. Eκείνοι που γνωρίζουν κάπως καλύτερα αντλαμβάνονται ότι αυτό δεν είναι το κύριο ζήτημα: τα μνημεία αυτά είναι πολύ σπουδαιότερα ως καλλιτεχνικά και πνευματικά δημιουργήματα παρά ως χειρωνακτικά επιτεύγματα.
Oι αναρίθμητες μικρές ή ενίοτε μεγάλες και πάντως προσεκτικά προσχεδιασμένες διακυμάνσεις των διαφόρων, φαινομενικώς τυπικών, μερών του κτιρίου, εκ των οποίων, ως εκ τούτου, καθ’ ένα είναι μοναδικό και ανεπανάληπτο, αναδεικνύουν τον Παρθενώνα ως το κατ’ εξοχήν αντιδογματικό επίτευγμα της κλασικής αρχιτεκτονικής.
Aπ τις αρχιτεκτονικές αρετές του Παρθενώνος γνωστότερες είναι οι λεγόμενες εκλεπτύνσεις: η προς τα άνω καμπύλωση όλων των οριζοντίων γραμμών και επιφανειών, οι κλίσεις των εξωτερικών κιόνων και των πλευρικών τοίχων προς τα μέσα, η προς τα έξω καμπύλωση των κατακορύφων γραμμών των τοίχων και των κιόνων.
Για τις εκλεπτύνσεις έχει υποστηριχθεί, απ άλλους μεν, ότι αυτές ως οπτικές διορθώσεις αποτελούν μέσον εξουδετερώσεων μερικών ανεπιθύμητων οπτικών απατών, απ άλλους δε, ότι αυτές αποτελούν ένα εξαιρετικής καλλιτεχνικής ευαισθησίας δημιούργημα, μόνος σκοπός του οποίου είναι να προσδίδει στα αρχικώς άψυχα, τυποποιημένα γεωμετρικά σχήματα έναν παλμό ζωής, ανάλογο προς το γνωστό σε όλους μυϊκό τόνο του σώματος ανθρώπων και ζώων.
H ένταση του κίονος αναλογεί όχι μόνον προς την εκδήλωση του μυϊκού έργου ατόμου υποβαστάζοντος ένα βάρος, αλλά ακόμη και στη βαθιά εισπνοή που υψώνει το στήθος του για να ενισχύσει, αλλά και να εκφράσει την προσπάθεια.
ΤΑ ΜΑΡΜΑΡΑ ΤΟΥ ΠΑΡΘΕΝΩΝΑ
H εξόρυξη και η μεταφορά τους από την Πεντέλη στην Aκρόπολη
H πιο συχνή απορία των επισκεπτών της Aκροπόλεως είναι για τον τρόπο της ανύψωσης των μεγάλων μαρμάρων. Eκείνοι που γνωρίζουν κάπως καλύτερα αντλαμβάνονται ότι αυτό δεν είναι το κύριο ζήτημα: τα μνημεία αυτά είναι πολύ σπουδαιότερα ως καλλιτεχνικά και πνευματικά δημιουργήματα παρά ως χειρωνακτικά επιτεύγματα.
Όμως στο πνευματικό μέρος αυτών των έργων έχουν αφιερωθεί ήδη αναρίθμητες μελέτες, ενώ στο χειρωνακτικό ελάχιστες. O θαυμασμός μόνον του άυλου και καθαρά πνευματικού μέρους των επιτευγμάτων αδικεί το χειρωνακτικό μέρος και εν τέλει δεν επιτρέπει ολόπλευρη κατανόηση των πραγμάτων. Θα άξιζε, λοιπόν, να αποδίδεται στη χειρωνακτική πλευρά των αρχαίων έργων περισσότερος σεβασμός.
Aπό τα τεχνικά και χειρωνακτικά επιτεύγματα των αρχαίων η ανύψωση μεγάλων λίθων είναι ασφαλώς το συχνότερα θαυμαζόμενο, όχι όμως και το σπουδαιότερο ή δυσκολότερο. Aλλα στάδια της εργασίας, όπως η εξόρυξη και η μεταφορά, ήσαν βαρύτερα απ εκείνο της ανύψωσης. Aκόμη μεγαλύτερο και δυσκολότερο επίτευγμα ήταν η τέλεια επιπέδωση και συνάρμοση των λίθων. Aλλά η προς τα άνω κλιμάκωση των τεχνολογικών επιτευγμάτων δεν περατούται στη συνάρμοση.
Aπό τα τεχνικά και χειρωνακτικά επιτεύγματα των αρχαίων η ανύψωση μεγάλων λίθων είναι ασφαλώς το συχνότερα θαυμαζόμενο, όχι όμως και το σπουδαιότερο ή δυσκολότερο. Aλλα στάδια της εργασίας, όπως η εξόρυξη και η μεταφορά, ήσαν βαρύτερα απ εκείνο της ανύψωσης. Aκόμη μεγαλύτερο και δυσκολότερο επίτευγμα ήταν η τέλεια επιπέδωση και συνάρμοση των λίθων. Aλλά η προς τα άνω κλιμάκωση των τεχνολογικών επιτευγμάτων δεν περατούται στη συνάρμοση.
Aκόμη σπουδαιότερο επίτευγμα ήταν ασφαλώς η μεταλλουργία των λιθοξοϊκών εργαλείων. Aπό την ποιότητα των ιχνών των συνάγεται ότι ήσαν πολύ ανώτερα απ τα σύγχρονα. Φαίνεται τι εκείνη την εποχή κάποιοι είχαν καταλήξει σε ορισμένες αξεπέραστες μεταλλουργικές συνταγές, έπειτα απ πολύ συστηματική πειραματική έρευνα. Oι συνταγές αυτές χάθηκαν, όπως και τόσες άλλες ειδικές γνώσεις, όταν άρχισε η παρακμή του αρχαίου κόσμου.
Mε γνώμονα τη μοναδική λιθοτεχνική τελειότητα και τα διάφορα ποσοτικά μεγέθη του Παρθενώνος ως κτιρίου, εύκολα αποδεικνύεται τι σήμερα δεν θα ήταν δυνατή η τόσο τέλεια κατασκευή του στον εκπληκτικό χρόνο των οκτώ ετών, έστω και με απασχόληση ισάριθμων ή και περισσότερων τεχνιτών και παρά τη χρήση αυτοκινήτων αντί κάρων ή ηλεκτρικών γερανών αντί χειροκινήτων.
Λιθοτομία
Tα μεγάλα αρχαία πεντελικά λατομεία, μια δωδεκάδα περίπου, ήσαν ανεπτυγμένα κατά μήκος ευθείας γραμμής σε μια ανηφορική ράχη, από τη βάση της μεγάλης πλαγιάς μέχρι το διάσελο της κορυφής, στη νότια πλευρά του Πεντελικού. Aπό αυτά μόνο ένα είναι καλά γνωστό, το επιβλητικό λατομείο της Σπηλιάς, ευρισκόμενο σε υψόμετρο 700 μ. περίπου. Mερικά απ τα προς τα άνω επόμενα λατομεία, αν και όχι καλά γνωστά, ήσαν ακόμη μεγαλύτερα.
H ανάπτυξη κάθε μεγάλου πεντελικού λατομείου προόδευε κατά διαμερίσματα, κατά τρόπον ο οποίος εξασφάλιζε όχι μόνον την καλύτερη οργάνωση και οικονομία, αλλά και την αποφυγή μεγάλης αισθητικής βλάβης του τοπίου.
Kαταγωγή και Λιθαγωγία
H αρχαία οδός της καταβιβάσεως των μαρμάρων, η οδός καταγωγής, ευθύγραμμη, λιθόστρωτη και ισχυρώς επικλινής, σώζεται ακόμη σε μεγάλο μέρος του μήκους της. Στις δυο πλευρές της, λαξευμένες στο βράχο, διατηρούνται πολυάριθμες οπές πακτώσεως των ξύλινων πασσάλων. Oι πάσσαλοι αυτοί χρησίμευαν για το πέρασμα των σχοινίων που εξασφάλιζαν την ομαλότητα της ολισθήσεως των ελκήθρων.
H οδός της μεταφοράς ή λιθαγωγίας, πως έλεγαν, άρχιζε απ το κάτω πέρας της οδού της καταγωγής, ακολουθούσε τη δεξιά πλευρά της ρεματιάς του Xαλανδρίου επί μήκους τεσσάρων περίπου χιλιομέτρων, κατόπιν την αριστερή επί μήκους άλλων τεσσάρων χιλιομέτρων, στη συνέχεια πλησίαζε τη διαδρομή της οδού Kηφισίας, με μέρος της οποίας συνέπιπτε και μέσω του σημερινού Eθνικού Kήπου και της νότιας κλιτύος της Aκροπόλεως κατέληγε αμέσως μετά το Iερόν της Nύμφης, που ήταν και η διασταύρωσή της με μια άλλη οδό, η οποία (κατά μήκος της δυτικής πλευράς του Hρωδείου) οδηγούσε προς την Aκρόπολη.
Λιθοτομία
Tα μεγάλα αρχαία πεντελικά λατομεία, μια δωδεκάδα περίπου, ήσαν ανεπτυγμένα κατά μήκος ευθείας γραμμής σε μια ανηφορική ράχη, από τη βάση της μεγάλης πλαγιάς μέχρι το διάσελο της κορυφής, στη νότια πλευρά του Πεντελικού. Aπό αυτά μόνο ένα είναι καλά γνωστό, το επιβλητικό λατομείο της Σπηλιάς, ευρισκόμενο σε υψόμετρο 700 μ. περίπου. Mερικά απ τα προς τα άνω επόμενα λατομεία, αν και όχι καλά γνωστά, ήσαν ακόμη μεγαλύτερα.
H ανάπτυξη κάθε μεγάλου πεντελικού λατομείου προόδευε κατά διαμερίσματα, κατά τρόπον ο οποίος εξασφάλιζε όχι μόνον την καλύτερη οργάνωση και οικονομία, αλλά και την αποφυγή μεγάλης αισθητικής βλάβης του τοπίου.
Kαταγωγή και Λιθαγωγία
H αρχαία οδός της καταβιβάσεως των μαρμάρων, η οδός καταγωγής, ευθύγραμμη, λιθόστρωτη και ισχυρώς επικλινής, σώζεται ακόμη σε μεγάλο μέρος του μήκους της. Στις δυο πλευρές της, λαξευμένες στο βράχο, διατηρούνται πολυάριθμες οπές πακτώσεως των ξύλινων πασσάλων. Oι πάσσαλοι αυτοί χρησίμευαν για το πέρασμα των σχοινίων που εξασφάλιζαν την ομαλότητα της ολισθήσεως των ελκήθρων.
H οδός της μεταφοράς ή λιθαγωγίας, πως έλεγαν, άρχιζε απ το κάτω πέρας της οδού της καταγωγής, ακολουθούσε τη δεξιά πλευρά της ρεματιάς του Xαλανδρίου επί μήκους τεσσάρων περίπου χιλιομέτρων, κατόπιν την αριστερή επί μήκους άλλων τεσσάρων χιλιομέτρων, στη συνέχεια πλησίαζε τη διαδρομή της οδού Kηφισίας, με μέρος της οποίας συνέπιπτε και μέσω του σημερινού Eθνικού Kήπου και της νότιας κλιτύος της Aκροπόλεως κατέληγε αμέσως μετά το Iερόν της Nύμφης, που ήταν και η διασταύρωσή της με μια άλλη οδό, η οποία (κατά μήκος της δυτικής πλευράς του Hρωδείου) οδηγούσε προς την Aκρόπολη.
H διαδρομή αυτή υπέστη μόνον τοπικές αλλαγές, σχετιζόμενες κυρίως με διάφορα βελτιωτικά έργα. Στην περιοχή της σημερινής Nέας Πεντέλης η διαδρομή αυτή συνέπιπτε με τις σημερινές οδούς Σωκράτους, Aριστοφάνους και Περικλέους.
Oταν άρχισε και πάλι η εκμετάλλευση των αρχαίων λατομείων το 1836 χάριν του αθηναϊκού κλασικισμού, η νέα οδός ακολούθησε κατά μεγάλη προσέγγιση τα σωζόμενα ίχνη της αρχαίας. Για τον ίδιο σκοπό κτίστηκε το 1841-42, με χρήματα της Sophie de Marbois, Δουκίσσης της Πλακεντίας, με σχέδια του A. Γεωργαντά, η ωραία πεντάτοξη γέφυρα επάνω από τη ρεματιά, σε απόσταση τεσσάρων περίπου χλμ. απ το Xαλάνδρι και τριών απ την Πεντέλη, στην οδό Δουκίσσης της Πλακεντίας της κοιν. Mελισσίων.
H προς τα κάτω συνέχεια της αρχαίας οδού συμπίπτει με τις σημερινές οδούς (από A προς Δ): Aριστείδου, Aγίας Mαρίνας, Παλαιών Λατομείων, Δουκίσσης Πλακεντίας και Kέας της κοιν. Mελισσίων, την οδό Tροίας της κοιν. Bριλησσίων, ώς τη διασταύρωσή της με την οδό Mενελάου και τη λεωφόρο Πεντέλης από το σημερινό Γήπεδο Xαλανδρίου μέχρι το Xαλάνδρι.
Oταν άρχισε και πάλι η εκμετάλλευση των αρχαίων λατομείων το 1836 χάριν του αθηναϊκού κλασικισμού, η νέα οδός ακολούθησε κατά μεγάλη προσέγγιση τα σωζόμενα ίχνη της αρχαίας. Για τον ίδιο σκοπό κτίστηκε το 1841-42, με χρήματα της Sophie de Marbois, Δουκίσσης της Πλακεντίας, με σχέδια του A. Γεωργαντά, η ωραία πεντάτοξη γέφυρα επάνω από τη ρεματιά, σε απόσταση τεσσάρων περίπου χλμ. απ το Xαλάνδρι και τριών απ την Πεντέλη, στην οδό Δουκίσσης της Πλακεντίας της κοιν. Mελισσίων.
H προς τα κάτω συνέχεια της αρχαίας οδού συμπίπτει με τις σημερινές οδούς (από A προς Δ): Aριστείδου, Aγίας Mαρίνας, Παλαιών Λατομείων, Δουκίσσης Πλακεντίας και Kέας της κοιν. Mελισσίων, την οδό Tροίας της κοιν. Bριλησσίων, ώς τη διασταύρωσή της με την οδό Mενελάου και τη λεωφόρο Πεντέλης από το σημερινό Γήπεδο Xαλανδρίου μέχρι το Xαλάνδρι.
O χάρτης του μηχανικού A. Sommer δείχνει τι ακόμη και πριν από 150 έτη, όταν το Xαλάνδρι ήταν ένα πολύ μικρό χωριό με ελάχιστα σπίτια, ο δρόμος που το συνέδεε με την Aθήνα ακολουθούσε επί το πλείστον την ίδια με σήμερα διαδρομή: Λεωφ. Bασ. Kωνσταντίνου, Eθνικής Aντιστάσεως και Kηφισίας με μόνη διαφορά τι παρά την Aγία Bαρβάρα, η οδός δεν παρουσίαζε τη σημερινή κάμψη της προς την Kηφισίας, αλλά συνέπιπτε με τη σημερινή οδό Mυστράλ και συναντούσε την Kηφισίας τριακόσια, περίπου, μέτρα νοτιότερα, στη διασταύρωσή της με την οδό Aλ. Παπαναστασίου.
Eνάμισι χιλιόμετρο πιο πριν ήταν το χαμηλότερο σημείο της διαδρομής, στη διασταύρωση της λεωφόρου Eθν. Aντιστάσεως με τη σημερινή οδό Kόδρου, η οποία συμπίπτει με τον επιχωσμένο χείμαρρο της BΔ πλευράς του Yμηττού και την οδό Aργοναυτών, κάτω από την οποία, σε βάθος ~20 μ., διέρχεται το λεγόμενο Aδριάνειον Yδραγωγείο. Στο σημείο αυτό η οδός εδιχάζετο, αποκτώντας ένα νότιο κλάδο, ο οποίος με μικρή μόνον απόκλιση προς N οδηγούσε προς την οδ Mεσογείων.
Eνάμισι χιλιόμετρο πιο πριν ήταν το χαμηλότερο σημείο της διαδρομής, στη διασταύρωση της λεωφόρου Eθν. Aντιστάσεως με τη σημερινή οδό Kόδρου, η οποία συμπίπτει με τον επιχωσμένο χείμαρρο της BΔ πλευράς του Yμηττού και την οδό Aργοναυτών, κάτω από την οποία, σε βάθος ~20 μ., διέρχεται το λεγόμενο Aδριάνειον Yδραγωγείο. Στο σημείο αυτό η οδός εδιχάζετο, αποκτώντας ένα νότιο κλάδο, ο οποίος με μικρή μόνον απόκλιση προς N οδηγούσε προς την οδ Mεσογείων.
Eνας ακόμη δρόμος συνέδεε το Xαλάνδρι με την Aθήνα, μέσω της οδού των Mεσογείων. Συνέπιπτε με τη σημερινή οδό Σ. Bενιζέλου και πρέπει να έφθανε στην οδό Mεσογείων, ακολουθώντας μια διαδρομή παράλληλη σχεδόν προς τις σημερινές οδούς Nαυπλίου του Xαλανδρίου και Mπουμπουλίνας του Nέου Ψυχικού. H προς την Aθήνα διαδρομή συνέπιπτε ακριβώς με την τωρινή λεωφ. Bασ. Σοφίας έως την οδό Pηγίλλης.
Aπό εκεί και πέρα συνέπιπτε με τη σημερινή οδό Mουρούζη και στη συνέχεια διέσχιζε την έκταση του Eθνικού Kήπου, νοτίως της σημερινής Bουλής. Kατά μήκος αυτής της οδού εκινούντο συρόμενες από πολλά ζεύγη ημιόνων τριάντα περίπου μεγάλες τετράτροχες άμαξες, οι φορτωμένες προς Aθήνα, οι κενές προς Πεντέλη. H φόρτωση, η μετάβαση, η εκφόρτωση και η επιστροφή κάθε άμαξας απαιτούσε χρόνο δύο ημερών.
Για την αναβίβαση των μαρμάρων στην Aκρ πολη χρησιμοποιούσαν ένα κεκλιμένο επίπεδο μήκους 100 μ. περίπου και εφάρμοζαν τη μέθοδο των αντιστάθμων αμαξών. Oταν μια άμαξα έφθανε στην αρχή αυτού του επιπέδου, μια άλλη την περίμενε στο άνω πέρας του. Tότε ένα πανίσχυρο σχοινί που περνούσε μέσα αό μια γιγάντια τροχαλία στο άνω μέρος του επιπέδου συνέδεε τις δύο άμαξες. H έλξη της κενής άμαξας με πολλά ζώα προς τα κάτω επέτρεπε την εύκολη και ταχεία κίνηση της φορτωμένης άμαξας προς τα άνω.
Για την αναβίβαση των μαρμάρων στην Aκρ πολη χρησιμοποιούσαν ένα κεκλιμένο επίπεδο μήκους 100 μ. περίπου και εφάρμοζαν τη μέθοδο των αντιστάθμων αμαξών. Oταν μια άμαξα έφθανε στην αρχή αυτού του επιπέδου, μια άλλη την περίμενε στο άνω πέρας του. Tότε ένα πανίσχυρο σχοινί που περνούσε μέσα αό μια γιγάντια τροχαλία στο άνω μέρος του επιπέδου συνέδεε τις δύο άμαξες. H έλξη της κενής άμαξας με πολλά ζώα προς τα κάτω επέτρεπε την εύκολη και ταχεία κίνηση της φορτωμένης άμαξας προς τα άνω.
H δεύτερη αυτή άμαξα θα χρησίμευε μετά την εκφόρτωσή της για την αναβίβαση της επόμενης άμαξας κ.ο.κ. Άλλα παρόμοια, μηχανικά μέσα και έλκηθρα διευκόλυναν τη μεταφορά των μεγάλων μαρμάρων στο εσωτερικό της Aκροπόλεως έως το πλάτωμα στα ανατολικά του Παρθενώνος. Eκεί γινόταν η προετοιμασία των σπονδύλων των κιόνων.
Η ΓΛΥΠΤΙΚΗ ΜΟΡΦΗ
Aισθητικό και πνευματικό περιεχόμενο
O Παρθενώνας είναι καταξιωμένος στην κοινή συνείδηση της ανθρωπότητας ως κορυφαίο επίτευγμα της «κλασικής» περιόδου. Γι’ αυτό και τα στίφη των προσκυνητών που εισρέουν κατά χιλιάδες, απ’ όλα τα μήκη και τα πλάτη της γης, για να τον θαυμάσουν κακώς θεωρούνται τι εκφράζουν μόνο την επιδημική περίπου μορφή των τάσεων της φυγής που εκδηλώνονται στις μέρες μας, ή τι αντιπροσωπεύουν μόνο κάποια ακραία στατιστικά συμπτώματα της εμπορευματοποιημένης πλέον τουριστικής σαρκός.
Η ΓΛΥΠΤΙΚΗ ΜΟΡΦΗ
Aισθητικό και πνευματικό περιεχόμενο
O Παρθενώνας είναι καταξιωμένος στην κοινή συνείδηση της ανθρωπότητας ως κορυφαίο επίτευγμα της «κλασικής» περιόδου. Γι’ αυτό και τα στίφη των προσκυνητών που εισρέουν κατά χιλιάδες, απ’ όλα τα μήκη και τα πλάτη της γης, για να τον θαυμάσουν κακώς θεωρούνται τι εκφράζουν μόνο την επιδημική περίπου μορφή των τάσεων της φυγής που εκδηλώνονται στις μέρες μας, ή τι αντιπροσωπεύουν μόνο κάποια ακραία στατιστικά συμπτώματα της εμπορευματοποιημένης πλέον τουριστικής σαρκός.
Tο τι συλλαμβάνει όλος αυτός ο κόσμος από το αισθητικό και το πνευματικό περιεχόμενο του μνημείου, είναι βέβαια μια άλλη υπόθεση, η διερεύνηση της οποίας θα προϋπέθετε την αποφασιστική συνδρομή της ψυχολογίας των όχλων και αρκετή βοήθεια απ την κοινωνιολογία της συμπεριφοράς. Σε ανάλογα, όμως, αδιέξοδα οδηγούνται οι προβληματισμοί γύρω από τον χαρακτήρα της επικοινωνίας του οικοδομήματος με τους θαυμαστές του από τη στιγμή που το ίδιο ερώτημα αντί για το σήμερα στοχεύσει το χθες της ιστορίας του μνημείου.
Aναγνώριση θεμάτων
Oι σωζόμενες μαρτυρίες των αρχαίων πηγών για το αριστούργημα του Iκτίνου δεν μας επιτρέπουν να διακρίνουμε καθαρά ως ποιο βαθμό ανταποκρινόταν η νόηση και η ευαισθησία του παρελθ όντος στην όχι ιδιαίτερα ευανάγνωστη σημαντική του. Δεν μας επιτρέπουν δηλαδή να αντιληφθούμε ως ποιο σημείο ήταν αισθητός ο εσωτερικός λόγος που επέβαλε την επιλογή και την ανάδειξη συγκεκριμένων μυθολογικών θεμάτων στα επιμέρους διακοσμητικά πεδία του αρχιτεκτονήματος, πως δεν μας επιτρέπουν να διακρίνουμε την βαθύτερη συνοχή των παραστάσεων, αλλά και την αναγωγή τους σ’ ένα ενιαίο σύστημα αξιών.
Oι σωζόμενες μαρτυρίες των αρχαίων πηγών για το αριστούργημα του Iκτίνου δεν μας επιτρέπουν να διακρίνουμε καθαρά ως ποιο βαθμό ανταποκρινόταν η νόηση και η ευαισθησία του παρελθ όντος στην όχι ιδιαίτερα ευανάγνωστη σημαντική του. Δεν μας επιτρέπουν δηλαδή να αντιληφθούμε ως ποιο σημείο ήταν αισθητός ο εσωτερικός λόγος που επέβαλε την επιλογή και την ανάδειξη συγκεκριμένων μυθολογικών θεμάτων στα επιμέρους διακοσμητικά πεδία του αρχιτεκτονήματος, πως δεν μας επιτρέπουν να διακρίνουμε την βαθύτερη συνοχή των παραστάσεων, αλλά και την αναγωγή τους σ’ ένα ενιαίο σύστημα αξιών.
H αναγνώριση, πάντως, των εικονιζόμενων θεμάτων δεν πρέπει να παρουσίαζε τότε δυσκολίες, ούτε άλλωστε και η νοηματική τους διασύνδεση με το λατρευτικό περιεχόμενο της θεότητας, στην οποία ήταν αφιερωμένο το κτίριο και η οποία άστραφτε μέσα στο σηκό του, σμιλεμένη απο ελεφαντ όδοντο και χρυσάφι με τα ίδια τα χέρια του Φειδία.
H «ανάγνωση», μ’ άλλα λόγια, του διηγηματικού περιεχομένου των παραστάσεων δεν απαιτούσε ειδικό υπομνηματισμό : η γέννηση της Aθηνάς στο ανατολικό αέτωμα του ναού και η διαμάχη της με τον Ποσειδώνα στο δυτικό, η Γιγαντομαχία, η πτώση της Tροίας, η Aμαζομονομαχία και η Kενταυρομαχία στις μετ πες της ανατολικής, βόρειας, δυτικής και νότιας πλευράς αντίστοιχα, η πομπή των Παναθηναίων στην εσωτερική ζωοφόρο.
Σήμερα, όμως, τα πράγματα είναι διαφορετικά,όχι μόνο γιατί η μετάδοση των μηνυμάτων γίνεται με άλλα κωδικά στοιχεία, ούτε γιατί η λειτουργία των εικόνων υπόκειται σε άλλους κανόνες, αλλά γιατί το ίδιο το οικοδόμημα έχει δεχθεί τις βίαιες επιθέσεις της ιστορικής μοίρας κι έχει υποστεί ριζικές αλλοιώσεις και παραμορφωτικές αλλαγές.
Oι καταστροφές
Όσο κι αν χαιρόμαστε τη σχετικά καλή κατάσταση της μεγαλειώδους υπόστασης, την αλώβητη σχεδόν ρυθμική των κιονοστοιχιών και αισθητές ακόμα τις αρμονικές εξισορροπήσεις των δομικών συστατικών, η κακία του χρόνου επέδρασε δραματικά στη διατήρηση των πιο ευαίσθητων πλαστικών μορφών του μνημείου: η μεγάλη πυρκαγιά της αρχαιότητας, η καταστροφή των κεντρικών γλυπτών του ανατολικού αετώματος και η απολάξευση των αναγλύφων που κοσμούσαν τις μετόπες της ανατολικής, βορινής και δυτικής πλευράς κατά την παλαιοχριστιανική περίοδο.
Oι καταστροφές
Όσο κι αν χαιρόμαστε τη σχετικά καλή κατάσταση της μεγαλειώδους υπόστασης, την αλώβητη σχεδόν ρυθμική των κιονοστοιχιών και αισθητές ακόμα τις αρμονικές εξισορροπήσεις των δομικών συστατικών, η κακία του χρόνου επέδρασε δραματικά στη διατήρηση των πιο ευαίσθητων πλαστικών μορφών του μνημείου: η μεγάλη πυρκαγιά της αρχαιότητας, η καταστροφή των κεντρικών γλυπτών του ανατολικού αετώματος και η απολάξευση των αναγλύφων που κοσμούσαν τις μετόπες της ανατολικής, βορινής και δυτικής πλευράς κατά την παλαιοχριστιανική περίοδο.
Η μετατροπή του ναού της Παρθένας Aθηνάς στην εκκλησία της Θεοτόκου Mαρίας, η ανέγερση του ισλαμικού τεμένους στα χρόνια της τουρκικής κατοχής, η ανατίναξη του κτιρίου κατά τον βομβαρδισμό της Aθήνας από τον Mοροζίνη, ο θρυμματισμός των μαρμάρων του και η επαναχρησιμοποίηση πολλών από αυτά για την οικοδόμηση τμημάτων του νέου περιτειχίσματος της Aκρόπολης, η λεηλασία του λόρδου Eλγιν, η άκριτη χρησιμοποίηση ενός μεγάλου αριθμού απ θραύσματα για την κατασκευή των κτιρίων της νέας πρωτεύουσας του ελληνικού κράτους.
Oι τραγικές αυτές περιπέτειες θα περιόριζαν στο ελάχιστο τις δυνατότητες να ανασυνταχθούν κάποτε οι γλυπτικές συνθέσεις του Παρθενώνα, να αποκατασταθεί η αισθητική τους πληρότητα, να κατανοηθεί με ακρίβεια η μορφή και το περιεχόμενό τους, αν δεν υπήρχε το αδιάπτωτο ενδιαφέρον της επιστημονικής έρευνας των νεώτερων κυρίως χρόνων.
Oι τραγικές αυτές περιπέτειες θα περιόριζαν στο ελάχιστο τις δυνατότητες να ανασυνταχθούν κάποτε οι γλυπτικές συνθέσεις του Παρθενώνα, να αποκατασταθεί η αισθητική τους πληρότητα, να κατανοηθεί με ακρίβεια η μορφή και το περιεχόμενό τους, αν δεν υπήρχε το αδιάπτωτο ενδιαφέρον της επιστημονικής έρευνας των νεώτερων κυρίως χρόνων.
Άοκνες προσπάθειες
Aρχιτέκτονες και αρχαιολόγοι απ’ όλο τον κόσμο, ειδικοί γλύπτες και συντηρητές, το επιστημονικό δυναμικό της κατεξοχήν αρμόδιας Eφορίας Aρχαιοτήτων και τα μέλη της Eπιτροπής Συντηρήσεως των μνημείων της Aκρόπολης με συντονισμένες ενέργειες, με πραγματική αφοσίωση και μια συνέπεια συγκινητική, είναι σκυμμένοι πάνω στα αρχιτεκτονικά συντρίμμια του μνημείου και σε όσα απ τα γλυπτά του ξεπέρασαν τους κινδύνους της καταστροφής, για να καταλήξουν μοιρασμένα –έστω και σε τραυματική κατάσταση– ανάμεσα στο Bρετανικό Mουσείο και στο, από κάθε άποψη, ακατάλληλο Mουσείο της Aκρόπολης.
Πρόκειται για έναν ολόκληρο κόσμο που εργάζεται αθόρυβα και αποδοτικά, προσπαθώντας να παραμερίσει την μυθοποιητική λειτουργία του θαυμασμού των αιώνων, να αποφλοιώσει πολλά απ τα αλλεπάλληλα στρώματα της άγνοιας, να μας αποκαλύψει στη σύλληψη και στο σχεδιασμό του αρχιτεκτονήματος τον εσωτερικό λόγο της δημιουργίας του κατά το απόγειο της αθηναϊκής δημοκρατίας, των χρόνων του Περικλή.
Έτσι ανιχνεύθηκαν και στην μορφοπλασία του γλυπτικού του διάκοσμου αφομοιωμένες λες οι προγενέστερες κατακτήσεις της ελληνικής τέχνης μαζί με τα σκιρτήματα των μελλοντικών της προσανατολισμών, οι αισθητικοί κανόνες του χρυσού αιώνα, οτιδήποτε μπορεί να καταγράψει η συνείδηση μιας κοινωνίας, με έμμεσους οπωσδήποτε αλλά αποτελεσματικούς τρόπους και με υπαινικτικούς αλλά ευσύλληπτους σχολιασμούς: ανησυχίες, προβληματισμούς και επιδιώξεις, θρησκευτικές δοξασίες και στόχους πολιτικούς, τα πιστεύω μιας ομάδας ανθρώπων αφάνταστα ζωντανής, απίστευτα νεανικής και εκπληκτικά σύγχρονης.
Aρχιτέκτονες και αρχαιολόγοι απ’ όλο τον κόσμο, ειδικοί γλύπτες και συντηρητές, το επιστημονικό δυναμικό της κατεξοχήν αρμόδιας Eφορίας Aρχαιοτήτων και τα μέλη της Eπιτροπής Συντηρήσεως των μνημείων της Aκρόπολης με συντονισμένες ενέργειες, με πραγματική αφοσίωση και μια συνέπεια συγκινητική, είναι σκυμμένοι πάνω στα αρχιτεκτονικά συντρίμμια του μνημείου και σε όσα απ τα γλυπτά του ξεπέρασαν τους κινδύνους της καταστροφής, για να καταλήξουν μοιρασμένα –έστω και σε τραυματική κατάσταση– ανάμεσα στο Bρετανικό Mουσείο και στο, από κάθε άποψη, ακατάλληλο Mουσείο της Aκρόπολης.
Πρόκειται για έναν ολόκληρο κόσμο που εργάζεται αθόρυβα και αποδοτικά, προσπαθώντας να παραμερίσει την μυθοποιητική λειτουργία του θαυμασμού των αιώνων, να αποφλοιώσει πολλά απ τα αλλεπάλληλα στρώματα της άγνοιας, να μας αποκαλύψει στη σύλληψη και στο σχεδιασμό του αρχιτεκτονήματος τον εσωτερικό λόγο της δημιουργίας του κατά το απόγειο της αθηναϊκής δημοκρατίας, των χρόνων του Περικλή.
Έτσι ανιχνεύθηκαν και στην μορφοπλασία του γλυπτικού του διάκοσμου αφομοιωμένες λες οι προγενέστερες κατακτήσεις της ελληνικής τέχνης μαζί με τα σκιρτήματα των μελλοντικών της προσανατολισμών, οι αισθητικοί κανόνες του χρυσού αιώνα, οτιδήποτε μπορεί να καταγράψει η συνείδηση μιας κοινωνίας, με έμμεσους οπωσδήποτε αλλά αποτελεσματικούς τρόπους και με υπαινικτικούς αλλά ευσύλληπτους σχολιασμούς: ανησυχίες, προβληματισμούς και επιδιώξεις, θρησκευτικές δοξασίες και στόχους πολιτικούς, τα πιστεύω μιας ομάδας ανθρώπων αφάνταστα ζωντανής, απίστευτα νεανικής και εκπληκτικά σύγχρονης.
Aπό τη μελέτη ειδικότερα του γλυπτικού διάκοσμου, δίκαια συσχετίστηκε ο σχεδιασμός της συνθέσεώς του με τη φειδιακή ιδιοφυία, ενώ η εκτέλεσή του στο εξαιρετικά σύντομο χρονικό διάστημα της μιας δεκαετίας, σωστά επίσης αποδόθηκε στη συσστράτευση όλου του προσφερόμενου τότε καλλιτεχνικού δυναμικού.
Aισιόδοξη επιμονή
H κλασική αρχαιολογία, είναι η επιστήμη της αισιοδοξίας. Γι’ αυτό , άλλωστε και δεν αποθαρρύνεται εύκολα μπροστά στην ασυνέχεια των δυσαναπλήρωτων κενών και στη σκοτεινιά των δυσεπίλυτων αινιγμάτων. Eίναι η επιστήμη της πεισματικής επιμονής που δεν εγκαταλείπει τον αγώνα, ανεξάρτητα απ τη δυσμένεια των συνθηκών και τα μεγέθη των φυσικών εμποδίων.
Mε τη βοήθεια των σχεδίων του Jacques Carrey, που αποτύπωσε ,ότι από τα γλυπτά του Παρθενώνα σωζόταν σε καλή κατάσταση πριν από την ανατίναξη του Mοροζίνη και με τις συνεχείς ανακαλύψεις νέων θραυσμάτων πάνω και γύρω από το βράχο της Aκρόπολης, ο γλυπτικός διάκοσμος του ναού θα ξαναβρεί σταδιακά την πληρότητα της αρχικής του εικόνας.
Aισιόδοξη επιμονή
H κλασική αρχαιολογία, είναι η επιστήμη της αισιοδοξίας. Γι’ αυτό , άλλωστε και δεν αποθαρρύνεται εύκολα μπροστά στην ασυνέχεια των δυσαναπλήρωτων κενών και στη σκοτεινιά των δυσεπίλυτων αινιγμάτων. Eίναι η επιστήμη της πεισματικής επιμονής που δεν εγκαταλείπει τον αγώνα, ανεξάρτητα απ τη δυσμένεια των συνθηκών και τα μεγέθη των φυσικών εμποδίων.
Mε τη βοήθεια των σχεδίων του Jacques Carrey, που αποτύπωσε ,ότι από τα γλυπτά του Παρθενώνα σωζόταν σε καλή κατάσταση πριν από την ανατίναξη του Mοροζίνη και με τις συνεχείς ανακαλύψεις νέων θραυσμάτων πάνω και γύρω από το βράχο της Aκρόπολης, ο γλυπτικός διάκοσμος του ναού θα ξαναβρεί σταδιακά την πληρότητα της αρχικής του εικόνας.
ΤΟ ΘΑΥΜΑ ΚΑΙ ΤΑ ΠΑΡΑΞΕΝΑ ΜΥΣΤΙΚΑ ΤΟΥ
Υπάρχει ένας λόφος πολύ χαμηλός στο λεκανοπέδιο της Αττικής, που δεν δείχνει και ιδιαίτερα σπουδαίος. Κάτι όμως τον κάνει και ξεχωρίζει, πάνω του είναι χτισμένο το μεγαλύτερο αρχιτεκτονικό δημιούργημα, όχι μόνο ολόκληρης της αρχαίας ελληνικής αρχιτεκτονικής, όχι μόνο ολόκληρου ίσως του αρχαίου κόσμου αλλά και του σύγχρονου. Η Ακρόπολη με τον Παρθενώνα. Ο Παρθενώνας είναι το τελειότερο οικοδόμημα όλων των εποχών, όπως έχουν παραδεχτεί όλοι οι αρχιτέκτονες παγκοσμίως.
Γιατί όμως και από τι ξεχωρίζει αυτό το οικοδόμημα; Οι λεπτομέρειες και τα μεγάλα μυστικά του, ήταν... γνωστά στον ευρύτερο κόσμο της αρχαιότητας. Θα μπορούσαν σήμερα να γίνουν γνωστά ώστε να κατασκευαστεί ένας πανομοιότυπος Παρθενώνας; Πώς οι άνθρωποι εκείνης της εποχής κατείχαν όλες αυτές τις γνώσεις και πώς μπόρεσαν να τις εφαρμόσουν; Υπάρχουν πάρα πολλά αινίγματα από τα οποία, ελάχιστα εξηγούνται.
Σύγχρονοι επιστήμονες, έχουν παραδεχτεί πως ακόμα και με τα σύγχρονα μέσα και τα μηχανήματα που διαθέτουμε, είναι πρακτικά αδύνατον να μπορέσει να ξαναφτιαχτεί το ίδιο κτίσμα με τις ίδιες λεπτομέρειες!
Ο Παρθενώνας οικοδομήθηκε μεταξύ των ετών 447-438 π.Χ. Ο αρχιτέκτονας ήταν ο Ικτίνος και ο βοηθός του ο Καλλικράτης. Ο ρυθμός του ναού είναι ο δωρικός. Περιβάλλεται από μία κιονοστοιχία με οκτώ κίονες κατά πλάτος και δεκαεπτά κατά μήκος, μετρώντας τους γωνιακούς δύο φορές.
Ο ναός, με την κύρια είσοδο του, βλέπει ανατολικά. Το εσωτερικό μήκος του είναι 100 αττικά πόδια, δηλαδή 30,80 μέτρα. Μέσα σε αυτά τα νούμερα εκφράζονται καταπληκτικές αναλογίες! Ο αττικός πους (πόδι) είναι 0,30803 μέτρα ή αλλιώς 1/2Φ, όπου το Φ = 1,61803 εκφράζει την Χρυσή Τομή. Ο Χρυσός Αριθμός Φ ή αλλιώς ο αριθμός 1,618 συναντάται συχνά στη φύση, στις αναλογίες του προσώπου μας, του σώματός μας, στα λουλούδια και στα φυτά, στην Τέχνη, στους ζωντανούς οργανισμούς, στα κοχύλια, στις κυψέλες των μελισσών και σε πλήθος άλλα πολλά, ακόμα και στη δομή του σύμπαντος και στις τροχιές των πλανητών…
Η Χρυσή Τομή συνεπώς, είναι ένας από τους μέγιστους κανόνες για να εκφραστεί το Ωραίο. Το Ωραίο υπόκειται πάντα σε αυτούς τους κανόνες, γι’ αυτό και η επιστήμη της Αισθητικής σαφώς και ορθότατα ορίζει και διδάσκει πως υπάρχει αντικειμενικά Ωραίο, το οποίο τείνει πάντα στον χρυσό αριθμό Φ, (1,618) και ξεχάστε την λαϊκίστικη και ανόητη φιλοσοφία πως το Ωραίο είναι υποκειμενική υπόθεση και προσωπική αντίληψη του καθενός! Όσο δε περισσότερο οι αναλογίες πλησιάζουν προς τον αριθμό 1,618 τόσο πιο ωραίο είναι το δημιούργημα.
Η τελευταία αριστερή και δεξιά απόσταση μεταξύ των κιόνων, (ανατολική πλευρά) είναι μικρότερη από τις άλλες που είναι μεταξύ τους ίσες. Μέσα στον Παρθενώνα, όμως, στην κάθε αναλογία του, θα συναντήσουμε και κάτι άλλο: Την ακολουθία Φιμπονάτσι (Fibonacci). Δηλαδή την ακολουθία στην οποία ο κάθε αριθμός είναι ίσος με το άθροισμα των δύο προηγούμενων: 1, 1, 2, 3, 5, 8, 13, 21, 34, 55, 89, 144, κ.λ.π. (κάθε αριθμός είναι ίσος με το άθροισμα των δύο προηγούμενων).
Υπάρχει ένας λόφος πολύ χαμηλός στο λεκανοπέδιο της Αττικής, που δεν δείχνει και ιδιαίτερα σπουδαίος. Κάτι όμως τον κάνει και ξεχωρίζει, πάνω του είναι χτισμένο το μεγαλύτερο αρχιτεκτονικό δημιούργημα, όχι μόνο ολόκληρης της αρχαίας ελληνικής αρχιτεκτονικής, όχι μόνο ολόκληρου ίσως του αρχαίου κόσμου αλλά και του σύγχρονου. Η Ακρόπολη με τον Παρθενώνα. Ο Παρθενώνας είναι το τελειότερο οικοδόμημα όλων των εποχών, όπως έχουν παραδεχτεί όλοι οι αρχιτέκτονες παγκοσμίως.
Γιατί όμως και από τι ξεχωρίζει αυτό το οικοδόμημα; Οι λεπτομέρειες και τα μεγάλα μυστικά του, ήταν... γνωστά στον ευρύτερο κόσμο της αρχαιότητας. Θα μπορούσαν σήμερα να γίνουν γνωστά ώστε να κατασκευαστεί ένας πανομοιότυπος Παρθενώνας; Πώς οι άνθρωποι εκείνης της εποχής κατείχαν όλες αυτές τις γνώσεις και πώς μπόρεσαν να τις εφαρμόσουν; Υπάρχουν πάρα πολλά αινίγματα από τα οποία, ελάχιστα εξηγούνται.
Σύγχρονοι επιστήμονες, έχουν παραδεχτεί πως ακόμα και με τα σύγχρονα μέσα και τα μηχανήματα που διαθέτουμε, είναι πρακτικά αδύνατον να μπορέσει να ξαναφτιαχτεί το ίδιο κτίσμα με τις ίδιες λεπτομέρειες!
Ο Παρθενώνας οικοδομήθηκε μεταξύ των ετών 447-438 π.Χ. Ο αρχιτέκτονας ήταν ο Ικτίνος και ο βοηθός του ο Καλλικράτης. Ο ρυθμός του ναού είναι ο δωρικός. Περιβάλλεται από μία κιονοστοιχία με οκτώ κίονες κατά πλάτος και δεκαεπτά κατά μήκος, μετρώντας τους γωνιακούς δύο φορές.
Ο ναός, με την κύρια είσοδο του, βλέπει ανατολικά. Το εσωτερικό μήκος του είναι 100 αττικά πόδια, δηλαδή 30,80 μέτρα. Μέσα σε αυτά τα νούμερα εκφράζονται καταπληκτικές αναλογίες! Ο αττικός πους (πόδι) είναι 0,30803 μέτρα ή αλλιώς 1/2Φ, όπου το Φ = 1,61803 εκφράζει την Χρυσή Τομή. Ο Χρυσός Αριθμός Φ ή αλλιώς ο αριθμός 1,618 συναντάται συχνά στη φύση, στις αναλογίες του προσώπου μας, του σώματός μας, στα λουλούδια και στα φυτά, στην Τέχνη, στους ζωντανούς οργανισμούς, στα κοχύλια, στις κυψέλες των μελισσών και σε πλήθος άλλα πολλά, ακόμα και στη δομή του σύμπαντος και στις τροχιές των πλανητών…
Η Χρυσή Τομή συνεπώς, είναι ένας από τους μέγιστους κανόνες για να εκφραστεί το Ωραίο. Το Ωραίο υπόκειται πάντα σε αυτούς τους κανόνες, γι’ αυτό και η επιστήμη της Αισθητικής σαφώς και ορθότατα ορίζει και διδάσκει πως υπάρχει αντικειμενικά Ωραίο, το οποίο τείνει πάντα στον χρυσό αριθμό Φ, (1,618) και ξεχάστε την λαϊκίστικη και ανόητη φιλοσοφία πως το Ωραίο είναι υποκειμενική υπόθεση και προσωπική αντίληψη του καθενός! Όσο δε περισσότερο οι αναλογίες πλησιάζουν προς τον αριθμό 1,618 τόσο πιο ωραίο είναι το δημιούργημα.
Η τελευταία αριστερή και δεξιά απόσταση μεταξύ των κιόνων, (ανατολική πλευρά) είναι μικρότερη από τις άλλες που είναι μεταξύ τους ίσες. Μέσα στον Παρθενώνα, όμως, στην κάθε αναλογία του, θα συναντήσουμε και κάτι άλλο: Την ακολουθία Φιμπονάτσι (Fibonacci). Δηλαδή την ακολουθία στην οποία ο κάθε αριθμός είναι ίσος με το άθροισμα των δύο προηγούμενων: 1, 1, 2, 3, 5, 8, 13, 21, 34, 55, 89, 144, κ.λ.π. (κάθε αριθμός είναι ίσος με το άθροισμα των δύο προηγούμενων).
Επιπλέον, ο λόγος δύο διαδοχικών αριθμών της ακολουθίας τείνει προς την αποκαλούμενη Χρυσή Τομή, ή Χρυσή αναλογία, ή Αριθμό Φ. Αλλά επίσης, μέσα στον Παρθενώνα, υπάρχει βέβαια και ο αριθμός π = 3,1416, ο οποίος εκφράζεται και αυτός με τη σχέση 2Φ2/10 = 0,5236 μέτρα. Οι έξι πήχεις μας δίνουν π = 3,1416, Κι αν υποθέσουμε ότι όλα αυτά ήταν γνωστά, τι θα λέγατε εάν πούμε ότι μέσα στο τέλειο αυτό οικοδόμημα θα συναντήσουμε και το Νεπέριο αριθμό e = 2,72, που είναι περίπου ίσος με Φ2 = 2,61802;
Αυτοί οι τρεις αριθμοί, εμπεριέχονται σε όλη τη φύση, υπάρχουν σε όλη τη Δημιουργία, και τίποτα δεν μπορεί να λειτουργήσει χωρίς αυτά. Το αίνιγμα ωστόσο είναι μεγάλο: Γνώριζαν οι δημιουργοί του ναού αυτούς τους αριθμούς και τις μεταξύ τους σχέσεις, και πώς κατάφεραν να τους συμπεριλάβουν με τόση λεπτομέρεια και ακρίβεια σε ένα κτίριο;
Ο Παρθενώνας δεν έχει παράθυρα και αποτελεί αίνιγμα μεταξύ των αρχαιολόγων το πώς φωτιζόταν το εσωτερικό του σηκού. Υποστηρίζεται η άποψη ότι το φως έμπαινε από τη διάπλατα ανοιγμένη μεγάλη πόρτα, αν και αυτό είναι μάλλον αμφίβολο, διότι όταν ήταν κλειστή, ο νεωκόρος και οι λοιποί υπάλληλοι δεν θα μπορούσαν να κινηθούν μέσα σε αυτόν.
Η άποψη ότι χρησιμοποιούσαν πυρσούς δεν φαίνεται να ευσταθεί, καθώς δεν έχουν βρεθεί ανάλογα σημάδια αιθάλης. Γενικά επικρατεί η άποψη ότι στη στέγη υπήρχε κάποιο άνοιγμα, το οποίο ονομαζόταν «οπαίον», από όπου και εισερχόταν άπλετο φως. Αν δεν καταστρεφόταν η οροφή από το βλήμα του Μοροζίνι το 1669, όλα αυτά τα ερωτηματικά θα είχαν απαντηθεί.
Ο αρχαίος αυτός ναός δεν προσδιορίζεται από τον πέριξ χώρο, αλλά αντίθετα ο ναός είναι εκείνος που προσδιορίζει το χώρο με την ίδια του την εξωτερική εμφάνιση. Μοιάζει να ξεφυτρώνει μέσα από τη γη σαν να τον γέννησε ο βράχος πάνω στον οποίο πατάει, ή σαν να είναι θαυμαστή προέκταση του πετρώδους εδάφους.
Αυτό συμβαίνει διότι οι κίονες της περιστάσεως είναι τόσο «ζωντανοί», που δίνουν ρυθμό και κίνηση στο αρχιτεκτόνημα. Ο τρόπος και οι αποστάσεις των κιόνων δημιουργούν μια ξεχωριστή «προσωπικότητα» φωτοσκιάσεων, οι οποίες δίνουν στο θεατή την εντύπωση ότι κινούνται, ή ότι περπατούν.
Η στέγη του ναού, δίνει την αίσθηση ότι, παρά το τεράστιο βάρος της, ακουμπά πανάλαφρα στο όλο οικοδόμημα. Στην αρχιτεκτονική κατασκευή του Παρθενώνα δεν υπάρχει καμία ευθεία! Αντιθέτως, υπάρχουν ανεπαίσθητες καμπύλες και μάλιστα αδιόρατες, πού δίνουν όμως την εντύπωση ότι ο στυλοβάτης π.χ. είναι ευθύς και εντελώς επίπεδος. Ανάλογη είναι και η καμπύλη των επιστυλίων. Αυτό έγινε γιατί ο Ικτίνος προνόησε και έλαβε υπ’ όψιν του την φυσική ατέλεια του ανθρώπινου οφθαλμού. Έτσι δημιούργησε την οφθαλμαπάτη στον θεατή που κοιτάζει υπό ορισμένη γωνία τον Παρθενώνα, ότι ο ναός ανυψώνεται στον αέρα!
Οι κίονες, ως γνωστόν, υφίστανται μία εξόγκωση (η οποία καλείται «ένταση») στο μέσον περίπου του ύψους του κίονα. Εκείνο, που δεν είναι ιδιαίτερα γνωστό είναι πως οι άξονες των κιόνων, όπως και το επιστύλιο με το διάζωμα, έχουν μια ανεπαίσθητη κλίση προς τα μέσα, που κυμαίνεται από 0,9 έως 8,6 εκατοστά. Αυτή η κλίση σημαίνει πως αν προεκτείνουμε νοερά τους άξονες προς τα πάνω, θα ενωθούν σε κάποιο ύψος σχηματίζοντας μια νοερή πυραμίδα.
Το σημείο πάνω από την κρηπίδα, στο οποίο ενώνονται οι νοερές πλευρικές επεκτάσεις των κιονοστοιχιών του Παρθενώνα, είναι περίπου 1.852 μέτρα. Αυτό, μετρούμενο, βρέθηκε ότι δημιουργεί έναν όγκο, που είναι περίπου ο μισός της Μεγάλης Πυραμίδας του Χέοπα στην Γκίζα της Αιγύπτου!
Ένα άλλο μυστικό, που όμως κατείχαν οι αρχιτέκτονές του, είναι η αντισεισμικότητα του κτίσματος. Εδώ και είκοσι πέντε αιώνες από την δημιουργία του δεν έχει πέσει, δεν έχει υποστεί καμία βλάβη, δεν έχει καμία ρωγμή. Αυτό οφείλεται κατά ένα λόγο στην πυραμιδοειδή κατασκευή του, όμως, ο Παρθενώνας, στην πραγματικότητα δεν «πατάει» απ’ ευθείας στο χώμα του γυμνού βράχου, αλλά πάνω σε χτισμένους κυβόλιθους, οι οποίοι είναι γερά δεμένοι και χτισμένοι επάνω στο βράχο διαμορφώνοντας με αυτόν τον τρόπο ένα επίπεδο.
Υπάρχουν όμως και πλήθος από μη επιστημονικά παράδοξα:
1. Η αινιγματική κατασκευή του ναού, κρύβει κι άλλα μυστικά. Κατά τη διάρκεια της ημέρας και όταν υπάρχει ηλιοφάνεια, όλες τις εποχές του χρόνου, οι προσπίπτουσες σκιές που δημιουργούνται πέριξ του ναού, δείχνουν κάποια συγκεκριμένα σημεία του πλανήτη. Για το ποια σημεία δείχνουν και το τι σημαίνουν, ερευνάται από ειδικούς και μη ειδικούς. Οι απόψεις είναι πολλές και δεν συγκλίνουν μεταξύ τους.
2. Αν κάποιος σταθεί στους πρόποδες της Ακρόπολης, επί της οδού Επιμενίδου και στρέψει προς τα πάνω το βλέμμα του, θα δει να διαγράφεται στο βράχο ένα… πρόσωπο! Από μια ορισμένη οπτική γωνία, παρουσιάζεται ένα ανδρικό κεφάλι, στο οποίο ξεχωρίζουν τα υπερόφρυα τόξα, τα μάτια, η μύτη και το στόμα. Το πρόσωπο μοιάζει σαν να κοιμάται (εντελώς τυχαία (;) η οδός θυμίζει τον Επιμενίδειο ύπνο) και φαίνεται ευδιάκριτα στο φόντο του ουρανού. Παιγνίδι της φύσης, ή σκαλισμένο επίτηδες στο βράχο;
Πάντως στην αρχαία Ελληνική γραμματεία δεν υπάρχουν καν ενδείξεις για κάτι παρόμοιο που να σκαλίστηκε από ανθρώπινο χέρι σ’ αυτό το σημείο του ιερού βράχου. Ούτε ο Παυσανίας κάνει κάποια αναφορά… Στην ίδια πλευρά υπάρχουν κι άλλες δώδεκα φιγούρες, οι οποίες δεν είναι τόσο εμφανείς, ωστόσο όμως με προσεκτική παρατήρηση θα «αναδυθούν» από τον βράχο.
3. Πολλοί παρατηρητές έχουν διαπιστώσει πως πάνω από την Ακρόπολη και την ευρύτερη περιοχή του λεκανοπεδίου των Αθηνών, κατά τη διάρκεια του χειμώνα, πολύ σπάνια εμφανίζονται μαύρα και «βαριά» σύννεφα, όσο σε άλλες περιοχές γύρω από το λεκανοπέδιο και την υπόλοιπη Αττική. Ειδικά άνοιξη και καλοκαίρι, ο ουρανός πάνω από την Ακρόπολη είναι πεντακάθαρος!
Μάλιστα οι αρχαίοι Αθηναίοι, όταν ήθελαν να κάνουν μία πρόγνωση για τον καιρό, δεν κοιτούσαν ποτέ τον ουρανό πάνω από τον ναό, αλλά έστρεφαν το βλέμμα τους προς τις Αχαρνές, στην Πάρνηθα και σε συγκεκριμένο σημείο της, την κορυφή που φέρει το όνομα Άρμα. Το Άρμα λειτουργούσε σαν Μετεωρολογική Υπηρεσία γιατί εάν τα σύννεφα βάραιναν εκεί, προμηνυόταν άφθονη βροχή, ή εάν αυτό το κομμάτι του ουρανού ήταν γαλάζιο, καλοκαιρία.
Επίσης, η επίκληση προς τον Δία για βροχή, γινόταν μόνο με το βλέμμα στραμμένο προς την κορυφή της Πάρνηθας Άρμα, και όχι προς την Ακρόπολη. «Ύσον, ύσον φίλε Ζεύ, κατά της αρούρης των Αθηναίων και των πεδίων…» (Ρίξε βροχή, ρίξε βροχή φίλε Δία, πάνω στους αγρούς των Αθηναίων και στον κάμπο).
4. Μέσα στον Παρθενώνα, ο ναός της θεάς Αθηνάς, ακολουθεί τον άξονα Ανατολής-Δύσης. Την τελευταία λοιπόν ημέρα της γιορτής των Παναθηναίων (στα γενέθλια δηλαδή της θεάς Αθηνάς, την 28η Εκατομβαιώνος – 25 Ιουλίου) συνέβαινε ένα συγκλονιστικό γεγονός: Λίγο πριν ανατείλει ο ήλιος, ανέτειλε ο Σείριος, το υπέρλαμπρο άστρο του αστερισμού του Κυνός, και έλουζε κυριολεκτικά με το φως του το χρυσελεφάντινο άγαλμα της θεάς.
Με ή χωρίς μυστικά, η Ακρόπολη, ήταν, είναι και θα παραμένει πάντα το πιο γοητευτικό, το πιο λαμπρό, το πιο υπέροχο μνημείο του κόσμου.
Αυτοί οι τρεις αριθμοί, εμπεριέχονται σε όλη τη φύση, υπάρχουν σε όλη τη Δημιουργία, και τίποτα δεν μπορεί να λειτουργήσει χωρίς αυτά. Το αίνιγμα ωστόσο είναι μεγάλο: Γνώριζαν οι δημιουργοί του ναού αυτούς τους αριθμούς και τις μεταξύ τους σχέσεις, και πώς κατάφεραν να τους συμπεριλάβουν με τόση λεπτομέρεια και ακρίβεια σε ένα κτίριο;
Ο Παρθενώνας δεν έχει παράθυρα και αποτελεί αίνιγμα μεταξύ των αρχαιολόγων το πώς φωτιζόταν το εσωτερικό του σηκού. Υποστηρίζεται η άποψη ότι το φως έμπαινε από τη διάπλατα ανοιγμένη μεγάλη πόρτα, αν και αυτό είναι μάλλον αμφίβολο, διότι όταν ήταν κλειστή, ο νεωκόρος και οι λοιποί υπάλληλοι δεν θα μπορούσαν να κινηθούν μέσα σε αυτόν.
Η άποψη ότι χρησιμοποιούσαν πυρσούς δεν φαίνεται να ευσταθεί, καθώς δεν έχουν βρεθεί ανάλογα σημάδια αιθάλης. Γενικά επικρατεί η άποψη ότι στη στέγη υπήρχε κάποιο άνοιγμα, το οποίο ονομαζόταν «οπαίον», από όπου και εισερχόταν άπλετο φως. Αν δεν καταστρεφόταν η οροφή από το βλήμα του Μοροζίνι το 1669, όλα αυτά τα ερωτηματικά θα είχαν απαντηθεί.
Ο αρχαίος αυτός ναός δεν προσδιορίζεται από τον πέριξ χώρο, αλλά αντίθετα ο ναός είναι εκείνος που προσδιορίζει το χώρο με την ίδια του την εξωτερική εμφάνιση. Μοιάζει να ξεφυτρώνει μέσα από τη γη σαν να τον γέννησε ο βράχος πάνω στον οποίο πατάει, ή σαν να είναι θαυμαστή προέκταση του πετρώδους εδάφους.
Αυτό συμβαίνει διότι οι κίονες της περιστάσεως είναι τόσο «ζωντανοί», που δίνουν ρυθμό και κίνηση στο αρχιτεκτόνημα. Ο τρόπος και οι αποστάσεις των κιόνων δημιουργούν μια ξεχωριστή «προσωπικότητα» φωτοσκιάσεων, οι οποίες δίνουν στο θεατή την εντύπωση ότι κινούνται, ή ότι περπατούν.
Η στέγη του ναού, δίνει την αίσθηση ότι, παρά το τεράστιο βάρος της, ακουμπά πανάλαφρα στο όλο οικοδόμημα. Στην αρχιτεκτονική κατασκευή του Παρθενώνα δεν υπάρχει καμία ευθεία! Αντιθέτως, υπάρχουν ανεπαίσθητες καμπύλες και μάλιστα αδιόρατες, πού δίνουν όμως την εντύπωση ότι ο στυλοβάτης π.χ. είναι ευθύς και εντελώς επίπεδος. Ανάλογη είναι και η καμπύλη των επιστυλίων. Αυτό έγινε γιατί ο Ικτίνος προνόησε και έλαβε υπ’ όψιν του την φυσική ατέλεια του ανθρώπινου οφθαλμού. Έτσι δημιούργησε την οφθαλμαπάτη στον θεατή που κοιτάζει υπό ορισμένη γωνία τον Παρθενώνα, ότι ο ναός ανυψώνεται στον αέρα!
Οι κίονες, ως γνωστόν, υφίστανται μία εξόγκωση (η οποία καλείται «ένταση») στο μέσον περίπου του ύψους του κίονα. Εκείνο, που δεν είναι ιδιαίτερα γνωστό είναι πως οι άξονες των κιόνων, όπως και το επιστύλιο με το διάζωμα, έχουν μια ανεπαίσθητη κλίση προς τα μέσα, που κυμαίνεται από 0,9 έως 8,6 εκατοστά. Αυτή η κλίση σημαίνει πως αν προεκτείνουμε νοερά τους άξονες προς τα πάνω, θα ενωθούν σε κάποιο ύψος σχηματίζοντας μια νοερή πυραμίδα.
Το σημείο πάνω από την κρηπίδα, στο οποίο ενώνονται οι νοερές πλευρικές επεκτάσεις των κιονοστοιχιών του Παρθενώνα, είναι περίπου 1.852 μέτρα. Αυτό, μετρούμενο, βρέθηκε ότι δημιουργεί έναν όγκο, που είναι περίπου ο μισός της Μεγάλης Πυραμίδας του Χέοπα στην Γκίζα της Αιγύπτου!
Ένα άλλο μυστικό, που όμως κατείχαν οι αρχιτέκτονές του, είναι η αντισεισμικότητα του κτίσματος. Εδώ και είκοσι πέντε αιώνες από την δημιουργία του δεν έχει πέσει, δεν έχει υποστεί καμία βλάβη, δεν έχει καμία ρωγμή. Αυτό οφείλεται κατά ένα λόγο στην πυραμιδοειδή κατασκευή του, όμως, ο Παρθενώνας, στην πραγματικότητα δεν «πατάει» απ’ ευθείας στο χώμα του γυμνού βράχου, αλλά πάνω σε χτισμένους κυβόλιθους, οι οποίοι είναι γερά δεμένοι και χτισμένοι επάνω στο βράχο διαμορφώνοντας με αυτόν τον τρόπο ένα επίπεδο.
Υπάρχουν όμως και πλήθος από μη επιστημονικά παράδοξα:
1. Η αινιγματική κατασκευή του ναού, κρύβει κι άλλα μυστικά. Κατά τη διάρκεια της ημέρας και όταν υπάρχει ηλιοφάνεια, όλες τις εποχές του χρόνου, οι προσπίπτουσες σκιές που δημιουργούνται πέριξ του ναού, δείχνουν κάποια συγκεκριμένα σημεία του πλανήτη. Για το ποια σημεία δείχνουν και το τι σημαίνουν, ερευνάται από ειδικούς και μη ειδικούς. Οι απόψεις είναι πολλές και δεν συγκλίνουν μεταξύ τους.
2. Αν κάποιος σταθεί στους πρόποδες της Ακρόπολης, επί της οδού Επιμενίδου και στρέψει προς τα πάνω το βλέμμα του, θα δει να διαγράφεται στο βράχο ένα… πρόσωπο! Από μια ορισμένη οπτική γωνία, παρουσιάζεται ένα ανδρικό κεφάλι, στο οποίο ξεχωρίζουν τα υπερόφρυα τόξα, τα μάτια, η μύτη και το στόμα. Το πρόσωπο μοιάζει σαν να κοιμάται (εντελώς τυχαία (;) η οδός θυμίζει τον Επιμενίδειο ύπνο) και φαίνεται ευδιάκριτα στο φόντο του ουρανού. Παιγνίδι της φύσης, ή σκαλισμένο επίτηδες στο βράχο;
Πάντως στην αρχαία Ελληνική γραμματεία δεν υπάρχουν καν ενδείξεις για κάτι παρόμοιο που να σκαλίστηκε από ανθρώπινο χέρι σ’ αυτό το σημείο του ιερού βράχου. Ούτε ο Παυσανίας κάνει κάποια αναφορά… Στην ίδια πλευρά υπάρχουν κι άλλες δώδεκα φιγούρες, οι οποίες δεν είναι τόσο εμφανείς, ωστόσο όμως με προσεκτική παρατήρηση θα «αναδυθούν» από τον βράχο.
3. Πολλοί παρατηρητές έχουν διαπιστώσει πως πάνω από την Ακρόπολη και την ευρύτερη περιοχή του λεκανοπεδίου των Αθηνών, κατά τη διάρκεια του χειμώνα, πολύ σπάνια εμφανίζονται μαύρα και «βαριά» σύννεφα, όσο σε άλλες περιοχές γύρω από το λεκανοπέδιο και την υπόλοιπη Αττική. Ειδικά άνοιξη και καλοκαίρι, ο ουρανός πάνω από την Ακρόπολη είναι πεντακάθαρος!
Μάλιστα οι αρχαίοι Αθηναίοι, όταν ήθελαν να κάνουν μία πρόγνωση για τον καιρό, δεν κοιτούσαν ποτέ τον ουρανό πάνω από τον ναό, αλλά έστρεφαν το βλέμμα τους προς τις Αχαρνές, στην Πάρνηθα και σε συγκεκριμένο σημείο της, την κορυφή που φέρει το όνομα Άρμα. Το Άρμα λειτουργούσε σαν Μετεωρολογική Υπηρεσία γιατί εάν τα σύννεφα βάραιναν εκεί, προμηνυόταν άφθονη βροχή, ή εάν αυτό το κομμάτι του ουρανού ήταν γαλάζιο, καλοκαιρία.
Επίσης, η επίκληση προς τον Δία για βροχή, γινόταν μόνο με το βλέμμα στραμμένο προς την κορυφή της Πάρνηθας Άρμα, και όχι προς την Ακρόπολη. «Ύσον, ύσον φίλε Ζεύ, κατά της αρούρης των Αθηναίων και των πεδίων…» (Ρίξε βροχή, ρίξε βροχή φίλε Δία, πάνω στους αγρούς των Αθηναίων και στον κάμπο).
4. Μέσα στον Παρθενώνα, ο ναός της θεάς Αθηνάς, ακολουθεί τον άξονα Ανατολής-Δύσης. Την τελευταία λοιπόν ημέρα της γιορτής των Παναθηναίων (στα γενέθλια δηλαδή της θεάς Αθηνάς, την 28η Εκατομβαιώνος – 25 Ιουλίου) συνέβαινε ένα συγκλονιστικό γεγονός: Λίγο πριν ανατείλει ο ήλιος, ανέτειλε ο Σείριος, το υπέρλαμπρο άστρο του αστερισμού του Κυνός, και έλουζε κυριολεκτικά με το φως του το χρυσελεφάντινο άγαλμα της θεάς.
Με ή χωρίς μυστικά, η Ακρόπολη, ήταν, είναι και θα παραμένει πάντα το πιο γοητευτικό, το πιο λαμπρό, το πιο υπέροχο μνημείο του κόσμου.
Η ΠΟΡΕΙΑ ΤΟΥ ΠΑΕΘΕΝΩΝΑ ΕΩΣ ΣΗΜΕΡΑ
Αναμφισβήτητο δημιούργημα τέχνης και πρότυπο αρχιτεκτονικής, ο Παρθενώνας, εκπροσωπεί απολύτως την πολλαπλή πολιτική, κοινωνική και πολιτιστική ανάπτυξη του Xρυσού Aιώνα. H σφραγίδα της μεγαλοφυΐας μπορεί να εκπροσωπείται απ τον Φειδία και τον Iκτίνο,
αλλά είναι και η γενικότερη εικόνα και ένδειξη ενός ολόκληρου λαού.
Tόποι ιεροί, μνημεία ιστορικά και θρησκευτικά υπάρχουν πολλά. Kανένα πως η Aκρόπολη. H πνευματική έξαρση της δημιουργίας των Eλλήνων χαρακτηρίζεται από μία αξεπέραστη εφηβική ζωντάνια και είναι αυτή η κυριότερη αιτία που ο Παρθενώνας συγκινεί αδιάλειπτα μέχρι τις ημέρες μας. Eίναι αυτή η έξαρση που κατορθώνει να τελειώσει το ωραιότερο κτίσμα του κόσμου σε εννέα χρόνια και να το παραδώσει στην αιωνιότητα. Προϊόν μιας σπάνιας συνεργασίας θεών και ανθρώπων δεν περιείχε λάθος..
.
Eξιστορείται στις επόμενες σελίδες η πορεία που ακολούθησε ο Παρθενώνας απ αρχιτεκτονικής πλευράς. Mια έξοχη αφήγηση της μεταφοράς των πεντελικών μαρμάρων, ο γλυπτικός διάκοσμος, απεικονίσεις και έρευνες περιηγητών, οι εργασίες αποκαταστάσεως και πως αντικρίζουν τοNαό τα μάτια των ποιητών. Oφείλεται ιδιαίτερη αναφορά (και θαυμασμός) στο γιγάντιο έργο που συντελείται για την συντήρηση και αποκατάσταση της Aκροπόλεως, αφού τα όσα έχει υποστεί είναι πολλά και τραγικά.
Eξιστορείται στις επόμενες σελίδες η πορεία που ακολούθησε ο Παρθενώνας απ αρχιτεκτονικής πλευράς. Mια έξοχη αφήγηση της μεταφοράς των πεντελικών μαρμάρων, ο γλυπτικός διάκοσμος, απεικονίσεις και έρευνες περιηγητών, οι εργασίες αποκαταστάσεως και πως αντικρίζουν τοNαό τα μάτια των ποιητών. Oφείλεται ιδιαίτερη αναφορά (και θαυμασμός) στο γιγάντιο έργο που συντελείται για την συντήρηση και αποκατάσταση της Aκροπόλεως, αφού τα όσα έχει υποστεί είναι πολλά και τραγικά.
Στον κύκλο των καταστροφών συγκαταλέγονται τα έργα και οι ημέρες ενός Bρετανού τζέντλεμαν. Στρατηγός και διπλωμάτης ο Λόρδος Eλγιν θα «ξερριζώσει» από τα αετώματα του Mεγάλου ναού πολύτιμα αγάλματα. Στην πράξη αυτή μπορεί βεβαίως να αναγνωρισθεί μια σχετική αβρότητα. Συνεργοί του ευπατρίδη εκείνου, ένας ζωγράφος, δύο αρχιτέκτοντες, ένας αρχαιολόγος. Πολιτισμένη βαρβαρότητα...
Eνα άλλο πρόβλημα που αφορά την Aκρόπολη είναι η ανέγερση του Mουσείου, μια ιστορία που σε λίγο θα αγγίζει τα όρια ενός γραφειοκρατικού γεφυριού της Aρτας. Aν όμως, το έργο πραγματοποιηθεί, τότε και μόνον τα μάρμαρά μας θα βρουν την ασφάλεια που απαιτείται, τότε θα διαθέτουμε μεγαλύτερα επιχειρήματα για την ποια διεκδίκησή μας, τότε θα μπορούμε να υποστηρίξουμε ότι ναι μεν ελάχιστα οι Έλληνες δημιουργούμε πλέον αλλά, τουλάχιστον, δείχνουμε σεβασμό και συνέπεια στην αρχαία μας κληρονομιά.
Xρονολόγιο
- 566 π.X. Nέα οργάνωση του εορτασμού των Παναθηναίων – Nέος ναός της Aθηνάς.
- 510 π.X. Πτώση της Tυραννίας – Iδρυση της Δημοκρατίας.
- 490 π.X. Mάχη του Mαραθώνος – Πρώτος μαρμάρινος Παρθενών (Προπαρθενών).
- 485 π.X. Θάνατος του Δαρείου – Eνθρόνιση του Ξέρξου – Aρχή Θεμιστοκλέους – Eντατική ετοιμασία μεγάλου αθηναϊκού στόλου και αμυντικών έργων – Πιθανή διακοπή της ναοδομίας.
- 480 π.X. Δεύτερη περσική εισβολή – Kαταστροφή των Aθηνών – Kαταστροφή του ημιτελούς Προπαρθενώνος – Mάχη της Σαλαμίνος.
- 479 π.X. Mάχη στις Πλαταιές, εκδίωξη των Περσών – Oρκος των Πλαταιών – Bόρειο τείχος της Aκροπόλεως, με επιδεικτική ενσωμάτωση σ’ αυτό τμημάτων των κατεστραμμένων πωρίνων ναών και σπονδύλων των κιόνων του Προπαρθενώνος.
- 477 π.X. Iδρυση της Δηλιακής Συμμαχίας.
- 467 π.X. Mάχη στον Eυρυμέδοντα – Nότιο τείχος της Aκροπόλεως (Kιμώνειον).
- 461 π.X. Aρχή Περικλέους.
- 454 π.X. Mεταφορά του ταμείου της Δηλιακής Συμμαχίας στην Aθήνα.
- 451 π.X. Συνθήκη ειρήνης με τη Σπάρτη – Oργάνωση πανελληνίου συνεδρίου απ τον Περικλή.
- 449 π.X. Συνθήκη ειρήνης με την Περσία.
- 447 π.X. Eναρξη της οικοδομίας του Παρθενώνος, με χρήση και των μαρμάρων του Προπαρθενώνος.
- 438 π.X. Περάτωση της οικοδομίας του Παρθενώνος – Aφιέρωση του κολοσσιακού χρυσελεφάντινου αγάλματος της Aθηνάς Παρθένου.
- 432 π.X. Περάτωση και των τελευταίων γλυπτικών εργασιών στα αετώματα του Παρθενώνος.
- 431–404 π.X. Πελοποννησιακός πόλεμος.
- 426 π.X. Mέγας σεισμός.
- 377 π.X. Δεύτερη Δηλιακή Συμμαχία.
- 334 π.X. Mάχη στο Γρανικό – Aνάθεση πολυτελών περσικών ασπίδων στον Παρθενώνα.
- 307 π.X. Kατάληψη των Aθηνών από τον Δημήτριο τον Πολιορκητή, προσωρινή εγκατάσταση του Δημητρίου στον Παρθενώνα.
- 295 π.X. Aφαίρεση του χρυσού του αγάλματος και πιθανώς των πολυτελών ασπίδων απ τον τύραννο Λαχάρη.
- 230–220 περ. π.X. Mεγάλο περγαμηνό μνημείο του γαλατικού πολέμου νοτίως του
- Παρθενώνος.
- 200 π.X. Kαταστροφικές επιδρομές του Φιλίππου E΄
- 180–160 περ. π.X. Yψηλό περγαμηνό μνημείο στην ανατολική πλευρά του Παρθενώνος.
- 31π.X. Mεταφιέρωση του υψηλού περγαμηνού μνημείου στον Aύγουστο.
- 27–26 π.X. Nαός Pώμης και Aυγούστου έναντι του Παρθενώνος.
- 61 Aναθηματική επιγραφή τιμήσεως του Nέρωνος στην ανατολική όψη του Παρθενώνος, στα μεσοδιαστήματα των νεωτέρων πολυτελών ασπίδων. Kαθαίρεση της επιγραφής αμέσως μετά την πτώση του Nέρωνος (68).
- 267 Eπιδρομή των Eρούλων, καταστροφή του εσωτερικού του κτιρίου.
- 312-313 Eδικτον του Mεδιολάνου.
- 362-365 Iουλιανός, αυτοκράτωρ της Pώμης – Eπισκευή του εσωτερικού του Παρθενώνος.
- 395 Bησιγοτθική επιδρομή (Aλάριχος).
- 397 Aπαγόρευση της αρχαίας λατρείας.
- 402 - 410 Eρκούλιος, Yπαρχος του Iλλυρικού, προσπάθειες ανασυγκροτήσεως.
- 438 Codex Theodosianus, διατάγματος Θεοδοσίου B΄ για τους ειδωλολατρικούς ναούς και τον εξαγνισμό τους.
- 529 Aπαγόρευση της λειτουργίας των φιλοσοφικών σχολών.
- 6ος αι. Mετατροπή του Παρθενώνος σε χριστιανική εκκλησία, αφιερωμένη στην Παναγία: «Παναγία η Aθηνιώτισσα».
- 9ος αι. Προαγωγή της Eπισκοπής Aθηνών σε Aρχιεπισκοπή (πριν το 841).
- 10ος αι. Προαγωγή της Aρχιεπισκοπής Aθηνών σε Μητρόπολη (πριν το 981).
- 1018 Προσκύνημα του Bασιλείου B΄ στον Παρθενώνα.
- 12ος αι. Oικοδομική αναμόρφωση του χριστιανικού ναού επί μητροπολίτου Nικολάου του Aγιοθεοδωρίτου (1166 - 1175) και τοιχογράφηση, μάλλον επί μητροπολίτου Mιχαήλ Xωνιάτου (1175 - 1204).
- 1204 Φραγκική κατάκτηση.
- 1206 O Παρθενών λατινικός αρχιεπισκοπικός ναός.
- 1311 Kαταλανική κατάκτηση.
- 1388 Φλωρεντινή κατάκτηση.
- 1397 Eνετική κατάληψη.
- 1403 Φλωρεντινή ανακατάληψη.
- 1436 και 1444 Eπισκέψεις του Ciriaco de Pizzicolli di Ancona.
- 1456 Kατάκτηση της Aθήνας από τους Tούρκους.
- 1458 Kατάληψη της Aκροπόλεως τροπή του Παρθενώνος σε μουσουλμανικό τέμενος.
- 1645 - 1669 A΄ Tουρκοενετικός πόλεμος.
- 1685 Eναρξη του B΄ Tουρκοενετικού πολέμου.
- 1687 Eνετική πολιορκία Aκροπόλεως και ανατίναξη του Παρθενώνος.
- 1688 Eνετική εγκατάλειψη του κάστρου και επιστροφή των Tούρκων.
- 1821 - 1822 Eλληνική πολιορκία και κατάληψη της Aκροπόλεως.
- 1826- 1827 Tουρκική πολιορκία και ανακατάληψη της Aκροπόλεως.
- 1833 Παράδοση της Aκροπόλεως από τους Tούρκους στον ελληνικό στρατό .
- 1834 Παύση της στρατιωτικής λειτουργίας της Aκροπ λεως, έναρξη της αρχαιολογικής μέριμνας.
- 1834,1842-44, 1872, 1898 - 1902,
- 1911, 1913, 1922 - 1931, 1960,
- 1985 κ.ε. Έργα αναστηλώσεως και συντηρήσεως του μνημείου.
ΙΚΤΙΝΟΣ - ΚΑΛΛΙΚΡΑΤΗΣ
Ο Ικτίνος και ο Καλλικράτης ήταν οι δύο περίφημοι αρχιτέκτονες του δεύτερου μισού του 5ου π.Χ. αιώνα στην αρχαία Ελλάδα. Παρόλο που η φήμη τους ήταν μεγάλη, δεν έχουμε ιδιαίτερες αναφορές για τη γέννηση, τη ζωή και το θάνατο τους. Ωστόσο τα έργα τους, αιώνιες αποδείξεις της ζωής και της δράσης τους, μας μιλούν για αυτούς με τον τρόπο που τα χνάρια στην άμμο μιλούν για το μέγεθος του ανθρώπου που τα σχημάτισε. Οι ναοί και τα έργα που κατασκεύασαν ήταν μεγάλα, σε σημασία και τελειότητα.
Ο Ικτίνος και ο Καλλικράτης ήταν οι δύο περίφημοι αρχιτέκτονες του δεύτερου μισού του 5ου π.Χ. αιώνα στην αρχαία Ελλάδα. Παρόλο που η φήμη τους ήταν μεγάλη, δεν έχουμε ιδιαίτερες αναφορές για τη γέννηση, τη ζωή και το θάνατο τους. Ωστόσο τα έργα τους, αιώνιες αποδείξεις της ζωής και της δράσης τους, μας μιλούν για αυτούς με τον τρόπο που τα χνάρια στην άμμο μιλούν για το μέγεθος του ανθρώπου που τα σχημάτισε. Οι ναοί και τα έργα που κατασκεύασαν ήταν μεγάλα, σε σημασία και τελειότητα.
Ο Καλλικράτης εργάστηκε σε τέσσερα μεγάλα έργα της αρχαίας Αθήνας, σύμφωνα με αναφορές του Πλούταρχου: Στα Μακρά Τείχη της πόλης (460 – 450 π.Χ.), στην επιδιόρθωση τμήματος των περιφερειακών τειχών των Αθηνών, στην ανοικοδόμηση ναού, αφιερωμένου στην Άπτερο Νίκη στην Ακρόπολη, το 448 π.Χ. και τέλος, σύμφωνα με τον Πλούταρχο πάλι, συνεργάστηκε με τον Ικτίνο για την ανέγερση του Παρθενώνα.
Ο Ικτίνος υπήρξε σύγχρονος και στενός φίλος του μεγάλου γλύπτη Φειδία. Και οι δύο εργάστηκαν την εποχή του Περικλή. Σύμφωνα με το Βιτρούβιο, ο Ικτίνος συνέγραψε μαζί με τον Κάρπιο την τεχνική μελέτη «για τον Δωρικό ναό της Αθηνάς στην Αθήνα». Ο Ικτίνος αναφέρεται από τρεις Έλληνες συγγραφείς: το Στράβωνα, τον Παυσανία και τον Πλούταρχο. Ο Παυσανίας αναφέρει ότι έχτισε τον ναό του Επικούρειου Απόλλωνα στην Αρκαδία.
Ο Ικτίνος υπήρξε σύγχρονος και στενός φίλος του μεγάλου γλύπτη Φειδία. Και οι δύο εργάστηκαν την εποχή του Περικλή. Σύμφωνα με το Βιτρούβιο, ο Ικτίνος συνέγραψε μαζί με τον Κάρπιο την τεχνική μελέτη «για τον Δωρικό ναό της Αθηνάς στην Αθήνα». Ο Ικτίνος αναφέρεται από τρεις Έλληνες συγγραφείς: το Στράβωνα, τον Παυσανία και τον Πλούταρχο. Ο Παυσανίας αναφέρει ότι έχτισε τον ναό του Επικούρειου Απόλλωνα στην Αρκαδία.
Επίσης, στον Ικτίνο ανατέθηκε η κατασκευή του Τελεστηρίου της Δήμητρας στην Ελευσίνα και η κατασκευή του Παρθενώνα στην Ακρόπολη (μαζί με τον Καλλικράτη). Απ’ ότι φαίνεται ο Ικτίνος εγκατέλειψε την Αττική μετά την κατασκευή του Παρθενώνα. Πήγε στην Πελοπόννησο όπου έχτισε τον ναό του Επικούρειου Απόλλωνα.
Στη συνέχεια θα εξετάσουμε την αρχιτεκτονική των δύο σημαντικών ναών που προαναφέρθηκαν, επειδή στην κατασκευή τους συναντάμε πολλά στοιχεία τελειότητας, που φανερώνουν ότι οι δύο αρχιτέκτονες -και ειδικά ο Ικτίνος- κατείχαν πολύ ειδικές γνώσεις, που την εποχή εκείνη διδάσκονταν μόνο στις Σχολές Μυστηρίων. Είναι πολύ πιθανόν ο Ικτίνος και ο Καλλικράτης να είχαν μυηθεί στα Μυστήρια της Αιγύπτου, της Ελλάδας ή σε άλλα και μετά να εφάρμοσαν αυτές τις μυστικές, μυητικές, αρχαίες γνώσεις -όπως της σφαιρικότητας της γης- στην κατασκευή των ναών τους.
Το σίγουρο πάντως είναι ότι οι ναοί που κατασκεύασαν είναι φτιαγμένοι σαν μια μικροκοσμική εικόνα του τέλειου σύμπαντος. Με τον ίδιο τρόπο ο πολιτισμός της Αιγύπτου ήταν η γήινη εικόνα της ουράνιας Αιγύπτου, ενώνοντας έτσι ορατό και αόρατο με την κατασκευή των Πυραμίδων και τόσων άλλων ναών, που φαίνεται να φέρουν παρόμοια σημάδια τελειότητας με αυτά του Παρθενώνα.
Αλλά ας δούμε αναλυτικότερα τα στοιχεία:
Α) Ο ναός του Επικούρειου Απόλλωνα στις Βάσσες Αρκαδίας χτίστηκε από τον Ικτίνο με καθοδήγηση των Ιερέων των Δελφών μετά το 438 π.Χ. και έχει διαστάσεις 39,8x16,1 μέτρα. Στο ναό αυτό εφαρμόζονται για πρώτη φορά μαζί και οι τρεις αρχιτεκτονικοί ρυθμοί της αρχαίας Ελλάδας: Ιωνικός, Δωρικός, Κορινθιακός.
Το περίεργο είναι ότι ο προσανατολισμός του δεν ακολουθεί την αρχαία συνήθεια Ανατολής - Δύσης αλλά Βορρά - Νότου. Η είσοδος βρίσκεται στη βόρεια πλευρά, σαν να βλέπει στους Δελφούς ή καλύτερα σαν να βλέπει το Βορρά από όπου, σύμφωνα με τη μυθολογία, κατάγεται ο θεός Απόλλωνας και η ακολουθία του, οι υπερβόρειοι.
Το παράδοξο σ’ αυτό το ναό, όπως ανακάλυψε ο Στέλιος Πετράκης, είναι ότι είναι χτισμένος με τρόπο ώστε κάθε χρόνο να γλιστράει πάνω στην ειδική βάση του με γωνία 50.2 δευτερολέπτων της μοίρας (λόγω της κίνησης του άξονα της γης), στοχεύοντας πάντα στο ίδιο αστρικό σημείο (κατά πάσα πιθανότητα το Σείριο). Αυτό είναι ένα πολύ ειδικό επίτευγμα αρχιτεκτονικής και κατασκευής και απαιτούσε ειδικές γνώσεις αστρονομίας, που επίσης διδάσκονταν στα Μυστήρια.
Ο Ικτίνος επίσης έχτισε τον ναό αυτό με τρόπο ώστε οι κίονές του να περιστρέφονται, να ολισθαίνουν, αλλά να μην καταρρέουν. Οι τοίχοι του ναού αντιστέκονται στο σεισμό, σαν να είχαν πάχος 2,15 μ., ενώ είναι πολύ πιο λεπτές.
Β) Όσον αφορά τον Ιερό Βράχο της Ακρόπολης, το έτος 447 π.Χ. ο Ικτίνος και ο Καλλικράτης, με τη γενική επίβλεψη του Φειδία και του Περικλή, έκτισαν το νέο ναό της Αθηνάς Παρθένου, τον Παρθενώνα. Ο ρυθμός ήταν καθαρά Δωρικός, με ορθογώνιο σχήμα. Σύμφωνα με τις περισσότερες αναφορές, ο Ικτίνος έκανε τα σχέδια της Ακρόπολης και ο Καλλικράτης είχε την επίβλεψη των έργων. Ο ναός χτίστηκε πάνω στα θεμέλια του προηγούμενου που είχε κτιστεί επί Πεισιστράτου και τον είχαν καταστρέψει οι Πέρσες. Εννέα χρόνια χρειάστηκαν για την ανέγερση του ναού.
Όλα όσα έχουν ανακαλυφθεί για τον ναό αυτό, ίσως όμως και άλλα κρυμμένα από το πέπλο του χρόνου, μαρτυρούν ότι οι δημιουργοί του Παρθενώνα κατείχαν ξεχασμένες γνώσεις που τις εφάρμοσαν στην κατασκευή του. Ο Ικτίνος και ο Καλλικράτης κατασκεύασαν το ναό με ασύλληπτες λεπτομέρειες και με αυτό τον τρόπο τον μετέτρεψαν σε έναν οργανισμό παλλόμενο από εσωτερική ζωή.
Συγκεκριμένα, σε κάθε μέρος του ναού επικρατούσε ένα σύστημα αναλογίας σύμφωνα με τον κανόνα του Πολυγνώτου και όλες οι διαστάσεις είχαν μια δεδομένη σχέση με τη διάμετρο του κίονα. Κάθε κίονας είχε ελάχιστα μεγαλύτερη διάμετρο από τη βάση μέχρι τη μέση, λέπταινε προς την κορυφή και έκλινε προς το κέντρο της κιονοστοιχίας στην οποία ανήκε.
Στη συνέχεια θα εξετάσουμε την αρχιτεκτονική των δύο σημαντικών ναών που προαναφέρθηκαν, επειδή στην κατασκευή τους συναντάμε πολλά στοιχεία τελειότητας, που φανερώνουν ότι οι δύο αρχιτέκτονες -και ειδικά ο Ικτίνος- κατείχαν πολύ ειδικές γνώσεις, που την εποχή εκείνη διδάσκονταν μόνο στις Σχολές Μυστηρίων. Είναι πολύ πιθανόν ο Ικτίνος και ο Καλλικράτης να είχαν μυηθεί στα Μυστήρια της Αιγύπτου, της Ελλάδας ή σε άλλα και μετά να εφάρμοσαν αυτές τις μυστικές, μυητικές, αρχαίες γνώσεις -όπως της σφαιρικότητας της γης- στην κατασκευή των ναών τους.
Το σίγουρο πάντως είναι ότι οι ναοί που κατασκεύασαν είναι φτιαγμένοι σαν μια μικροκοσμική εικόνα του τέλειου σύμπαντος. Με τον ίδιο τρόπο ο πολιτισμός της Αιγύπτου ήταν η γήινη εικόνα της ουράνιας Αιγύπτου, ενώνοντας έτσι ορατό και αόρατο με την κατασκευή των Πυραμίδων και τόσων άλλων ναών, που φαίνεται να φέρουν παρόμοια σημάδια τελειότητας με αυτά του Παρθενώνα.
Αλλά ας δούμε αναλυτικότερα τα στοιχεία:
Α) Ο ναός του Επικούρειου Απόλλωνα στις Βάσσες Αρκαδίας χτίστηκε από τον Ικτίνο με καθοδήγηση των Ιερέων των Δελφών μετά το 438 π.Χ. και έχει διαστάσεις 39,8x16,1 μέτρα. Στο ναό αυτό εφαρμόζονται για πρώτη φορά μαζί και οι τρεις αρχιτεκτονικοί ρυθμοί της αρχαίας Ελλάδας: Ιωνικός, Δωρικός, Κορινθιακός.
Το περίεργο είναι ότι ο προσανατολισμός του δεν ακολουθεί την αρχαία συνήθεια Ανατολής - Δύσης αλλά Βορρά - Νότου. Η είσοδος βρίσκεται στη βόρεια πλευρά, σαν να βλέπει στους Δελφούς ή καλύτερα σαν να βλέπει το Βορρά από όπου, σύμφωνα με τη μυθολογία, κατάγεται ο θεός Απόλλωνας και η ακολουθία του, οι υπερβόρειοι.
Το παράδοξο σ’ αυτό το ναό, όπως ανακάλυψε ο Στέλιος Πετράκης, είναι ότι είναι χτισμένος με τρόπο ώστε κάθε χρόνο να γλιστράει πάνω στην ειδική βάση του με γωνία 50.2 δευτερολέπτων της μοίρας (λόγω της κίνησης του άξονα της γης), στοχεύοντας πάντα στο ίδιο αστρικό σημείο (κατά πάσα πιθανότητα το Σείριο). Αυτό είναι ένα πολύ ειδικό επίτευγμα αρχιτεκτονικής και κατασκευής και απαιτούσε ειδικές γνώσεις αστρονομίας, που επίσης διδάσκονταν στα Μυστήρια.
Ο Ικτίνος επίσης έχτισε τον ναό αυτό με τρόπο ώστε οι κίονές του να περιστρέφονται, να ολισθαίνουν, αλλά να μην καταρρέουν. Οι τοίχοι του ναού αντιστέκονται στο σεισμό, σαν να είχαν πάχος 2,15 μ., ενώ είναι πολύ πιο λεπτές.
Β) Όσον αφορά τον Ιερό Βράχο της Ακρόπολης, το έτος 447 π.Χ. ο Ικτίνος και ο Καλλικράτης, με τη γενική επίβλεψη του Φειδία και του Περικλή, έκτισαν το νέο ναό της Αθηνάς Παρθένου, τον Παρθενώνα. Ο ρυθμός ήταν καθαρά Δωρικός, με ορθογώνιο σχήμα. Σύμφωνα με τις περισσότερες αναφορές, ο Ικτίνος έκανε τα σχέδια της Ακρόπολης και ο Καλλικράτης είχε την επίβλεψη των έργων. Ο ναός χτίστηκε πάνω στα θεμέλια του προηγούμενου που είχε κτιστεί επί Πεισιστράτου και τον είχαν καταστρέψει οι Πέρσες. Εννέα χρόνια χρειάστηκαν για την ανέγερση του ναού.
Όλα όσα έχουν ανακαλυφθεί για τον ναό αυτό, ίσως όμως και άλλα κρυμμένα από το πέπλο του χρόνου, μαρτυρούν ότι οι δημιουργοί του Παρθενώνα κατείχαν ξεχασμένες γνώσεις που τις εφάρμοσαν στην κατασκευή του. Ο Ικτίνος και ο Καλλικράτης κατασκεύασαν το ναό με ασύλληπτες λεπτομέρειες και με αυτό τον τρόπο τον μετέτρεψαν σε έναν οργανισμό παλλόμενο από εσωτερική ζωή.
Συγκεκριμένα, σε κάθε μέρος του ναού επικρατούσε ένα σύστημα αναλογίας σύμφωνα με τον κανόνα του Πολυγνώτου και όλες οι διαστάσεις είχαν μια δεδομένη σχέση με τη διάμετρο του κίονα. Κάθε κίονας είχε ελάχιστα μεγαλύτερη διάμετρο από τη βάση μέχρι τη μέση, λέπταινε προς την κορυφή και έκλινε προς το κέντρο της κιονοστοιχίας στην οποία ανήκε.
Έτσι οι κίονες του Παρθενώνα δεν είναι κάθετοι, αλλά αν προεκταθούν νοητά προς τα επάνω, συναντιούνται στα 1852 μέτρα, σχηματίζοντας μια νοητή πυραμίδα, η κορυφή της οποίας βρίσκεται ακριβώς πάνω από το σημείο που ήταν τοποθετημένο το κεφάλι του αγάλματος της Αθηνάς. Κατά περίεργο επίσης τρόπο, ο όγκος της πυραμίδας αυτής είναι ο μισός της μεγάλης πυραμίδας της Αιγύπτου, 45.000.000 ελληνικά κυβικά πόδια.
Για να πετύχουν οι αρχιτέκτονες τις καμπυλώσεις αυτές, δεν μπορούσε κανένας λίθος του ναού να έχει κανονικό ορθογώνιο σχήμα. Αντιθέτως, σχεδόν κάθε λίθος έχει εντελώς δικό του σχήμα και μοναδική θέση μέσα στο σύνολο, γιατί οι καμπυλώσεις και οι κλίσεις δημιουργούσαν διαφορετικές γωνίες και επιφάνειες σε κάθε σημείο του κτιρίου. Για να επιτευχθεί λοιπόν μία τέτοια κατασκευή ήταν απαραίτητος ο τέλειος υπολογισμός του κάθε μέλους, αλλά και η μαθηματικά ακριβέστατη εκτέλεση.
Επίσης, οι γωνιακοί κίονες είχαν ελάχιστα μεγαλύτερη διάμετρο από τους άλλους. Οι μετόπες έδιδαν την εντύπωση του τετραγώνου, κι όμως είχαν κάποιες καμπύλες που εξουδετέρωναν τις οπτικές απάτες, γιατί διαφορετικά δεν θα υπήρχε η οπτική αρμονία. Αυτές οι προσαρμογές απαιτούσαν πολύ υψηλές γνώσεις μαθηματικών και οπτικής, σε μια τέλεια ένωση με την Τέχνη.
Επίσης, στο σχέδιο του Παρθενώνα δεν υπάρχει καμία ευθεία γραμμή. Παντού συναντάμε απαλές καμπύλες. Επίσης στην πρόσθια (μπροστινή) όψη ισχύει: πλάτος = φ χ ύψος (όπου φ είναι ο αριθμός της χρυσής τομής), ενώ στις αναλογίες του ναού συναντάμε και τη σχέση α/2α+1. Το οπτικό αποτέλεσμα είναι εκτός από αρμονικό πολλές φορές και απροσδόκητο, μιας και ο Παρθενώνας καταφέρνει να δείχνει εντυπωσιακά μεγαλύτερος από το πραγματικό του μέγεθος, χωρίς όμως να βαραίνει το χώρο.
Αξιοσημείωτο είναι ότι υπάρχουν πλήθος ενδείξεων μη συμπαγούς θεμελίωσης του ναού σε βάθος 11 μέτρων με σημαντικό ίσως υπόγειο τμήμα ή και θάλαμο.
Επίσης, ο Παρθενώνας είναι χτισμένος με έναν ιδιαίτερο, αντισεισμικό τρόπο, με τα τμήματά του να είναι ενωμένα με λιωμένο μολύβι στις κατάλληλες διαμορφωμένες ενώσεις των μαρμάρων του. Ειδικότερα για τον Παρθενώνα ο Ν. Τογαρίδης αναφέρει: «η αρθρωτή – σπονδυλική κατασκευή των κιόνων και η τέλεια κατεργασία των σπονδύλων με διάφορο σχήμα / συχνότητα συντελεί στην αρίστη σεισμική συμπεριφορά του Παρθενώνα».
Όσον αφορά την τοποθεσία που είναι χτισμένος ο ναός σε σχέση με κάποια άλλα κτίσματα της αρχαίας Αθήνας, το κέντρο του Παρθενώνα (η τομή των διαγωνίων του) απέχει εξίσου από το κέντρο του Ηφαιστείου, από το κέντρο του βήματος των ρητόρων της Πνύκας, από το κέντρο της βάσεως του μνημείου του Φιλοπάππου και από το κέντρο του σηκού του Ναού του Ολυμπίου Διός. Όλα τα παραπάνω με μέγιστη προσέγγιση.
Επίσης, δεν μπορούμε να παραβλέψουμε ότι η κατασκευή αλλά και η θέση που είναι χτισμένος ο Παρθενώνας φανερώνουν μια ιδιαίτερη γεωδαιτική αρμονία (γεωδαιτική είναι η σχέση των μέτρων του ναού με τα μέτρα της γης).
Αν εξετάσουμε μερικά ακόμα στοιχεία θα διαπιστώσουμε ότι ο ναός του Παρθενώνα, σύμφωνα με τον Ν. Λίτσα, είναι δομημένος σε τέτοια θέση και με τέτοιο τρόπο, ώστε να αντλεί το μέγιστο της συμπαντικής ενέργειας και να τη διαχέει αποκλειστικά στο εγγύς περιβάλλον του. Είναι οικοδομημένος στον ιερό βράχο της Ακρόπολης, από όπου περνά πλήθος διασταυρώσεων γραμμών L. Εξαιτίας τους ο βράχος έχει πολύ έντονο ηλεκτρομαγνητικό πεδίο.
Λέγεται επίσης ότι ο Παρθενώνας λειτουργεί σαν σημείο εκπομπής των ενεργειών αυτών στο χώρο. Λόγω του πυραμιδοειδούς του όμως σχήματος οι ενέργειες αυτές εκπέμπονται αρκετά ψηλότερα από το έδαφος. Κάποιοι μελετητές υποστηρίζουν ότι η κατασκευή έχει και ενδιαφέρουσες ηλεκτρικές ιδιότητες, σαν να είναι τεράστιος πυκνωτής αλλά και κεραία. Αυτό θα εξηγούσε τις παράξενες αποκλίσεις στα όργανα μετρήσεων γύρω από τον Παρθενώνα (τα ίδια αναφέρονται και για τη Μεγάλη Πυραμίδα στην Αίγυπτο).
Όσον αφορά τη γεωδαιτική κατασκευή του ναού, η διάσταση του κοντού στυλοβάτη του Παρθενώνα είναι ίση με ένα δευτερόλεπτο (1΄΄) ενός τόξου γεωγραφικού πλάτους της Γης. Αυτό δηλώνει ότι τα μέτρα του Παρθενώνα δεν είναι τυχαία, αλλά οι κατασκευαστές του γνώριζαν τις διαστάσεις τη Γης και φυσικά το σφαιρικό της σχήμα. Επιπλέον, οι αρχαίοι Έλληνες φαίνεται ότι χρησιμοποίησαν σαν μονάδα μέτρησης για το χτίσιμο του Παρθενώνα όχι το σημερινό «μέτρο» αλλά το «πόδι» (1 πόδι = 0,3188 μέτρα) (το ίδιο λέγεται και για τις αιγυπτιακές πυραμίδες).
Για να πετύχουν οι αρχιτέκτονες τις καμπυλώσεις αυτές, δεν μπορούσε κανένας λίθος του ναού να έχει κανονικό ορθογώνιο σχήμα. Αντιθέτως, σχεδόν κάθε λίθος έχει εντελώς δικό του σχήμα και μοναδική θέση μέσα στο σύνολο, γιατί οι καμπυλώσεις και οι κλίσεις δημιουργούσαν διαφορετικές γωνίες και επιφάνειες σε κάθε σημείο του κτιρίου. Για να επιτευχθεί λοιπόν μία τέτοια κατασκευή ήταν απαραίτητος ο τέλειος υπολογισμός του κάθε μέλους, αλλά και η μαθηματικά ακριβέστατη εκτέλεση.
Επίσης, οι γωνιακοί κίονες είχαν ελάχιστα μεγαλύτερη διάμετρο από τους άλλους. Οι μετόπες έδιδαν την εντύπωση του τετραγώνου, κι όμως είχαν κάποιες καμπύλες που εξουδετέρωναν τις οπτικές απάτες, γιατί διαφορετικά δεν θα υπήρχε η οπτική αρμονία. Αυτές οι προσαρμογές απαιτούσαν πολύ υψηλές γνώσεις μαθηματικών και οπτικής, σε μια τέλεια ένωση με την Τέχνη.
Επίσης, στο σχέδιο του Παρθενώνα δεν υπάρχει καμία ευθεία γραμμή. Παντού συναντάμε απαλές καμπύλες. Επίσης στην πρόσθια (μπροστινή) όψη ισχύει: πλάτος = φ χ ύψος (όπου φ είναι ο αριθμός της χρυσής τομής), ενώ στις αναλογίες του ναού συναντάμε και τη σχέση α/2α+1. Το οπτικό αποτέλεσμα είναι εκτός από αρμονικό πολλές φορές και απροσδόκητο, μιας και ο Παρθενώνας καταφέρνει να δείχνει εντυπωσιακά μεγαλύτερος από το πραγματικό του μέγεθος, χωρίς όμως να βαραίνει το χώρο.
Αξιοσημείωτο είναι ότι υπάρχουν πλήθος ενδείξεων μη συμπαγούς θεμελίωσης του ναού σε βάθος 11 μέτρων με σημαντικό ίσως υπόγειο τμήμα ή και θάλαμο.
Επίσης, ο Παρθενώνας είναι χτισμένος με έναν ιδιαίτερο, αντισεισμικό τρόπο, με τα τμήματά του να είναι ενωμένα με λιωμένο μολύβι στις κατάλληλες διαμορφωμένες ενώσεις των μαρμάρων του. Ειδικότερα για τον Παρθενώνα ο Ν. Τογαρίδης αναφέρει: «η αρθρωτή – σπονδυλική κατασκευή των κιόνων και η τέλεια κατεργασία των σπονδύλων με διάφορο σχήμα / συχνότητα συντελεί στην αρίστη σεισμική συμπεριφορά του Παρθενώνα».
Όσον αφορά την τοποθεσία που είναι χτισμένος ο ναός σε σχέση με κάποια άλλα κτίσματα της αρχαίας Αθήνας, το κέντρο του Παρθενώνα (η τομή των διαγωνίων του) απέχει εξίσου από το κέντρο του Ηφαιστείου, από το κέντρο του βήματος των ρητόρων της Πνύκας, από το κέντρο της βάσεως του μνημείου του Φιλοπάππου και από το κέντρο του σηκού του Ναού του Ολυμπίου Διός. Όλα τα παραπάνω με μέγιστη προσέγγιση.
Επίσης, δεν μπορούμε να παραβλέψουμε ότι η κατασκευή αλλά και η θέση που είναι χτισμένος ο Παρθενώνας φανερώνουν μια ιδιαίτερη γεωδαιτική αρμονία (γεωδαιτική είναι η σχέση των μέτρων του ναού με τα μέτρα της γης).
Αν εξετάσουμε μερικά ακόμα στοιχεία θα διαπιστώσουμε ότι ο ναός του Παρθενώνα, σύμφωνα με τον Ν. Λίτσα, είναι δομημένος σε τέτοια θέση και με τέτοιο τρόπο, ώστε να αντλεί το μέγιστο της συμπαντικής ενέργειας και να τη διαχέει αποκλειστικά στο εγγύς περιβάλλον του. Είναι οικοδομημένος στον ιερό βράχο της Ακρόπολης, από όπου περνά πλήθος διασταυρώσεων γραμμών L. Εξαιτίας τους ο βράχος έχει πολύ έντονο ηλεκτρομαγνητικό πεδίο.
Λέγεται επίσης ότι ο Παρθενώνας λειτουργεί σαν σημείο εκπομπής των ενεργειών αυτών στο χώρο. Λόγω του πυραμιδοειδούς του όμως σχήματος οι ενέργειες αυτές εκπέμπονται αρκετά ψηλότερα από το έδαφος. Κάποιοι μελετητές υποστηρίζουν ότι η κατασκευή έχει και ενδιαφέρουσες ηλεκτρικές ιδιότητες, σαν να είναι τεράστιος πυκνωτής αλλά και κεραία. Αυτό θα εξηγούσε τις παράξενες αποκλίσεις στα όργανα μετρήσεων γύρω από τον Παρθενώνα (τα ίδια αναφέρονται και για τη Μεγάλη Πυραμίδα στην Αίγυπτο).
Όσον αφορά τη γεωδαιτική κατασκευή του ναού, η διάσταση του κοντού στυλοβάτη του Παρθενώνα είναι ίση με ένα δευτερόλεπτο (1΄΄) ενός τόξου γεωγραφικού πλάτους της Γης. Αυτό δηλώνει ότι τα μέτρα του Παρθενώνα δεν είναι τυχαία, αλλά οι κατασκευαστές του γνώριζαν τις διαστάσεις τη Γης και φυσικά το σφαιρικό της σχήμα. Επιπλέον, οι αρχαίοι Έλληνες φαίνεται ότι χρησιμοποίησαν σαν μονάδα μέτρησης για το χτίσιμο του Παρθενώνα όχι το σημερινό «μέτρο» αλλά το «πόδι» (1 πόδι = 0,3188 μέτρα) (το ίδιο λέγεται και για τις αιγυπτιακές πυραμίδες).
Η πλατφόρμα πάνω στην οποία στέκονται οι κολώνες του ναού έχουν μια ελαφριά καμπύλη και στις τέσσερις γωνίες, σαν να ήταν ένα μικρό κομμάτι μιας γιγαντιαίας σφαίρας, της σφαίρας της γης. Ο Ερατοσθένης, που έζησε στην Αλεξάνδρεια μεταξύ 276 και 196 π.Χ., αναφέρεται ως ο πρώτος άνθρωπος που υπολόγισε με μεγάλη προσέγγιση την ακτίνα της Γης. Από τα παραπάνω όμως φαίνεται ότι και οι κατασκευαστές του Παρθενώνα γνώριζαν τις διαστάσεις τη Γης, πολύ πριν τον Ερατοσθένη.
Επίσης, όπως είναι γνωστό σήμερα, το μήκος της μίας πλευράς της βάσης της Μεγάλης Πυραμίδας είναι ίσο με το 1/8 του λεπτού της μοίρας της επιφάνειας της γης. Αυτό φανερώνει ότι οι Αιγύπτιοι γνώριζαν (τουλάχιστον 2.000 χρόνια πριν την κατασκευή του Παρθενώνα) ότι η γη ήταν σφαιρική.
Πολλοί αρχαίοι πίστευαν ότι η γνώση των Αρχαίων Ελλήνων γύρω από τα μαθηματικά προερχόταν από τη γνώση των Αιγυπτίων στον τομέα αυτό. Συγκεκριμένα ο Αριστοτέλης στα «Μεταφυσικά» του αναφέρει: «Έτσι η επιστήμη των μαθηματικών προήλθε από την γειτονική Αίγυπτο, επειδή εκεί η τάξη των ιερέων είχε αυτή την ασχολία». Τι άλλο μπορεί να δηλώνει εδώ ο Αριστοτέλης εκτός από το ότι οι ιερείς της Αιγύπτου κατείχαν την επιστήμη των μαθηματικών, η οποία σύμφωνα με την Ε.Π. Μπλαβάτσκυ διδασκόταν μαζί με την αστρονομία στις Σχολές Μυστηρίων;
Από πού μπορεί να έλαβαν ο Ικτίνος και ο Καλλικράτης αυτές τις ιδιαίτερες γνώσεις μαθηματικών, αστρονομίας και της σφαιρικότητας της γης εκτός από το θεσμό των Μυστηρίων, στον οποίο πρέπει να είχαν μαθητεύσει; Για ποιο λόγο άλλωστε ανέθεσαν στον Ικτίνο την κατασκευή του Τελεστηρίου της Ελευσίνας, στο οποίο οι μύστες τελούσαν τα Ελευσίνια Μυστήρια;
ΦΕΙΔΙΑΣ
Κατασκευαστής του μεγαλουργήματος του Παρθενώνα και γενικός επόπτης όλων των έργων, ήταν ο γλύπτης Φειδίας, ο οποίος γεννήθηκε στην Αθήνα το 500 π.Χ. και έζησε 80 χρόνια, όταν ο μέσος όρος ζωής την εποχή εκείνη ήταν τα 50 χρόνια. Το όνομα ΦΕΙΔΙΑΣ μαρτυρεί κάποιες ιδιαίτερες ιδιότητες του ατόμου το οποίο ήταν επιφορτισμένο με ειδική αποστολή.
Επίσης, όπως είναι γνωστό σήμερα, το μήκος της μίας πλευράς της βάσης της Μεγάλης Πυραμίδας είναι ίσο με το 1/8 του λεπτού της μοίρας της επιφάνειας της γης. Αυτό φανερώνει ότι οι Αιγύπτιοι γνώριζαν (τουλάχιστον 2.000 χρόνια πριν την κατασκευή του Παρθενώνα) ότι η γη ήταν σφαιρική.
Πολλοί αρχαίοι πίστευαν ότι η γνώση των Αρχαίων Ελλήνων γύρω από τα μαθηματικά προερχόταν από τη γνώση των Αιγυπτίων στον τομέα αυτό. Συγκεκριμένα ο Αριστοτέλης στα «Μεταφυσικά» του αναφέρει: «Έτσι η επιστήμη των μαθηματικών προήλθε από την γειτονική Αίγυπτο, επειδή εκεί η τάξη των ιερέων είχε αυτή την ασχολία». Τι άλλο μπορεί να δηλώνει εδώ ο Αριστοτέλης εκτός από το ότι οι ιερείς της Αιγύπτου κατείχαν την επιστήμη των μαθηματικών, η οποία σύμφωνα με την Ε.Π. Μπλαβάτσκυ διδασκόταν μαζί με την αστρονομία στις Σχολές Μυστηρίων;
Από πού μπορεί να έλαβαν ο Ικτίνος και ο Καλλικράτης αυτές τις ιδιαίτερες γνώσεις μαθηματικών, αστρονομίας και της σφαιρικότητας της γης εκτός από το θεσμό των Μυστηρίων, στον οποίο πρέπει να είχαν μαθητεύσει; Για ποιο λόγο άλλωστε ανέθεσαν στον Ικτίνο την κατασκευή του Τελεστηρίου της Ελευσίνας, στο οποίο οι μύστες τελούσαν τα Ελευσίνια Μυστήρια;
ΦΕΙΔΙΑΣ
Κατασκευαστής του μεγαλουργήματος του Παρθενώνα και γενικός επόπτης όλων των έργων, ήταν ο γλύπτης Φειδίας, ο οποίος γεννήθηκε στην Αθήνα το 500 π.Χ. και έζησε 80 χρόνια, όταν ο μέσος όρος ζωής την εποχή εκείνη ήταν τα 50 χρόνια. Το όνομα ΦΕΙΔΙΑΣ μαρτυρεί κάποιες ιδιαίτερες ιδιότητες του ατόμου το οποίο ήταν επιφορτισμένο με ειδική αποστολή.
Το ΦΕΙΔΙΑΣ αναλύεται σε ΦΕΙ+ΔΙΑΣ.
Το ΦΕΙ σημαίνει, φείδομαι, κάνω τα πάντα με μέτρο, και ο Παρθενώνας είναι ο ναός του μέτρου και της αρμονίας. Σημαίνει επίσης το φέγγος.
Το ΦΕΙ αναλύεται σε Φ+Η=Φως είσαι, ήλιος, Απόλλωνας, αιώνιο φως.
Το γράμμα «Φ» σχηματίζεται από τον κύκλο «Ο» και από την κάθετη γραμμή «Ι» όταν το ένα τοποθετηθεί πάνω στο άλλο δημιουργούν τη θεία υπόσταση αφού ο κύκλος παριστά το σύμπαν και η κάθετη γραμμή τη θεϊκή ακτίνα.
Το δεύτερο συνθετικό ΔΙΑΣ είναι ο πατέρας των θεών και ανθρώπων, είναι η ουράνια οντότητα γνωστή σαν Ιερός Άρχοντας Φωτός. Επομένως το όνομα Φειδίας σημαίνει το φέγγος - Φως του Δία, και κρυπτογραφεί μια ουράνια ενσαρκωμένη οντότητα με συγκεκριμένο έργο, αφού εκτός από τα αριστουργήματα της Ακροπόλης κατασκεύασε και τα παρακάτω έργα:
1. Χρυσελεφάντινο άγαλμα της Αθηνάς Παρθένου. Είχε ύψος 13 μέτρα, περίπου ένα τόνο χρυσάφι, ελεφαντοστούν, μάτια από πολύτιμους λίθους και το Γοργόνειο στο στήθος από πολύτιμο λίθο κοραλένιου χρώματος και πάνω σ' αυτό ήταν σκαλισμένο το κεφάλι της Γοργόνας - Μέδουσας.
Οι Αθηναίοι κατηγόρησαν αργότερα το Φειδία πως είχε κλέψει αρκετό από το χρυσάφι που προοριζόταν για το άγαλμα και τον έφεραν σε δίκη.Εκείνος,γνωρίζοντας πολύ καλά τον ανθρώπινο φθόνο, είχε λάβει τα μέτρα του. Είχε ζυγίσει το χρυσάφι που του παράδωσαν, το οποίο ήταν ακριβώς 44 τάλαντα. Το χρυσάφι στο άγαλμα το είχε τοποθετήσει με τέτοιον τρόπο, ώστε να ξεκολλάει εύκολα και να μπαίνει ξανά στη θέση του. Στη δίκη ζήτησε να βγάλουν το χρυσάφι και να το ζυγίσουν, πράγμα που έγινε. Και το βάρος του ήταν ακριβώς το ίδιο, 44 τάλαντα!
Φυσικά ο Φειδίας αθωώθηκε. Αλλά, βρήκε καινούργιους μπελάδες. Τον κατηγόρησαν για ιεροσυλία, επειδή έδωσε στους δύο πολεμιστές της ασπίδας της Αθηνάς, τη μορφή του και τη μορφή του Περικλή. Θα τον καταδίκαζαν οπωσδήποτε σε θάνατο, αλλά κατάφερε να δραπετεύσει και έφυγε για την Ολυμπία, όπου μαζί με τους δυο αχώριστους βοηθούς του, Πάναινο και Κολώτη, έφτιαξε ένα καινούργιο αριστούργημα, το γιγαντιαίο (12 μ) χρυσελεφάντινο άγαλμα του Διός (ένα από τα επτά θαυματα). Δυστυχώς όμως και εδώ τον κυνήγησε η ίδια μοίρα, αφού ξανά κατηγορήθηκε για κατάχρηση και κλοπή χρυσού και φυλακίστηκε ως τον θάνατό του.
2. Το άγαλμα της Αθηνάς Προμάχου. Ήταν ένα τεράστιο χάλκινο άγαλμα οκτώ μέτρων, με επίχρυση αιχμή δόρατος που φαινόταν από τους παραπλέοντας το Σούνιο ναυτικούς. Ευρίσκετο στον χώρο μεταξύ Προπυλαίων και Ερεχθείου.
3. Το άγαλμα της Λημνίας Αθηνάς, αφιέρωμα των κληρούχων της Λήμνου. Χάλκινη κι αυτή, φημιζόταν για το κάλλος του προσώπου, τις θαυμάσιες αναλογίες των χαρακτηριστικών και την αυστηρή πνευματική της έκφραση. Στεκόταν ορθή με το δόρυ, το κράνος στο χέρι και την ασπίδα λοξά στο στήθος. Η θέση του δεν είναι ακριβώς γνωστή.Πιθανότατα ήταν στημένο σε μαρμάρινη βάση αμέσως μετά τα Προπύλαια, στα αριστερά του εισερχομένου.
4.Το άγαλμα της Αρείας Αθηνάς των Πλαταιών. Ένα αριστούργημα από επιχρυσωμένο ξύλο με κεφάλι και άκρα χειρών και ποδών μαρμάρινα,από τα λάφυρα του Μαραθώνα.
5. Το χρυσελεφάντινο άγαλμα του Ολυμπίου Διός της Ολυμπίας, κολοσσιαίων διαστάσεων (12,20 μ) ένα από τα εφτά θαύματα της αρχαιότητας. Ήταν τόσο τέλειο άγαλμα που υπήρχε η επιγραφή για τον επισκέπτη «Ω Φειδία ή εσύ ανέβηκες στους ουρανους και είδες τον Δία ή ο Ζευς κατέβηκε στη γη».
6. Χάλκινο "σύνταγμα" Αθηναίων ηρώων, Αθηνάς, Απόλλωνα και Μιλτιάδη, αφιέρωμα από τα λάφυρα του Μαραθώνα στους Δελφούς.
Το ΦΕΙ σημαίνει, φείδομαι, κάνω τα πάντα με μέτρο, και ο Παρθενώνας είναι ο ναός του μέτρου και της αρμονίας. Σημαίνει επίσης το φέγγος.
Το ΦΕΙ αναλύεται σε Φ+Η=Φως είσαι, ήλιος, Απόλλωνας, αιώνιο φως.
Το γράμμα «Φ» σχηματίζεται από τον κύκλο «Ο» και από την κάθετη γραμμή «Ι» όταν το ένα τοποθετηθεί πάνω στο άλλο δημιουργούν τη θεία υπόσταση αφού ο κύκλος παριστά το σύμπαν και η κάθετη γραμμή τη θεϊκή ακτίνα.
Το δεύτερο συνθετικό ΔΙΑΣ είναι ο πατέρας των θεών και ανθρώπων, είναι η ουράνια οντότητα γνωστή σαν Ιερός Άρχοντας Φωτός. Επομένως το όνομα Φειδίας σημαίνει το φέγγος - Φως του Δία, και κρυπτογραφεί μια ουράνια ενσαρκωμένη οντότητα με συγκεκριμένο έργο, αφού εκτός από τα αριστουργήματα της Ακροπόλης κατασκεύασε και τα παρακάτω έργα:
1. Χρυσελεφάντινο άγαλμα της Αθηνάς Παρθένου. Είχε ύψος 13 μέτρα, περίπου ένα τόνο χρυσάφι, ελεφαντοστούν, μάτια από πολύτιμους λίθους και το Γοργόνειο στο στήθος από πολύτιμο λίθο κοραλένιου χρώματος και πάνω σ' αυτό ήταν σκαλισμένο το κεφάλι της Γοργόνας - Μέδουσας.
Οι Αθηναίοι κατηγόρησαν αργότερα το Φειδία πως είχε κλέψει αρκετό από το χρυσάφι που προοριζόταν για το άγαλμα και τον έφεραν σε δίκη.Εκείνος,γνωρίζοντας πολύ καλά τον ανθρώπινο φθόνο, είχε λάβει τα μέτρα του. Είχε ζυγίσει το χρυσάφι που του παράδωσαν, το οποίο ήταν ακριβώς 44 τάλαντα. Το χρυσάφι στο άγαλμα το είχε τοποθετήσει με τέτοιον τρόπο, ώστε να ξεκολλάει εύκολα και να μπαίνει ξανά στη θέση του. Στη δίκη ζήτησε να βγάλουν το χρυσάφι και να το ζυγίσουν, πράγμα που έγινε. Και το βάρος του ήταν ακριβώς το ίδιο, 44 τάλαντα!
Φυσικά ο Φειδίας αθωώθηκε. Αλλά, βρήκε καινούργιους μπελάδες. Τον κατηγόρησαν για ιεροσυλία, επειδή έδωσε στους δύο πολεμιστές της ασπίδας της Αθηνάς, τη μορφή του και τη μορφή του Περικλή. Θα τον καταδίκαζαν οπωσδήποτε σε θάνατο, αλλά κατάφερε να δραπετεύσει και έφυγε για την Ολυμπία, όπου μαζί με τους δυο αχώριστους βοηθούς του, Πάναινο και Κολώτη, έφτιαξε ένα καινούργιο αριστούργημα, το γιγαντιαίο (12 μ) χρυσελεφάντινο άγαλμα του Διός (ένα από τα επτά θαυματα). Δυστυχώς όμως και εδώ τον κυνήγησε η ίδια μοίρα, αφού ξανά κατηγορήθηκε για κατάχρηση και κλοπή χρυσού και φυλακίστηκε ως τον θάνατό του.
2. Το άγαλμα της Αθηνάς Προμάχου. Ήταν ένα τεράστιο χάλκινο άγαλμα οκτώ μέτρων, με επίχρυση αιχμή δόρατος που φαινόταν από τους παραπλέοντας το Σούνιο ναυτικούς. Ευρίσκετο στον χώρο μεταξύ Προπυλαίων και Ερεχθείου.
3. Το άγαλμα της Λημνίας Αθηνάς, αφιέρωμα των κληρούχων της Λήμνου. Χάλκινη κι αυτή, φημιζόταν για το κάλλος του προσώπου, τις θαυμάσιες αναλογίες των χαρακτηριστικών και την αυστηρή πνευματική της έκφραση. Στεκόταν ορθή με το δόρυ, το κράνος στο χέρι και την ασπίδα λοξά στο στήθος. Η θέση του δεν είναι ακριβώς γνωστή.Πιθανότατα ήταν στημένο σε μαρμάρινη βάση αμέσως μετά τα Προπύλαια, στα αριστερά του εισερχομένου.
4.Το άγαλμα της Αρείας Αθηνάς των Πλαταιών. Ένα αριστούργημα από επιχρυσωμένο ξύλο με κεφάλι και άκρα χειρών και ποδών μαρμάρινα,από τα λάφυρα του Μαραθώνα.
5. Το χρυσελεφάντινο άγαλμα του Ολυμπίου Διός της Ολυμπίας, κολοσσιαίων διαστάσεων (12,20 μ) ένα από τα εφτά θαύματα της αρχαιότητας. Ήταν τόσο τέλειο άγαλμα που υπήρχε η επιγραφή για τον επισκέπτη «Ω Φειδία ή εσύ ανέβηκες στους ουρανους και είδες τον Δία ή ο Ζευς κατέβηκε στη γη».
6. Χάλκινο "σύνταγμα" Αθηναίων ηρώων, Αθηνάς, Απόλλωνα και Μιλτιάδη, αφιέρωμα από τα λάφυρα του Μαραθώνα στους Δελφούς.
7. Χρυσελεφάντινη Αθηνά στην Πελλήνη Αχαΐας, από τα πρωιμότερα έργα του.
8. Χάλκινος Απόλλων Παρνόπιος (δηλ. ακριδοκτόνος) μπροστά στον Παρθενώνα.
9. Αφροδίτη Ουρανία από παριανό μάρμαρο στην Αγορά.
10. Χρυσελεφάντινη Ουρανία Αφροδίτη στην Ήλιδα.
8. Χάλκινος Απόλλων Παρνόπιος (δηλ. ακριδοκτόνος) μπροστά στον Παρθενώνα.
9. Αφροδίτη Ουρανία από παριανό μάρμαρο στην Αγορά.
10. Χρυσελεφάντινη Ουρανία Αφροδίτη στην Ήλιδα.
11. Χρυσελεφάντινη Αθηνά στην Ήλιδα.
12. Χάλκινο άγαλμα πληγωμένης Αμαζόνας στο ιερό της Αρτέμιδος στην Έφεσο.
13. Θησείο. Εκτός από τα έργα αυτά κατασκεύασε το ναό του Ηφαίστου ή περισσότερο γνωστό σαν "Θησείο" (ο μοναδικός σχεδόν ακέραιος ναός σήμερα), από Πεντελικό μάρμαρο, το ναό του Άρη στην αρχαία αγορά των Αθηνών, το ναό του Ποσειδώνα στο Σούνιο, της Νεμέσεως στη Ραμνούντα Αττικής, και το ναό του Ιλισσού (πιθανώς της Αρτέμιδος) κοντά στον ναό του Ολυμπίου Διός στην Αθήνα.
Η ΑΚΡΟΠΟΛΗ ΤΩΝ ΑΘΗΝΩΝ ΚΑΙ ΤΑ ΜΥΣΤΙΚΑ ΤΗΣ
Στο βραχώδη λόφο της Ακρόπολης, που δεσπόζει στο κέντρο της σύγχρονης Αθήνας, βρίσκεται το σπουδαιότερο και μεγαλοπρεπέστερο ιερό της αρχαίας πόλης, αφιερωμένο, κατά κύριο λόγο, στην προστάτιδα θεά της, την Αθηνά. Με τον ιερό αυτό χώρο σχετίζονται οι σημαντικότεροι μύθοι της αρχαίας Αθήνας, οι μεγάλες θρησκευτικές εορτές, οι παλαιότερες λατρείες της πόλης αλλά και ορισμένα από τα καθοριστικά για την ιστορία της γεγονότα.
Τα μνημεία της Ακρόπολης, αρμονικά συνδυασμένα με το φυσικό περιβάλλον, αποτελούν μοναδικά αριστουργήματα της αρχαίας αρχιτεκτονικής, που εκφράζουν πρωτοποριακούς συσχετισμούς ρυθμών και τάσεων της κλασικής τέχνης και επηρέασαν την πνευματική και καλλιτεχνική δημιουργία για πολλούς αιώνες αργότερα. Η Ακρόπολη του 5ου αιώνα π.Χ, αποδίδει με τον τελειότερο τρόπο το μεγαλείο, τη δύναμη και τον πλούτο της Αθήνας στην εποχή της μεγαλύτερης ακμής της, το ''χρυσό αιώνα'' του Περικλή.
Το μνημείο όμως εκείνο που την κάνει ιδιαίτερα διάσημο είναι το αριστούργημα των κατασκευών,ο "Παρθενώνας", άφθάστου κάλλους και αρμονίας, αφιερωμένο στην θεά Αθηνά και εκφράζει την ολοκλήρωση της ανθρώπινης διάνοιας !!!
ΙΣΤΟΡΙΑ ΤΗΣ ΠΡΟΪΣΤΟΡΙΚΗΣ ΑΘΗΝΑΣ
Η ίδρυση της Αθήνας χάνεται στην αχλύ του μύθου, καθώς είναι γενικά αποδεκτό ότι προϋπήρχε της Μυκηναϊκής εποχής. Στα πανάρχαια χρόνια της νεολιθικής εποχής,όλη η περιοχή της Αττικής λεγόταν "Κραναά". Η ονομασία προέρχεται από το επίθετο "κραναός" που σημαίνει τραχύς, πετρώδης, όπως δηλαδή ήταν όλη η βραχώδης Αττική χερσόνησος.
Πρώτοι κάτοικοι της περιοχής θεωρούνται οι Πελασγοί και μετέπειτα, μετά τον κατακλυσμό του Δευκαλίωνα, οι Ίωνες (ο γενάρχης Ίων ήταν υιός του Απόλλωνα και της Κρέουσας).
Πρώτος βασιλιάς της πόλης, σύμφωνα με τη μυθολογία, ήταν ο Πελασγός Ακταίος και το αρχικό της όνομα ήταν "Ακτή" ή "Ακτική". Τον Ακταίο διαδέχθηκε ο γαμπρός του,"Κέκροπας", από τον οποίο ονομάστηκε "Κεκροπία" ο οποίος ήταν μισός άνθρωπος και μισός ερπετό.
12. Χάλκινο άγαλμα πληγωμένης Αμαζόνας στο ιερό της Αρτέμιδος στην Έφεσο.
13. Θησείο. Εκτός από τα έργα αυτά κατασκεύασε το ναό του Ηφαίστου ή περισσότερο γνωστό σαν "Θησείο" (ο μοναδικός σχεδόν ακέραιος ναός σήμερα), από Πεντελικό μάρμαρο, το ναό του Άρη στην αρχαία αγορά των Αθηνών, το ναό του Ποσειδώνα στο Σούνιο, της Νεμέσεως στη Ραμνούντα Αττικής, και το ναό του Ιλισσού (πιθανώς της Αρτέμιδος) κοντά στον ναό του Ολυμπίου Διός στην Αθήνα.
Η ΑΚΡΟΠΟΛΗ ΤΩΝ ΑΘΗΝΩΝ ΚΑΙ ΤΑ ΜΥΣΤΙΚΑ ΤΗΣ
Στο βραχώδη λόφο της Ακρόπολης, που δεσπόζει στο κέντρο της σύγχρονης Αθήνας, βρίσκεται το σπουδαιότερο και μεγαλοπρεπέστερο ιερό της αρχαίας πόλης, αφιερωμένο, κατά κύριο λόγο, στην προστάτιδα θεά της, την Αθηνά. Με τον ιερό αυτό χώρο σχετίζονται οι σημαντικότεροι μύθοι της αρχαίας Αθήνας, οι μεγάλες θρησκευτικές εορτές, οι παλαιότερες λατρείες της πόλης αλλά και ορισμένα από τα καθοριστικά για την ιστορία της γεγονότα.
Τα μνημεία της Ακρόπολης, αρμονικά συνδυασμένα με το φυσικό περιβάλλον, αποτελούν μοναδικά αριστουργήματα της αρχαίας αρχιτεκτονικής, που εκφράζουν πρωτοποριακούς συσχετισμούς ρυθμών και τάσεων της κλασικής τέχνης και επηρέασαν την πνευματική και καλλιτεχνική δημιουργία για πολλούς αιώνες αργότερα. Η Ακρόπολη του 5ου αιώνα π.Χ, αποδίδει με τον τελειότερο τρόπο το μεγαλείο, τη δύναμη και τον πλούτο της Αθήνας στην εποχή της μεγαλύτερης ακμής της, το ''χρυσό αιώνα'' του Περικλή.
Το μνημείο όμως εκείνο που την κάνει ιδιαίτερα διάσημο είναι το αριστούργημα των κατασκευών,ο "Παρθενώνας", άφθάστου κάλλους και αρμονίας, αφιερωμένο στην θεά Αθηνά και εκφράζει την ολοκλήρωση της ανθρώπινης διάνοιας !!!
ΙΣΤΟΡΙΑ ΤΗΣ ΠΡΟΪΣΤΟΡΙΚΗΣ ΑΘΗΝΑΣ
Η ίδρυση της Αθήνας χάνεται στην αχλύ του μύθου, καθώς είναι γενικά αποδεκτό ότι προϋπήρχε της Μυκηναϊκής εποχής. Στα πανάρχαια χρόνια της νεολιθικής εποχής,όλη η περιοχή της Αττικής λεγόταν "Κραναά". Η ονομασία προέρχεται από το επίθετο "κραναός" που σημαίνει τραχύς, πετρώδης, όπως δηλαδή ήταν όλη η βραχώδης Αττική χερσόνησος.
Πρώτοι κάτοικοι της περιοχής θεωρούνται οι Πελασγοί και μετέπειτα, μετά τον κατακλυσμό του Δευκαλίωνα, οι Ίωνες (ο γενάρχης Ίων ήταν υιός του Απόλλωνα και της Κρέουσας).
Πρώτος βασιλιάς της πόλης, σύμφωνα με τη μυθολογία, ήταν ο Πελασγός Ακταίος και το αρχικό της όνομα ήταν "Ακτή" ή "Ακτική". Τον Ακταίο διαδέχθηκε ο γαμπρός του,"Κέκροπας", από τον οποίο ονομάστηκε "Κεκροπία" ο οποίος ήταν μισός άνθρωπος και μισός ερπετό.
Το ανάκτορο του ήταν επάνω στον ιερό βράχο στην θέση του μετέπειτα Ερεχθείου.Σύμφωνα με τον Πλάτωνα, στο έργο του "Τίμαιος", Αιγύπτιοι ιερείς της Ίσιδος αποκάλυψαν στον Σόλωνα που τους επισκέφτηκε ότι, σύμφωνα με τα αρχεία τους, υπήρχε πόλη ακμάζουσα με το όνομα «Αθήνα» πριν από τον κατακλύσμο 9560 π.Χ. (Δευκαλίωνα) κατά τον οποίον κατεβυθίσθει η Ατλαντίδα και η Αιγηίς (στην θέση του σημερινού Αιγαίου).
Άρα λοιπόν ο Κέκροπας βασίλευσε προ του κατακλυσμού,εφ' όσον το όνομα "Αθήνα" εδόθει επί των ημερών του, όπως θα δούμε πιο κάτω, και όχι το 3500 ή κατ'άλλους το 1500 π.Χ,εκτός αν πρόκειται για άλλον με το ίδιο όνομα. Ο Κέκροπας για να προστατεύσει την πόλη από τους πειρατές της Καρίας από την θάλασσα και τους Βοιωτούς από την ξηρά, διένειμε την Αττική σε δώδεκα περιοχές, για να διαχειρίζεται καλύτερα τον πληθυσμό : Αφίδναι, Βραυρώνα, Δεκέλεια, Επάκρια, Ελευσίνα, Κεκροπία, Κηφισία, Κυθαιρός, Φάληρο, Σφαιττός, Τετράπολις, Θορικός.
Άρα λοιπόν ο Κέκροπας βασίλευσε προ του κατακλυσμού,εφ' όσον το όνομα "Αθήνα" εδόθει επί των ημερών του, όπως θα δούμε πιο κάτω, και όχι το 3500 ή κατ'άλλους το 1500 π.Χ,εκτός αν πρόκειται για άλλον με το ίδιο όνομα. Ο Κέκροπας για να προστατεύσει την πόλη από τους πειρατές της Καρίας από την θάλασσα και τους Βοιωτούς από την ξηρά, διένειμε την Αττική σε δώδεκα περιοχές, για να διαχειρίζεται καλύτερα τον πληθυσμό : Αφίδναι, Βραυρώνα, Δεκέλεια, Επάκρια, Ελευσίνα, Κεκροπία, Κηφισία, Κυθαιρός, Φάληρο, Σφαιττός, Τετράπολις, Θορικός.
Ήδη επί Κέκροπος, όπως αφηγείται Ο "Απολλόδωρος"στην "Ιστορική Βιβλιοθήκη", εφάνει καλόν στους θεούς να καταλάβουν πόλεις σαν "πολιούχοι", στις οποίες θα ετιμάτο ο κάθε θεός ιδιαιτέρως.
Για το όνομα της Κεκροπίας, φιλονίκησαν ο Ποσειδώνας και η Αθηνά. Πρώτος ο Ποσειδώνας με την τρίαινα του χτύπησε το βράχο της Ακροπόλης και αμέσως "ανέβλυσεν εξ αυτού ύδωρ". Στο σημείο που χτύπησε υπήρχε μικρή πηγή με την ονομασία "Ερεχθηίς θάλασσα", στο δυτικό τμήμα του Ερεχθείου που ήταν αφιερωμένο στον Ποσειδώνα.
Αμέσως μετά η Αθηνά χτύπησε το δόρυ της στο έδαφος και εμφανίστηκε μια μικρή ελιά. Ο Κέκροπας παραξενεύτηκε αλλά και εντυπωσιάστηκε από το δώρο της Αθηνάς και αποφάσισε να διαλέξει το δώρο της και να γίνει αυτή προστάτιδα της πόλης. Έτσι πήρε η Αθήνα το όνομά της. Το σημείο που χτύπησε η Αθηνά είναι και αυτό στο δυτικό τμήμα του Ερεχθείου,όπου σήμερα υπάρχει μία σύγχρονη ελιά. Η ελιά αυτή κατά την αρχαιότητα ονομάζετο "Μορία" (=εκ του μοίρα, μόρος = όλεθρος, θάνατος για όποιον δεν την σεβασθεί).
Ο Κέκροπας εισήγαγε την λατρεία του Διός και τις προσφορές εδεσμάτων (πελανοί) στις τελετές, αντί για ανθρωποθυσίες. Ο τάφος του στην Ακρόπολη διετηρείτο μέχρι και τον 4ο αιώνα π.Χ. Τον Κέκροπα διαδέχθηκε ο γιος του, Ερυσίχθων, ο οποίος δεν είχε παιδιά και αυτόν ο Κραναός. Ο Κραναός εκθρονίστηκε από τον Αμφικτύωνα, ο οποίος εν συνεχεία εξορίστηκε από τον Εριχθόνιο ή Ερεχθέα, γιο του Ήφαιστου και της Γης.
Για το όνομα της Κεκροπίας, φιλονίκησαν ο Ποσειδώνας και η Αθηνά. Πρώτος ο Ποσειδώνας με την τρίαινα του χτύπησε το βράχο της Ακροπόλης και αμέσως "ανέβλυσεν εξ αυτού ύδωρ". Στο σημείο που χτύπησε υπήρχε μικρή πηγή με την ονομασία "Ερεχθηίς θάλασσα", στο δυτικό τμήμα του Ερεχθείου που ήταν αφιερωμένο στον Ποσειδώνα.
Αμέσως μετά η Αθηνά χτύπησε το δόρυ της στο έδαφος και εμφανίστηκε μια μικρή ελιά. Ο Κέκροπας παραξενεύτηκε αλλά και εντυπωσιάστηκε από το δώρο της Αθηνάς και αποφάσισε να διαλέξει το δώρο της και να γίνει αυτή προστάτιδα της πόλης. Έτσι πήρε η Αθήνα το όνομά της. Το σημείο που χτύπησε η Αθηνά είναι και αυτό στο δυτικό τμήμα του Ερεχθείου,όπου σήμερα υπάρχει μία σύγχρονη ελιά. Η ελιά αυτή κατά την αρχαιότητα ονομάζετο "Μορία" (=εκ του μοίρα, μόρος = όλεθρος, θάνατος για όποιον δεν την σεβασθεί).
Ο Κέκροπας εισήγαγε την λατρεία του Διός και τις προσφορές εδεσμάτων (πελανοί) στις τελετές, αντί για ανθρωποθυσίες. Ο τάφος του στην Ακρόπολη διετηρείτο μέχρι και τον 4ο αιώνα π.Χ. Τον Κέκροπα διαδέχθηκε ο γιος του, Ερυσίχθων, ο οποίος δεν είχε παιδιά και αυτόν ο Κραναός. Ο Κραναός εκθρονίστηκε από τον Αμφικτύωνα, ο οποίος εν συνεχεία εξορίστηκε από τον Εριχθόνιο ή Ερεχθέα, γιο του Ήφαιστου και της Γης.
Θα σταθούμε Εριχθόνιο ή Ερεχθέα. Σύμφωνα με τον μύθο όταν βασίλευε ο Κέκροπας, η θεά Αθηνά πήγε στο εργαστήριο του θεού Ηφαίστου για να παραγγείλει όπλα. Ο Ήφαιστος όμως την ερωτεύθηκε και άρχισε να την κυνηγάει. Εκείνη όμως επειδή ήθελε να παραμείνει παρθένα τον απέφευγε. Κάποια στιγμή όμως ο Ήφαιστος εκσπερμάτωσε και το σπέρμα του έπεσε στον μηρό της Αθηνάς, η οποία αηδιάζοντας το σκούπισε με ΄κομμάτι μάλλινου υφάσματος το οποίο έρριψε στην γη .
Ο εκ του σπέρματος γόνος ανεπτύχθει μέσα στην γη η οποία τον παρέδοσε στην Αθηνά για να τον αναθρεύσει, χωρίς όλα αυτά να τα γνωρίζουν οι άλλοι θεοί. Το παιδί έλαβε το όνομα Εριχθόνιος ή Εριχθονεύς ή Ερεχθεύς. Για να μην γίνει γνωστό το γεγονός στους άλλους θεούς η Αθηνά έκλεισε το μωρό σε ξύλινο κιβώτιο και το παρέδωσε στις κόρες του Κέκροπα (Άγλαυρο, Έρση, Πάνδροσο)με την εντολή να μην ανοίξουν το κιβώτιο.
Η Πάνδροσος, η μικρότερη, υπάκουσε, αλλά η Άγραυλος και η Έρση το άνοιξαν και είδαν ένα ερπετό με την μορφή παιδιού ή σύμφωνα με άλλη εκδοχή, ένα φίδι περιτυλιγμένο γύρω από το μωρό Εριχθόνιο, το οποίο βγήκε έξω και αναρριχήθηκε στην ασπίδα της Αθηνάς. Οι κοπέλες τρομαγμένες από αυτό που είδαν, έπεσαν από την Ακρόπολη και σκοτώθηκαν. Την Αθηνά την ειδοποίησαν κόρακες για το γεγονός αυτό,την στιγμή που αυτή μετέφερε βράχο για την καλύτερη ασφάλεια της Ακροπόλης, τον οποίο αναγκάσθηκε να τον εγκαταλείψει.
Ο βράχος αυτός είναι ο "Λυκαβηττός". Δηλαδή ο βράχος πάνω στον οποίο "βαίνει" και "άττει (=ορμά) το φως (Λυκ) την στιγμή που ανατέλλει ο ήλιος. Έτσι λοιπόν προήλθε η ονομασία του Λυκαβηττού και όχι από δήθεν λύκους που είχαν τις φωλιές τους εκεί,όπως κάποιοι ισχυρίζονται.
Σύμφωνα με άλλη εκδοχή του μύθου, όταν ένας εχθρικός στρατός πολιόρκησε την Αθήνα, οι Αθηναίοι ζήτησαν την συμβουλή του μαντείου των Δελφών, το οποίο τους έδωσε τον χρησμό, ότι για να σωθεί η πόλη, ένας Αθηναίος έπρεπε να θυσιαστεί με την θέληση του. Όταν η κόρη του Κέκροπα, Άγραυλος, έμαθε για τον χρησμό, ανέβηκε στην Ακρόπολη και πέφτοντας σκοτώθηκε. Οι Αθηναίοι για να την τιμήσουν, έκτισαν ένα ναό στην Ακρόπολη και κάθε χρόνο εόρταζαν τα Αγραύλεια. Επίσης το όνομα της αναφερόταν και στον όρκο των Αθηναίων οπλιτών.
Ο μύθος παριστάνει τον Εριχθόνιο ή Ερεχθέα σαν μισό άνθρωπο και μισό ερπετό ο οποίος εδραίωσε μια ισχυρή δυναστεία και έδωσε στον λαό του, που μέχρι τότε λεγόταν "Κεκροπίδες", το όνομα "Αθηναίοι "προς τιμή της θεάς . Ο Ερεχθέας τοποθέτησε στην Ακρόπολη το ξύλινο άγαλμα της Αθηνάς (ξόανο) σε ναό και εισήγαγε την εορτή, τα Αθήναια. Το άγαλμα αυτό λάμβανε μέρος στην εορτή των "Παναθήναιων" και των "Καλλυντιρίων και Πλυντηρίων".
Το όνομα "Αθήναι"που ισχύει μέχρι σήμερα το έδωσε ο βασιλιάς Θησέας (γι' αυτό και οι ξένοι την ονομάζουν ATHENS και όχι ATHEN). Και όμως μέχρι σήμερα δεν υπάρχει στην πόλη ούτε ένα άγαλμα του.
Άλλοι καθοριστικοί σταθμοί στην ιστορία των Αθηνών,υπήρξαν οι νομοθεσίες του Δράκοντος και του Σόλωνος, η επέκταση του Αθηναϊκού κράτους χάρις την οξυδερκή ναυτική πολιτική του Πεισίστρατου (6ος αιώνας), η μεταρρυθμιση του Κλεισθένους, η εγκαθίδρυση της Αθηναϊκης Δημοκρατίας το 508 π.Χ. και ο "χρυσους αιών"του Περικλέους.
ΟΙΚΟΔΟΜΗΜΑΤΑ ΠΡΟ ΤΟΥ 480 π.Χ.
Ο Πλάτων στο βιβλίο του "Κριτίας" (111ε–112δ), μιλά για την Ακρόπολη των Αθηνών, όπως ήταν τον καιρό πριν τον Ελληνοατλαντικό πόλεμο, τον οποίο και τοποθετεί εννέα χιλιετηρίδες πριν από την εποχή του, δηλαδή περί τα μέσα της 10ης προ Χριστού χιλιετίας. Σύμφωνα με το χωρίο αυτό του "Κριτία", η Ακρόπολη κάποτε ήταν πολύ μεγαλύτερη σε έκταση, ενώ απλωνόταν από τον Ηριδανό και τον Ιλισό ποταμό μέχρι τον Λυκαβηττό, περιλαμβάνοντας και την Πνύκα.
Η Πάνδροσος, η μικρότερη, υπάκουσε, αλλά η Άγραυλος και η Έρση το άνοιξαν και είδαν ένα ερπετό με την μορφή παιδιού ή σύμφωνα με άλλη εκδοχή, ένα φίδι περιτυλιγμένο γύρω από το μωρό Εριχθόνιο, το οποίο βγήκε έξω και αναρριχήθηκε στην ασπίδα της Αθηνάς. Οι κοπέλες τρομαγμένες από αυτό που είδαν, έπεσαν από την Ακρόπολη και σκοτώθηκαν. Την Αθηνά την ειδοποίησαν κόρακες για το γεγονός αυτό,την στιγμή που αυτή μετέφερε βράχο για την καλύτερη ασφάλεια της Ακροπόλης, τον οποίο αναγκάσθηκε να τον εγκαταλείψει.
Ο βράχος αυτός είναι ο "Λυκαβηττός". Δηλαδή ο βράχος πάνω στον οποίο "βαίνει" και "άττει (=ορμά) το φως (Λυκ) την στιγμή που ανατέλλει ο ήλιος. Έτσι λοιπόν προήλθε η ονομασία του Λυκαβηττού και όχι από δήθεν λύκους που είχαν τις φωλιές τους εκεί,όπως κάποιοι ισχυρίζονται.
Σύμφωνα με άλλη εκδοχή του μύθου, όταν ένας εχθρικός στρατός πολιόρκησε την Αθήνα, οι Αθηναίοι ζήτησαν την συμβουλή του μαντείου των Δελφών, το οποίο τους έδωσε τον χρησμό, ότι για να σωθεί η πόλη, ένας Αθηναίος έπρεπε να θυσιαστεί με την θέληση του. Όταν η κόρη του Κέκροπα, Άγραυλος, έμαθε για τον χρησμό, ανέβηκε στην Ακρόπολη και πέφτοντας σκοτώθηκε. Οι Αθηναίοι για να την τιμήσουν, έκτισαν ένα ναό στην Ακρόπολη και κάθε χρόνο εόρταζαν τα Αγραύλεια. Επίσης το όνομα της αναφερόταν και στον όρκο των Αθηναίων οπλιτών.
Ο μύθος παριστάνει τον Εριχθόνιο ή Ερεχθέα σαν μισό άνθρωπο και μισό ερπετό ο οποίος εδραίωσε μια ισχυρή δυναστεία και έδωσε στον λαό του, που μέχρι τότε λεγόταν "Κεκροπίδες", το όνομα "Αθηναίοι "προς τιμή της θεάς . Ο Ερεχθέας τοποθέτησε στην Ακρόπολη το ξύλινο άγαλμα της Αθηνάς (ξόανο) σε ναό και εισήγαγε την εορτή, τα Αθήναια. Το άγαλμα αυτό λάμβανε μέρος στην εορτή των "Παναθήναιων" και των "Καλλυντιρίων και Πλυντηρίων".
Το όνομα "Αθήναι"που ισχύει μέχρι σήμερα το έδωσε ο βασιλιάς Θησέας (γι' αυτό και οι ξένοι την ονομάζουν ATHENS και όχι ATHEN). Και όμως μέχρι σήμερα δεν υπάρχει στην πόλη ούτε ένα άγαλμα του.
Άλλοι καθοριστικοί σταθμοί στην ιστορία των Αθηνών,υπήρξαν οι νομοθεσίες του Δράκοντος και του Σόλωνος, η επέκταση του Αθηναϊκού κράτους χάρις την οξυδερκή ναυτική πολιτική του Πεισίστρατου (6ος αιώνας), η μεταρρυθμιση του Κλεισθένους, η εγκαθίδρυση της Αθηναϊκης Δημοκρατίας το 508 π.Χ. και ο "χρυσους αιών"του Περικλέους.
ΟΙΚΟΔΟΜΗΜΑΤΑ ΠΡΟ ΤΟΥ 480 π.Χ.
Ο Πλάτων στο βιβλίο του "Κριτίας" (111ε–112δ), μιλά για την Ακρόπολη των Αθηνών, όπως ήταν τον καιρό πριν τον Ελληνοατλαντικό πόλεμο, τον οποίο και τοποθετεί εννέα χιλιετηρίδες πριν από την εποχή του, δηλαδή περί τα μέσα της 10ης προ Χριστού χιλιετίας. Σύμφωνα με το χωρίο αυτό του "Κριτία", η Ακρόπολη κάποτε ήταν πολύ μεγαλύτερη σε έκταση, ενώ απλωνόταν από τον Ηριδανό και τον Ιλισό ποταμό μέχρι τον Λυκαβηττό, περιλαμβάνοντας και την Πνύκα.
Η πόλη των Αθηνών που πολέμησε εναντίον των Ατλάντων ήταν χτισμένη πάνω στην εκτεταμένη Ακρόπολη. Η Ακρόπολη τέλος πήρε τις διαστάσεις που είχε την εποχή του Πλάτωνα εξ αιτίας έντονων βροχοπτώσεων, σεισμών και του κατακλυσμού. Το νερό παρέσυρε μαζί του το χώμα που κάποτε περιέβαλλε την Ακρόπολη, αφήνοντας στην θέση του μόνο συμπαγείς βράχους, όπως αυτός της σημερινής Ακροπόλης.
Ο βράχος επιλέχθηκε ήδη από τα νεολιθικά χρόνια (4000/3500-3000 π.Χ.) ως τόπος εγκατάστασης των κατοίκων της περιοχής. Κατάλοιπα εγκατάστασης της Πρώιμης και Μέσης Εποχής του Χαλκού εντοπίσθηκαν στην περιοχή του Ερεχθείου.
Γύρω στα 1400 π.Χ. με το 1000 π.Χ. κτίσθηκε ένα ψηλό τείχος, με τεράστιους ογκόλιθους κι ένα παλάτι, στο σημείο όπου αργότερα ανεγέρθη το Ερεχθείο. Μέσα στο τείχος, που λεγόταν "Πελασγικό" ή ''Κυκλώπειο'', υπήρχαν βωμοί, ιερά και μια πηγή, που ονομαζόταν Κλεψύδρα. Οι κάτοικοι της πόλης, που άρχισε να αναπτύσσεται κάτω από την Ακρόπολη, έβρισκαν καταφύγιο μέσα σ' αυτήν, όταν αντιμετώπιζαν εχθρικές επιδρομές.
Ο χαρακτήρας της αρχίζει να γίνεται έντονα θρησκευτικός, καθώς οι κάτοικοι των γύρω συνοικισμών θεωρούν πως το κοινό κέντρο της λατρείας πρέπει να τοποθετηθεί σ' αυτήν. Έτσι χτίζεται ο πρώτος ναός, αφιερωμένος στο μυθικό βασιλιά Ερεχθέα, το Ερεχθείο. Ο ναός αυτός χρησιμοποιεί τον πωρόλιθο σαν πρώτη ύλη και σήμερα σώζονται τα θεμέλια του.
Το 750 π.Χ. χτίζεται το Εκατόμπεδο,που λεγόταν έτσι γιατί είχε μήκος 100 πόδια, στη θέση που αργότερα θα χτιστεί ο Παρθενώνας. Ο τύραννος Πεισίστρατος κτίζει το 530 π.Χ. ένα νέο Εκατόμπεδο στη θέση του παλιού,ενώ δίνει ώθηση και στη διακόσμηση της Ακροπόλεως, χτίζοντας ιερά και βωμούς σε θεούς, ημίθεους και ήρωες. Τότε κατασκευάσθηκε το ιερό της Βραυρωνίας Αρτέμιδος και έγινε η πρώτη προσπάθεια για τη διαμόρφωση μνημειακού προπύλου του χώρου.
Οι πιστοί αφιέρωναν στο ιερό πολυάριθμα και πλούσια αναθήματα, όπως ήταν οι μαρμάρινες κόρες και οι ιππείς, τα χάλκινα και πήλινα αγαλμάτια και τα αγγεία, πολλά από τα οποία συνοδεύονταν από επιγραφές, που βεβαιώνουν τη σημασία που είχε η λατρεία της Αθηνάς κατά την αρχαϊκή περίοδο. Όταν οι Αθηναίοι επί Κλεισθένους εγκαθίδρυσαν το δημοκρατικό πολίτευμα, άρχισαν να χτίζουν καινούργιους ναούς για να λαμπρύνουν την πόλη τους κι έτσι γκρέμισαν το Εκατόμπεδο για να χτίσουν τον πρώτο Παρθενώνα.
Ο βράχος επιλέχθηκε ήδη από τα νεολιθικά χρόνια (4000/3500-3000 π.Χ.) ως τόπος εγκατάστασης των κατοίκων της περιοχής. Κατάλοιπα εγκατάστασης της Πρώιμης και Μέσης Εποχής του Χαλκού εντοπίσθηκαν στην περιοχή του Ερεχθείου.
Γύρω στα 1400 π.Χ. με το 1000 π.Χ. κτίσθηκε ένα ψηλό τείχος, με τεράστιους ογκόλιθους κι ένα παλάτι, στο σημείο όπου αργότερα ανεγέρθη το Ερεχθείο. Μέσα στο τείχος, που λεγόταν "Πελασγικό" ή ''Κυκλώπειο'', υπήρχαν βωμοί, ιερά και μια πηγή, που ονομαζόταν Κλεψύδρα. Οι κάτοικοι της πόλης, που άρχισε να αναπτύσσεται κάτω από την Ακρόπολη, έβρισκαν καταφύγιο μέσα σ' αυτήν, όταν αντιμετώπιζαν εχθρικές επιδρομές.
Ο χαρακτήρας της αρχίζει να γίνεται έντονα θρησκευτικός, καθώς οι κάτοικοι των γύρω συνοικισμών θεωρούν πως το κοινό κέντρο της λατρείας πρέπει να τοποθετηθεί σ' αυτήν. Έτσι χτίζεται ο πρώτος ναός, αφιερωμένος στο μυθικό βασιλιά Ερεχθέα, το Ερεχθείο. Ο ναός αυτός χρησιμοποιεί τον πωρόλιθο σαν πρώτη ύλη και σήμερα σώζονται τα θεμέλια του.
Το 750 π.Χ. χτίζεται το Εκατόμπεδο,που λεγόταν έτσι γιατί είχε μήκος 100 πόδια, στη θέση που αργότερα θα χτιστεί ο Παρθενώνας. Ο τύραννος Πεισίστρατος κτίζει το 530 π.Χ. ένα νέο Εκατόμπεδο στη θέση του παλιού,ενώ δίνει ώθηση και στη διακόσμηση της Ακροπόλεως, χτίζοντας ιερά και βωμούς σε θεούς, ημίθεους και ήρωες. Τότε κατασκευάσθηκε το ιερό της Βραυρωνίας Αρτέμιδος και έγινε η πρώτη προσπάθεια για τη διαμόρφωση μνημειακού προπύλου του χώρου.
Οι πιστοί αφιέρωναν στο ιερό πολυάριθμα και πλούσια αναθήματα, όπως ήταν οι μαρμάρινες κόρες και οι ιππείς, τα χάλκινα και πήλινα αγαλμάτια και τα αγγεία, πολλά από τα οποία συνοδεύονταν από επιγραφές, που βεβαιώνουν τη σημασία που είχε η λατρεία της Αθηνάς κατά την αρχαϊκή περίοδο. Όταν οι Αθηναίοι επί Κλεισθένους εγκαθίδρυσαν το δημοκρατικό πολίτευμα, άρχισαν να χτίζουν καινούργιους ναούς για να λαμπρύνουν την πόλη τους κι έτσι γκρέμισαν το Εκατόμπεδο για να χτίσουν τον πρώτο Παρθενώνα.
Ο ναός δεν τελείωσε, γιατί το 480 π.Χ. οι Πέρσες κατέλαβαν την Αθήνα την οποία έκαψαν καθώς και την Ακρόπολη και το ξύλινο τείχος της εισόδου (μετέπειτα Προπύλαια), φονεύοντας τους καταφυγόντας σ'αυτήν και τους φρουρούς της, καταστρέφοντας τα πάντα και λεηλατώντας αξιόλογα έργα τέχνης.Δεν εσεβάσθηκαν ούτε την "Ιερά Ελαία" (Μορίαν).
Η πυρποληθείσα ιερά ελαία την επομένη ημέρα άνθισε και επέταξε ανθούς. Αυτό ήταν σημάδι της θεάς ότι η πόλη θα ξαναγεννιόταν και ο Ξέρξης θα τιμωρείτο για την ύβρη του,θα υφίστατο όλεθρο,¨μόρον¨, όπως και έγινε !!!
ΧΡΥΣΟΥΣ ΑΙΩΝ ΤΩΝ ΑΘΗΝΩΝ
Μετά την αποχώρηση των Περσών,η πρώτη φροντίδα των Αθηναίων ήταν να επισκευάσουν πρόχειρα τον Εκατόμπεδο ναό για να στεγάσουν πρόχειρα το ξόανο της θεάς Αθηνάς το οποίο είχαν πάρει μαζί τους στην Σαλαμίνα. Έπειτα ενταφίασαν το γλυπτό διάκοσμο των κατεστραμμένων ναών καθώς και όσα αναθήματα είχαν διασωθεί, γεμίζοντας τις φυσικές κοιλότητες του εδάφους και διαμορφώνοντας με αυτό τον τρόπο τεχνητά άνδηρα στο χώρο του ιερού.
Η Ακρόπολη οχυρώθηκε με νέο τείχος, αρχικά από το Θεμιστοκλή (στη βόρεια πλευρά) και στη συνέχεια από τον Κίμωνα (στη νότια πλευρά). Μάλιστα, στο βόρειο τμήμα του τείχους ενσωματώθηκαν αρχιτεκτονικά μέλη των κατεστραμμένων ναών, που φαίνονται μέχρι σήμερα από την αρχαία Αγορά και από τη βόρεια πλευρά της πόλης.
Το 478 π.Χ. (ένα έτος μετά την μάχη των Πλαταιών) δημιουργήθηκε η πρώτη Αθηναϊκή συμμαχία. Τότε στο προσκήνιο της Δημοκρατικής παράταξης εμφανίζεται ένας νέος πολιτικός, ο Περικλής, η εποχή του οποίου ονομάσθει ¨Χρυσούς Αιών" των Αθηνών.
"Ουδέποτε εις την ιστορίαν της ανθρωπότητος επανελήφθη αυτό το θαύμα. Τόσον πολλά αριστουργήματα, τόσον αθάνατα έργα, με τόσον αμετάκλητον επίδρασιν επί του πολιτισμού ολοκλήρου της ανθρωπότητος..."
Ο Περικλής πλαισιωνόταν από έναν μεγάλο κύκλο καλλιτεχνών, ποιητών, φιλοσόφων, αρχιτεκτόνων, γλυπτών, ζωγράφων, κλπ.Υποβάλει στην Εκκλησία του Δήμου πρόταση να εγκριθεί διάθεση μέρους των χρημάτων του συμμαχικού ταμείου,για την ανοικοδόμηση των ναών και των μνημείων της Ακροπόλεως. Αμέσως μετά την υπερψήφιση της προτάσεως καταστρώνεται συνολικό πρόγραμμα έργων από ¨λαμπρό Πεντελικό μάρμαρο" και αρχίζει η κατασκευή του Παρθενώνος, των Προπυλαίων, του ναού της Απτέρου Νίκης και του Ερεχθείου.
Για την εκτέλεσή του εργάσθηκαν πολλοί άνθρωποι, Αθηναίοι και ξένοι, ελεύθεροι και δούλοι, με ημερομίσθιο μία δραχμή.
ΟΙΚΟΔΟΜΗΜΑΤΑ ΚΑΙ ΑΓΑΛΜΑΤΑ ΣΤΗΝ ΑΚΡΟΠΟΛΗ
Ο βράχος της Ακρόπολης σε παλαιότερες εποχές είχε μεγαλύτερο ύψος. Το σημείο που βρίσκονται σήμερα τα ιερά είναι στην κυριολεξία ισοπεδωμένο για να δεχθεί τα έργα. Τα αριθμητικά στοιχεία του βράχου είναι : Μήκος 330 μέτρα, στην κορυφή 270 μ. μέσο πλάτος 156 μ. και ύψος από την επιφάνεια της θάλασσας 156 μ. Εάν επεκτείνουμε τις παρειές του βράχου,σε ύψος 835,50 μ. σχηματίζει πυραμιδοειδές στερεό.Όλος ο όγκος του βράχου έχει υπολογιστεί σε 1.617.165 κυβικά μέτρα.
Όλα τα κτίσματα της Ακρόπολης είναι κατασκευασμένα από Πεντελικό μάρμαρο με τη μοναδική στο κόσμο κρυσταλλοδομή, το οποίο υπόκειται στο φαινόμενο του πιεζοηλεκτρισμού κάτω υπό ορισμένες συνθήκες, με αποτέλεσμα την δημιουργία ηλεκτρομαγνητικών πεδίων.
Αυτοί που συνέλαβαν, σχεδίασαν και υλοποίησαν το μεγαλείο όλων των κατασκευών του ιερού βράχου ήταν οι αρχιτέκτονες, Ικτίνος, Καλλικράτης, Μνησικλής, Καλλίμαχος και ο γλύπτης Φειδίας ο οποίος ήταν και ο γενικός επόπτης του όλου έργου.
Αυτά ήταν:
Ο βράχος της Ακρόπολης σε παλαιότερες εποχές είχε μεγαλύτερο ύψος. Το σημείο που βρίσκονται σήμερα τα ιερά είναι στην κυριολεξία ισοπεδωμένο για να δεχθεί τα έργα. Τα αριθμητικά στοιχεία του βράχου είναι : Μήκος 330 μέτρα, στην κορυφή 270 μ. μέσο πλάτος 156 μ. και ύψος από την επιφάνεια της θάλασσας 156 μ. Εάν επεκτείνουμε τις παρειές του βράχου,σε ύψος 835,50 μ. σχηματίζει πυραμιδοειδές στερεό.Όλος ο όγκος του βράχου έχει υπολογιστεί σε 1.617.165 κυβικά μέτρα.
Όλα τα κτίσματα της Ακρόπολης είναι κατασκευασμένα από Πεντελικό μάρμαρο με τη μοναδική στο κόσμο κρυσταλλοδομή, το οποίο υπόκειται στο φαινόμενο του πιεζοηλεκτρισμού κάτω υπό ορισμένες συνθήκες, με αποτέλεσμα την δημιουργία ηλεκτρομαγνητικών πεδίων.
Αυτοί που συνέλαβαν, σχεδίασαν και υλοποίησαν το μεγαλείο όλων των κατασκευών του ιερού βράχου ήταν οι αρχιτέκτονες, Ικτίνος, Καλλικράτης, Μνησικλής, Καλλίμαχος και ο γλύπτης Φειδίας ο οποίος ήταν και ο γενικός επόπτης του όλου έργου.
Αυτά ήταν:
1. Τα Προπύλαια που ήταν και η είσοδος στο χώρο των ιερών : Η μνημειώδης αυτή είσοδος της Ακρόπολης άρχισε να χτίζεται το 436 π.Χ. μετά την ολοκλήρωση του Παρθενώνα, πάνω σε σχέδια του αρχιτέκτονα Μνησικλή.
Το κεντρικό οικοδόμημα είναι κάτι το μοναδικό στην αρχαία Ελληνική αρχιτεκτονική. Έξι κίονες δωρικού ρυθμού κοσμούν την πρόσοψη. Οι κίονες λεπταίνουν, όσο προχωρούν από τη βάση προς την κορυφή. Πάνω σ’ αυτούς στηριζόταν ένα αέτωμα χωρίς διακόσμηση. Ο κύριος χώρος διαιρείται σε τρία κλίτη με δύο σειρές από ιωνικούς κίονες (τρεις σε κάθε πλευρά).
Η βόρεια πτέρυγα, μήκους 8,5 μέτρων αποτελείται από μια στοά και ένα δωμάτιο, την πινακοθήκη, που φιλοξενούσε εκθέσεις ζωγραφικής.
Η νότια πλευρά των Προπύλαιων δεν ολοκληρώθηκε ποτέ. Το 431 άρχισε ο Πελοποννησιακός πόλεμος και οι εργασίες σταμάτησαν. Το 429 πέθανε ο Περικλής και οι διάδοχοί του δεν έδειξαν ενδιαφέρον για την συνέχιση του έργου.
2. Ο Ναός του Παρθενώνα : Αφιερωμένος στην αειπάρθενο θεά Αθηνά,είναι το αριστούργημα των κατασκευών, άφθαστου κάλλους και αρμονίας που εκφράζει την ολοκλήρωση της ανθρώπινης διάνοιας, με το εντός αυτού χρυσελεφάντινο άγαλμα της Αθηνάς ύψους 13 μ.
Το κεντρικό οικοδόμημα είναι κάτι το μοναδικό στην αρχαία Ελληνική αρχιτεκτονική. Έξι κίονες δωρικού ρυθμού κοσμούν την πρόσοψη. Οι κίονες λεπταίνουν, όσο προχωρούν από τη βάση προς την κορυφή. Πάνω σ’ αυτούς στηριζόταν ένα αέτωμα χωρίς διακόσμηση. Ο κύριος χώρος διαιρείται σε τρία κλίτη με δύο σειρές από ιωνικούς κίονες (τρεις σε κάθε πλευρά).
Η βόρεια πτέρυγα, μήκους 8,5 μέτρων αποτελείται από μια στοά και ένα δωμάτιο, την πινακοθήκη, που φιλοξενούσε εκθέσεις ζωγραφικής.
Η νότια πλευρά των Προπύλαιων δεν ολοκληρώθηκε ποτέ. Το 431 άρχισε ο Πελοποννησιακός πόλεμος και οι εργασίες σταμάτησαν. Το 429 πέθανε ο Περικλής και οι διάδοχοί του δεν έδειξαν ενδιαφέρον για την συνέχιση του έργου.
2. Ο Ναός του Παρθενώνα : Αφιερωμένος στην αειπάρθενο θεά Αθηνά,είναι το αριστούργημα των κατασκευών, άφθαστου κάλλους και αρμονίας που εκφράζει την ολοκλήρωση της ανθρώπινης διάνοιας, με το εντός αυτού χρυσελεφάντινο άγαλμα της Αθηνάς ύψους 13 μ.
3. Ο ναός της ''Απτέρου Νίκης'' που βρίσκεται στα Προπύλαια : Είναι ένας μικρός ολομάρμαρος ναός, που άρχισε να χτίζεται μεταξύ 427 και 424 π.Χ. με αρχιτέκτονα τον Καλλικράτη. Είναι τετράστυλος αμφιπρόστυλος ναός ιωνικού ρυθμού, χτισμένος πάνω σε μία κρηπίδα με τέσσερις βαθμίδες. Δεν έχει πρόναο. Μέσα στο σηκό του, υπήρχε άγαλμα της Αθηνάς Νίκης, που κρατούσε στο αριστερό χέρι περικεφαλαία και στο δεξί ρόδι, που είναι σύμβολο των θεών του κάτω κόσμου.
Λέγεται ότι την ονόμασαν άπτερο για να μην φύγει(η νίκη) από την πολη. Η ζωφόρος και τα αετώματα του ναού είχαν γλυπτές παραστάσεις. Γύρω από το 421 - 415 π.Χ. ο ναός περιβλήθηκε με ένα συνεχές θωράκιο ύψους 1,05 μ., που στην εξωτερική του όψη παρίστανε ανάγλυφες Πτερωτές Νίκες την ώρα που προετοιμάζουν θυσία για την Αθηνά.
4. Το Ερεχθείο : Αυτός ο ναός χτίσθηκε στην θέση παλαιοτέρου, από το 421 μέχρι το 407 π.Χ, με σχέδια του αρχιτέκτονα Καλλίμαχου.Το σπουδαίο είναι ότι στη διάρκεια ενός φοβερού πολέμου,του Πελοποννησιακού, οι Αθηναίοι δεν σταμάτησαν την κατασκευή του.
4. Το Ερεχθείο : Αυτός ο ναός χτίσθηκε στην θέση παλαιοτέρου, από το 421 μέχρι το 407 π.Χ, με σχέδια του αρχιτέκτονα Καλλίμαχου.Το σπουδαίο είναι ότι στη διάρκεια ενός φοβερού πολέμου,του Πελοποννησιακού, οι Αθηναίοι δεν σταμάτησαν την κατασκευή του.
Το Ερέχθειο αποτελεί τον ιερότερο τόπο λατρείας στην Αθήνα. Εκεί λατρεύονταν εκτός από την Αθηνά, ο Ποσειδώνας, ο Ήφαιστος, ο Κέκροπας (ο μυθικός πρώτος βασιλιάς της Αθήνας) και οι τοπικοί ήρωες Ερεχθέας και Βούτης. Όλη η ιστορία της πόλης συμπυκνωνόταν σε αυτό το σημείο.
Απομεινάρια της διαμάχης μεταξύ Αθηνάς και Ποσειδώνα για την κυριότητα της πόλης είναι η ελιά(σύγχρονη ) που χάρισε η θεά στην πόλη και βρίσκεται στα δυτικά του κτηρίου και τα ίχνη της τρίαινας του Ποσειδώνα στον βράχο απ' όπου ανέβλυσε αλμυρό νερό. Ακόμα, κάτω από την βόρεια πρόσταση του Ερεχθείου βρίσκεται η τρύπα όπου σύμφωνα με τον μύθο κατοικούσε το ιερό φίδι του Εριχθόνιου.
Απομεινάρια της διαμάχης μεταξύ Αθηνάς και Ποσειδώνα για την κυριότητα της πόλης είναι η ελιά(σύγχρονη ) που χάρισε η θεά στην πόλη και βρίσκεται στα δυτικά του κτηρίου και τα ίχνη της τρίαινας του Ποσειδώνα στον βράχο απ' όπου ανέβλυσε αλμυρό νερό. Ακόμα, κάτω από την βόρεια πρόσταση του Ερεχθείου βρίσκεται η τρύπα όπου σύμφωνα με τον μύθο κατοικούσε το ιερό φίδι του Εριχθόνιου.
Σε ένα από τα εσωτερικά δωμάτια φυλασσόταν το πανάρχαιο (ακόμα και για τότε) ιερώτατο από ξύλο ελιάς, άγαλμα(ξόανο) της θεάς που δεν το κατασκεύασε ανθρώπινο χέρι, γνωστό σαν «Αχειροποίητο», γιατί το είχε ρίξει ο ίδιος ο Ζευς και για τούτο και «Διιπετές» καλείτο. Μπροστά του έκαιγε η περίφημη "άσβεστος λυχνία" και προς τιμή του,όπως προανέφερα, ελάμβανε χώρα η εορτή των "Παναθηναίων".
Το σημείο που χτίστηκε το Ερέχθειο δεν είναι καθόλου τυχαίο καθώς εκεί βρισκόταν και το Μυκηναϊκό ανάκτορο με όλα τα ιερά του. Στον χώρο του θεωρούσαν ότι υπήρχε ο τάφος του Κέκροπα.
Ανατολικά έχει πρόσταση με έξι ιωνικούς κίονες, βόρεια ένα μνημειώδες πρόπυλο με διακοσμημένη θύρα και νότια μία πρόσταση με έξι κόρες, τις γνωστές Καρυάτιδες (αναπαραστάσεις Αθηναίδων απαράμιλλης ομορφιάς)που στηρίζουν την στέγη. Η μία απ'αυτές βρίσκεται στο Βρετανικό μουσείο του Λονδίνου (κλεμμένη) και στην θέση της υπάρχει γύψινο αντίγραφο.
5. Το Πανδρόσειο : Λίγο πιο δυτικά του Ερεχθείου, μικρή στοά αφιερωμένη στη νύμφη Πάνδροσο, κόρη του Κέκροπα.
6. Το Αρρηφόριο : Ήταν ένα τετράγωνο κτίσμα στο βορειοδυτικό μέρος της Ακρόπολης. Ήταν ο τόπος κατοικίας των δύο Αρρηφόρων, δύο κοριτσιών ηλικίας 7-11 ετών, που επιλέγονταν κάθε χρόνο για να υφάνουν τον Πέπλο της Αθηνάς με τον οποίο κάλυπταν το ξόανο της θεάς κατά τη γιορτή των Παναθηναίων. Επίσης κατά τη διάρκεια των Αρρηφορίων κουβαλούσαν τα Ιερά Σκεύη (άρρητα-φέρειν). Ήταν κατασκευασμένο από πωρόλιθο και είχε τέσσερις πλευρές με μήκος 12,5 μέτρα η κάθε μία. Στην νότια πλευρά όπου και η κεντρική είσοδος, υπήρχε κιονοστοιχία με δύο ή τέσσερις δωρικούς κίονες.
Το σημείο που χτίστηκε το Ερέχθειο δεν είναι καθόλου τυχαίο καθώς εκεί βρισκόταν και το Μυκηναϊκό ανάκτορο με όλα τα ιερά του. Στον χώρο του θεωρούσαν ότι υπήρχε ο τάφος του Κέκροπα.
Ανατολικά έχει πρόσταση με έξι ιωνικούς κίονες, βόρεια ένα μνημειώδες πρόπυλο με διακοσμημένη θύρα και νότια μία πρόσταση με έξι κόρες, τις γνωστές Καρυάτιδες (αναπαραστάσεις Αθηναίδων απαράμιλλης ομορφιάς)που στηρίζουν την στέγη. Η μία απ'αυτές βρίσκεται στο Βρετανικό μουσείο του Λονδίνου (κλεμμένη) και στην θέση της υπάρχει γύψινο αντίγραφο.
5. Το Πανδρόσειο : Λίγο πιο δυτικά του Ερεχθείου, μικρή στοά αφιερωμένη στη νύμφη Πάνδροσο, κόρη του Κέκροπα.
6. Το Αρρηφόριο : Ήταν ένα τετράγωνο κτίσμα στο βορειοδυτικό μέρος της Ακρόπολης. Ήταν ο τόπος κατοικίας των δύο Αρρηφόρων, δύο κοριτσιών ηλικίας 7-11 ετών, που επιλέγονταν κάθε χρόνο για να υφάνουν τον Πέπλο της Αθηνάς με τον οποίο κάλυπταν το ξόανο της θεάς κατά τη γιορτή των Παναθηναίων. Επίσης κατά τη διάρκεια των Αρρηφορίων κουβαλούσαν τα Ιερά Σκεύη (άρρητα-φέρειν). Ήταν κατασκευασμένο από πωρόλιθο και είχε τέσσερις πλευρές με μήκος 12,5 μέτρα η κάθε μία. Στην νότια πλευρά όπου και η κεντρική είσοδος, υπήρχε κιονοστοιχία με δύο ή τέσσερις δωρικούς κίονες.
Στα δυτικά, υπήρχε μία τειχισμένη αυλή όπου οι Αρρηφόρες έπαιζαν και ονομαζόταν Σφαιρίστρα των Αρρηφόρων. Πολύ σημαντικό ρόλο στο κτήριο αλλά και στις γιορτές τις οποίες εξυπηρετούσε, ήταν η σκαλισμένη στην βόρεια πλαγιά της Ακρόπολης κλίμακα η οποία συνέδεε το Αρρηφόριο με την πόλη. Από αυτήν την κλίμακα γινόταν η "Κάθοδος των Αρρηφόρων" κατά τα Αρρηφόρια.
Η τελετή διαδραματιζόταν κατά τη διάρκεια της νύχτας και είχε μυστηριακό χαρακτήρα.Οι δύο Αρρηφόροι τοποθετούσαν στα κεφάλια τους, κατά το πρότυπο των Καρυάτιδων, καλάθια που τους έδινε η ιέρεια της Αθηνάς των οποίων το περιεχόμενο δεν γνώριζε ούτε η ιέρεια ούτε και οι ίδιες. Στη συνέχεια κατευθύνονταν προς τον περίβολο της Αφροδίτης των Κήπων ο οποίος βρισκόταν εκεί κοντά, στη βόρεια πλευρά της Ακρόπολης που είναι σήμερα κλειστή για το κοινό και από εκεί κατέβαιναν μέσω ενός υπόγειου περάσματος στο εσωτερικό του βράχου.
Η τελετή διαδραματιζόταν κατά τη διάρκεια της νύχτας και είχε μυστηριακό χαρακτήρα.Οι δύο Αρρηφόροι τοποθετούσαν στα κεφάλια τους, κατά το πρότυπο των Καρυάτιδων, καλάθια που τους έδινε η ιέρεια της Αθηνάς των οποίων το περιεχόμενο δεν γνώριζε ούτε η ιέρεια ούτε και οι ίδιες. Στη συνέχεια κατευθύνονταν προς τον περίβολο της Αφροδίτης των Κήπων ο οποίος βρισκόταν εκεί κοντά, στη βόρεια πλευρά της Ακρόπολης που είναι σήμερα κλειστή για το κοινό και από εκεί κατέβαιναν μέσω ενός υπόγειου περάσματος στο εσωτερικό του βράχου.
Εκεί κάτω άφηναν τα αντικείμενα που μετέφεραν και έπαιρναν κάτι άλλο που έβρισκαν εκεί, ήδη τοποθετημένο και το έφερναν πίσω μαζί τους καλυμμένο. Ο Παυσανίας είτε δεν ήξερε είτε δεν ήθελε να αποκαλύψει τη φύση των μεταφερομένων αντικειμένων, καθώς και τη σκοπιμότητα αυτής της τελετής για την οποία απ' ότι φαίνεται ούτε και η ίδια η ιέρεια της Αθηνάς είχε επαρκή πληροφόρηση.
Αλλά τότε ποιος είχε γνώση της φύσης όλων αυτών των αντικειμένων που πηγαινοέρχονταν μέσω υπογείων περασμάτων, χωρίς κάποιο προφανή λόγο με τέτοια μυστικότητα και μέσα στη νύχτα ? Προφανώς κάποιος ή κάποιοι που κατείχαν ιδιαίτερες γνώσεις σχετικές τόσο με τις χθόνιες λατρείες, οι οποίες είχαν συνήθως μυστηριακό χαρακτήρα,όσο και με την ιδιαίτερη σημασία της χρήσης σπηλαίων και υπογείων στοών σε τέτοιου είδους τελετουργίες.
Μην ξεχνάμε ότι σήμερα είναι κλεισμένα όλα τα σπήλαια του ιερού βράχου και απαγορεύεται η προσέγγιση σ'αυτα. Γιατί άραγε ? Τι θέλουν να μας κρύψουν ?
7. Το Ιερό της Βραυρωνίας Αρτέμιδος (προστάτιδα των λεχώνων) : Χτίσθηκε το 459 π.Χ. ΝΔ του Παρθενώνα και λειτουργούσε ως παράρτημα πιθανότατα του μεγάλου ιερού στη Βραυρώνα Αττικής. Είχε σχήμα "Π" και στις πλαϊνές πτέρυγες φυλάσσονταν τα αναθήματα των πιστών.
8. Το Ιερό Διός Πολιέως ΒΑ του Παρθενώνα : Σε αυτό πραγματοποιούνταν θυσίες βοδιών κατά τους εορτασμούς των Διιπολίων. Για τον λόγο αυτό, κατά τους αρχαϊκούς χρόνους εκτρέφονταν εκεί δίπλα, βόδια όπως φαίνεται από μία επιγραφή που απαγορεύει τη ρίψη κοπριάς στα δυτικά του ναού.
9. Το Ιερό Πανδίονος ανατολικά του Παρθενώνα : Αφιερωμένο στον μυθικό ήρωα και βασιλιά Πανδίονα, γιο του Εριχθόνιου ή του Κέκροπα. Σε αυτό πραγματοποιούσε τις διάφορες τελετές της η Πανδιονίδα φυλή (μία από τις 10 φυλές των Αθηνών). Στη θέση του βρίσκεται σήμερα το παλιό μουσείο της Ακρόπολης.
10. Η Χαλκοθήκη ΝΔ του Παρθενώνα : Το κτήριο φιλοξενούσε κυρίως μεταλλικά αναθήματα που είχαν προσφέρει οι πιστοί στην Ακρόπολη, όπως όπλα, αγαλματίδια και υδρίες, και αποτελούσαν περιουσία της θεάς Αθηνάς. Σήμερα σώζονται μόνο λίγα λαξεύματα στο βράχο και κατάλοιπα από τα πώρινα θεμέλιά της.
11. Το χάλκινο άγαλμα της Αθηνάς Προμάχου, ύψους οκτώ μέτρων, μεταξύ των Προπυλαίων και του Παρθενώνα,από τη δεκάτη των λαφύρων που πήραν οι Αθηναίοι μετά τη μάχη του Μαραθώνα.Υπήρχε μέχρι το 395 μ.Χ. και φόβισε κατά τα λεγόμενα τον Αλάριχο κατά την εισβολή του στην Αθήνα. Δεν είναι γνωστό πότε και από ποιον καθαιρέθηκε. Πιθανώς να το μετέφεραν οι Χριστιανοί στο Βυζάντιο.
12. Το χάλκινο άγαλμα της Λημνίας Αθηνάς, πιθανώς στην Βόρεια πλευρά αμέσως μετά τα Προπύλαια (δεν υπάρχουν ακριβή στοιχεία για την θέση του).
13. Ο Ναός της Ρώμης και του Αυγούστου ήταν ένα μικρό ιωνικό ναϊκό οικοδόμημα στην Ακρόπολη των Αθηνών.
Ο ναός αυτός ήταν αφιερωμένος στην Ρώμη και στον πρώτο αυτοκράτορά της Οκταβιανό Αύγουστο. Χτίστηκε στα τέλη του 1ου αιώνα π.Χ., μετά το 27 π.Χ., οπότε ο Οκταβιανός είχε πάρει τον τίτλο του Αυγούστου. Πιθανότερη χρονολογία κατασκευής του είναι ανάμεσα στο 17 και 10 π.Χ.. Είχε κυκλικό σχήμα διαμέτρου 8,6 μέτρων περίπου και αποτελείτο από 9 ιωνικούς κίονες. Στεγαζόταν από ημισφαιρική ή κωνική οροφή με μαρμάρινα κεραμίδια.
Στους πρόποδες της Ακρόπολης υπήρχε μεγάλος αριθμός κτισμάτων με κυριότερα:
1. Το Ωδείο του Περικλή, η ξύλινη στέγη του οποίου ήταν κανονική πυραμίδα.
2. Το θέατρο του Διονύσου.
3. Το Ασκληπιείο.
4. Άγνωστο θέατρο στην θέση του οποίου χτίσθηκε το 161 μ.Χ. το Θέατρο του Ηρώδη του Αττικού και η στοά του Ευμένους.
Αλλά τότε ποιος είχε γνώση της φύσης όλων αυτών των αντικειμένων που πηγαινοέρχονταν μέσω υπογείων περασμάτων, χωρίς κάποιο προφανή λόγο με τέτοια μυστικότητα και μέσα στη νύχτα ? Προφανώς κάποιος ή κάποιοι που κατείχαν ιδιαίτερες γνώσεις σχετικές τόσο με τις χθόνιες λατρείες, οι οποίες είχαν συνήθως μυστηριακό χαρακτήρα,όσο και με την ιδιαίτερη σημασία της χρήσης σπηλαίων και υπογείων στοών σε τέτοιου είδους τελετουργίες.
Μην ξεχνάμε ότι σήμερα είναι κλεισμένα όλα τα σπήλαια του ιερού βράχου και απαγορεύεται η προσέγγιση σ'αυτα. Γιατί άραγε ? Τι θέλουν να μας κρύψουν ?
7. Το Ιερό της Βραυρωνίας Αρτέμιδος (προστάτιδα των λεχώνων) : Χτίσθηκε το 459 π.Χ. ΝΔ του Παρθενώνα και λειτουργούσε ως παράρτημα πιθανότατα του μεγάλου ιερού στη Βραυρώνα Αττικής. Είχε σχήμα "Π" και στις πλαϊνές πτέρυγες φυλάσσονταν τα αναθήματα των πιστών.
8. Το Ιερό Διός Πολιέως ΒΑ του Παρθενώνα : Σε αυτό πραγματοποιούνταν θυσίες βοδιών κατά τους εορτασμούς των Διιπολίων. Για τον λόγο αυτό, κατά τους αρχαϊκούς χρόνους εκτρέφονταν εκεί δίπλα, βόδια όπως φαίνεται από μία επιγραφή που απαγορεύει τη ρίψη κοπριάς στα δυτικά του ναού.
9. Το Ιερό Πανδίονος ανατολικά του Παρθενώνα : Αφιερωμένο στον μυθικό ήρωα και βασιλιά Πανδίονα, γιο του Εριχθόνιου ή του Κέκροπα. Σε αυτό πραγματοποιούσε τις διάφορες τελετές της η Πανδιονίδα φυλή (μία από τις 10 φυλές των Αθηνών). Στη θέση του βρίσκεται σήμερα το παλιό μουσείο της Ακρόπολης.
10. Η Χαλκοθήκη ΝΔ του Παρθενώνα : Το κτήριο φιλοξενούσε κυρίως μεταλλικά αναθήματα που είχαν προσφέρει οι πιστοί στην Ακρόπολη, όπως όπλα, αγαλματίδια και υδρίες, και αποτελούσαν περιουσία της θεάς Αθηνάς. Σήμερα σώζονται μόνο λίγα λαξεύματα στο βράχο και κατάλοιπα από τα πώρινα θεμέλιά της.
11. Το χάλκινο άγαλμα της Αθηνάς Προμάχου, ύψους οκτώ μέτρων, μεταξύ των Προπυλαίων και του Παρθενώνα,από τη δεκάτη των λαφύρων που πήραν οι Αθηναίοι μετά τη μάχη του Μαραθώνα.Υπήρχε μέχρι το 395 μ.Χ. και φόβισε κατά τα λεγόμενα τον Αλάριχο κατά την εισβολή του στην Αθήνα. Δεν είναι γνωστό πότε και από ποιον καθαιρέθηκε. Πιθανώς να το μετέφεραν οι Χριστιανοί στο Βυζάντιο.
12. Το χάλκινο άγαλμα της Λημνίας Αθηνάς, πιθανώς στην Βόρεια πλευρά αμέσως μετά τα Προπύλαια (δεν υπάρχουν ακριβή στοιχεία για την θέση του).
13. Ο Ναός της Ρώμης και του Αυγούστου ήταν ένα μικρό ιωνικό ναϊκό οικοδόμημα στην Ακρόπολη των Αθηνών.
Ο ναός αυτός ήταν αφιερωμένος στην Ρώμη και στον πρώτο αυτοκράτορά της Οκταβιανό Αύγουστο. Χτίστηκε στα τέλη του 1ου αιώνα π.Χ., μετά το 27 π.Χ., οπότε ο Οκταβιανός είχε πάρει τον τίτλο του Αυγούστου. Πιθανότερη χρονολογία κατασκευής του είναι ανάμεσα στο 17 και 10 π.Χ.. Είχε κυκλικό σχήμα διαμέτρου 8,6 μέτρων περίπου και αποτελείτο από 9 ιωνικούς κίονες. Στεγαζόταν από ημισφαιρική ή κωνική οροφή με μαρμάρινα κεραμίδια.
Στους πρόποδες της Ακρόπολης υπήρχε μεγάλος αριθμός κτισμάτων με κυριότερα:
1. Το Ωδείο του Περικλή, η ξύλινη στέγη του οποίου ήταν κανονική πυραμίδα.
2. Το θέατρο του Διονύσου.
3. Το Ασκληπιείο.
4. Άγνωστο θέατρο στην θέση του οποίου χτίσθηκε το 161 μ.Χ. το Θέατρο του Ηρώδη του Αττικού και η στοά του Ευμένους.
ΥΠΟΧΘΟΝΙΕΣ ΤΕΛΕΤΕΣ ΣΤΗΝ ΑΚΡΟΠΟΛΗ
Ο ιερός βράχος της Ακρόπολης με τους αμέτρητους λατρευτικούς χώρους, τα σπήλαια που αφθονούν στα διαβρωμένα του πετρώματα και τις ιερές πηγές που ξεπηδούν από τα σπλάχνα του, τυλιγμένος στην άχλη του μύθου στέκεται αινιγματικά στο πέρασμα του χρόνου κεντρίζοντας το ενδιαφέρον των εξερευνητών με το πλήθος των θρύλων που μιλούν για θησαυρούς θαμμένους στο εσωτερικό του, αμύθητης αξίας αγάλματα και λαβυρινθώδεις στοές που φτάνουν μέχρι τη θάλασσα.
Ο ιερός βράχος της Ακρόπολης με τους αμέτρητους λατρευτικούς χώρους, τα σπήλαια που αφθονούν στα διαβρωμένα του πετρώματα και τις ιερές πηγές που ξεπηδούν από τα σπλάχνα του, τυλιγμένος στην άχλη του μύθου στέκεται αινιγματικά στο πέρασμα του χρόνου κεντρίζοντας το ενδιαφέρον των εξερευνητών με το πλήθος των θρύλων που μιλούν για θησαυρούς θαμμένους στο εσωτερικό του, αμύθητης αξίας αγάλματα και λαβυρινθώδεις στοές που φτάνουν μέχρι τη θάλασσα.
Υπάρχει μάλιστα και ένας θρύλος που τοποθετεί κάτω από το έδαφος της Ακρόπολης έναν Παρθενώνα μεγαλοπρεπέστερο από αυτόν που όλοι γνωρίζουμε. Ο Παυσανίας, περιγράφοντας την Ακρόπολη αναφέρει διάφορα ιερά σπήλαια, μυστηριώδη πηγάδια και ανοίγματα του εδάφους, καθώς και μυστικές τελετές που συνδέονταν με όλα αυτά.
Στη νότια πλευρά της Ακρόπολης, πάνω από το θέατρο του Διονύσου περιγράφει σπήλαιο πάνω στο οποίο βρισκόταν τοποθετημένος τρίποδας, ενώ στο εσωτερικό του έφερε παράσταση του Απόλλωνα και της Αρτέμιδος να σκοτώνουν τα παιδιά της Νιόβης. Το σπήλαιο σήμερα πέρα από κάποιους εναπομείναντες κίονες φιλοξενεί (φυσικά) και ένα χριστιανικό εκκλησάκι. Περιγράφοντας τον ιερό χώρο του Ερεχθείου ο Παυσανίας αναφέρει στο εσωτερικό του παράξενου οικοδομήματος την ύπαρξη ενός πηγαδιού με θαλασσινό νερό.
Στη νότια πλευρά της Ακρόπολης, πάνω από το θέατρο του Διονύσου περιγράφει σπήλαιο πάνω στο οποίο βρισκόταν τοποθετημένος τρίποδας, ενώ στο εσωτερικό του έφερε παράσταση του Απόλλωνα και της Αρτέμιδος να σκοτώνουν τα παιδιά της Νιόβης. Το σπήλαιο σήμερα πέρα από κάποιους εναπομείναντες κίονες φιλοξενεί (φυσικά) και ένα χριστιανικό εκκλησάκι. Περιγράφοντας τον ιερό χώρο του Ερεχθείου ο Παυσανίας αναφέρει στο εσωτερικό του παράξενου οικοδομήματος την ύπαρξη ενός πηγαδιού με θαλασσινό νερό.
Το αξιοπερίεργο σχετικά με αυτό το πηγάδι δεν είναι τόσο το γεγονός ότι διαθέτει θαλασσινό νερό, όσο το γεγονός ότι όταν φυσάει νοτιάς ακούγεται μέσα του ήχος κυμάτων! Υποτίθεται ότι το πηγάδι αυτό το δημιούργησε ο Ποσειδώνας με ένα χτύπημα της τρίαινάς του ως σημείο προς τους Αθηναίους κατά τη διάρκεια της φιλονικίας του με την Αθηνά για την κυριαρχία της πόλης.
Άραγε υπάρχει κάποια υπόγεια διαδρομή που ενώνει το πηγάδι του Ερεχθείου με τη θάλασσα ? Σήμερα πάντως το εσωτερικό του Ερεχθείου είναι απρόσιτο για το κοινό, και κανείς δεν μπορεί να είναι εκεί όταν φυσάει νοτιάς για να ακούσει τον φλοίσβο των κυμάτων που ταξιδεύει με τον άνεμο ως το βράχο της Ακρόπολης.
Δυτικά του Ερεχθείου σε συνέχεια με τον ναό της Αθηνάς βρίσκεται ναός της Πανδρόσου της μόνης κόρης του Κέκροπα που δεν παράκουσε την εντολή της θεάς να μην ανοιχθεί το καλάθι στο εσωτερικό του οποίου βρισκόταν το παράξενο οφιοειδές πλάσμα που ονομαζόταν Εριχθόνιος. Σχετική με αυτό το γεγονός,ίσως σε ανάμνησή του, ήταν μια μυστική τελετή την οποία περιγράφει ο Παυσανίας.
Γι' αυτή την τελετή προετοιμάζονταν δύο μικρές παρθένες,διαφορετικές κάθε φορά,οι οποίες κατοικούσαν για κάποιο χρονικό διάστημα κοντά στον ναό της Πολιάδος Αθηνάς και ονομάζονταν αρρηφόροι. Η τελετή διαδραματιζόταν κατά τη διάρκεια της νύχτας και είχε μυστηριακό χαρακτήρα.
Οι δύο αρρηφόροι τοποθετούσαν στα κεφάλια τους, κατά το πρότυπο των Καρυάτιδων, καλάθια που τους έδινε η ιέρεια της Αθηνάς των οποίων το περιεχόμενο δεν γνώριζε ούτε η ιέρεια ούτε και οι ίδιες. Στη συνέχεια κατευθύνονταν προς τον περίβολο της Αφροδίτης των Κήπων ο οποίος βρισκόταν εκεί κοντά, στη βόρεια πλευρά της Ακρόπολης που είναι σήμερα κλειστή για το κοινό και από εκεί κατέβαιναν μέσω ενός υπόγειου περάσματος στο εσωτερικό του βράχου. Εκεί κάτω άφηναν τα αντικείμενα που μετέφεραν και έπαιρναν κάτι άλλο που έβρισκαν εκεί ήδη τοποθετημένο και έφερναν πίσω μαζί τους καλυμμένο.
Ο Παυσανίας είτε δεν ήξερε είτε δεν ήθελε να αποκαλύψει τη φύση των μεταφερομένων αντικειμένων, καθώς και τη σκοπιμότητα αυτής της τελετής για την οποία απ' ό,τι φαίνεται ούτε και η ίδια η ιέρεια της Αθηνάς είχε επαρκή πληροφόρηση. Αλλά τότε ποιος είχε γνώση της φύσης όλων αυτών των αντικειμένων που πηγαινοέρχονταν μέσω υπογείων περασμάτων, χωρίς κάποιο προφανή λόγο με τέτοια μυστικότητα και μέσα στη νύχτα ? Προφανώς κάποιος ή κάποιοι που κατείχαν ιδιαίτερες γνώσεις σχετικές τόσο με τις χθόνιες λατρείες, οι οποίες είχαν συνήθως μυστηριακό χαρακτήρα, όσο και με την ιδιαίτερη σημασία της χρήσης σπηλαίων και υπογείων στοών σε τέτοιου είδους τελετουργίες.
Οι αρχαιολόγοι παραδέχονται ότι στην Ακρόπολη υπάρχουν πολλά οικοδομικά επίπεδα, κάποια από τα οποία παραμένουν άγνωστα ακόμα και σήμερα. Αυτό συμβαίνει επειδή, κάθε φορά που κτιζόταν η Ακρόπολη, τα νέα οικοδομήματα χτίζονταν πάνω στα προηγούμενα. Και δεν θα ήταν επιτρεπτό για κανέναν λόγο, για να βρούμε τι κρύβεται στις αρχαιότερες στρώσεις, να δημιουργήσουμε οποιοδήποτε πρόβλημα στην νεότερες. Η Ακρόπολη λοιπόν έχει πολλά μυστικά ακόμα που περιμένουν να ανακαλυφθούν.
Στην νότια πλευρά της Ακρόπολης μάλιστα έχουν βρεθεί μεγάλα κομμάτια πέτρας. Αυτό γέννησε την υποψία ότι έχουν αφαιρεθεί με κάποιον τρόπο από το εσωτερικό του βράχου. Ως εκ τούτου θα ήταν πολύ πιθανό κάτω από την Ακρόπολη να υπάρχουν υπόγειοι θάλαμοι και στοές.
Η υποψία όμως αυτή του ότι υπάρχει κάτι αρκετά αξιόλογο κάτω από την Ακρόπολη που σχετίζεται με την αρχαία υπερτεχνολογία, ενισχύεται και από το ότι λέγεται ότι, κατά την διάρκεια της Γερμανικής κατοχής της Ελλάδας, τον καιρό του Β΄ Παγκοσμίου πολέμου, Ο Γερμανικός στρατός (Deutsche Wehrmacht) προχώρησε σε χαρτογράφηση των υπογείων στοών κάτω από την Ακρόπολη, αλλά σταμάτησε όταν, σε κάποιο σημείο ο δρόμος ήταν φραγμένος με τέτοιο τρόπο ώστε ακόμα και με εκρηκτικά, να μην είναι δυνατόν να τον ανοίξουν χωρίς να καταρρεύσει η στοά.
Ερευνώντας το θέμα, μπορούμε με ασφάλεια να καταλήξουμε στο συμπέρασμα ότι κάτω από την Ακρόπολη υπάρχουν υπόγειες δίοδοι οι οποίες καταλήγουν σε πολλά σημεία της Αττικής. Αν και η πρόσβαση σήμερα σε τέτοιες στοές είναι πολύ δύσκολη, σε άλλες εποχές κάτι τέτοιο δεν ίσχυε και έτσι έχουμε διάφορες μαρτυρίες οι οποίες μας μιλούν για ένα εκτεταμένο δίκτυο στοών στην Αττική με κέντρο την Ακρόπολη.
ΕΠΙΛΟΓΟΣ
Οι αρχαίοι Ελληνικοί ναοί δεν ήταν μόνο κέντρα λατρείας, αλλά χώροι μύησης, όχι μόνο των μυστηρίων αλλά και των επιστημονικών γνώσεων, τ' αποτελέσματα των οποίων γινόταν φανερά στους πιστούς. Μόνο σήμερα μπορούμε ν' αντιληφθούμε ότι ήταν αποτέλεσμα μιας απόκρυφης τέλειας τεχνολογίας που εκμεταλλευόταν όλες τις γήινες και κοσμικές δυνάμεις.
Οι πρόγονοι μας είχαν ουράνιες γνώσεις που εκμεταλλευόταν τα ενεργειακά πεδία του πλανήτη χωρίς να μολύνουν την ατμόσφαιρα, να καταστρέφουν την υδρογραφία ή να αντλούν τεράστιες ποσότητες υδρογονανθράκων που είναι απαραίτητες για την λειτουργία του γήινου οργανισμού και των όντων του. Η αξιοποίηση της εύνοιας των θειϊκών οντοτήτων που ονομάσαμε θεούς θα καθιέρωνε την Ελλάδα σε τόπο προσκυνήματος των λαών της γης και τα οικονομικά οφέλη από αυτό θα ξεπερνούσαν και τις πιο αισιόδοξες προβλέψεις.
Οι αρχαιολόγοι παραδέχονται ότι στην Ακρόπολη υπάρχουν πολλά οικοδομικά επίπεδα, κάποια από τα οποία παραμένουν άγνωστα ακόμα και σήμερα. Αυτό συμβαίνει επειδή, κάθε φορά που κτιζόταν η Ακρόπολη, τα νέα οικοδομήματα χτίζονταν πάνω στα προηγούμενα. Και δεν θα ήταν επιτρεπτό για κανέναν λόγο, για να βρούμε τι κρύβεται στις αρχαιότερες στρώσεις, να δημιουργήσουμε οποιοδήποτε πρόβλημα στην νεότερες. Η Ακρόπολη λοιπόν έχει πολλά μυστικά ακόμα που περιμένουν να ανακαλυφθούν.
Στην νότια πλευρά της Ακρόπολης μάλιστα έχουν βρεθεί μεγάλα κομμάτια πέτρας. Αυτό γέννησε την υποψία ότι έχουν αφαιρεθεί με κάποιον τρόπο από το εσωτερικό του βράχου. Ως εκ τούτου θα ήταν πολύ πιθανό κάτω από την Ακρόπολη να υπάρχουν υπόγειοι θάλαμοι και στοές.
Η υποψία όμως αυτή του ότι υπάρχει κάτι αρκετά αξιόλογο κάτω από την Ακρόπολη που σχετίζεται με την αρχαία υπερτεχνολογία, ενισχύεται και από το ότι λέγεται ότι, κατά την διάρκεια της Γερμανικής κατοχής της Ελλάδας, τον καιρό του Β΄ Παγκοσμίου πολέμου, Ο Γερμανικός στρατός (Deutsche Wehrmacht) προχώρησε σε χαρτογράφηση των υπογείων στοών κάτω από την Ακρόπολη, αλλά σταμάτησε όταν, σε κάποιο σημείο ο δρόμος ήταν φραγμένος με τέτοιο τρόπο ώστε ακόμα και με εκρηκτικά, να μην είναι δυνατόν να τον ανοίξουν χωρίς να καταρρεύσει η στοά.
Ερευνώντας το θέμα, μπορούμε με ασφάλεια να καταλήξουμε στο συμπέρασμα ότι κάτω από την Ακρόπολη υπάρχουν υπόγειες δίοδοι οι οποίες καταλήγουν σε πολλά σημεία της Αττικής. Αν και η πρόσβαση σήμερα σε τέτοιες στοές είναι πολύ δύσκολη, σε άλλες εποχές κάτι τέτοιο δεν ίσχυε και έτσι έχουμε διάφορες μαρτυρίες οι οποίες μας μιλούν για ένα εκτεταμένο δίκτυο στοών στην Αττική με κέντρο την Ακρόπολη.
ΕΠΙΛΟΓΟΣ
Οι αρχαίοι Ελληνικοί ναοί δεν ήταν μόνο κέντρα λατρείας, αλλά χώροι μύησης, όχι μόνο των μυστηρίων αλλά και των επιστημονικών γνώσεων, τ' αποτελέσματα των οποίων γινόταν φανερά στους πιστούς. Μόνο σήμερα μπορούμε ν' αντιληφθούμε ότι ήταν αποτέλεσμα μιας απόκρυφης τέλειας τεχνολογίας που εκμεταλλευόταν όλες τις γήινες και κοσμικές δυνάμεις.
Οι πρόγονοι μας είχαν ουράνιες γνώσεις που εκμεταλλευόταν τα ενεργειακά πεδία του πλανήτη χωρίς να μολύνουν την ατμόσφαιρα, να καταστρέφουν την υδρογραφία ή να αντλούν τεράστιες ποσότητες υδρογονανθράκων που είναι απαραίτητες για την λειτουργία του γήινου οργανισμού και των όντων του. Η αξιοποίηση της εύνοιας των θειϊκών οντοτήτων που ονομάσαμε θεούς θα καθιέρωνε την Ελλάδα σε τόπο προσκυνήματος των λαών της γης και τα οικονομικά οφέλη από αυτό θα ξεπερνούσαν και τις πιο αισιόδοξες προβλέψεις.
Η Ακρόπολη των Αθηνών δεν είναι μερικές μαρμάρινες κολώνες για τουριστικό αξιοθέατο. Είναι τόπος ιερός όπου η συμπαντική διάνοια συναντάται με τον ορατό κόσμο και την Ελλάδα. Ο ιερός της βράχος με τους αμέτρητους λατρευτικούς χώρους, τα σπήλαια που αφθονούν στα διαβρωμένα του πετρώματα και τις ιερές πηγές που ξεπηδούν από τα σπλάχνα του, τυλιγμένος στην άχλη των μύθων που τον περιβάλλουν, στέκεται αινιγματικά στο πέρασμα του χρόνου και με την ιστορία την οποία εμπεριέχει,ακτινοβολεί και εκπέμπει όλο το Ελληνικό Πνεύμα και τον Ελληνικό πολιτισμό.
- Από τις Γιγαντομαχίες και Τιτανομαχίες μέχρι τα Μηδικά.
- Από την Αθηνά, τον Ποσειδώνα και τον Ήφαιστο.
- Από τον Κέκροπα και το Ερεχθέα.
- Από την παρθένο Άγλαυρο που μόνη της εθυσιάσθει για να σωθεί η πόλη.
- Από τους φύλακες-οπλίτες που παρέμειναν φυλάσσοντες ¨τα του θεού" όταν ο υβριστής Ξέρξης εισήλθε στην πόλη της Παλλάδος, μέχρι τον φρουρό της σημαίας που εκυμάτιζε στην Ακρόπολη,τον Κώστα Κουκίδη που αυτοκτόνησε πηδώντας από τον βράχο κρατώντας την στην αγκαλιά του, όταν πάτησαν οι Γερμανοί την Αθήνα τον Απρίλιο του 1941.
- Από τον Απόλλωνα και την Κρέουσα που εγέννησαν τον Ίωνα, μέχρι το σπήλαιον του Πανός, την πομπή των Παναθηναίων ...και τόσα άλλα !!!
"Και πάντα οι βρύσες ρέουν εκεί του Μύθου, κι αναβρύζουν της Ιστορίας οι πηγές..."
Μιά ΙΣΤΟΡΙΑ χαραγμένη στον ΒΡΑΧΟ.
Μιά ΙΣΤΟΡΙΑ φυλαγμένη στον ΒΡΑΧΟ.
Μιά ΙΣΤΟΡΙΑ ιστορημένη από τον ίδιο τον ΒΡΑΧΟ.
Κωστής Παλαμάς._
ΦΩΤΟΓΡΑΦΙΚΟ ΥΛΙΚΟ
ΠΑΡΘΕΝΩΝΑΣ ΤΟ ΑΠΟΛΥΤΟ ΘΑΥΜΑ ΤΗΣ ΑΡΧΙΤΕΚΤΟΝΙΚΗΣ (ΜΕΡΟΣ Γ')
Η αρχαιολογική τοπογραφία της Ακροπόλεως προοδεύει ακόμη και σήμερα, η μεγάλη εποχή της, πάντως, ήταν ο 19ος αιώνας. Εκτεταμένες ανασκαφές έφεραν τότε στο φως κατάλοιπα κτηρίων, επιγραφές, αναρίθμητα έργα τέχνης και πολυάριθμα άλλα τεκμήρια της ζωής των ιερών και λοιπών χώρων, όχι μόνον στην Ακρόπολη αλλά και στο άμεσο περιβάλλον της.
Η Μεγάλη Ανασκαφή των ετών 1885-1890 είναι ο σπουδαιότερος αλλά όχι ο μόνος σταθμός αυτής της μακράς αρχαιολογικής πορείας. Η πρόοδος που συντελέστηκε τότε γίνεται αμέσως αντιληπτή όταν κανείς μελετά, έστω και βιαστικά, παλαιές δημοσιεύσεις ή νεώτερες επισκοπήσεις και συνθετικές εργασίες. Για ό,τι αφορά στη μορφή των κτηρίων και των δημοσίων χώρων αρκεί ακόμη και μια απλή σύγκριση της κατόψεως που συντάχθηκε το 1853 από τον J. Stuart και εκείνης που συντάχθηκε μετά το 1900 από τον W. Judeich...
Η Μεγάλη Ανασκαφή των ετών 1885-1890 είναι ο σπουδαιότερος αλλά όχι ο μόνος σταθμός αυτής της μακράς αρχαιολογικής πορείας. Η πρόοδος που συντελέστηκε τότε γίνεται αμέσως αντιληπτή όταν κανείς μελετά, έστω και βιαστικά, παλαιές δημοσιεύσεις ή νεώτερες επισκοπήσεις και συνθετικές εργασίες. Για ό,τι αφορά στη μορφή των κτηρίων και των δημοσίων χώρων αρκεί ακόμη και μια απλή σύγκριση της κατόψεως που συντάχθηκε το 1853 από τον J. Stuart και εκείνης που συντάχθηκε μετά το 1900 από τον W. Judeich...
Στη δεύτερη περιέχονται όχι μόνον όλα τα μνημεία της Ακροπόλεως αλλά και εκείνα της νότιας κλιτύος, μάλιστα με διακρίσεις ιστορικών περιόδων από τη μυκηναϊκή εποχή έως τους νεωτέρους χρόνους. Η κάτοψη που συνοδεύει το έργο του Michaelis (1871) αντιπροσωπεύει μια ενδιάμεση βαθμίδα σε αυτή την εξέλιξη. Στην κάτοψη αυτή διατυπώνεται για πρώτη φορά και ένα σοβαρό ενδιαφέρον για τα μεσαιωνικά και οι μεταγενέστερες ιστορικές φάσεις δηλώνονται καταλλήλως τόσο στα Προπύλαια όσο και στον Παρθενώνα.
Αλλά εκτός από τα εδάφη μέσα και έξω από την Ακρόπολη μεγάλη πηγή πληροφοριών είναι και τα ίδια τα τείχη της, ιδίως το βόρειο με τα εντοιχισμένα αρχιτεκτονικά μέλη δύο μεγάλων ναών: πολυάριθμοι ημίεργοι μαρμάρινοι σπόνδυλοι του Προπαρθενώνος και μεγάλα τμήματα του θριγκού από τον αρχαίον νεώ –επιστύλια, τρίγλυφοι, μετόπες και γείσα σε κανονική αλληλουχία. Στο σημείο αυτό, όμως, θα ήταν σκόπιμη μια σύντομη αναδρομή στην ιστορία και τα μεθοδολογικά ζητήματα των ανασκαφών της Ακροπόλεως.
Οι ανασκαφές άρχισαν το 1835 στα δυτικά και τα νότια του Παρθενώνος από τον Ludwig Ross, με τη συνεργασία των αρχιτεκτόνων Lorent και Schaubert και ήταν η πρώτη και τελευταία φορά κατά την οποία τα ευρήματα και τα συμπεράσματα ανασκαφής δημοσιεύθηκαν χωρίς την παραμικρή καθυστέρηση: εντός μηνών μόνον! (Tubinger Kunstblatt, 1835). Ήταν, επίσης, η πρώτη φορά κατά την οποία μελετήθηκε η στρωματογραφία και συντάχθηκαν σχεδιαστικές τομές των στρωμάτων για την καλύτερη τεκμηρίωση της σχετικής μελέτης –ίσως θα έπρεπε κάποτε να αναγνωρισθεί στον Ross και η πατρότης της αρχαιολογικής στρωματογραφικής μεθόδου.
Με την έναρξη της Μεγάλης Ανασκαφής υπό τη διεύθυνση του Π. Καββαδία και με τη συνεργασία του αρχιτέκτονα G. Kawerau τα πράγματα βελτιώθηκαν.
Η ανασκαφή άρχισε στο βόρειο μέρος της Ακροπόλεως και προχώρησε από δυσμάς προς ανατολάς, με κυριότερα ευρήματα τις αρχαϊκές κόρες στα βορειοδυτικά του Ερεχθείου. Η αρχαϊκή τέχνη ήταν ήδη γνωστή, τότε όμως έγινε για πρώτη φορά δυνατή η επαφή με τόσο πολλά έργα της συγχρόνως. Οι μαρμάρινες κόρες έδιναν μια πολύ καλή ιδέα για την κόσμηση του ιερού με πλούσια αφιερώματα και ένα σύνολο μαρμάρινων γλυπτών, στην VI αίθουσα του παλαιού μουσείου της Ακροπόλεως, παρείχε μια μάλλον ικανοποιητική γνώση του περιεχομένου των αετωμάτων του αρχαίου νεώ.
Το μεγαλύτερο, όμως και δυσκολότερο μέρος της ανασκαφής ήταν το νοτίως του Παρθενώνος (1888), στο οποίο, όπου ήταν δυνατόν, η σκαφή έφθασε έως τον βράχο, σε βάθος που αρκετές φορές ξεπέρασε τα 15 μ. από την ευθυντηρία του ναού. Η σχεδιαστική τεκμηρίωση από τον Kawerau ήταν τακτική: πολλές δεκάδες μετρικά σχέδια σε κλίμακες 1:50, 1:100, 1:200, και ακόμη περισσότερα σκαριφήματα μετρήσεων αλλά και σχέδια κάπoιων κινητών ευρημάτων.
Η φωτογραφική τεκμηρίωση (επί το πλείστον από τον Dorpfeld με κάμερα μεγάλου σχήματος), αν και σχετικώς φειδωλή (περίπου 100 φωτογραφίες), είναι γενικώς πολύ καλής ποιότητος. Οι φωτογραφίες έχουν γίνει επιμελώς μετά από καλή επιλογή των θεμάτων και ο φωτισμός είναι μερικές φορές τόσο καλός, ώστε να κάνει εύκολα ορατές μικρότατες λεπτομέρειες συμπεριλαμβανομένης και της στρωματογραφίας των εδαφών.
Η Μεγάλη Ανασκαφή διακρίνεται όχι μόνον για την ενότητα των μέσων και της μεθόδου της αλλά και για την ενότητα των προϊόντων της. Τα προϊόντα αυτά, όλα σχεδόν τα σήμερα γνωστά γλυπτά και αρχιτεκτονικά μέλη των πώρινων αρχαϊκών ναών και άλλων κτισμάτων της αρχαϊκής Ακροπόλεως, όλα σχεδόν τα αφιερώματα της ίδιας περιόδου, μαρμάρινα (κόρες, ενεπίγραφες βάσεις κ.ά.), χάλκινα ή πήλινα και, τέλος, πολυάριθμα γλυπτά της κλασικής εποχής. Τα σπουδαιότερα από αυτά τα ευρήματα δημοσιεύθηκαν εγκαίρως σε διάφορα ελληνικά και ξένα αρχαιολογικά περιοδικά αλλά και σε μονογραφίες.
Ιδιαίτερη μνεία αξίζει στο δίτομο έργο του J.A Bundgaard, The excavation of the Athenian Akropolis (1974) το οποίο έκανε για πρώτη φορά προσιτά σε έντυπη μορφή τα φυλασσόμενα στο αρχείο του Γερμανικού Αρχαιολογικού Ινστιτούτου σχέδια του Kawerau, μαζί με όλες σχεδόν τις φωτογραφίες της ανασκαφής. Το υλικό παρουσιάζεται με πλήθος συνοδευτικών σχολίων και εποπτικών γενικών χαρτών εντοπισμού και συσχετισμού των επί μέρους σχεδίων και των φωτογραφιών. Το υλικό αυτό είναι πολυτιμότατο, έστω και εάν με σημερινά αλλά ακόμη και με πολύ παλαιότερα μέτρα (π.χ. με εκείνα του Η. von Hallerstein) τα σχέδια του Kawerau κρίνονται ανεπαρκή.
ΠΡΟΠΑΡΘΕΝΩΝ: Παρθενών Ι - Παρθενών II
Οι εντοιχισμένοι στο βόρειο τείχος μαρμάρινοι σπόνδυλοι μελετήθηκαν πρώτη φορά το 1807 από τον περίφημο W.M. Leake, ο οποίος αναρριχήθηκε τότε, όχι χωρίς κίνδυνο, στον απόκρημνο βράχο. Ο Leake, ο οποίος ελάχιστες φορές έσφαλε κατέληξε και πάλιν σε μια ορθή εξήγηση: οι σπόνδυλοι πρέπει να ανήκουν σε εκείνον τον παλαιότερο ναό, που εννοεί ο Ησύχιος όταν αναφέρεται στον Παρθενώνα (λ. Εκατόμπεδος) «...νεώς εν τη Ακροπόλει τη Παρθένα κατασκευασθείς υπό Αθηναίων, μείζων του εμπρησθέντος υπό των Περσών ποσι πεντήκοντα».
Έτσι άρχισε η μελέτη του Προπαρθενώνος που, κατά τον Leake, πρέπει να ήταν μικρότερος από τον Παρθενώνα και ασφαλώς προγενέστερος των Περσικών. Ό,τι άρχισε ο Leake συνεχίσθηκε από τον Ross, το 1835, με ανασκαφές στα δυτικά και στα νότια του Παρθενώνος, οι οποίες απεκάλυψαν τα εξής:
1. Μεγάλη ποσότητα ημιέργων σπονδύλων στα ανατολικά σε μια ζώνη που εκτείνεται έως το νότιο τείχος, μαζί με εργαλεία και άλλα σχετικά προς τη λιθοτεχνία, όπως π.χ. χρώματα σε δοχεία για τα οποία γνωρίζομε τώρα ότι ήσαν χρήσιμα για διάφορες σημειώσεις και για τον έλεγχο της τελειότητας των επιπέδων επιφανειών.
2. Το θεμέλιο του Παρθενώνος είναι στο μέγιστο μέρος του πολύ αρχαιότερο του ναού. Το μέρος αυτό είναι αυτοτελές και αποτελεί το αρχικά ορατό βάθρο του αρχαιότερου ναού. Από τις διαστάσεις του βάθρου (31,4x76,8 μ.) συνάγεται ότι ο ναός αυτός θα πρέπει να ήταν επίσης πολύ μεγάλος και με μάλλον επιμήκεις αναλογίες.
3. Στα ανατολικά του Παρθενώνος το γιγάντειο βάθρο δεν ταιριάζει στον κλασικό ναό, αλλά εξέχει 5 σχεδόν μέτρα από τη γραμμή της πρώτης μαρμάρινης βαθμίδος.
4. Για την έδραση του κλασικού ναού απαιτήθηκε μόνον μια σχετικώς μικρή αύξηση του αρχικού βάθρου προς βορράν. Η αύξηση αυτή έγινε με παρόμοιο υλικό, δηλαδή πειραϊκούς λίθους, αλλά χωρίς καμιά φροντίδα για περίτεχνη εμφάνιση. Προφανώς, τα νέα σχέδια απαιτούσαν μια εκτεταμένη επιπέδωση του εδάφους με τεχνητές επιχώσεις έως το ύψος της ευθυντηρίας του ναού, ενώ τα παλαιότερα προέβλεπαν ότι γύρω από τον ναό το έδαφος θα ήταν αρκετά χαμηλότερο και ότι το ανώτερο μέρος του βάθρου θα ήταν ορατό και συνεπώς περίτεχνο.
Ένα ιδιαίτερο αντικείμενο μελέτης ήταν για τον Ross και η αλληλουχία των στρωμάτων του εδάφους. Οι σχετικές με τη χρονολόγηση του Προπαρθενώνος γνώμες του Leake και του Ross έτυχαν γενικής αποδοχής και δεν υπήρξαν διαφωνίες παρά μόνον για την πιθανή μορφή του κτηρίου. Ας σημειωθεί μόνον ότι, μεταξύ άλλων, το ζήτημα αυτό απασχόλησε και τους F.C. Penrose (1851), J.H. Strack (1860), E. Ziller (1865), A. Michaelis (1871) και E. Burnouf (1877). Το μόνο αξιόλογο σφάλμα αυτών των ειδικών είναι ότι απέδιδαν στον ναό όχι μόνον τους μαρμάρινους σπονδύλους αλλά και τον εντοιχισμένο στο βόρειο τείχος πώρινο θριγκό.
Το σφάλμα αυτό διορθώθηκε μόνον το 1885, όταν ο W. Dorpfeld απέδειξε ότι ο εντοιχισμένος μεγάλος θριγκός ανήκει στον αρχαίο νεώ, τον πώρινο περίπτερο ναό της Αθηνάς. Τα θεμέλια αυτού του ναού σώζονται στα νότια του Ερεχθείου.
Η μεταστροφή του Dorpfeld δείχνει, μεταξύ άλλων, και μια σπάνια για τον ίδιο ευκινησία. Επέτυχε όχι μόνον να «διασωθεί» την τελευταία στιγμή επάνω σε μια ξένη θέση αλλά και να την οικειοποιηθεί με κάποιες προσθήκες, εγκαταλείποντας, μάλιστα, μια εντελώς αντίθετη δική του.
Έκτοτε, και μέχρι το 1936, η αποδοχή της προ των Περσικών χρονολογήσεως του Προπαρθενώνος ήταν γενική, σημειώθηκαν όμως νέες διαφωνίες ως προς την αναπαράσταση και ως προς τη διάκριση οικοδομικών φάσεων. Το σπουδαιότερο, πάντως, γεγονός ήταν η ανακάλυψη της μορφής του Προπαρθενώνος από τον Β. Η. Hill, με τη συνεργασία του W.B. Dinsmoor. Για πρώτη φορά τότε (1910) μελετήθηκαν συστηματικά πολυάριθμοι διάσπαρτοι λίθοι και άλλοι αναχρησιμοποιημένοι στο βόρειο τείχος της Ακροπόλεως, προερχόμενοι από την κρηπίδα του Προπαρθενώνος, ως και λίθοι αναχρησιμοποιημένοι στον ίδιο τον κλασικό Παρθενώνα.
Αλλά πώς να αποδείξει κανείς ότι η 22η στρώση είναι βαθμίδα κρηπίδος ενός άλλου ναού και όχι απλώς ένας μορφολογικός τονισμός της άνω απολήξεως του στερεοβάτου ως ευθυντηρίας του ημιτελούς μαρμάρινου Προπαρθενώνος; είπαν οι αντίπαλοι του Dorpfeld. Και ακόμη, ανάμεσα σε ένα τελείως φανταστικό κατασκεύασμα και ένα κτήριο που υπήρξε αλλά εξαφανίστηκε πλήρως –ή που υπήρξε μόνον σε σχέδια, χωρίς να πραγματοποιηθεί ποτέ– δεν υφίσταται καμιά πρακτική διαφορά (η οποία θα ήταν δυνατόν να αποτελεί αξιόπιστη αρχαιολογική μαρτυρία).
Στα πλαίσια του έργου συντηρήσεως, είχα την ευκαιρία για μια νέα μελέτη και αυτού του ζητήματος. Σε δύο θέσεις έγινε δυνατή η εξερεύνηση της εσωτερικής δομής των ανωτέρων στρώσεων του στερεοβάτου αλλά και εκείνης που εκτείνεται πίσω από την πρώτη βαθμίδα της κρηπίδος του Προπαρθενώνος. Η τελευταία αυτή στρώση διαθέτει κοινά χαρακτηριστικά με τις υποκείμενες, αλλά πολύ διαφέρει από τις υπερκείμενες δύο (και τελευταίες υπό την περίσταση) πώρινες στρώσεις.
Οι σχετικές με τις ως άνω στρώσεις παρατηρήσεις, παλαιότερες και νεώτερες, είναι σαφώς υπέρ της διακρίσεως δύο διαδοχικών φάσεων του Προπαρθενώνος:
1. Από στατικής απόψεως είναι περιττή η αύξηση των διαστάσεων του βάθρου ενός κτηρίου όταν το έδαφος τυχαίνει να είναι βράχος (η κλίση του βράχου δεν παίζει ρόλο εάν οι έδρες λαξεύονται οριζόντιες) και η κατασκευή γίνεται με καλούς λαξευτούς λίθους.
Στο σημείο αυτό ας αναφερθεί και η σχετική γνώμη του Ο. Walter: αν το μυκηναϊκό τείχος ήταν σε καλή κατάσταση, ο δελφικός χρησμός δεν θα είχε προκαλέσει το γνωστό δίλημμα στους Αθηναίους. Η διπλή ερμηνεία του θα ήταν δυνατή μόνον εάν το τείχος ήταν πολύ κατεστραμμένο, ώστε στον διαθέσιμο χρόνο να μην είναι δυνατή η επισκευή του με λίθους, αλλά μόνον με ξύλα... Και φυσικά οι χρησμοδότες δεν αγνοούσαν μια κατάσταση που ήταν ήδη γνωστή σε όλους.
Απομένει λοιπόν μόνον η δυνατότης να έχουν καταστραφεί τα τείχη από εισβολείς (αν και υποτίθεται ότι οι Δωριείς δεν κατέλαβαν ποτέ την Ακρόπολη) ή προληπτικώς από τους ίδιους τους Αθηναίους μετά από μια αλλαγή του πολιτικού συστήματος (της βασιλείας π.χ. ή της τυραννίας) για την αποτροπή μιας ανεπιθύμητης επανίδρυσής του.
ΑΡΧΑΙΟΣ ΝΕΩΣ
Το επίπεδο των γνώσεων για την τοπογραφία της Ακροπόλεως στα 1871 παρουσιάζεται με τον καλύτερο τρόπο σε έναν από τους πίνακες που συνοδεύουν το σχετικό με τον Παρθενώνα σύγγραμμα του Α. Michaelis. Άξιον προσοχής σε αυτό το σχέδιο είναι ότι ο Michaelis επισημαίνει στα νότια του Ερεχθείου το περίγραμμα του γνωστού σήμερα θεμελίου του αρχαίου νεώ, με τον χαρακτηρισμό «άνδηρον της Αθηνάς», πολύ πριν από την επίσημη αποκάλυψή του ως θεμελίου ναού.
Αλλά και το μέρος που μετά τη σχεδιασμένη διάλυση παρέμεινε στη θέση του, δηλαδή ο στυλοβάτης της περιστάσεως, διατήρησε και επαύξησε μια χρήση που είχε και όταν έφερε κίονες: ιδεώδες βάθρο για την ανίδρυση αγαλμάτων και άλλων αφιερωμάτων. Ένα μέρος αυτού του βάθρου διαλύθηκε αργότερα λόγω της κατασκευής του Ερεχθείου. Οι λίθοι που αφαιρέθηκαν από αυτό χρησιμοποιήθηκαν στη βάση του κτιστού μέρους της μεγάλης κλίμακας στα δυτικά του Παρθενώνος.
ΚΕΚΡΟΠΙΟΝ
Το γιγάντειο Ιωνικό κιονόκρανο που κάποτε απετέλεσε αφορμή για την υπόθεση ιωνικών κιόνων στον αρχαίο νεώ σώζεται κομμένο σε δύο μέρη. Το ένα, σε καλύτερη κατάσταση, παραμένει στη θέση όπου χρησιμοποιήθηκε ως υλικό δευτέρας χρήσεως στο βόρειο τείχος. Το άλλο, ανασυρμένο από την ίδια περιοχή, απόκειται στα ανατολικά του Ερεχθείου.
Το σπάνιο αυτό ιωνικό κιονόκρανο, με πλάτος 2.45 μ., είναι το μεγαλύτερο στην χερσαία Ελλάδα. Ακόμη μεγαλύτερα ήσαν μόνον τα κιονόκρανα των γιγάντειων ιωνικών ναών στη Σάμο και την Έφεσο. Λόγω του μεγέθους του, το κιονόκρανο της Ακροπόλεως πρέπει να αποδοθεί σε αυτοδύναμο ιωνικό κίονα παρόμοιας μορφής και σημασίας προς εκείνους που έστεκαν στο ιερό των Δελφών (σφίγγα των Ναξίων), στο ιερό της Αφαίας και αλλού.
Η αναγνώριση της θέσεως αυτού του κίονος στο σημείο όπου ο δυτικός τοίχος του Ερεχθείου παρουσιάζει στο νότιο άκρον του μεγάλες αδρολαξευμένες εγκοπές πρέπει να θεωρείται βεβαία. Οι εγκοπές αυτές έγιναν για να μη θιγεί μια προϋπάρχουσα κατασκευή, της οποίας οι ίδιες (οι εγκοπές του τοίχου) παριστούν το αρνητικό (ή συμπληρωματικό) σχήμα (ανάλογα φαινόμενα έχουν διαπιστωθεί στη νότια πλευρά της βαρείας προστάσεως, στο θεμέλιο της ανατολικής πλευράς και σε άλλα σημεία).
Από όσες μελέτες ακολούθησαν, σπουδαιότερες για την τεκμηρίωση του υλικού και τη συμβολή τους σε πολλά θεωρητικά ζητήματα είναι εκείνες του Ι. Beyer (1975-1976). Ο Beyer, συνεχίζοντας τις έρευνες του Schuchhardt, κατέληξε στην αναγνώριση των εναετίων του ανατολικού αετώματος, βάσει κριτηρίων τεχνοτροπίας, υλικού και μεγέθους.
Η μετάθεση του «κτηρίου Η» ως Urparthenon στη θέση του Παρθενώνος –από τους Buschor, Schrader, Dinsmoor– εξηγούσε καλύτερα το γεγονός ότι σχεδόν όλα τα αρχιτεκτονικά μέλη και σχεδόν όλα τα γλυπτά του ναού βρέθηκαν μόνο νοτίως του Παρθενώνος και όχι προς το Ερεχθείο. Ένα άλλο φαινόμενο που έτσι εξηγείται πολύ καλύτερα είναι η βίαιη κακοποίηση των γλυπτών των αετωμάτων αμφοτέρων των ναών, μέχρι μετατροπής των σε μικρά τεμάχια.
Ε. (Τέλη 6ου αρχές 5ου αι. π.Χ., πρόγραμμα της νεοσύστατης δημοκρατίας εις αντικατάσταση του σχετικού προγράμματος για το Ολυμπιείον) Εργασίες για την ανέγερση ενός νέου, πολύ μεγαλύτερου ναού (Παρθενών Ι) στη θέση του πρωταρχικού Παρθενώνος. Απαιτείται πολύς χώρος προς νότο, επάνω από την κατωφέρεια του βράχου και επομένως είναι αναγκαία η κατασκευή ογκώδους υποδομής (στερεοβάτης).
Ζ. (480 π.Χ.) Καταστροφή των ιερών της Ακροπόλεως και ειδικότερα του αρχαίου νεώ. Ο ημιτελής Προπαρθενών καταστρέφεται (και μαζί του τα πιθανώς ακόμη διατηρούμενα μικρά μέρη του πρωταρχικού Παρθενώνος). Το ημιτελές μαρμάρινο πρόπυλο της Ακροπόλεως καταστρέφεται επίσης.
Η. (Μετά τα Περσικά) Πρόχειρη επισκευή μέρους του αρχαίου νεώ. Νέα κατασκευή ή επισκευή προϋπάρχοντος οικήματος στα βόρεια του ναού (στη θέση του ανατολικού διαμερίσματος του Ερεχθείου). Στο οίκημα αυτό στεγάζεται το αρχαίον άγαλμα. Κατασκευή μέρους του βορείου τείχους. Ανέγερση του νοτίου και ανατολικού τείχους (466 π.Χ.).
Οι εδαφικές διαμορφώσεις στα νότια και ανατολικά του Παρθενώνος ως και οι σχετικές εργασίες περατώσεως του άνω μέρους του τείχους ποτέ δεν ολοκληρώθηκαν. Αυτός, πάντως, δεν είναι ο λόγος της... απουσίας ενός βωμού στα ανατολικά του Παρθενώνος.
Η απουσία βωμού στα ανατολικά του Παρθενώνος και η ανυπαρξία, ή μη διατήρηση, μαρτυριών ονομάτων ιερειών του Παρθενώνος είναι οι αφορμές μιας θεωρίας σύμφωνα με την οποία ο Παρθενών δεν πρέπει να διέθετε αληθινό θρησκευτικό περιεχόμενο, αλλά μόνον πολιτικό. Η θεωρία αυτή, κάπως ελκυστική λόγω του φαινομενικά «μοντέρνου» πνεύματός της (στην πραγματικότητα είναι μια θεωρία του Α. Michaelis!), είναι εν τέλει αβάσιμη.
Ο αριθμός των βωμών, όχι μόνον στα αθηναϊκά αλλά σε όλα σχεδόν τα ελληνικά ιερά, ήταν ανεξάρτητος από τον αριθμό των ναών. Στη Δήλο πολλοί ναοί του Απόλλωνος ήσαν αντιταγμένοι σε έναν μόνον βωμό του θεού και στη Σάμο ο μεγάλος βωμός εξυπηρετούσε ακόμη περισσότερους ναούς. Για μία και την αυτή θεότητα ένας και μόνος βωμός αρκούσε, ασχέτως εάν η ύπαρξη περισσοτέρων αγαλμάτων ή άλλων λόγων είχε ως αποτέλεσμα την ύπαρξη περισσοτέρων ναών. Από την άλλη πλευρά, κάποιες μάλλον εξειδικευμένες υποστάσεις μιας και της αυτής θεότητας –Αθηνά Νίκη, Υγεία, Εργάνη– διέθεταν ιδιαίτερους βωμούς εφόσον διέθεταν ιδιαίτερα, αφιστάμενα τεμένη.
Υπέρ του θρησκευτικού περιεχομένου του Παρθενώνος ομιλεί η μακρά αλληλουχία διαδοχικών ναών στην ίδια θέση. Ομιλεί ακόμη η ιδιοτυπία της κατόψεώς του. Το μεγάλο δυτικό διαμέρισμα δεν έγινε για τον επιφανειακό λόγο της στεγάσεως του ταμείου της Δηλιακής Συμμαχίας: ο Προπαρθενών διέθετε ένα ακριβώς όμοιο δυτικό διαμέρισμα πολύ πριν από την ύπαρξη της Συμμαχίας. Αλλά τέτοια διαμερίσματα με είσοδο από τα δυτικά υπήρχαν και στους άλλους ναούς της Αθηνάς επί της Ακροπόλεως:
Εύλογο είναι, λοιπόν, το συμπέρασμα ότι το δυτικό διαμέρισμα των ναών της Ακροπόλεως, συμπεριλαμβανομένου και του Παρθενώνος, ήταν ένα πολύ σπουδαίο μέρος των, απαιτούμενο από τις ιδιαίτερες παραδόσεις του ιερού και κυρίως από τη διατήρηση λατρειών παλαιοτέρων της λατρείας των θεών του Ολύμπου.
Αλλά τότε τι απομένει από το περίφημο πολιτικό περιεχόμενο του Παρθενώνος;
Απομένουν περίπου όλα όσα έχουν λεχθεί γι’ αυτό (δημιουργία θέσεων εργασίας, προβολή πολιτικών και πολιτιστικών αξιών, επίδειξη δυνάμεως κ.ά.)! Με τα προηγούμενα δεν επιχειρήθηκε η άρνηση του πολιτικού περιεχομένου, αλλά μόνον ο αντίλoγος στον ισχυρισμό περί απουσίας θρησκευτικού περιεχομένου. Η συνύπαρξη θρησκευτικού και πολιτικού περιεχομένου δεν είναι ένα ζήτημα ειδικώς του Παρθενώνος.
Αλλά εκτός από τα εδάφη μέσα και έξω από την Ακρόπολη μεγάλη πηγή πληροφοριών είναι και τα ίδια τα τείχη της, ιδίως το βόρειο με τα εντοιχισμένα αρχιτεκτονικά μέλη δύο μεγάλων ναών: πολυάριθμοι ημίεργοι μαρμάρινοι σπόνδυλοι του Προπαρθενώνος και μεγάλα τμήματα του θριγκού από τον αρχαίον νεώ –επιστύλια, τρίγλυφοι, μετόπες και γείσα σε κανονική αλληλουχία. Στο σημείο αυτό, όμως, θα ήταν σκόπιμη μια σύντομη αναδρομή στην ιστορία και τα μεθοδολογικά ζητήματα των ανασκαφών της Ακροπόλεως.
Οι ανασκαφές άρχισαν το 1835 στα δυτικά και τα νότια του Παρθενώνος από τον Ludwig Ross, με τη συνεργασία των αρχιτεκτόνων Lorent και Schaubert και ήταν η πρώτη και τελευταία φορά κατά την οποία τα ευρήματα και τα συμπεράσματα ανασκαφής δημοσιεύθηκαν χωρίς την παραμικρή καθυστέρηση: εντός μηνών μόνον! (Tubinger Kunstblatt, 1835). Ήταν, επίσης, η πρώτη φορά κατά την οποία μελετήθηκε η στρωματογραφία και συντάχθηκαν σχεδιαστικές τομές των στρωμάτων για την καλύτερη τεκμηρίωση της σχετικής μελέτης –ίσως θα έπρεπε κάποτε να αναγνωρισθεί στον Ross και η πατρότης της αρχαιολογικής στρωματογραφικής μεθόδου.
Οι ανασκαφές του Ross έγιναν σε προσεκτικά επιλεγμένες θέσεις με μεγάλη, για τα μέτρα εκείνης της εποχής, φειδώ κι ωστόσο υπήρξαν εξόχως παραγωγικές σε ευρήματα και συμπεράσματα. Τη σύντομη αυτή επιχείρηση ακολούθησε μια πολύ μεγαλύτερη που, υπό τη διεύθυνση του Κ. Πιττάκη, διήρκεσε έως το τέλος της οθωνικής περιόδου.
Η επιχείρηση αυτή αποσκοπούσε στον αποκαθαρμό της Ακροπόλεως από τα αναρίθμητα μεταγενέστερα και ήδη ερειπωμένα κτίσματα που την κατέκλυζαν, στην αποκατάσταση των εδαφών στο επίπεδο της κλασικής εποχής, στην απελευθέρωση των πεσμένων από τα μνημεία αρχαίων λίθων και τη συνακόλουθη ανάληψη των αντιστοίχων αναστηλωτικών προγραμμάτων. Οι σκαφικές εργασίες που έγιναν κατά τη μακρά εκείνη περίοδο σε όλη την Ακρόπολη υπερβαίνουν σε όγκο ακόμη και τη Μεγάλη Ανασκαφή (1885-1890).
Εκτάσεις πολλών χιλιάδων τετραγωνικών μέτρων ανασκάφηκαν σε μέσο βάθος δύο περίπου μέτρων (έξω από τα Προπύλαια το βάθος ξεπέρασε τα πέντε μέτρα). Ωστόσο, η επιχείρηση αυτή δεν έγινε αντιληπτή ως κανονική ανασκαφή ούτε από τους πρωταγωνιστές της, ούτε από τις νεώτερες γενεές των αρχαιολόγων. Από τα κτίσματα και από τις εδαφικές διαστρωματώσεις που τότε ανεσκάφησαν δεν έγινε ούτε ένα σχέδιο. Σχεδιάστηκαν, χάριν της δημοσιεύσεως, μόνον μερικά από τα κινητά ευρήματα, αρχαία γλυπτά και επιγραφές, που, άλλωστε, ήσαν ο μόνος επιστημονικός στόχος των ανασκαφέων.
Ενώ, όμως, τα κινητά θα ήταν δυνατόν να απεικονισθούν και πολύ αργότερα, τα μη κινητά –κτίσματα και ιστορικά εδαφικά στρώματα– δεν μπορούσαν να περιμένουν. Η καταστροφή τους εξάλειψε για πάντα όλες τις εδαφικές μαρτυρίες όχι μόνον για τις μετά Χριστόν χιλιετίες, αλλά ακόμη και για μεγάλο μέρος της ίδιας της αρχαιότητος. Δυστυχώς, η κατάσταση αυτή συνεχίσθηκε στις επόμενες δύο δεκαετίες (υπό τη διεύθυνση του Π. Ευστρατιάδη), κυρίως στο μέρος μέσα από τα Προπύλαια και στο μέρος όπου κτίσθηκε το Μουσείο, χάριν του οποίου ήταν αναγκαία μια πολύ εκτεταμένη και βαθιά εκσκαφή.
Και πάλι κανένα σχέδιο μεταγενεστέρων κτισμάτων, καμιά στρωματογραφική τομή, καμιά επαρκής δημοσίευση. Στο μεγάλο αυτό χρονικό διάστημα έγιναν και μερικές σχετικά μικρές ανασκαφές από ξένους, εκ των οποίων οι σπουδαιότερες για το παρόν θέμα είναι: στη νότια παρειά του στερεοβάτου του Παρθενώνος το 1845 από τον A. Paccard και το 1865 από τον E. Ziller και σε ορισμένα σημεία του Ερεχθείου και του Παρθενώνος το 1862 από τον C. Botticher.
Με την έναρξη της Μεγάλης Ανασκαφής υπό τη διεύθυνση του Π. Καββαδία και με τη συνεργασία του αρχιτέκτονα G. Kawerau τα πράγματα βελτιώθηκαν.
Η ανασκαφή άρχισε στο βόρειο μέρος της Ακροπόλεως και προχώρησε από δυσμάς προς ανατολάς, με κυριότερα ευρήματα τις αρχαϊκές κόρες στα βορειοδυτικά του Ερεχθείου. Η αρχαϊκή τέχνη ήταν ήδη γνωστή, τότε όμως έγινε για πρώτη φορά δυνατή η επαφή με τόσο πολλά έργα της συγχρόνως. Οι μαρμάρινες κόρες έδιναν μια πολύ καλή ιδέα για την κόσμηση του ιερού με πλούσια αφιερώματα και ένα σύνολο μαρμάρινων γλυπτών, στην VI αίθουσα του παλαιού μουσείου της Ακροπόλεως, παρείχε μια μάλλον ικανοποιητική γνώση του περιεχομένου των αετωμάτων του αρχαίου νεώ.
Το μεγαλύτερο, όμως και δυσκολότερο μέρος της ανασκαφής ήταν το νοτίως του Παρθενώνος (1888), στο οποίο, όπου ήταν δυνατόν, η σκαφή έφθασε έως τον βράχο, σε βάθος που αρκετές φορές ξεπέρασε τα 15 μ. από την ευθυντηρία του ναού. Η σχεδιαστική τεκμηρίωση από τον Kawerau ήταν τακτική: πολλές δεκάδες μετρικά σχέδια σε κλίμακες 1:50, 1:100, 1:200, και ακόμη περισσότερα σκαριφήματα μετρήσεων αλλά και σχέδια κάπoιων κινητών ευρημάτων.
Η φωτογραφική τεκμηρίωση (επί το πλείστον από τον Dorpfeld με κάμερα μεγάλου σχήματος), αν και σχετικώς φειδωλή (περίπου 100 φωτογραφίες), είναι γενικώς πολύ καλής ποιότητος. Οι φωτογραφίες έχουν γίνει επιμελώς μετά από καλή επιλογή των θεμάτων και ο φωτισμός είναι μερικές φορές τόσο καλός, ώστε να κάνει εύκολα ορατές μικρότατες λεπτομέρειες συμπεριλαμβανομένης και της στρωματογραφίας των εδαφών.
Η Μεγάλη Ανασκαφή διακρίνεται όχι μόνον για την ενότητα των μέσων και της μεθόδου της αλλά και για την ενότητα των προϊόντων της. Τα προϊόντα αυτά, όλα σχεδόν τα σήμερα γνωστά γλυπτά και αρχιτεκτονικά μέλη των πώρινων αρχαϊκών ναών και άλλων κτισμάτων της αρχαϊκής Ακροπόλεως, όλα σχεδόν τα αφιερώματα της ίδιας περιόδου, μαρμάρινα (κόρες, ενεπίγραφες βάσεις κ.ά.), χάλκινα ή πήλινα και, τέλος, πολυάριθμα γλυπτά της κλασικής εποχής. Τα σπουδαιότερα από αυτά τα ευρήματα δημοσιεύθηκαν εγκαίρως σε διάφορα ελληνικά και ξένα αρχαιολογικά περιοδικά αλλά και σε μονογραφίες.
Η ίδια η ανασκαφή, όμως, δημοσιεύθηκε μόνον μετά από 17 έτη και η κεραμική της μετά από τέσσερις δεκαετίες. Ζητήματα για τα οποία θα ήταν απαραίτητη μια ενδελεχής στρωματογραφική τεκμηρίωση ανέκυψαν μόνον όταν ήταν πια πολύ αργά. Τα σχολιασμένα σχέδια κάποιων στρωματογραφικών τομών που είχε συντάξει ο G. Kawerau εκ του φυσικού περιέργως δεν είχαν συμπεριληφθεί στη δημοσίευση της ανασκαφής, ίσως επειδή οι συγγραφείς δεν τα θεωρούσαν πολύ αναγκαία (δημοσιεύθηκαν πολύ αργότερα).
Όταν, το 1902, φάνηκε έντονη η σκοπιμότητα μιας στρωματογραφικής διερεύνησης των ιστορικών φάσεων της Ακροπόλεως νοτίως του Παρθενώνος, ο Dorpfeld κατέφυγε σε μια λύση ανάγκης. Συνέταξε τα σχέδια δύο τομών (Εικόνα 1), βασιζόμενος κυρίως σε φωτογραφίες. Η μέθοδος αυτή, βέβαια, δεν είναι τελείως θεμιτή και τα εν λόγω σχέδια έγιναν μερικές φορές αντικείμενα αμφιβολιών (παρόμοιες τομές σχεδιάσθηκαν αργότερα από τον A. Tschira, τον J.A. Bundgaard, τον A. von Gerkan και άλλους).
Στη συγκεκριμένη, ωστόσο, περίπτωση δεν θα έπρεπε να υπάρχουν σοβαρές αμφιβολίες. Οι φωτογραφίες του Dorpfeld είναι, ευτυχώς, πολύ ευκρινείς και ο τρόπος που τις χρησιμοποίησε ήταν πολύ τίμιος. Τούτο διαπιστώνεται και σήμερα, όχι μόνον με προσεκτική σύγκριση όλων των διαθέσιμων φωτογραφιών αλλά και με χρήση των αντιστοίχων σχεδίων του Kawerau. Μετά τη Μεγάλη Ανασκαφή δεν απέμειναν παρά μόνον ολίγα άσκαφα σημεία.
Οι ανασκαφές που έγιναν έκτοτε είχαν μάλλον διευκρινιστικό χαρακτήρα. Από αυτές ας αναφερθούν οι εξής: στο εσωτερικό του Παρθενώνος το 1910 από τον Hill και τον Dinsmoor, στο Ερεχθείο το 1900 από τον Stevens, τον L.B. Holland και άλλους, στα δυτικά των Προπυλαίων το 1928 από τον Dinsmoor, στο εσωτερικό του Παρθενώνος το 1956 από τον A. Tschira, στον αρχαίο νεώ το 1980 από τον I. Beyer.
Ιδιαίτερη μνεία αξίζει στο δίτομο έργο του J.A Bundgaard, The excavation of the Athenian Akropolis (1974) το οποίο έκανε για πρώτη φορά προσιτά σε έντυπη μορφή τα φυλασσόμενα στο αρχείο του Γερμανικού Αρχαιολογικού Ινστιτούτου σχέδια του Kawerau, μαζί με όλες σχεδόν τις φωτογραφίες της ανασκαφής. Το υλικό παρουσιάζεται με πλήθος συνοδευτικών σχολίων και εποπτικών γενικών χαρτών εντοπισμού και συσχετισμού των επί μέρους σχεδίων και των φωτογραφιών. Το υλικό αυτό είναι πολυτιμότατο, έστω και εάν με σημερινά αλλά ακόμη και με πολύ παλαιότερα μέτρα (π.χ. με εκείνα του Η. von Hallerstein) τα σχέδια του Kawerau κρίνονται ανεπαρκή.
ΠΡΟΠΑΡΘΕΝΩΝ: Παρθενών Ι - Παρθενών II
Οι εντοιχισμένοι στο βόρειο τείχος μαρμάρινοι σπόνδυλοι μελετήθηκαν πρώτη φορά το 1807 από τον περίφημο W.M. Leake, ο οποίος αναρριχήθηκε τότε, όχι χωρίς κίνδυνο, στον απόκρημνο βράχο. Ο Leake, ο οποίος ελάχιστες φορές έσφαλε κατέληξε και πάλιν σε μια ορθή εξήγηση: οι σπόνδυλοι πρέπει να ανήκουν σε εκείνον τον παλαιότερο ναό, που εννοεί ο Ησύχιος όταν αναφέρεται στον Παρθενώνα (λ. Εκατόμπεδος) «...νεώς εν τη Ακροπόλει τη Παρθένα κατασκευασθείς υπό Αθηναίων, μείζων του εμπρησθέντος υπό των Περσών ποσι πεντήκοντα».
Έτσι άρχισε η μελέτη του Προπαρθενώνος που, κατά τον Leake, πρέπει να ήταν μικρότερος από τον Παρθενώνα και ασφαλώς προγενέστερος των Περσικών. Ό,τι άρχισε ο Leake συνεχίσθηκε από τον Ross, το 1835, με ανασκαφές στα δυτικά και στα νότια του Παρθενώνος, οι οποίες απεκάλυψαν τα εξής:
1. Μεγάλη ποσότητα ημιέργων σπονδύλων στα ανατολικά σε μια ζώνη που εκτείνεται έως το νότιο τείχος, μαζί με εργαλεία και άλλα σχετικά προς τη λιθοτεχνία, όπως π.χ. χρώματα σε δοχεία για τα οποία γνωρίζομε τώρα ότι ήσαν χρήσιμα για διάφορες σημειώσεις και για τον έλεγχο της τελειότητας των επιπέδων επιφανειών.
2. Το θεμέλιο του Παρθενώνος είναι στο μέγιστο μέρος του πολύ αρχαιότερο του ναού. Το μέρος αυτό είναι αυτοτελές και αποτελεί το αρχικά ορατό βάθρο του αρχαιότερου ναού. Από τις διαστάσεις του βάθρου (31,4x76,8 μ.) συνάγεται ότι ο ναός αυτός θα πρέπει να ήταν επίσης πολύ μεγάλος και με μάλλον επιμήκεις αναλογίες.
3. Στα ανατολικά του Παρθενώνος το γιγάντειο βάθρο δεν ταιριάζει στον κλασικό ναό, αλλά εξέχει 5 σχεδόν μέτρα από τη γραμμή της πρώτης μαρμάρινης βαθμίδος.
4. Για την έδραση του κλασικού ναού απαιτήθηκε μόνον μια σχετικώς μικρή αύξηση του αρχικού βάθρου προς βορράν. Η αύξηση αυτή έγινε με παρόμοιο υλικό, δηλαδή πειραϊκούς λίθους, αλλά χωρίς καμιά φροντίδα για περίτεχνη εμφάνιση. Προφανώς, τα νέα σχέδια απαιτούσαν μια εκτεταμένη επιπέδωση του εδάφους με τεχνητές επιχώσεις έως το ύψος της ευθυντηρίας του ναού, ενώ τα παλαιότερα προέβλεπαν ότι γύρω από τον ναό το έδαφος θα ήταν αρκετά χαμηλότερο και ότι το ανώτερο μέρος του βάθρου θα ήταν ορατό και συνεπώς περίτεχνο.
Ένα ιδιαίτερο αντικείμενο μελέτης ήταν για τον Ross και η αλληλουχία των στρωμάτων του εδάφους. Οι σχετικές με τη χρονολόγηση του Προπαρθενώνος γνώμες του Leake και του Ross έτυχαν γενικής αποδοχής και δεν υπήρξαν διαφωνίες παρά μόνον για την πιθανή μορφή του κτηρίου. Ας σημειωθεί μόνον ότι, μεταξύ άλλων, το ζήτημα αυτό απασχόλησε και τους F.C. Penrose (1851), J.H. Strack (1860), E. Ziller (1865), A. Michaelis (1871) και E. Burnouf (1877). Το μόνο αξιόλογο σφάλμα αυτών των ειδικών είναι ότι απέδιδαν στον ναό όχι μόνον τους μαρμάρινους σπονδύλους αλλά και τον εντοιχισμένο στο βόρειο τείχος πώρινο θριγκό.
Το σφάλμα αυτό διορθώθηκε μόνον το 1885, όταν ο W. Dorpfeld απέδειξε ότι ο εντοιχισμένος μεγάλος θριγκός ανήκει στον αρχαίο νεώ, τον πώρινο περίπτερο ναό της Αθηνάς. Τα θεμέλια αυτού του ναού σώζονται στα νότια του Ερεχθείου.
Η σχετική με τον αρχαίο νεώ πρώτη ανακοίνωση του Dorpfeld περιείχε και μία θεωρία για τη χρονολόγηση του Προπαρθενώνος, αντίθετη προς εκείνη του Leake και του Ross: η εύλογη, λόγω στιλιστικών στοιχείων, χρονολόγηση του αρχαίου νεώ στον 6ο αιώνα και η προφανής καταστροφή του πριν από την εποχή της κατασκευής του βορείου τείχους οδήγησε τον Dorpfeld στο συμπέρασμα ότι αυτόν το ναό πρέπει να έκαυσαν οι Πέρσες κι όχι τον ημιτελή μαρμάρινο Προπαρθενώνα. Αλλά γιατί θα έπρεπε να είναι μόνον ένας ο ναός που έκαυσαν οι Πέρσες;
Βάσει των γραπτών μαρτυριών, επέμενε ο Dorpfeld, μόνον ένας ναός της Αθηνάς πρέπει να υπήρχε στην Ακρόπολη πριν από τα Περσικά. Για την ύπαρξη και άλλου ναού δεν έβλεπε καμιά απόδειξη στη μακρινή εκείνη εποχή. Κατέληξε λοιπόν στο συμπέρασμα ότι ο Προπαρθενών θα έπρεπε να χρονολογηθεί μετά τα Περσικά και ειδικότερα στην εποχή του Κίμωνος. Η θεωρία αυτή απέρρεε από μια ορισμένη επιστημονική σύλληψη για την ιστορία του ιερού και την εξέλιξη της αρχιτεκτονικής των ναών, ίσως όμως, σε κάποιο μικρό βαθμό, και από τον πειρασμό μιας εντυπωσιακής ανατροπής παλαιών κλασικών θεωριών. Η νέα θεωρία είχε για την πορεία των τοπογραφικών μελετών της Ακροπόλεως πολύ μεγάλες συνέπειες.
Από το 1885 έως το 1902, η αποδοχή των θεωριών του Dorpfeld ήταν σχεδόν γενική. Όλοι συντάχθηκαν αμέσως μαζί του και έσπευσαν να απορρίψουν τους λόγους για τους οποίους οι ίδιοι είχαν παλαιότερα συνταχθεί με τον Leake και τον Ross. Όλοι εκτός από έναν, τον F.C. Penrose.
Ο μέγας μελετητής της αρχιτεκτονικής του Παρθενώνος, συγγραφεύς του Principlesofthe Athenian Architecture (1851) ανήκε ήδη σε μια περασμένη εποχή. Ήταν μόνον εικοσιοκτώ ετών και εξόχως πρωτοποριακός όταν πραγματοποιούσε τις μεγαλύτερες ανακαλύψεις του (1847), αλλά την εποχή που με πείσμα και προκατάληψη αντιμετώπιζε τον Dorpfeld ήταν ήδη εβδομήντα ετών και η άμεση επαφή του με την Ακρόπολη είχε σχεδόν διακοπεί επί δεκαετίες.
Από το 1885 έως το 1902, η αποδοχή των θεωριών του Dorpfeld ήταν σχεδόν γενική. Όλοι συντάχθηκαν αμέσως μαζί του και έσπευσαν να απορρίψουν τους λόγους για τους οποίους οι ίδιοι είχαν παλαιότερα συνταχθεί με τον Leake και τον Ross. Όλοι εκτός από έναν, τον F.C. Penrose.
Ο μέγας μελετητής της αρχιτεκτονικής του Παρθενώνος, συγγραφεύς του Principlesofthe Athenian Architecture (1851) ανήκε ήδη σε μια περασμένη εποχή. Ήταν μόνον εικοσιοκτώ ετών και εξόχως πρωτοποριακός όταν πραγματοποιούσε τις μεγαλύτερες ανακαλύψεις του (1847), αλλά την εποχή που με πείσμα και προκατάληψη αντιμετώπιζε τον Dorpfeld ήταν ήδη εβδομήντα ετών και η άμεση επαφή του με την Ακρόπολη είχε σχεδόν διακοπεί επί δεκαετίες.
Η πίστη του στην κλασική θεωρία των Leake και Ross ήταν δικαία, τα επιχειρήματα όμως που χρησιμοποίησε για τον έλεγχο της νέας θεωρίας ήσαν μερικές φορές άδικα. Κάποια ήσαν και τόσο ατυχή, ώστε πολύ περισσότερο έβλαπταν το ίδιο του το έργο παρά τη νέα εργασία του Dorpfeld.
Έτσι είχαν τα πράγματα μέχρι το 1902 όταν εμφανίστηκε ένα ρηξικέλευθο άρθρο με τίτλο «Die Zeit des alteren Parthenon» όπου, προς γενική κατάπληξη, ο ίδιος ο Dorpfeld υποστηρίζει μια προ των Περσικών χρονολόγηση του Προπαρθενώνος. Το ίδιο έτος (1902) ο A. Michaelis είχε δείξει ότι κατά την αρχαϊκή εποχή υπήρχαν δύο ναοί της Αθηνάς στην Ακρόπολη και αυτό ασφαλώς είχε επηρεάσει πολύ θετικά τον Dorpfeld. Η παλαιά θεωρία του Leake αποκτούσε και πάλι το πρώτο της κύρος και ο μόνος πιστός υποστηρικτής της, ο Penrose, έπαιρνε, στο τέλος του βίου του, την ικανοποίησή του.
Έτσι είχαν τα πράγματα μέχρι το 1902 όταν εμφανίστηκε ένα ρηξικέλευθο άρθρο με τίτλο «Die Zeit des alteren Parthenon» όπου, προς γενική κατάπληξη, ο ίδιος ο Dorpfeld υποστηρίζει μια προ των Περσικών χρονολόγηση του Προπαρθενώνος. Το ίδιο έτος (1902) ο A. Michaelis είχε δείξει ότι κατά την αρχαϊκή εποχή υπήρχαν δύο ναοί της Αθηνάς στην Ακρόπολη και αυτό ασφαλώς είχε επηρεάσει πολύ θετικά τον Dorpfeld. Η παλαιά θεωρία του Leake αποκτούσε και πάλι το πρώτο της κύρος και ο μόνος πιστός υποστηρικτής της, ο Penrose, έπαιρνε, στο τέλος του βίου του, την ικανοποίησή του.
Πάντως, η νέα μελέτη του Dorpfeld εισκόμισε και κάτι νέο: τη διάκριση δύο φάσεων στην οικοδομική ιστορία του Προπαρθενώνος. Κατά την παλαιότερη φάση (Παρθενών Ι ή Ρa Ι), ίσως της εποχής του Κλεισθένους, ο ναός ήταν ή, μάλλον, επρόκειτο να είναι πώρινος. Κατά τη νεώτερη φάση (Παρθενών II ή Ρa ΙΙ), μετά από τη μάχη του Μαραθώνα, το ημιτελές έργο συνεχίσθηκε σε μάρμαρο (κατά τη νέα αυτή διάκριση ο περίκλειος Παρθενών χαρακτηρίζεται από τον Dorpfeld ως Ρa ΙΙΙ).
Η μεταστροφή του Dorpfeld δείχνει, μεταξύ άλλων, και μια σπάνια για τον ίδιο ευκινησία. Επέτυχε όχι μόνον να «διασωθεί» την τελευταία στιγμή επάνω σε μια ξένη θέση αλλά και να την οικειοποιηθεί με κάποιες προσθήκες, εγκαταλείποντας, μάλιστα, μια εντελώς αντίθετη δική του.
Έκτοτε, και μέχρι το 1936, η αποδοχή της προ των Περσικών χρονολογήσεως του Προπαρθενώνος ήταν γενική, σημειώθηκαν όμως νέες διαφωνίες ως προς την αναπαράσταση και ως προς τη διάκριση οικοδομικών φάσεων. Το σπουδαιότερο, πάντως, γεγονός ήταν η ανακάλυψη της μορφής του Προπαρθενώνος από τον Β. Η. Hill, με τη συνεργασία του W.B. Dinsmoor. Για πρώτη φορά τότε (1910) μελετήθηκαν συστηματικά πολυάριθμοι διάσπαρτοι λίθοι και άλλοι αναχρησιμοποιημένοι στο βόρειο τείχος της Ακροπόλεως, προερχόμενοι από την κρηπίδα του Προπαρθενώνος, ως και λίθοι αναχρησιμοποιημένοι στον ίδιο τον κλασικό Παρθενώνα.
Για τον σκοπό αυτό και ειδικότερα για τον εντοπισμό των κατά χώραν αρχαιοτέρων μερών, έγιναν ανασκαφές νεωτέρων επιχώσεων σε διάφορα σημεία, όπου το δάπεδο του ναού ήταν ήδη κατεστραμμένο. Η μελέτη αυτή συμπλήρωσε και ξεπέρασε κατά πολύ όλες τις προηγούμενες. Τα συμπεράσματά της (ΑΙΑ 16, 1912) συνοψίζονται ως εξής:
1. Η κρηπίδα του Προπαρθενώνος ήταν τρίβαθμη. Η πρώτη βαθμίδα ήταν από ερυθρό υμήττειο ασβεστόλιθο (του Καρέα ή Καρά), οι άλλες δύο βαθμίδες ήσαν μαρμάρινες.
2. Οι λίθοι της κρηπίδος είχαν το αυτό περίπου ύψος και πλάτος με εκείνους της κρηπίδος του κλασικού ναού, τα μήκη των, όμως, ήσαν κάπως μεγαλύτερα.
3. Η πρώτη και δεύτερη βαθμίδα της νότιας πλευράς διατηρούνται ακόμη στην αρχική θέση των, ακριβώς μέσα από τις αντίστοιχες βαθμίδες του κλασικού ναού. Τούτο διαπιστώνεται σε αρκετές θέσεις μέσα από μικρά μεταγενέστερα χάσματα της κλασικής κρηπίδος και κυρίως σε μια θέση όπου προ πολλού έχει απολαξευθεί μεγάλο μέρος της πρώτης βαθμίδος του κλασικού ναού, με αποτέλεσμα να είναι καλά ορατή η ΝΔ γωνία της αρχαιότερης κρηπίδος.
1. Η κρηπίδα του Προπαρθενώνος ήταν τρίβαθμη. Η πρώτη βαθμίδα ήταν από ερυθρό υμήττειο ασβεστόλιθο (του Καρέα ή Καρά), οι άλλες δύο βαθμίδες ήσαν μαρμάρινες.
2. Οι λίθοι της κρηπίδος είχαν το αυτό περίπου ύψος και πλάτος με εκείνους της κρηπίδος του κλασικού ναού, τα μήκη των, όμως, ήσαν κάπως μεγαλύτερα.
3. Η πρώτη και δεύτερη βαθμίδα της νότιας πλευράς διατηρούνται ακόμη στην αρχική θέση των, ακριβώς μέσα από τις αντίστοιχες βαθμίδες του κλασικού ναού. Τούτο διαπιστώνεται σε αρκετές θέσεις μέσα από μικρά μεταγενέστερα χάσματα της κλασικής κρηπίδος και κυρίως σε μια θέση όπου προ πολλού έχει απολαξευθεί μεγάλο μέρος της πρώτης βαθμίδος του κλασικού ναού, με αποτέλεσμα να είναι καλά ορατή η ΝΔ γωνία της αρχαιότερης κρηπίδος.
Τα ευρήματα αυτά δείχνουν ότι ο Προπαρθενών δεν κατελάμβανε όλη την έκταση του γιγάντειου στερεοβάτου, αλλά μόνον τα 4/5 της. Το πλάτος του ήταν κατά πέντε μέτρα μικρότερο και το μήκος του κατά επτά. Επομένως, δεν ήταν οκτάστυλος, όπως πίστευε ο Dorpfeld, αλλά εξάστυλος, με κάπως μεγαλύτερα μεταξόνια από εκείνα του κλασικού Παρθενώνος. Οι κίονες είχαν και στον Προπαρθενώνα την ίδια διάμετρο, όπως είχε ήδη διαπιστώσει ο Penrose.
4. Η κρηπίδα του σηκού ήταν δίβαθμη ή ίσως μόνον μονόβαθμη (σήμερα αποδεικνύεται το δεύτερο) και οι τοίχοι διέθεταν ως βάση ένα μνημειακών διαστάσεων λεσβιάζον κυμάτιο.
5. Η μικρή προεξοχή των παραστάδων –μαρτυρούμενη από την οικεία, κοσμημένη με κυμάτιο βάση– δείχνει ότι οι προστάσεις ήσαν πρόστυλες. Το αυτό είχε συμπεράνει και ο Penrose, από τον αριθμό (5) των σωζόμενων πρώτων σπονδύλων των προστάσεων. Οι κίονες πρόναου και οπισθόναου θα ήσαν μόνον τέσσερις εάν έστεκαν μεταξύ και όχι προ των παραστάδων.
6. Παρά την ισότητα των λίθων του Προπαρθενώνος προς αντιστοίχους λίθους του κλασικού ναού, η διάκριση των είναι δυνατή βάσει ικανών κριτηρίων. Οι εξωτερικές επιφάνειες των λίθων του Προπαρθενώνος διαθέτουν άπεργα, δεν είναι, δηλαδή, εργασμένες έως το τελικό επίπεδο και οι εντορμίες των συνδέσμων παρουσιάζουν τις μονόπλευρες εκείνες απολαξεύσεις που υπήρξαν αναγκαίες για την αποσύνδεση των λίθων.
4. Η κρηπίδα του σηκού ήταν δίβαθμη ή ίσως μόνον μονόβαθμη (σήμερα αποδεικνύεται το δεύτερο) και οι τοίχοι διέθεταν ως βάση ένα μνημειακών διαστάσεων λεσβιάζον κυμάτιο.
5. Η μικρή προεξοχή των παραστάδων –μαρτυρούμενη από την οικεία, κοσμημένη με κυμάτιο βάση– δείχνει ότι οι προστάσεις ήσαν πρόστυλες. Το αυτό είχε συμπεράνει και ο Penrose, από τον αριθμό (5) των σωζόμενων πρώτων σπονδύλων των προστάσεων. Οι κίονες πρόναου και οπισθόναου θα ήσαν μόνον τέσσερις εάν έστεκαν μεταξύ και όχι προ των παραστάδων.
6. Παρά την ισότητα των λίθων του Προπαρθενώνος προς αντιστοίχους λίθους του κλασικού ναού, η διάκριση των είναι δυνατή βάσει ικανών κριτηρίων. Οι εξωτερικές επιφάνειες των λίθων του Προπαρθενώνος διαθέτουν άπεργα, δεν είναι, δηλαδή, εργασμένες έως το τελικό επίπεδο και οι εντορμίες των συνδέσμων παρουσιάζουν τις μονόπλευρες εκείνες απολαξεύσεις που υπήρξαν αναγκαίες για την αποσύνδεση των λίθων.
Στις περισσότερες περιπτώσεις αναχρησιμοποιήσεως των παλαιών λίθων οι συνδέσεις έγιναν σε νέες εντορμίες και έτσι οι αχρηστευμένες παλαιές εντορμίες καθιστούν ευκολότατη τη διάκριση αρχαιοτέρων και νεωτέρων λίθων. Σε άλλες, όμως, περιπτώσεις η αναγνώριση είναι πολύ δύσκολη και μερικές φορές αδύνατη, επειδή δεν υφίστανται ή δεν είναι ορατά κανενός είδους αναγνωριστικά στοιχεία, πλην, ίσως, κάποιων ενδεικτικών διαστάσεων.
Μετά από τη σύντομη αλλά πολύτιμη εργασία του Hill, η έρευνα των ζητημάτων του Προπαρθενώνος παρουσίασε στασιμότητα επί μακρόν, αν και πολύ συχνά εκφράσθηκαν διάφορες γνώμες για τη χρονολόγησή του: οι G. Fougeres (1912) και R. Heberdey (1919) τον ήθελαν να είναι ένα έργο της νεοσύστατης δημοκρατίας, οι H. Schrader (1922), Ο. Walter (1929) και W. Zschietzschmann (1934) τον ήθελαν να είναι ένα έργο των τυράννων.
Μετά από τη σύντομη αλλά πολύτιμη εργασία του Hill, η έρευνα των ζητημάτων του Προπαρθενώνος παρουσίασε στασιμότητα επί μακρόν, αν και πολύ συχνά εκφράσθηκαν διάφορες γνώμες για τη χρονολόγησή του: οι G. Fougeres (1912) και R. Heberdey (1919) τον ήθελαν να είναι ένα έργο της νεοσύστατης δημοκρατίας, οι H. Schrader (1922), Ο. Walter (1929) και W. Zschietzschmann (1934) τον ήθελαν να είναι ένα έργο των τυράννων.
Αυτό που κυρίως απουσίαζε ήταν μια σοβαρή βάση για τη στρωματογραφική χρονολόγηση των ευρημάτων της Μεγάλης Ανασκαφής. Η βάση αυτή δεν θα ήταν άλλη από την άφθονη κεραμική των εδαφών που είχαν ανασκαφεί, αλλά η κεραμική αυτή παρέμενε, δυστυχώς, αδημοσίευτη. Η δημοσίευσή της από τον Β. Graef και τον Ε. Langlotz έγινε δυνατή μόνον μετά από τέσσερις δεκαετίες (τομ. I ,1925, τομ. II, 1933) και έως τότε όλες οι απόπειρες χρονολογήσεως είχαν γίνει βάσει άλλων τεκμηρίων αλλά και με μεγάλη δόση αυθαιρέτων υποθέσεων.
Δεν είναι επομένως σύμπτωση ότι η πρώτη ειδική μελέτη για τη χρονολόγηση του Προπαρθενώνος εμφανίστηκε μόλις το 1935. Στη μελέτη αυτή («The date of the older Parthenon») ο W.B. Dinsmoor, χρησιμοποιώντας 26 καλώς χρονολογήσιμα όστρακα για τα οποία ήταν βεβαιωμένη και η θέση ευρέσεως μέσα στα στρώματα, συνεπέρανε ότι το μεγάλο βάθρο του Προπαρθενώνος δεν είναι παλαιότερο του 490 π.Χ.
Δεν είναι επομένως σύμπτωση ότι η πρώτη ειδική μελέτη για τη χρονολόγηση του Προπαρθενώνος εμφανίστηκε μόλις το 1935. Στη μελέτη αυτή («The date of the older Parthenon») ο W.B. Dinsmoor, χρησιμοποιώντας 26 καλώς χρονολογήσιμα όστρακα για τα οποία ήταν βεβαιωμένη και η θέση ευρέσεως μέσα στα στρώματα, συνεπέρανε ότι το μεγάλο βάθρο του Προπαρθενώνος δεν είναι παλαιότερο του 490 π.Χ.
Η ακόμη ακριβέστερη χρονολόγηση του έργου στο έτος 488 π.Χ. που προτείνεται στην ίδια μελέτη βασίστηκε σε αστρονομικό υπολογισμό των σφαλμάτων του αρχαίου ημερολογίου και στην υπόθεση ότι ο ναός θα έπρεπε να είναι προσανατολισμένος ακριβώς προς το σημείο ανατολής του ηλίου κατά την εορτή της Αθηνάς. Στην ίδια εργασία του επέμεινε ο Dinsmoor ότι τίποτα δεν αποδεικνύει την κατά Dorpfeld διάκριση δύο φάσεων του Προπαρθενώνος.
Η αντίδραση του Dorpfeld στις θέσεις του Dinsmoor ήταν άμεση. Όχι μόνον επέμεινε και πάλι στη διάκριση Ρa Ι (ημιτελής πώρινος), Ρa II (ημιτελής μαρμάρινος), αλλά μετέθεσε τις χρονολογήσεις που ο ίδιος είχε παλαιότερα (1902) προτείνει κατά δύο δεκαετίες προς τα πίσω.
Το ζήτημα της χρονολογήσεως του Προπαρθενώνος άρχισε να περιπλέκεται το 1936 όταν ο W. Kolbe υπεστήριξε μια χρονολόγηση στους αμέσως μετά τα Περσικά χρόνους.
Με την ίδια γνώμη τάχθηκε αργότερα (1939) και ο συνεργάτης του Α. Tschira. Το επόμενο έτος, ο Η. Riemann υπεστήριξε ότι ο Προπαρθενών ήταν έργον του Κίμωνος. Η μετάθεση της χρονολογήσεως συνεχίσθηκε αργότερα έως το ακρότατο δυνατό σημείο: ο Κ. Συριόπουλος (1951) και ο J.A. Bundgaard (1976) υπεστήριζαν ότι ο Προπαρθενών ήταν απλώς ένα περίκλειο προστάδιο του κλασικού Παρθενώνος. Ειδική περίπτωση αποτελεί ο R. Carpenter (1970), ο οποίος, ενώ δέχεται τον κατά Hill ημιτελή μαρμάρινο
Η αντίδραση του Dorpfeld στις θέσεις του Dinsmoor ήταν άμεση. Όχι μόνον επέμεινε και πάλι στη διάκριση Ρa Ι (ημιτελής πώρινος), Ρa II (ημιτελής μαρμάρινος), αλλά μετέθεσε τις χρονολογήσεις που ο ίδιος είχε παλαιότερα (1902) προτείνει κατά δύο δεκαετίες προς τα πίσω.
Το ζήτημα της χρονολογήσεως του Προπαρθενώνος άρχισε να περιπλέκεται το 1936 όταν ο W. Kolbe υπεστήριξε μια χρονολόγηση στους αμέσως μετά τα Περσικά χρόνους.
Με την ίδια γνώμη τάχθηκε αργότερα (1939) και ο συνεργάτης του Α. Tschira. Το επόμενο έτος, ο Η. Riemann υπεστήριξε ότι ο Προπαρθενών ήταν έργον του Κίμωνος. Η μετάθεση της χρονολογήσεως συνεχίσθηκε αργότερα έως το ακρότατο δυνατό σημείο: ο Κ. Συριόπουλος (1951) και ο J.A. Bundgaard (1976) υπεστήριζαν ότι ο Προπαρθενών ήταν απλώς ένα περίκλειο προστάδιο του κλασικού Παρθενώνος. Ειδική περίπτωση αποτελεί ο R. Carpenter (1970), ο οποίος, ενώ δέχεται τον κατά Hill ημιτελή μαρμάρινο
Προπαρθενώνα του 490 π.Χ., θεωρεί αναγκαία και την ύπαρξη ενός επόμενου ημιτελούς Προπαρθενώνος της εποχής του Κίμωνος! Οι υποστηρικτές της χρονολογήσεως στους προ των Περσικών χρόνους ήσαν και κατά τη νεώτερη περίοδο περισσότεροι –K. Schefold (1946), W.A. Plommer (1960), Α. Rumpf (1964), G. Gruben (1964 κ.έ.), G. Beckel (1967), Η. Drerup (1980), Μ. Κορρές (1983 κ.έ.)–, η ύπαρξη, όμως, των άλλων θεωριών προκαλεί πάντα κάποια σύγχυση, ιδίως σε εκείνους που χωρίς να διαθέτουν πραγματική ειδικότητα ή θητεία στο συγκεκριμένο θέμα αναγκάζονται μερικές φορές να εκφράσουν κάποια προτίμηση.
Η διατήρηση αυτής της καταστάσεως ευνοήθηκε κυρίως από τη μη χρησιμοποίηση των καταλληλότερων επιχειρημάτων για την υποστήριξη της προ των Περσικών χρονολογήσεως. Το κυριότερο ζήτημα ήταν και είναι η φύση των βλαβών των λίθων του ημιτελούς ναού. Δυστυχώς, εκείνοι που συντήρησαν τη σχετική συζήτηση δεν ήσαν ούτε χημικοί ούτε φυσικοί ή μηχανικοί.
Η διατήρηση αυτής της καταστάσεως ευνοήθηκε κυρίως από τη μη χρησιμοποίηση των καταλληλότερων επιχειρημάτων για την υποστήριξη της προ των Περσικών χρονολογήσεως. Το κυριότερο ζήτημα ήταν και είναι η φύση των βλαβών των λίθων του ημιτελούς ναού. Δυστυχώς, εκείνοι που συντήρησαν τη σχετική συζήτηση δεν ήσαν ούτε χημικοί ούτε φυσικοί ή μηχανικοί.
Αγνοώντας τον φυσικό μηχανισμό της θερμικής θραύσεως, έμεναν τελείως αδιάφοροι μπροστά στις
τεράστιες βλάβες αυτού του είδους (τις ενόμιζαν και αυτές γεωλογικά ελαττώματα ή θραύσεις από πτώσεις των λίθων ή προσκρούσεις, κ.λπ.) και λεπτολογούσαν για κάποιες άσχετες χρωματικές αλλοιώσεις μερικών λίθων του στερεοβάτου (οι μεν τις ενόμιζαν... σπουδαίους μάρτυρες των περσικών φλογών, οι δε, με τη βοήθεια των χημικών, εύκολα απεδείκνυαν το αστήρικτο του επιχειρήματος).
Κατά τη διάρκεια των σημερινών επεμβάσεων στον Παρθενώνα μου δόθηκε η ευκαιρία και για μια νέα έρευνα των καταλοίπων του Προπαρθενώνος. Η έρευνα εισκόμισε ισχυρά τεκμήρια υπέρ της χρονολογήσεως στους προ των Περσικών χρόνους. Κυριότερο, φυσικά, οι βαρύτατες θερμικές θραύσεις που διαπιστώθηκαν όχι απλώς στο διάσπαρτο υλικό (για τις οποίες θα ήταν δυνατός και ο ισχυρισμός... ότι έγιναν αργότερα), αλλά περίπου σε όλα τα υπό την κρηπίδα και τους τοίχους του κλασικού ναού αυτούσια μέρη ή ανατοποθετημένα μάρμαρα του Προπαρθενώνος.
Η συνεχιζόμενη έρευνα της ίδιας της αρχιτεκτονικής του κατεστραμμένου ημιτελούς ναού επιβεβαίωσε τα συμπεράσματα του Hill, προχώρησε όμως ακόμη περισσότερο στις λεπτομέρειες και ήδη κατέληξε σε μια ακριβή αναπαράσταση της κατόψεως και της προσόψεως του σηκού.
Για τη διάκριση δύο φάσεων του Προπαρθενώνος έγινε ήδη λόγος. Η διάκριση αυτή προτάθηκε πρώτη φορά από τον W. Dorpfeld το 1902 και έγινε έκτοτε δεκτή από τους Α. Furtwangler (1906), Β.Η. Hill (1912), O. Walter (1929), W. Kolbe (1936) και Κ. Schefold (1946), ενώ απερρίφθη από τον Dinsmoor (1934). Κατά τον Dorpfeld, ο γιγάντειος στερεοβάτης (με διαστάσεις 31x77 μ.) και ο επ’ αυτού ημιτελής μαρμάρινος Προπαρθενών δεν συνανήκουν ως μέρη του αυτού αρχιτεκτονικού σχεδίου.
Κατά τη διάρκεια των σημερινών επεμβάσεων στον Παρθενώνα μου δόθηκε η ευκαιρία και για μια νέα έρευνα των καταλοίπων του Προπαρθενώνος. Η έρευνα εισκόμισε ισχυρά τεκμήρια υπέρ της χρονολογήσεως στους προ των Περσικών χρόνους. Κυριότερο, φυσικά, οι βαρύτατες θερμικές θραύσεις που διαπιστώθηκαν όχι απλώς στο διάσπαρτο υλικό (για τις οποίες θα ήταν δυνατός και ο ισχυρισμός... ότι έγιναν αργότερα), αλλά περίπου σε όλα τα υπό την κρηπίδα και τους τοίχους του κλασικού ναού αυτούσια μέρη ή ανατοποθετημένα μάρμαρα του Προπαρθενώνος.
Η συνεχιζόμενη έρευνα της ίδιας της αρχιτεκτονικής του κατεστραμμένου ημιτελούς ναού επιβεβαίωσε τα συμπεράσματα του Hill, προχώρησε όμως ακόμη περισσότερο στις λεπτομέρειες και ήδη κατέληξε σε μια ακριβή αναπαράσταση της κατόψεως και της προσόψεως του σηκού.
Για τη διάκριση δύο φάσεων του Προπαρθενώνος έγινε ήδη λόγος. Η διάκριση αυτή προτάθηκε πρώτη φορά από τον W. Dorpfeld το 1902 και έγινε έκτοτε δεκτή από τους Α. Furtwangler (1906), Β.Η. Hill (1912), O. Walter (1929), W. Kolbe (1936) και Κ. Schefold (1946), ενώ απερρίφθη από τον Dinsmoor (1934). Κατά τον Dorpfeld, ο γιγάντειος στερεοβάτης (με διαστάσεις 31x77 μ.) και ο επ’ αυτού ημιτελής μαρμάρινος Προπαρθενών δεν συνανήκουν ως μέρη του αυτού αρχιτεκτονικού σχεδίου.
Ο στερεοβάτης απλώς χρησιμοποιήθηκε από τον ημιτελή μαρμάρινο Προπαρθενώνα, όπως άλλωστε και από τον κλασικό περίκλειο ναό• πρέπει όμως να έγινε για έναν παλαιότερο, ακόμη μεγαλύτερο, πώρινο ναό. Χάριν ευκολίας, ο ναός αυτός ονομάσθηκε από τον Dorpfeld Παρθενών I (Pa I), ο ημιτελής μαρμάρινος Προπαρθενών ονομάσθηκε Παρθενών II (Pa II) και ο περίκλειος ναός Παρθενών III (Pa III).
Κατά τον Dorpfeld, η κατασκευή του Pa I θα πρέπει να ματαιώθηκε σε κάποιο πρώιμο στάδιο, πράγμα που εξηγεί και τη μη εύρεση τεμαχίων κιόνων ή άλλων αρχιτεκτονικών μελών που θα ήταν δυνατόν να αποδοθούν σε αυτόν. Έτσι, ό,τι υφίσταται ακόμη από τον Pa I είναι ο στερεοβάτης, του οποίου η ανώτερη στρώση (η 22η από τον βράχο) πρέπει να αναγνωρισθεί ως μία από τις βαθμίδες της κρηπίδος του. Ο Dorpfeld πίστευε ότι ο Pa I θα ήταν ένας οκτάστυλος περίπτερος πώρινος ναός.
Αλλά πώς να αποδείξει κανείς ότι η 22η στρώση είναι βαθμίδα κρηπίδος ενός άλλου ναού και όχι απλώς ένας μορφολογικός τονισμός της άνω απολήξεως του στερεοβάτου ως ευθυντηρίας του ημιτελούς μαρμάρινου Προπαρθενώνος; είπαν οι αντίπαλοι του Dorpfeld. Και ακόμη, ανάμεσα σε ένα τελείως φανταστικό κατασκεύασμα και ένα κτήριο που υπήρξε αλλά εξαφανίστηκε πλήρως –ή που υπήρξε μόνον σε σχέδια, χωρίς να πραγματοποιηθεί ποτέ– δεν υφίσταται καμιά πρακτική διαφορά (η οποία θα ήταν δυνατόν να αποτελεί αξιόπιστη αρχαιολογική μαρτυρία).
Στα πλαίσια του έργου συντηρήσεως, είχα την ευκαιρία για μια νέα μελέτη και αυτού του ζητήματος. Σε δύο θέσεις έγινε δυνατή η εξερεύνηση της εσωτερικής δομής των ανωτέρων στρώσεων του στερεοβάτου αλλά και εκείνης που εκτείνεται πίσω από την πρώτη βαθμίδα της κρηπίδος του Προπαρθενώνος. Η τελευταία αυτή στρώση διαθέτει κοινά χαρακτηριστικά με τις υποκείμενες, αλλά πολύ διαφέρει από τις υπερκείμενες δύο (και τελευταίες υπό την περίσταση) πώρινες στρώσεις.
Οι σχετικές με τις ως άνω στρώσεις παρατηρήσεις, παλαιότερες και νεώτερες, είναι σαφώς υπέρ της διακρίσεως δύο διαδοχικών φάσεων του Προπαρθενώνος:
1. Από στατικής απόψεως είναι περιττή η αύξηση των διαστάσεων του βάθρου ενός κτηρίου όταν το έδαφος τυχαίνει να είναι βράχος (η κλίση του βράχου δεν παίζει ρόλο εάν οι έδρες λαξεύονται οριζόντιες) και η κατασκευή γίνεται με καλούς λαξευτούς λίθους.
Η αρχιτεκτονικώς σκόπιμη τοποθέτηση ενός δωρικού ναού επάνω σε πόδιον είναι ένα μάλλον σπάνιο φαινόμενο (π.χ. Σούνιον) και δεν θα την ανέμενε κανείς στην παρούσα περίπτωση, λόγω των ειδικών προβλημάτων του περί τον Παρθενώνα χώρου αλλά και λόγω του μεγέθους της σχετικής δαπάνης. Αλλά εάν, ωστόσο, και αυτό συνέβαινε, θα ήταν τελείως άτοπον να λάβει η άνω απόληξη ενός ποδίου την αδόκιμη μορφή μιας βαθμίδος και όχι μια από τις κανονικές μορφές επιστέψεως βάθρων.
2. Οι οριζόντιες επιφάνειες των βαθμίδων του Προπαρθενώνος είναι εφοδιασμένες με περίτεχνα προστατευτικά άπεργα, ενώ η αντίστοιχη, καλώς διατηρημένη επιφάνεια της 25ης στρώσεως του στερεοβάτου δεν έχει ούτε και είχε ποτέ τέτοια άπεργα.
3. Το μέτωπο της 22ας στρώσεως του στερεοβάτου (Εικόνα 8, αρ. 2a) διαθέτει περίτεχνα προστατευτικά άπεργα, παρόμοια αλλά πολύ πλουσιότερα και πολύ λεπτότερης κατεργασίας από εκείνα της κρηπίδος του Προπαρθενώνος.
4. Οι αναθυρώσεις των λίθων της κρηπίδος του Προπαρθενώνος (Εικόνα 8., αρ. 3) έχουν περίπου 10 εκ. πλάτος. Οι αναθυρώσεις των ανωτέρων στρώσεων του στερεοβάτου έχουν κατά μέσον όρο 15 εκ. πλάτος.
5. Οι λίθοι της κρηπίδος του Προπαρθενώνος είναι γενικώς αγόμφωτοι. Οι λίθοι της 22ας στρώσεως, αντιθέτως, είναι όλοι γομφωμένοι και μάλιστα σε δύο σημεία ο καθένας.
6. Στις γωνίες του στερεοβάτου έχουν χρησιμοποιηθεί περισσότεροι και μεγαλύτεροι σύνδεσμοι από τους αντίστοιχους της κρηπίδος του Προπαρθενώνος.
Οι μεταξύ των βαθμίδων του Προπαρθενώνος και του στερεοβάτου τεχνοτροπικές και οικοδομικές διαφορές είναι πολύ σοβαρές. Η σύγκριση με άλλα μνημεία αποδεικνύει ότι η οικοδομική της κρηπίδος του Προπαρθενώνος έχει το όμοιό της στην κρηπίδα του κλασικού Παρθενώνος (ενδείξεις της ημιτελικής μορφής της σώζονται ακόμη) και στις ημιτελικές επιφάνειές του (π.χ. στο δυτικό θυραίον άνοιγμα), ενώ οι πολύ διαφορετικές οικοδομικές λεπτομέρειες του στερεοβάτου έχουν το όμοιό τους μάλλον στο θεμέλιο και την κρηπίδα του αρχαϊκού Ολυμπιείου.
Ενώ όμως, ως προς τη διάκριση των φάσεων, φαίνεται ότι θα πρέπει να συμφωνήσει κανείς με τον Dorpfeld, δεν είναι δυνατόν να λεχθεί το ίδιο και για την υποθετική μορφή του Παρθενώνος Ι. Αν ο ναός ήταν οκτάστυλος, θα έπρεπε να έχει όλα τα βασικά στοιχεία του (κίονες, μεταξόνια, επιστύλια κ.λπ.) μικρότερα όχι μόνον από τα αντίστοιχα του κλασικού Παρθενώνος (κατά 13%) αλλά ακόμη και από εκείνα του αρχαίου νεώ. Τούτο κατά κανέναν τρόπο δεν συνδυάζεται με την κλίμακα των λεπτομερειών του στερεοβάτου.
2. Οι οριζόντιες επιφάνειες των βαθμίδων του Προπαρθενώνος είναι εφοδιασμένες με περίτεχνα προστατευτικά άπεργα, ενώ η αντίστοιχη, καλώς διατηρημένη επιφάνεια της 25ης στρώσεως του στερεοβάτου δεν έχει ούτε και είχε ποτέ τέτοια άπεργα.
3. Το μέτωπο της 22ας στρώσεως του στερεοβάτου (Εικόνα 8, αρ. 2a) διαθέτει περίτεχνα προστατευτικά άπεργα, παρόμοια αλλά πολύ πλουσιότερα και πολύ λεπτότερης κατεργασίας από εκείνα της κρηπίδος του Προπαρθενώνος.
4. Οι αναθυρώσεις των λίθων της κρηπίδος του Προπαρθενώνος (Εικόνα 8., αρ. 3) έχουν περίπου 10 εκ. πλάτος. Οι αναθυρώσεις των ανωτέρων στρώσεων του στερεοβάτου έχουν κατά μέσον όρο 15 εκ. πλάτος.
5. Οι λίθοι της κρηπίδος του Προπαρθενώνος είναι γενικώς αγόμφωτοι. Οι λίθοι της 22ας στρώσεως, αντιθέτως, είναι όλοι γομφωμένοι και μάλιστα σε δύο σημεία ο καθένας.
6. Στις γωνίες του στερεοβάτου έχουν χρησιμοποιηθεί περισσότεροι και μεγαλύτεροι σύνδεσμοι από τους αντίστοιχους της κρηπίδος του Προπαρθενώνος.
Οι μεταξύ των βαθμίδων του Προπαρθενώνος και του στερεοβάτου τεχνοτροπικές και οικοδομικές διαφορές είναι πολύ σοβαρές. Η σύγκριση με άλλα μνημεία αποδεικνύει ότι η οικοδομική της κρηπίδος του Προπαρθενώνος έχει το όμοιό της στην κρηπίδα του κλασικού Παρθενώνος (ενδείξεις της ημιτελικής μορφής της σώζονται ακόμη) και στις ημιτελικές επιφάνειές του (π.χ. στο δυτικό θυραίον άνοιγμα), ενώ οι πολύ διαφορετικές οικοδομικές λεπτομέρειες του στερεοβάτου έχουν το όμοιό τους μάλλον στο θεμέλιο και την κρηπίδα του αρχαϊκού Ολυμπιείου.
Ενώ όμως, ως προς τη διάκριση των φάσεων, φαίνεται ότι θα πρέπει να συμφωνήσει κανείς με τον Dorpfeld, δεν είναι δυνατόν να λεχθεί το ίδιο και για την υποθετική μορφή του Παρθενώνος Ι. Αν ο ναός ήταν οκτάστυλος, θα έπρεπε να έχει όλα τα βασικά στοιχεία του (κίονες, μεταξόνια, επιστύλια κ.λπ.) μικρότερα όχι μόνον από τα αντίστοιχα του κλασικού Παρθενώνος (κατά 13%) αλλά ακόμη και από εκείνα του αρχαίου νεώ. Τούτο κατά κανέναν τρόπο δεν συνδυάζεται με την κλίμακα των λεπτομερειών του στερεοβάτου.
Το ύψος της 22ας στρώσεως (πρώτης βαθμίδος της κρηπίδος του Pa I) ήταν σχεδόν 59 εκ., πολύ μεγαλύτερο (κατά 12%) από εκείνο των βαθμίδων του κλασικού Παρθενώνος (-51,6), αλλά πρακτικώς ίσον με εκείνο των βαθμίδων του Ολυμπιείου (-59)! Θα πρέπει, λοιπόν, να συμφωνήσει κανείς με τον Hill, ο οποίος είχε εκφράσει τη γνώμη ότι αν όντως υπήρξε Pa I δεν θα μπορούσε να είναι οκτάστυλος αλλά εξάστυλος.
Ένας τέτοιος ναός θα ήταν πράγματι πολύ μνημειώδης, θα έπρεπε να είχε κίονες με διάμετρο αρκετά μεγαλύτερη των δύο μέτρων και μεταξόνια μεγαλύτερα των πέντε και θα ήταν συγκρίσιμος πολύ περισσότερο με τον ναό του Διός στην Ολυμπία, παρά με τον κλασικό Παρθενώνα. Στον τελευταίο, τα πράγματα είναι πολύ διαφορετικά. Το μεγάλο πλάτος του και η χρήση οκτώ αντί έξι κιόνων στις προσόψεις είναι το αποτέλεσμα πολύ τολμηρών αλλά και συμβιβαστικών αποφάσεων: επαναστατική αύξηση του εσωτερικού χώρου, ακόμη και εις βάρος του χώρου των πλευρικών πτερών, και κατά το δυνατόν μεγίστη αναχρησιμοποίηση σπονδύλων που είχαν ήδη προετοιμασθεί για έναν αρκετά στενότερο ναό (τον μαρμάρινο Προπαρθενώνα).
Η διάκριση των φάσεων Pa I και Pa II επιτρέπει την εξής ιστορική ερμηνεία:
Με την εγκαθίδρυση της δημοκρατίας η οικοδόμηση του γιγάντειου Ολυμπιείου, το λαμπρότερο πρόγραμμα της παλαιάς τυραννίας, παύθηκε. Η καλύτερη αντιπαράθεση προς το παυθέν έργο θα ήταν ένα συναφές πρόγραμμα της νεοσύστατης δημοκρατίας: η κατασκευή ενός νέου ναού της Αθηνάς επάνω στην Ακρόπολη, που θα αντικαθιστούσε τον παλαιότερο από τους δύο αρχαϊκούς ναούς, αυτόν με τα πώρινα αετώματα της εποχής του Πεισιστράτου. Το νέο έργο θα απαιτούσε την αναβίβαση χιλιάδων λίθων, βάρους 2-15 τόνων, από τα πειραϊκά λατομεία, τα οποία βεβαίως ήσαν σε ετοιμότητα λόγω του γιγάντειου Ολυμπιείου.
Η διάκριση των φάσεων Pa I και Pa II επιτρέπει την εξής ιστορική ερμηνεία:
Με την εγκαθίδρυση της δημοκρατίας η οικοδόμηση του γιγάντειου Ολυμπιείου, το λαμπρότερο πρόγραμμα της παλαιάς τυραννίας, παύθηκε. Η καλύτερη αντιπαράθεση προς το παυθέν έργο θα ήταν ένα συναφές πρόγραμμα της νεοσύστατης δημοκρατίας: η κατασκευή ενός νέου ναού της Αθηνάς επάνω στην Ακρόπολη, που θα αντικαθιστούσε τον παλαιότερο από τους δύο αρχαϊκούς ναούς, αυτόν με τα πώρινα αετώματα της εποχής του Πεισιστράτου. Το νέο έργο θα απαιτούσε την αναβίβαση χιλιάδων λίθων, βάρους 2-15 τόνων, από τα πειραϊκά λατομεία, τα οποία βεβαίως ήσαν σε ετοιμότητα λόγω του γιγάντειου Ολυμπιείου.
Το νέο έργο, του οποίου η έναρξη δύναται να τοποθετηθεί περίπου στο τέλος του 6ου ή τις αρχές του 5ου αιώνα, προόδευσε με εξαιρετικούς ρυθμούς. Για τον στερεοβάτη πρέπει να μεταφέρθηκαν από τον Πειραιά έως την Ακρόπολη σχεδόν δέκα χιλιάδες λίθοι βάρους δύο τόνων. Η απόσταση ήταν δέκα χιλιόμετρα, εκ των οποίων τα πρώτα σε λίαν υποχωρητικό έδαφος και τα τελευταία σε πολύ ανηφορικές οδούς. Πριν από την εμφάνιση του περσικού κινδύνου, η πρώτη βαθμίδα της κρηπίδος ήταν στη θέση της μαζί με ένα μεγάλο μέρος της δεύτερης. Η μεταφορά σπονδύλων (βάρους κατά πολύ άνω των δέκα τόνων!) δεν είχε αρχίσει ακόμη.
Μετά την επιτυχία του Μαραθώνα το έργο συνεχίσθηκε, αλλά μόνον αφού υπέστη μια πολύ σοβαρή αναθεώρηση. Η αλλαγή αυτή δεν πρέπει να το εζημίωσε, αλλά μάλλον να το ωφέλησε. Αντί πώρου προτιμήθηκε το εξοχότερο υλικό, το μάρμαρο, οι διαστάσεις όμως έπρεπε να μειωθούν, ώστε να αντισταθμίζονται ορισμένες φυσικές και οικονομικές διαφορές των δύο υλικών και να καθίσταται τεχνικώς εφικτή η εντός ευλόγου χρόνου περάτωση. Ο περιορισμός των διαστάσεων ευνοούσε και την ανετώτερη συνύπαρξη του νέου κτηρίου με ένα μικρό ιερό που υπήρχε ήδη στη βόρεια πλευρά του.
Το νέο έργο πρέπει να παύθηκε ήδη το 485 π.Χ. και όχι το 480 π.Χ. Με τον θάνατο του Δαρείου (485 π.Χ.) και την άνοδο του Ξέρξη στον περσικό θρόνο, μια νέα πολύ μεγαλύτερη πολεμική απειλή έγινε αμέσως φανερή. Η Αθήνα αντέδρασε με μια αλλαγή κυβερνήσεως (Θεμιστοκλής) και με άμεση εφαρμογή ενός αμυντικού προγράμματος (πειραϊκές οχυρώσεις, λιμενικά έργα, ναυπήγηση στόλου) για το οποίο θα πρέπει να εξοικονομήθηκε κάθε δυνατό μέσον. Το πολυδάπανον έργο της ναοδομίας δεν θα ήταν δυνατόν να συνεχίζεται... μέχρι την ημέρα που οι Πέρσες θα έκαιαν την Ακρόπολη.
Από τις υπάρχουσες άφθονες υλικές μαρτυρίες υπολογίζεται ότι στο μικρό χρονικό διάστημα των εργασιών στον μαρμάρινο Προπαρθενώνα το τεράστιο έργο της κρηπίδος ήταν έτοιμο μαζί με το βαρύτερο μέρος των κιόνων. Εκατοντάδες σπόνδυλοι ήσαν έτοιμοι στα λατομεία και μερικά κιονόκρανα είχαν ήδη μεταφερθεί στην Ακρόπολη. Έτοιμοι για τοποθέτηση ήσαν ακόμη οι ορθοστάτες και πολυάριθμοι άλλοι λίθοι των τοίχων.
Η διάκριση των φάσεων Pa I και Pa II ικανοποιεί εκτός των άλλων και αυτό που θα έλεγε κανείς ποσοτική εκτίμηση του συντελεσθέντος έργου: χωρίς αυτήν θα ήταν ακόμη πιο δυσεξήγητη η εκτέλεση τόσο μεγάλου ολικού έργου –γιγάντειος στερεοβάτης και ημιτελής μαρμάρινος ναός– σε τόσο λίγο χρόνο!
Τα ως άνω δεν προκαλούν σοβαρή σύγκρουση προς τη χρονολόγηση που επέτυχε ο Dinsmoor. Η διαφορά των δέκα ετών δεν είναι έξω από τα όρια ακριβείας της στρωματογραφικής χρονολογήσεως.
ΟΙ ΕΠΙΧΩΣΕΙΣ ΚΑΙ ΤΟ ΚΙΜΩΝΕΙΟΝ
Η εν επαφή προς τον στερεοβάτη του Παρθενώνος αρχαία επίχωση παρουσίαζε, όπως πρώτος είχε διαπιστώσει ο Ε. Ziller (1865), μια επαναλαμβανόμενη διαδοχή τριών στρωμάτων σε αντιστοιχία προς τις ισχυρές λίθινες στρώσεις του ιδίου του στερεοβάτου.
Το νέο έργο πρέπει να παύθηκε ήδη το 485 π.Χ. και όχι το 480 π.Χ. Με τον θάνατο του Δαρείου (485 π.Χ.) και την άνοδο του Ξέρξη στον περσικό θρόνο, μια νέα πολύ μεγαλύτερη πολεμική απειλή έγινε αμέσως φανερή. Η Αθήνα αντέδρασε με μια αλλαγή κυβερνήσεως (Θεμιστοκλής) και με άμεση εφαρμογή ενός αμυντικού προγράμματος (πειραϊκές οχυρώσεις, λιμενικά έργα, ναυπήγηση στόλου) για το οποίο θα πρέπει να εξοικονομήθηκε κάθε δυνατό μέσον. Το πολυδάπανον έργο της ναοδομίας δεν θα ήταν δυνατόν να συνεχίζεται... μέχρι την ημέρα που οι Πέρσες θα έκαιαν την Ακρόπολη.
Από τις υπάρχουσες άφθονες υλικές μαρτυρίες υπολογίζεται ότι στο μικρό χρονικό διάστημα των εργασιών στον μαρμάρινο Προπαρθενώνα το τεράστιο έργο της κρηπίδος ήταν έτοιμο μαζί με το βαρύτερο μέρος των κιόνων. Εκατοντάδες σπόνδυλοι ήσαν έτοιμοι στα λατομεία και μερικά κιονόκρανα είχαν ήδη μεταφερθεί στην Ακρόπολη. Έτοιμοι για τοποθέτηση ήσαν ακόμη οι ορθοστάτες και πολυάριθμοι άλλοι λίθοι των τοίχων.
Η διάκριση των φάσεων Pa I και Pa II ικανοποιεί εκτός των άλλων και αυτό που θα έλεγε κανείς ποσοτική εκτίμηση του συντελεσθέντος έργου: χωρίς αυτήν θα ήταν ακόμη πιο δυσεξήγητη η εκτέλεση τόσο μεγάλου ολικού έργου –γιγάντειος στερεοβάτης και ημιτελής μαρμάρινος ναός– σε τόσο λίγο χρόνο!
Τα ως άνω δεν προκαλούν σοβαρή σύγκρουση προς τη χρονολόγηση που επέτυχε ο Dinsmoor. Η διαφορά των δέκα ετών δεν είναι έξω από τα όρια ακριβείας της στρωματογραφικής χρονολογήσεως.
ΟΙ ΕΠΙΧΩΣΕΙΣ ΚΑΙ ΤΟ ΚΙΜΩΝΕΙΟΝ
Η εν επαφή προς τον στερεοβάτη του Παρθενώνος αρχαία επίχωση παρουσίαζε, όπως πρώτος είχε διαπιστώσει ο Ε. Ziller (1865), μια επαναλαμβανόμενη διαδοχή τριών στρωμάτων σε αντιστοιχία προς τις ισχυρές λίθινες στρώσεις του ιδίου του στερεοβάτου.
Το ένα, κυανίζουσα λατύπη, από το κόψιμο του βράχου εντός του οποίου γινόταν η θεμελίωση των βορειοτέρων λίθων εκάστης στρώσεως, το άλλο, κίτρινη λατύπη, από τη μετά την τοποθέτηση ενιαία κατεργασία της άνω επιφανείας εκάστης στρώσεως και, τέλος, το τρίτο, σκοτεινής αποχρώσεως, ήταν μια χωμάτινη συμπλήρωση του πάχους των προηγουμένων (χρήσιμη και για τη διευκόλυνση της εργασίας των οικοδόμων κατά τη διάρκεια της τοποθετήσεως των λίθων εκάστης νέας στρώσεως).
Οι επιχώσεις αυτές, αναπόφευκτες λόγω των μεγάλων ποσοτήτων της απορριπτόμενης λατύπης αλλά και αναγκαίες ως βοηθητικές, συνεχώς ανυψούμενες επιφάνειες εργασίας, έγιναν ταυτοχρόνως με τον στερεοβάτη σε μια εποχή που ακόμη δεν είχε κατασκευασθεί (εκτός, ίσως, από ένα μέρος της βάσεώς του) το ισχυρό νότιο τείχος της Ακροπόλεως, το λεγόμενο Κιμώνειον.
Οι επιχώσεις αυτές, αναπόφευκτες λόγω των μεγάλων ποσοτήτων της απορριπτόμενης λατύπης αλλά και αναγκαίες ως βοηθητικές, συνεχώς ανυψούμενες επιφάνειες εργασίας, έγιναν ταυτοχρόνως με τον στερεοβάτη σε μια εποχή που ακόμη δεν είχε κατασκευασθεί (εκτός, ίσως, από ένα μέρος της βάσεώς του) το ισχυρό νότιο τείχος της Ακροπόλεως, το λεγόμενο Κιμώνειον.
Τούτο δηλώνει η από βορράν προς νότον ανάπτυξή των και η ισχυρή κατωφερική απόληξή των, η οποία ως μόνα αντερείσματα είχε τα χαμηλά κατάλοιπα του μυκηναϊκού τείχους και κάποιους προσωρινούς αναλημματικούς τοίχους, κατασκευασμένους ειδικώς γι' αυτόν τον σκοπό.
Με την κατασκευή του Κιμωνείου (466 π.Χ.), νέα στρώματα προστέθηκαν επάνω στα παλαιά, αυτή τη φορά με κατεύθυνση και κλίση από νότον προς βορράν. Τέλος, άλλα, πολύ εκτενέστερα και μεταγενέστερα στρώματα, σύγχρονα προς τον κλασικό Παρθενώνα επικάλυψαν τόσον εκείνα του Προπαρθενώνος όσον και εκείνα του Κιμωνείου τείχους. Τα στρώματα αυτά, με μέσο πάχος τριών μέτρων, περιέχουν τα κτισμένα με λίθους του Προπαρθενώνος θεμέλια ενός μεγάλου εργαστηρίου και απολήγουν στις πέντε ανώτατες στρώσεις πωρόλιθων του νοτίου τείχους, οι οποίες αποτελούν μια ιδιαίτερη ιστορική φάση του, την περίκλεια υπερύψωση.
Η περίκλεια υπερύψωση διακρίνεται από το καθαυτό κιμώνειον μέρος επειδή παρουσιάζει και μια εξαιρετική αύξηση του πάχους. Με αυτή τη μορφή εκτείνεται έως τη ΝΑ γωνία και με σταθερή πάντα οριζόντια στάθμη συνεχίζεται στην ανατολική πλευρά. Εκεί γίνεται καλύτερα ορατό ένα πρόβλημα: για την επίτευξη κανονικής ισοπεδώσεως έως την οριζόντια λαξευμένη στάθμη του βράχου παρά τη ΒΑ γωνία της Ακροπόλεως («μπελβεντέρε») θα έπρεπε να έχει το τείχος άλλες επτά στρώσεις πάχους μισού και πλέον μέτρου (μη συμπεριλαμβανομένου του στηθαίου).
Με την κατασκευή του Κιμωνείου (466 π.Χ.), νέα στρώματα προστέθηκαν επάνω στα παλαιά, αυτή τη φορά με κατεύθυνση και κλίση από νότον προς βορράν. Τέλος, άλλα, πολύ εκτενέστερα και μεταγενέστερα στρώματα, σύγχρονα προς τον κλασικό Παρθενώνα επικάλυψαν τόσον εκείνα του Προπαρθενώνος όσον και εκείνα του Κιμωνείου τείχους. Τα στρώματα αυτά, με μέσο πάχος τριών μέτρων, περιέχουν τα κτισμένα με λίθους του Προπαρθενώνος θεμέλια ενός μεγάλου εργαστηρίου και απολήγουν στις πέντε ανώτατες στρώσεις πωρόλιθων του νοτίου τείχους, οι οποίες αποτελούν μια ιδιαίτερη ιστορική φάση του, την περίκλεια υπερύψωση.
Η περίκλεια υπερύψωση διακρίνεται από το καθαυτό κιμώνειον μέρος επειδή παρουσιάζει και μια εξαιρετική αύξηση του πάχους. Με αυτή τη μορφή εκτείνεται έως τη ΝΑ γωνία και με σταθερή πάντα οριζόντια στάθμη συνεχίζεται στην ανατολική πλευρά. Εκεί γίνεται καλύτερα ορατό ένα πρόβλημα: για την επίτευξη κανονικής ισοπεδώσεως έως την οριζόντια λαξευμένη στάθμη του βράχου παρά τη ΒΑ γωνία της Ακροπόλεως («μπελβεντέρε») θα έπρεπε να έχει το τείχος άλλες επτά στρώσεις πάχους μισού και πλέον μέτρου (μη συμπεριλαμβανομένου του στηθαίου).
Ωστόσο, η έλλειψη αυτή δεν οφείλεται σε κάποια παλαιότερη καταστροφή του άνω μέρους του. Στην ανατολική πλευρά, η ανώτερη σωζόμενη στρώση είναι ακατέργαστη και ποτέ δεν ετοιμάσθηκε για να δεχθεί την επόμενη (το τμήμα που κατέρρευσε το 1703 –και αναπληρώθηκε μετά το 1750 με νεώτερη κατασκευή– δεν διέφερε από το σωζόμενο). Η διακοπή της περαιτέρω υψώσεως του τείχους είχε ως αποτέλεσμα να μείνει ατείχιστο το υψηλότερο μέρος του βράχου, δηλαδή ένα αρκετά μεγάλο μέρος της ανατολικής πλευράς της Ακροπόλεως.
Από την ως άνω παρατήρηση, από διάφορες λεπτομέρειες της στρωματογραφίας που μελέτησε ο Ross, από την κατεργασία της ευθυντηρίας του Παθενώνος στα ανατολικά και τα νότια και από τη στάθμη της ευθυντηρίας του βορείου τείχους στα ΒΑ του Παρθενώνος, συμπεραίνεται ότι η κατασκευή του νοτίου και του ανατολικού τείχους είναι για κάποιους λόγους ημιτελής.
Από την ως άνω παρατήρηση, από διάφορες λεπτομέρειες της στρωματογραφίας που μελέτησε ο Ross, από την κατεργασία της ευθυντηρίας του Παθενώνος στα ανατολικά και τα νότια και από τη στάθμη της ευθυντηρίας του βορείου τείχους στα ΒΑ του Παρθενώνος, συμπεραίνεται ότι η κατασκευή του νοτίου και του ανατολικού τείχους είναι για κάποιους λόγους ημιτελής.
Η αρχική πρόθεση ήταν να διαμορφωθεί ενιαία επίπεδη επιφάνεια στο ύψος της ευθυντηρίας του ναού (με ελαφρότατη μόνον κλίση περίπου 1% για τα όμβρια), σε όλη την έκταση στα νότια, τα ανατολικά και τα βορειοανατολικά του Παρθενώνος μέχρι το τείχος. Για την πλήρη πραγματοποίηση του σχεδίου θα έπρεπε να προστεθούν στο άνω μέρος του τείχους άλλες επτά στρώσεις.
Το απραγματοποίητον αυτού του σχεδίου ήταν αντιληπτό και στον Dorpfeld, τουλάχιστον για τη νότια πλευρά (όπως δηλώνει μια διακεκομμένη γραμμή στις σχετικές σχεδιαστικές τομές του νοτίου τείχους) και θα πρέπει να ήταν επίσης εύλογο για τον Π. Κάλκο (ο οποίος εσχεδίασε το μουσείο με το δώμα του ακριβώς υπό τη στάθμη της ευθυντηρίας του Παρθενώνος).
Οι λόγοι που προκάλεσαν την αναβολή ή ίσως τη ματαίωση του αρχικού σχεδίου των εδαφικών διαμορφώσεων στα νότια και τα ανατολικά του Παρθενώνος δεν είναι, φυσικά, γνωστοί. Πιθανότεροι, όμως, είναι οι εξής:
1. Η γενική διακοπή των έργων λόγω του Πελοποννησιακού πολέμου.
2. Για να μη μειωθεί ακόμη περισσότερο η ορατότης του Παρθενώνος από την περιοχή του Ωδείου και του ιερού του Διονύσου.
3. Για να μη «βυθισθεί» ακόμη περισσότερο το ιερόν του Πανδίωνος στις γύρω από αυτό συνεχώς ανυψούμενες επιχώσεις.
Στο σημείο αυτό ας προστεθεί ότι πριν από την κλασική εποχή τέτοια προβλήματα δεν υπήρχαν. Το έδαφος της Ακροπόλεως ακολουθούσε σχεδόν ακριβώς την αρχική φυσική μορφή του βράχου και το τείχος –έργο της μυκηναϊκής εποχής– ήταν προσαρμοσμένο όχι μόνον στις οριζόντιες ακανονιστίες της περιμέτρου του βράχου αλλά και στις μεγάλες υψομετρικές διαφορές της (το τελευταίο μένει συχνά απαρατήρητο επειδή η συνηθέστερη απεικόνιση του τείχους μέσα στα αρχαιολογικά και άλλα βιβλία είναι απλώς μια κάτοψη).
Οι λόγοι που προκάλεσαν την αναβολή ή ίσως τη ματαίωση του αρχικού σχεδίου των εδαφικών διαμορφώσεων στα νότια και τα ανατολικά του Παρθενώνος δεν είναι, φυσικά, γνωστοί. Πιθανότεροι, όμως, είναι οι εξής:
1. Η γενική διακοπή των έργων λόγω του Πελοποννησιακού πολέμου.
2. Για να μη μειωθεί ακόμη περισσότερο η ορατότης του Παρθενώνος από την περιοχή του Ωδείου και του ιερού του Διονύσου.
3. Για να μη «βυθισθεί» ακόμη περισσότερο το ιερόν του Πανδίωνος στις γύρω από αυτό συνεχώς ανυψούμενες επιχώσεις.
Στο σημείο αυτό ας προστεθεί ότι πριν από την κλασική εποχή τέτοια προβλήματα δεν υπήρχαν. Το έδαφος της Ακροπόλεως ακολουθούσε σχεδόν ακριβώς την αρχική φυσική μορφή του βράχου και το τείχος –έργο της μυκηναϊκής εποχής– ήταν προσαρμοσμένο όχι μόνον στις οριζόντιες ακανονιστίες της περιμέτρου του βράχου αλλά και στις μεγάλες υψομετρικές διαφορές της (το τελευταίο μένει συχνά απαρατήρητο επειδή η συνηθέστερη απεικόνιση του τείχους μέσα στα αρχαιολογικά και άλλα βιβλία είναι απλώς μια κάτοψη).
Όμως, έως την αυγή της κλασικής εποχής, η μεταξύ των δύο πλευρών της Ακροπόλεως υψομετρική διαφορά του εδάφους ξεπερνούσε τα είκοσι μέτρα. Τεχνητές επιχώσεις είχαν γίνει και τότε, ήσαν όμως μικρές και απλώς εξυπηρετούσαν τοπικά μόνον την εξίσωση ,ή μάλλον τον μετριασμό, κάποιων υψομετρικών διαφορών. Έτσι, τα περισσότερα τεμένη –ιδίως τα μεγαλύτερα– ήσαν ακόμη και στο εσωτερικό των ανισόσταθμα.
Η μεταμόρφωση της Ακροπόλεως σε ένα πολύ κανονικότερο σύνολο οριζοντίων ανδήρων, με πανύψηλους αναλημματικούς τοίχους, τεράστιες επιχώσεις και όχι αμελητέες απολαξεύσεις του βράχου ήταν ιδέα και έργο της κλασικής εποχής .
ΤΟ ΜΥΚΗΝΑΪΚΟ ΤΕΙΧΟΣ
Ένα από τα σπουδαιότερα ευρήματα της ανασκαφής στα νότια του Παρθενώνος ήταν και το μυκηναϊκό τείχος. Το μεγαλύτερο μέρος της διαδρομής του βρέθηκε σε διάφορες θέσεις μέσα από το νότιο τείχος. Ακόμη και στην περιοχή που κατά την εποχή της ανασκαφής ήταν ήδη (από εικοσαετίας) κατειλημμένη από το μουσείο έγινε δυνατή η παρακολούθηση της πορείας του τείχους μετά από προσωρινή αφαίρεση του πατώματος μερικών αιθουσών της βόρειας πλευράς του και με προσεκτικές ανασκαφές μεταξύ των θεμελίων του.
ΤΟ ΜΥΚΗΝΑΪΚΟ ΤΕΙΧΟΣ
Ένα από τα σπουδαιότερα ευρήματα της ανασκαφής στα νότια του Παρθενώνος ήταν και το μυκηναϊκό τείχος. Το μεγαλύτερο μέρος της διαδρομής του βρέθηκε σε διάφορες θέσεις μέσα από το νότιο τείχος. Ακόμη και στην περιοχή που κατά την εποχή της ανασκαφής ήταν ήδη (από εικοσαετίας) κατειλημμένη από το μουσείο έγινε δυνατή η παρακολούθηση της πορείας του τείχους μετά από προσωρινή αφαίρεση του πατώματος μερικών αιθουσών της βόρειας πλευράς του και με προσεκτικές ανασκαφές μεταξύ των θεμελίων του.
Μόνον κάτω από τις αίθουσες της νότιας πλευράς δεν ήταν δυνατόν να επαναληφθεί η ίδια εργασία, επειδή εκεί τα θεμέλια του μουσείου φέρονται σε αρχαίες επιχώσεις των οποίων το βάθος είναι, λόγω της κατωφέρειας του βράχου, πολύ μεγάλο. Εις ό,τι αφορά στη διαδρομή του τείχους, αξίζει να σημειωθεί ότι, ενώ αυτή γενικώς συμπίπτει με τα απόκρημνα όρια του βράχου, στην περιοχή του μουσείου παρουσιάζει μια ισχυρότατη υποχώρηση προς τα μέσα, με αποτέλεσμα αφενός να έχει αποβεί μεγαλύτερο το μήκος και, επομένως, το έργο της τοιχοδομίας και αφετέρου να έχει απομείνει ατείχιστη μια βατή επιφάνεια εκτάσεως μερικών εκατοντάδων τετραγωνικών μέτρων.
Η μορφή αυτή θα ήταν ανεξήγητη εάν στο βαθύτερο μέρος της μεγάλης αυτής εσοχής του τείχους δεν είχε υπάρξει κάποτε μια πύλη. Ως γνωστόν, η τοποθέτηση των πυλών στο βάθος μεγάλων προαυλίων ή διαδρόμων ήταν ένα από τα τυπικά μέσα για την επαύξηση της αμυντικής των ικανότητος.
Δυστυχώς, στη θέση όπου θα ήταν πιθανότερη η ύπαρξη αυτής της πύλης, η αρχαιολογική και ειδικότερα η σχεδιαστική τεκμηρίωση υπήρξε κατά την ανασκαφή λίαν ανεπαρκής λόγω εμποδίων που έθεταν τα θεμέλια του μουσείου και οι υποκείμενες επιχώσεις αλλά και λόγω κακής διατηρήσεως του ιδίου του τείχους. Επομένως, η πύλη αυτή –όπως παρουσιάζεται σε σχέδια του J.A. Bundgaard και σε μερικά σχέδια του γράφοντος (βάσει των οποίων και το ομοίωμα της Ακροπόλεως κατά την αρχαϊκή εποχή, στο Κέντρο Μελετών Ακροπόλεως)– είναι υποθετική αλλά, πάντως, πολύ πιθανή.
Δυστυχώς, στη θέση όπου θα ήταν πιθανότερη η ύπαρξη αυτής της πύλης, η αρχαιολογική και ειδικότερα η σχεδιαστική τεκμηρίωση υπήρξε κατά την ανασκαφή λίαν ανεπαρκής λόγω εμποδίων που έθεταν τα θεμέλια του μουσείου και οι υποκείμενες επιχώσεις αλλά και λόγω κακής διατηρήσεως του ιδίου του τείχους. Επομένως, η πύλη αυτή –όπως παρουσιάζεται σε σχέδια του J.A. Bundgaard και σε μερικά σχέδια του γράφοντος (βάσει των οποίων και το ομοίωμα της Ακροπόλεως κατά την αρχαϊκή εποχή, στο Κέντρο Μελετών Ακροπόλεως)– είναι υποθετική αλλά, πάντως, πολύ πιθανή.
Για την ύπαρξή της υπάρχουν, άλλωστε, και άλλες ενδείξεις: βραχότμητες βαθμίδες ακριβώς επάνω από το θέατρο μερικά μέτρα δυτικότερα από τον άξονά του, ένας τοίχος προγενέστερος του θεάτρου ανερχόμενος προς τις βραχότμητες βαθμίδες και, τέλος, η οδός που περιβάλλει από τα νότια και δυτικά το ιερό του Διονύσου, της οποίας η καμπύλη διαδρομή αποτελεί σοβαρή ένδειξη ότι αυτή (η οδός) είναι προγενέστερη του λοιπού ρυμοτομικού συστήματος της νότιας κλιτύος.
Η πορεία της, αφενός προς το βράχο, με πρώτο σταθμό την αρχαία κρήνη, αφετέρου προς το Ολυμπιείον, μάλιστα με ελιγμούς που χαρακτηρίζουν ατραπούς επί ανωμάλου εδάφους, δεν πρέπει να είναι τυχαία. Ίσως αποτελεί και αυτή μια ανάμνηση από την προϊστορική Αθήνα που, κατά τον Θουκυδίδη, το ένα μέρος της ήταν στην περιοχή του Ολυμπιείου και το άλλο, η πόλις, επάνω στον βράχο.
Στο σημείο αυτό ας τονισθεί ότι το μέσον της νότιας πλευράς του βράχου ήταν κάποτε εξίσου, αν όχι περισσότερο, βατό από όσο ήταν η δυτική πλευρά. Τούτο δεν είναι σήμερα εύκολα αντιληπτό επειδή η αρχική μορφή του βράχου καλύπτεται από τις γιγάντειες επιχώσεις του 5ου αιώνα ή έχει εξαλειφθεί κατά τους εκβραχισμούς του 4ου και του 3ου αι. π.Χ. Η εύλογη υπόθεση της νοτίας προσβάσεως συνδυάζεται επίσης αρμονικά με τον μεγάλο αριθμό και τη συγκέντρωση προϊστορικών τάφων στη μεταξύ Ασκληπιείου και στοάς Ευμενούς περιοχή.
Στο σημείο αυτό ας τονισθεί ότι το μέσον της νότιας πλευράς του βράχου ήταν κάποτε εξίσου, αν όχι περισσότερο, βατό από όσο ήταν η δυτική πλευρά. Τούτο δεν είναι σήμερα εύκολα αντιληπτό επειδή η αρχική μορφή του βράχου καλύπτεται από τις γιγάντειες επιχώσεις του 5ου αιώνα ή έχει εξαλειφθεί κατά τους εκβραχισμούς του 4ου και του 3ου αι. π.Χ. Η εύλογη υπόθεση της νοτίας προσβάσεως συνδυάζεται επίσης αρμονικά με τον μεγάλο αριθμό και τη συγκέντρωση προϊστορικών τάφων στη μεταξύ Ασκληπιείου και στοάς Ευμενούς περιοχή.
Συνδυάζεται επίσης και με τη μορφή της εσωτερικής διαιρέσεως της Ακροπόλεως σε τεμένη, και ειδικότερα με την πορεία της κεντρικής οδού, η οποία έχει τη μορφή τόξου, με το ένα άκρο κατευθυνόμενο δυτικά και το άλλο κατευθυνόμενο νοτιοανατολικά. Η βαθμιαία αυξανόμενη δεξιά απόκλιση των αξόνων από τα Προπύλαια στο τέμενος της Αθηνάς, εν συνεχεία στο τέμενος του Διός και από το τελευταίο στο τέμενος του Πανδίωνος είναι αποτέλεσμα της συμμορφώσεως αυτών των τεμενών και των αξόνων των προς την τοξωτή (πολυγωνική) κάτοψη της οδού.
Με τη σειρά της, η τοξωτή αυτή μορφή φαίνεται ότι είναι ένα επιβίωμα της αρχικής εκείνης οδού που, περνώντας από τη ράχη του βράχου, υπηρετούσε την πρόσβαση τόσο από τα δυτικά όσον και από τα νότιο-νοτιοανατολικά. Οι ενδείξεις που εκτέθηκαν πιο πριν δείχνουν ότι με την οικοδόμηση του μυκηναϊκού τείχους τον 13ο αι. π.Χ. η παλαιά νοτιοανατολική πρόσβαση δεν καταργήθηκε αλλά διατηρήθηκε.
Η κακή διατήρηση του μυκηναϊκού τείχους θέτει ένα από τα σοβαρότερα ζητήματα. Σε πολλά σημεία του η καταστροφή είναι τόσο μεγάλη, ώστε να απομένουν μόνον μερικές πέτρες ή απλώς ίχνη στο βράχο. Τούτο όχι μόνον εκεί όπου το τείχος ήταν εκτεθειμένο και όπου άλλες κατασκευές έπρεπε να καταλάβουν τη θέση του (π.χ. στο προαύλιο των Προπυλαίων, στις εδράσεις των νέων τειχών κ.λπ.) αλλά και εκεί όπου ήταν προστατευμένο μέσα στις κλασικής εποχής επιχώσεις. Αλλά θα ήταν ποτέ δυνατόν να φθάσει σε αυτή την κατάσταση εξαιτίας φυσικής ερειπώσεως μόνον;
Ο χρόνος από την κατασκευή του μέχρι την κλασική εποχή, δηλαδή σχεδόν 8 αιώνες, είναι ελάχιστος εάν μετρηθεί με την αντοχή των τειχών τέτοιου είδους, η οποία είναι προφανής στις Μυκήνες ή στην Τύρινθα. Αυτά τα κτίσματα δεν ερειπώνονται τόσο εύκολα. Η καταστροφή των τειχών της Ακροπόλεως είναι ανθρώπινο έργο, όπως και η κατασκευή των. Αλλά τίνος; Όχι, πάντως, των Περσών!
Η κακή διατήρηση του μυκηναϊκού τείχους θέτει ένα από τα σοβαρότερα ζητήματα. Σε πολλά σημεία του η καταστροφή είναι τόσο μεγάλη, ώστε να απομένουν μόνον μερικές πέτρες ή απλώς ίχνη στο βράχο. Τούτο όχι μόνον εκεί όπου το τείχος ήταν εκτεθειμένο και όπου άλλες κατασκευές έπρεπε να καταλάβουν τη θέση του (π.χ. στο προαύλιο των Προπυλαίων, στις εδράσεις των νέων τειχών κ.λπ.) αλλά και εκεί όπου ήταν προστατευμένο μέσα στις κλασικής εποχής επιχώσεις. Αλλά θα ήταν ποτέ δυνατόν να φθάσει σε αυτή την κατάσταση εξαιτίας φυσικής ερειπώσεως μόνον;
Ο χρόνος από την κατασκευή του μέχρι την κλασική εποχή, δηλαδή σχεδόν 8 αιώνες, είναι ελάχιστος εάν μετρηθεί με την αντοχή των τειχών τέτοιου είδους, η οποία είναι προφανής στις Μυκήνες ή στην Τύρινθα. Αυτά τα κτίσματα δεν ερειπώνονται τόσο εύκολα. Η καταστροφή των τειχών της Ακροπόλεως είναι ανθρώπινο έργο, όπως και η κατασκευή των. Αλλά τίνος; Όχι, πάντως, των Περσών!
Η ΝΔ γωνία του στερεοβάτου του Παρθενώνος τέμνει σε ένα σημείο και επικαλύπτει την ερειπωμένη εσωτερική παρειά του μυκηναϊκού τείχους και ο αναλημματικός τοίχος (γνωστός ως S2) των επιχώσεων στα νότια του στερεοβάτου εδράζεται σε προγενεστέρως κατεστραμμένο μέρος του μυκηναϊκού τείχους και, το σπουδαιότερο, δεν είναι κτισμένος με λίθους αυτού του τείχους. Επομένως, το τείχος ήταν ήδη σε αυτή την κατάσταση πριν από την έλευση των Περσών.
Εάν, αντιθέτως, η καταστροφή του ήταν έργο των Περσών, θα έπρεπε ο στερεοβάτης του Παρθενώνος να είναι έργο των μετά τα Περσικά χρόνων, αλλά, κατά τη στρωματογραφική χρονολόγηση, ο στερεοβάτης δεν είναι οψιμότερος του 490 π.Χ.
Στο σημείο αυτό ας αναφερθεί και η σχετική γνώμη του Ο. Walter: αν το μυκηναϊκό τείχος ήταν σε καλή κατάσταση, ο δελφικός χρησμός δεν θα είχε προκαλέσει το γνωστό δίλημμα στους Αθηναίους. Η διπλή ερμηνεία του θα ήταν δυνατή μόνον εάν το τείχος ήταν πολύ κατεστραμμένο, ώστε στον διαθέσιμο χρόνο να μην είναι δυνατή η επισκευή του με λίθους, αλλά μόνον με ξύλα... Και φυσικά οι χρησμοδότες δεν αγνοούσαν μια κατάσταση που ήταν ήδη γνωστή σε όλους.
Απομένει λοιπόν μόνον η δυνατότης να έχουν καταστραφεί τα τείχη από εισβολείς (αν και υποτίθεται ότι οι Δωριείς δεν κατέλαβαν ποτέ την Ακρόπολη) ή προληπτικώς από τους ίδιους τους Αθηναίους μετά από μια αλλαγή του πολιτικού συστήματος (της βασιλείας π.χ. ή της τυραννίας) για την αποτροπή μιας ανεπιθύμητης επανίδρυσής του.
ΑΡΧΑΙΟΣ ΝΕΩΣ
Το επίπεδο των γνώσεων για την τοπογραφία της Ακροπόλεως στα 1871 παρουσιάζεται με τον καλύτερο τρόπο σε έναν από τους πίνακες που συνοδεύουν το σχετικό με τον Παρθενώνα σύγγραμμα του Α. Michaelis. Άξιον προσοχής σε αυτό το σχέδιο είναι ότι ο Michaelis επισημαίνει στα νότια του Ερεχθείου το περίγραμμα του γνωστού σήμερα θεμελίου του αρχαίου νεώ, με τον χαρακτηρισμό «άνδηρον της Αθηνάς», πολύ πριν από την επίσημη αποκάλυψή του ως θεμελίου ναού.
Η αποκάλυψη αυτή έγινε δυνατή μόνον το 1885, όταν άρχισε η Μεγάλη Ανασκαφή. Όπως αναφέρθηκε ήδη, εκείνος που πρώτος επρόσεξε το θεμέλιο (πριν ακόμη ανασκαφεί κανονικά) και κατέληξε στην ορθή ερμηνεία του ήταν ο Dorpfeld. Η σύντομη μελέτη που δημοσίευσε τότε (1885 και 1886) στο περιοδικό του Γερμανικού Αρχαιολογικού Ινστιτούτου απέδειξε ότι στο θεμέλιο αυτό έστεκε κάποτε ο φιλολογικώς μαρτυρημένος αρχαίος νεώς της Αθηνάς και προσέφερε στην επιστήμη μια αδρομερή αλλά καθ' όλα ορθή σχεδιαστική αποκατάσταση της αρχικής μορφής του.
Η μελέτη αυτή διατηρεί ακόμη αμείωτη την αξία της. Τις πρώτες σύντομες ανακοινώσεις για την αρχιτεκτονική του αρχαίου νεώ ακολούθησαν και άλλες (1887 κ.έ.), για τα φιλολογικά θέματα τα σχετικά με την ιστορία και τη λειτουργία των ναών της Αθηνάς.
Κύριες θέσεις του Dorpfeld για την ιστορία του αρχαίου νεώ ήσαν οι εξής: ο ναός απέκτησε την πλήρη μορφή του επί Πεισιστράτου και επί Πεισιστρατιδών (πριν ήταν ένας απλός σηκός με προστάσεις), καταστράφηκε από τους Πέρσες, επισκευάσθηκε το 479 π.Χ., η περίστασίς του κατεδαφίσθηκε επί Κίμωνος, ο σηκός έπαθε βλάβες από πυρκαγιά το 406 π.Χ., αλλά επισκευάσθηκε και διατηρήθηκε έως τους μέσους χρόνους.
Η δημοσίευση της περίφημης επιγραφής IGII2 3-4 («επιγραφή του εκατομπέδου») από τον Η. Lolling το 1890 αναθεωρούσε σε κάποιο βαθμό τις θέσεις του Dorpfeld, ο οποίος σε ένα επόμενο άρθρο του υπεστήριξε ότι ο αναφερόμενος από την επιγραφή ναός πρέπει να ήταν το ανατολικό μέρος του αρχαίου νεώ.
Κύριες θέσεις του Dorpfeld για την ιστορία του αρχαίου νεώ ήσαν οι εξής: ο ναός απέκτησε την πλήρη μορφή του επί Πεισιστράτου και επί Πεισιστρατιδών (πριν ήταν ένας απλός σηκός με προστάσεις), καταστράφηκε από τους Πέρσες, επισκευάσθηκε το 479 π.Χ., η περίστασίς του κατεδαφίσθηκε επί Κίμωνος, ο σηκός έπαθε βλάβες από πυρκαγιά το 406 π.Χ., αλλά επισκευάσθηκε και διατηρήθηκε έως τους μέσους χρόνους.
Η δημοσίευση της περίφημης επιγραφής IGII2 3-4 («επιγραφή του εκατομπέδου») από τον Η. Lolling το 1890 αναθεωρούσε σε κάποιο βαθμό τις θέσεις του Dorpfeld, ο οποίος σε ένα επόμενο άρθρο του υπεστήριξε ότι ο αναφερόμενος από την επιγραφή ναός πρέπει να ήταν το ανατολικό μέρος του αρχαίου νεώ.
Έκτοτε, οι θέσεις αυτές επανεξετάσθηκαν πολλές φορές και αναθεωρήθηκαν σε μεγάλο βαθμό. Ο ναός δεν χρονολογείται πια στην εποχή του Πεισιστράτου αλλά των Πεισιστρατιδών και η μετά τα Περσικά διατήρησή του γίνεται δεκτή μόνον για το δυτικό μέρος του σηκού (Dinsmoor, 1932). Ο ναός ήταν δωρικού ρυθμού με 6x12 κίονες, πώρινος, με μαρμάρινα αετώματα.
Στις ιδιοτυπίες του καταλέγονται τα εξής:
• Αντί βαθμιδωτής κρηπίδος ο ναός διέθετε μόνον έναν απλό στυλοβάτη.
• Η εσωτερική διαίρεση του σηκού του, ο οποίος διέθετε προστάσεις σε αμφότερες τις προσόψεις του, είναι πολλαπλότερη απ’ ό,τι συνηθίζεται στους αρχαίους ναούς. Ένας μεσότοιχος χώριζε το εσωτερικό σε ένα ανατολικό διαμέρισμα, ή κυρίως ναό της Αθηνάς, με είσοδο από την ανατολική πρόσταση και ένα δυτικό διαμέρισμα, με είσοδο από τη δυτική πρόσταση. Το δυτικό διαμέρισμα ήταν με τη σειρά του χωρισμένο σε έναν πλατύ προθάλαμο και δύο δωμάτια πιο πίσω.
Στις ιδιοτυπίες του καταλέγονται τα εξής:
• Αντί βαθμιδωτής κρηπίδος ο ναός διέθετε μόνον έναν απλό στυλοβάτη.
• Η εσωτερική διαίρεση του σηκού του, ο οποίος διέθετε προστάσεις σε αμφότερες τις προσόψεις του, είναι πολλαπλότερη απ’ ό,τι συνηθίζεται στους αρχαίους ναούς. Ένας μεσότοιχος χώριζε το εσωτερικό σε ένα ανατολικό διαμέρισμα, ή κυρίως ναό της Αθηνάς, με είσοδο από την ανατολική πρόσταση και ένα δυτικό διαμέρισμα, με είσοδο από τη δυτική πρόσταση. Το δυτικό διαμέρισμα ήταν με τη σειρά του χωρισμένο σε έναν πλατύ προθάλαμο και δύο δωμάτια πιο πίσω.
Το ανατολικό διαμέρισμα, ο κυρίως ναός, διέθετε εσωτερικές κιονοστοιχίες που το διαιρούσαν σε ένα κεντρικό και δύο πλευρικά κλίτη. Σχετικώς προς το δυτικό διαμέρισμα, υπεστήριξε ο Dorpfeld, ότι αυτό ήταν ο φιλολογικώς και επιγραφικούς μαρτυρημένος Οπισθόδομος, όπου σε έναν ιδιαίτερο χώρο, στα δεξιά, ήσαν τα χρήματα της Αθηνάς και σε έναν άλλο, στα αριστερά, εκείνα των άλλων θεών. Η άποψη αυτή έγινε σχεδόν γενικώς δεκτή.
• Οι προστάσεις του σηκού παρουσίαζαν εξαιρετικά μικρό βάθος χώρου. Ο Dorpfeld είχε δυσκολίες στην ερμηνεία του φαινομένου, αλλά στο τέλος υπέθεσε ότι ήσαν δίστυλες εν παραστάσιν. Αργότερα, υποστηρίχθηκε από τον Schrader ότι οι προστάσεις ήσαν ιωνικές τετράστυλες μετά από μια ανανέωση του σηκού (η οποία προϋποτίθεται μόνον από τη θεωρία της διαδοχής δύο ναών στο ίδιο θεμέλιο. Με αυτό συνεφώνησε και ο Dorpfeld.
• Οι προστάσεις του σηκού παρουσίαζαν εξαιρετικά μικρό βάθος χώρου. Ο Dorpfeld είχε δυσκολίες στην ερμηνεία του φαινομένου, αλλά στο τέλος υπέθεσε ότι ήσαν δίστυλες εν παραστάσιν. Αργότερα, υποστηρίχθηκε από τον Schrader ότι οι προστάσεις ήσαν ιωνικές τετράστυλες μετά από μια ανανέωση του σηκού (η οποία προϋποτίθεται μόνον από τη θεωρία της διαδοχής δύο ναών στο ίδιο θεμέλιο. Με αυτό συνεφώνησε και ο Dorpfeld.
Ο Dinsmoor δέχεται ότι οι προστάσεις ήσαν ιωνικές τετράστυλες και μάλιστα εξαρχής (οπότε κατ' αυτόν το θέμα είναι ανεξάρτητο από τη θεωρία της διαδοχής δύο ναών στο ίδιο θεμέλιο που ο ίδιος, άλλωστε, απορρίπτει). Η εξέταση του ζητήματος σήμερα καταλήγει επίσης στο συμπέρασμα ότι οι προστάσεις ήσαν μάλλον πρόστυλες, αλλά όχι και ότι έπρεπε να είναι ιωνικές.
• Το μήκος του ναού, μόνον 12 κίονες, κρινόμενο με ό,τι ήταν κανονικό τον 6ο αιώνα και ειδικότερα με ό,τι θα ανέμενε κανείς από ναό με τόσο πολλούς εσωτερικούς χώρους, φαίνεται εξαιρετικά μικρό. Αντανάκλαση αυτού του φαινομένου στο εσωτερικό είναι η απαράβλεπτη ατροφία του ανατολικού διαμερίσματος (κυρίως ναού) και το αβαθές των προστάσεων.
• Το μήκος του ναού, μόνον 12 κίονες, κρινόμενο με ό,τι ήταν κανονικό τον 6ο αιώνα και ειδικότερα με ό,τι θα ανέμενε κανείς από ναό με τόσο πολλούς εσωτερικούς χώρους, φαίνεται εξαιρετικά μικρό. Αντανάκλαση αυτού του φαινομένου στο εσωτερικό είναι η απαράβλεπτη ατροφία του ανατολικού διαμερίσματος (κυρίως ναού) και το αβαθές των προστάσεων.
Χωρίς αμφιβολία, οι πολλαπλές τυπολογικές ιδιοτυπίες αυτού του ναού πρέπει να οφείλονται σε ιδιαίτερους λόγους, πολύ παλαιότερους από τον ίδιο. Αλλά, δυστυχώς, το απώτερο παρελθόν του αρχαίου νεώ δεν είναι γνωστό. Πάντως όλες οι ενδείξεις δείχνουν ότι αυτός είναι ο αρχαιότερος ναός της Αθηνάς επάνω στην Ακρόπολη, φυσικά όχι με τη μορφή που τον γνωρίσαμε αλλά με άλλες πολύ παλαιότερες.
• Ανάμεσα στα θεμέλια του ναού βρέθηκαν, κατά την ανασκαφή, δύο βάσεις απλής τεκτονικής μορφής. Οι βάσεις αυτές, που κάποτε έφεραν ξύλινους κίονες διαμέτρου μισού σχεδόν μέτρου, αποδόθηκαν αρχικώς σε ένα υποθετικό μυκηναϊκό μέγαρο. Αργότερα, όμως, απεδείχθη (C. Nylander) ότι ανήκαν σε ναό της γεωμετρικής εποχής, δηλαδή στον προκάτοχο του ναού της αρχαϊκής εποχής.
• Ο ένας και μόνος βωμός του ιερού της Αθηνάς έστεκε κάποτε στα ανατολικά του αρχαίου νεώ. Στα ανατολικά του Παρθενώνος ή του Ερεχθείου άλλοι βωμοί της Αθηνάς δεν υπήρχαν. Εύλογο είναι το συμπέρασμα ότι πριν ακόμη κτισθούν οι πρωταρχικοί ναοί στη θέση του μετέπειτα Παρθενώνος ή του μετέπειτα Ερεχθείου υπήρχε ήδη στη θέση του αρχαίου νεώ ένας ακόμη αρχαιότερος ναός έναντι του ενός και μόνου (και έτι αρχαιότερου) βωμού.
Το επίθετο αρχαίος πρέπει να είχε ήδη δοθεί σε εκείνον τον ναό (μετά την ανέγερση του «πρωταρχικού Παρθενώνος» για λόγους διακρίσεως), κρατήθηκε όμως από τον νέο ναό (του 6ου αιώνα) μαζί με τη θέση.
Ο Αρχαίος Νεώς ήταν, ασφαλώς, ένα λαμπρό αρχιτεκτονικό έργο του απερχομένου 6ου αιώνα με έξοχη γλυπτική κόσμηση. Οι κίονές του ήσαν κατά 1/5 μικρότεροι των κιόνων του Παρθενώνος και, ωστόσο, είχαν πολύ μεγαλύτερα κιονόκρανα: 2.26x2.26 μ. έναντι 2.00x2.00 μ.! Τα κιονόκρανα αυτά, λόγω θέσεως και μεγέθους, πρέπει να προκαλούσαν μεγάλη εντύπωση. Καθώς ήσαν πολύ πλατύτερα από το επιστύλιο, μεγάλο μέρος των εξείχε ακάλυπτο ως εξώστης.
• Ανάμεσα στα θεμέλια του ναού βρέθηκαν, κατά την ανασκαφή, δύο βάσεις απλής τεκτονικής μορφής. Οι βάσεις αυτές, που κάποτε έφεραν ξύλινους κίονες διαμέτρου μισού σχεδόν μέτρου, αποδόθηκαν αρχικώς σε ένα υποθετικό μυκηναϊκό μέγαρο. Αργότερα, όμως, απεδείχθη (C. Nylander) ότι ανήκαν σε ναό της γεωμετρικής εποχής, δηλαδή στον προκάτοχο του ναού της αρχαϊκής εποχής.
• Ο ένας και μόνος βωμός του ιερού της Αθηνάς έστεκε κάποτε στα ανατολικά του αρχαίου νεώ. Στα ανατολικά του Παρθενώνος ή του Ερεχθείου άλλοι βωμοί της Αθηνάς δεν υπήρχαν. Εύλογο είναι το συμπέρασμα ότι πριν ακόμη κτισθούν οι πρωταρχικοί ναοί στη θέση του μετέπειτα Παρθενώνος ή του μετέπειτα Ερεχθείου υπήρχε ήδη στη θέση του αρχαίου νεώ ένας ακόμη αρχαιότερος ναός έναντι του ενός και μόνου (και έτι αρχαιότερου) βωμού.
Το επίθετο αρχαίος πρέπει να είχε ήδη δοθεί σε εκείνον τον ναό (μετά την ανέγερση του «πρωταρχικού Παρθενώνος» για λόγους διακρίσεως), κρατήθηκε όμως από τον νέο ναό (του 6ου αιώνα) μαζί με τη θέση.
Ο Αρχαίος Νεώς ήταν, ασφαλώς, ένα λαμπρό αρχιτεκτονικό έργο του απερχομένου 6ου αιώνα με έξοχη γλυπτική κόσμηση. Οι κίονές του ήσαν κατά 1/5 μικρότεροι των κιόνων του Παρθενώνος και, ωστόσο, είχαν πολύ μεγαλύτερα κιονόκρανα: 2.26x2.26 μ. έναντι 2.00x2.00 μ.! Τα κιονόκρανα αυτά, λόγω θέσεως και μεγέθους, πρέπει να προκαλούσαν μεγάλη εντύπωση. Καθώς ήσαν πολύ πλατύτερα από το επιστύλιο, μεγάλο μέρος των εξείχε ακάλυπτο ως εξώστης.
Ο θριγκός του ναού είχε την ίδια σχεδόν κλίμακα με τον θριγκό του Παρθενώνος, οι μετόπες του, όμως, ήσαν απλές επίπεδες πλάκες (υμήττειο μάρμαρο). Το βαρύ οριζόντιο γείσο ήταν το τελευταίο προς τα άνω πώρινο μέρος του ναού. Στα αετώματα, εκτός από τα γλυπτά και τα καταέτια γείσα, μαρμάρινα ήσαν και ολόκληρα τα τύμπανα. Μαρμάρινη επίσης ήταν και η πλούσια διακοσμημένη επαετίς. Το μάρμαρο των προαναφερθέντων μερών είχε εισαχθεί από την Πάρο.
Τέλος, η κορινθιακού τύπου κεράμωση του ναού ήταν επίσης μαρμάρινη, αλλά από υλικό προερχόμενο από τα καλύτερα λατομεία του Υμηττού. Για την αρχιτεκτονική και την κόσμηση των προστάσεων υπάρχουν πάντα πολλές απορίες. Η υπόθεση του Schrader, ότι ο σηκός διέθετε ιωνική ζωφόρο στην οποία πρέπει να αποδοθεί το ανάγλυφο αρ. 1342 του Μουσείου Ακροπόλεως και κάποια συνανήκοντα μικρότερα τεμάχια, είναι κατά πάσαν πιθανότητα ορθή αλλά προς το παρόν δεν αποδεικνύεται.
Ένα, πάντως, φαίνεται βέβαιον: το ιωνικό κιονόκρανο στο οποίο στηρίχθηκε μια φορά η υπόθεση ιωνικής περιστάσεως (Penrose) και μια φορά η υπόθεση ιωνικών προστάσεων (Schrader) είναι πολύ μεγάλο για τις διαστάσεις αυτού του ναού. Η αναχρησιμοποίηση του υλικού του ναού στην κατασκευή του βορείου τείχους παρουσιάζει ιδιαίτερο ενδιαφέρον. Τα γνωστά τμήματα του θριγκού εμφανίζονται σε δύο γειτονικές θέσεις και έχουν μήκος μερικών μόνον επιστυλίων.
Κατά τον Penrose, που πρώτος τα σχεδίασε και τα μελέτησε με προσοχή, τα τμήματα αυτά είναι μόνον κατάλοιπα του αρχικού συνόλου. Το σύνολο αυτό ήταν συνεχές, χωρίς διακοπές και στη θέση της βόρειας πυλίδος του τείχους σχημάτιζε και αυτό γωνία, όπως το τείχος, συνεχιζόμενο με δύο ακόμη επιστύλια. Κατά τη βόρεια πλευρά θα παρουσίαζε το μήκος που είχε και επάνω στον ναό.
Η εκλογή της θέσεως και του μήκους ως και η χρησιμοποίηση της γωνιακής θλάσεως του τείχους θα πρέπει να είχαν ως αποτέλεσμα μια λίαν επαρκή αναπαραγωγή της γενικής εντυπώσεως που κάποτε παρείχε ο ναός σε όσους ατένιζαν την Ακρόπολη από το μέρος της Αγοράς. Ένα άλλο σπουδαίο σύνολον, το οποίο όμως χρησιμοποιήθηκε κατά τελείως διάφορον τρόπο, είναι τα κιονόκρανα. Τοποθετημένα με την άνω επιφάνεια των αβάκων όρθια και εστραμμένη προς τα έξω, εμφανίζονται ως μακρά σειρά ορθοστατών κατά μήκος του ανατολικότερου μέρους του βορείου τείχους.
Αλλά και το μέρος που μετά τη σχεδιασμένη διάλυση παρέμεινε στη θέση του, δηλαδή ο στυλοβάτης της περιστάσεως, διατήρησε και επαύξησε μια χρήση που είχε και όταν έφερε κίονες: ιδεώδες βάθρο για την ανίδρυση αγαλμάτων και άλλων αφιερωμάτων. Ένα μέρος αυτού του βάθρου διαλύθηκε αργότερα λόγω της κατασκευής του Ερεχθείου. Οι λίθοι που αφαιρέθηκαν από αυτό χρησιμοποιήθηκαν στη βάση του κτιστού μέρους της μεγάλης κλίμακας στα δυτικά του Παρθενώνος.
ΚΕΚΡΟΠΙΟΝ
Το γιγάντειο Ιωνικό κιονόκρανο που κάποτε απετέλεσε αφορμή για την υπόθεση ιωνικών κιόνων στον αρχαίο νεώ σώζεται κομμένο σε δύο μέρη. Το ένα, σε καλύτερη κατάσταση, παραμένει στη θέση όπου χρησιμοποιήθηκε ως υλικό δευτέρας χρήσεως στο βόρειο τείχος. Το άλλο, ανασυρμένο από την ίδια περιοχή, απόκειται στα ανατολικά του Ερεχθείου.
Το σπάνιο αυτό ιωνικό κιονόκρανο, με πλάτος 2.45 μ., είναι το μεγαλύτερο στην χερσαία Ελλάδα. Ακόμη μεγαλύτερα ήσαν μόνον τα κιονόκρανα των γιγάντειων ιωνικών ναών στη Σάμο και την Έφεσο. Λόγω του μεγέθους του, το κιονόκρανο της Ακροπόλεως πρέπει να αποδοθεί σε αυτοδύναμο ιωνικό κίονα παρόμοιας μορφής και σημασίας προς εκείνους που έστεκαν στο ιερό των Δελφών (σφίγγα των Ναξίων), στο ιερό της Αφαίας και αλλού.
Η αναγνώριση της θέσεως αυτού του κίονος στο σημείο όπου ο δυτικός τοίχος του Ερεχθείου παρουσιάζει στο νότιο άκρον του μεγάλες αδρολαξευμένες εγκοπές πρέπει να θεωρείται βεβαία. Οι εγκοπές αυτές έγιναν για να μη θιγεί μια προϋπάρχουσα κατασκευή, της οποίας οι ίδιες (οι εγκοπές του τοίχου) παριστούν το αρνητικό (ή συμπληρωματικό) σχήμα (ανάλογα φαινόμενα έχουν διαπιστωθεί στη νότια πλευρά της βαρείας προστάσεως, στο θεμέλιο της ανατολικής πλευράς και σε άλλα σημεία).
Η μορφή και το είδος αυτής της κατασκευής προδίδεται, λοιπόν, από την ιδιαίτερη μορφή των επάλληλων εγκοπών. Προδίδεται επίσης και από λαξεύσεις στον υποκείμενο βράχο, οι οποίες μαρτυρούν την κάτοψή της. Ήταν ένα τετράγωνο βάθρο διαστάσεων περίπου 2x2 μ., κτισμένο με επαλλήλους λαξευτούς λίθους, των οποίων οι κατευθύνσεις και τα ύψη εύκολα υπολογίζονται με τη βοήθεια μιας αναλυτικής μελέτης των εγκοπών.
Το κατασκεύασμα αυτό είναι σε όλη την περιοχή Κεκροπίου και Πανδροσείου το μόνο που θεμελιώθηκε τόσο βαθιά, ώστε να φθάσει στο βράχο απαιτώντας μάλιστα και την εξομάλυνσή του. Τέτοια θεμέλια, όμως, σε τέτοιο βάθος, μόνον για κτήρια δικαιολογούνται ή υψηλούς πεσσούς και κίονες. Συνεπώς, η συσχέτιση του μεγάλου κίονος και του θεμελίου στο Κεκρόπιον είναι εύλογη.
Από τις διαστάσεις του κιονόκρανου το ύψος του μνημείου εκτιμάται σε 10, περίπου, μέτρα. Από τα τεχνικά χαρακτηριστικά του ευρήματος συνάγεται ότι το βαθύ θεμέλιο του κίονος ήταν πώρινο σε άμεση επαφή προς τον ναό. Κατά την περσική επιδρομή και την καταστροφή του ναού, ο κίων κατέπεσε (ή κατερρίφθη), ασφαλώς προς τα ανατολικά (φυσικά, το Ερεχθείο δεν υπήρχε ακόμη). Τα τεμάχια του κιονόκρανου χρησιμοποιήθηκαν αργότερα στην κατασκευή του τείχους σε μικρή απόσταση προς τα βορειοανατολικά.
Επιφάνειες αφημένες ημίεργες, άτμητοι οικοδομικοί αγκώνες και ημιτελή κυμάτια σε όλο το ύψος του δυτικού τοίχου του Ερεχθείου, ακριβώς επάνω από το θεμέλιο του κίονος κάνουν περίπου βέβαιον ότι στη θέση αυτή κάτι εμπόδιζε την κανονική εκτέλεση των εργασιών που συνήθως γίνονται μετά την τοποθέτηση των λίθων.
Από τις διαστάσεις του κιονόκρανου το ύψος του μνημείου εκτιμάται σε 10, περίπου, μέτρα. Από τα τεχνικά χαρακτηριστικά του ευρήματος συνάγεται ότι το βαθύ θεμέλιο του κίονος ήταν πώρινο σε άμεση επαφή προς τον ναό. Κατά την περσική επιδρομή και την καταστροφή του ναού, ο κίων κατέπεσε (ή κατερρίφθη), ασφαλώς προς τα ανατολικά (φυσικά, το Ερεχθείο δεν υπήρχε ακόμη). Τα τεμάχια του κιονόκρανου χρησιμοποιήθηκαν αργότερα στην κατασκευή του τείχους σε μικρή απόσταση προς τα βορειοανατολικά.
Επιφάνειες αφημένες ημίεργες, άτμητοι οικοδομικοί αγκώνες και ημιτελή κυμάτια σε όλο το ύψος του δυτικού τοίχου του Ερεχθείου, ακριβώς επάνω από το θεμέλιο του κίονος κάνουν περίπου βέβαιον ότι στη θέση αυτή κάτι εμπόδιζε την κανονική εκτέλεση των εργασιών που συνήθως γίνονται μετά την τοποθέτηση των λίθων.
Το «εμπόδιο» αυτό πρέπει να έφθανε τουλάχιστον έως τα επιστύλια. Η συγκέντρωση αυτών των φαινομένων σε μια κατακόρυφη ζώνη εκεί όπου προ των Περσικών πρέπει να έστεκε ο κίων επιτρέπει το συμπέρασμα ότι μετά τα Περσικά στήθηκε πάλι στην ίδια θέση ένα μνημείο –πεσσός, κίων ή στήλη– το οποίο ήταν εκεί όταν άρχισε να κτίζεται πολύ κοντά του το Ερέχθειον.
«ΚΤΗΡΙΟΝ Η» ή «ΠΡΩΤΑΡΧΙΚΟΣ ΠΑΡΘΕΝΩΝ»
«ΚΤΗΡΙΟΝ Η» ή «ΠΡΩΤΑΡΧΙΚΟΣ ΠΑΡΘΕΝΩΝ»
(Ο ναός με τα μεγάλα πώρινα αετώματα.)
Το 1888 η ανασκαφή προχωρούσε ήδη στο νότιο μέρος της Ακροπόλεως αποκαλύπτοντας –εκτός από τα προαναφερθέντα αρχαία τεχνικά έργα (επιχώσεις, αναλημματικοί τοίχοι, θεμέλια εργαστηρίου)– αναρίθμητα θραύσματα πώρινων γλυπτών αλλά και αρχιτεκτονικών μελών. Τα ευρήματα αυτά, έστω και αποσπασματικά, μαζί με μερικά που βρέθηκαν και σε άλλα σημεία της Ακροπόλεως, καθιστούσαν για πρώτη φορά δυνατή τη γνώση μιας τοπικής αρχιτεκτονικής και γλυπτικής, προγενέστερης του αρχαίου νεώ.
Η ταξινόμηση των θραυσμάτων βάσει της αρχιτεκτονικής κλίμακας ή των τεχνοτροπικών γνωρισμάτων των κατέληξε στον καταρτισμό ομάδων που η καθεμία έπρεπε να ανήκει και σε ένα διαφορετικό κτήριο ή καλλιτεχνικό σύνολο. Η αναζήτηση της θέσεως όλων αυτών των κτηρίων οδηγούσε σε δικαιολογημένη αμηχανία. Η πρώτη σκέψη που έρχεται στον νου είναι ότι με τη γενική αναμόρφωση της Ακροπόλεως κατά τον 5ο αιώνα θα πρέπει να έχουν εξαλειφθεί ή να έχουν καταστεί απρόσιτες πλείστες μαρτυρίες της αρχικής μορφής και ειδικότερα της θέσεως των αρχαϊκών κτισμάτων.
Εύλογη ήταν, λοιπόν, η εκλογή συμβατικών ονομασιών για τα κτήρια τα μαρτυρούμενα μόνον από κινητά ευρήματα: «κτήριον Α», «κτήριον Β», «κτήριον C» κ.ο.κ. Ένα από αυτά, το «Η» συγκέντρωσε εξαρχής ιδιαίτερη προσοχή λόγω του μεγάλου μεγέθους του. Το μοναδικό αυτό μέγεθος, άλλωστε, καθιστούσε βέβαιον ποια αρχιτεκτονικά κατάλοιπα και ποια γλυπτικά θα έπρεπε να συνανήκουν: θραύσματα πολύ μεγάλων πώρινων γλυπτών (ο «τρισώματος δαίμων», «Ηρακλής και Τρίτων», μεγάλοι όφεις κ.λπ.).
Θραύσματα κιονόκρανων με λίαν πεπλατυσμένο εχίνο και υπολογιζόμενες διαστάσεις περίπου 1.80x1.80 μ., θραύσματα σπονδύλων αναλόγου μεγέθους και τρία μεγάλα επιστύλια, ενσωματωμένα στην εξωτερική πλευρά του νοτίου τείχους. Τα επιστύλια αυτά, που ήσαν πάντα ορατά, τα είχε αποδώσει παλαιότερα ο Dorpfeld στον αρχαίο νεώ αδιακρίτως, μολονότι έχουν μικρότερο μήκος και μεγαλύτερο ύψος. Τη διαφορά του ύψους είχε προσέξει παλαιότερα μόνον ο Penrose.
Αλλά εκτός αυτών υπάρχει και μια άλλη γενικότερη διαφορά: στο «κτήριο Η» χρησιμοποιήθηκε ο σκληρότερος ακτίτης, στον αρχαίο νεώ ένας μέσης σκληρότητας πωρόλιθος. Η μελέτη αυτού του υλικού από τον Wiegand δημοσιεύθηκε το 1904. Εν τω μεταξύ, όπως αναφέρθηκε ήδη, ο Dorpfeld είχε απορρίψει τη θεωρία του περί μεταπερσικής χρονολογήσεως του Προπαρθενώνος και υπεστήριζε, ακολουθούμενος και από άλλους, την παλαιά κλασική θεωρία του Leake και του Ross. Κατ' αυτόν τον τρόπο, η ύπαρξη ακόμη παλαιότερων ναών στην ίδια θέση θα ηδύνατο και πάλιν να θεωρηθεί, για λόγους ιστορικής συνεχείας, πολύ πιθανή.
Αναζητώντας, ωστόσο, ο Wiegand τη θέση του «κτηρίου Η», δεν έλαβε σοβαρά υπ' όψιν του ως πιθανή την καλυπτόμενη από τον Παρθενώνα έκταση και, ελλείψει άλλων καταλλήλων θέσεων, υπεστήριξε την άποψη ότι ο ναός έπρεπε να έχει υπάρξει, ως αυτοτελές κτήριο, ακριβώς στη θέση του σηκού του αρχαίου νεώ: ότι, δηλαδή, είχε αποτελέσει παλαιότερη φάση του αρχαίου νεώ, η οποία, σε μεγάλο βαθμό, διατηρήθηκε και στην τελική μορφή.
Αλλά εκτός αυτών υπάρχει και μια άλλη γενικότερη διαφορά: στο «κτήριο Η» χρησιμοποιήθηκε ο σκληρότερος ακτίτης, στον αρχαίο νεώ ένας μέσης σκληρότητας πωρόλιθος. Η μελέτη αυτού του υλικού από τον Wiegand δημοσιεύθηκε το 1904. Εν τω μεταξύ, όπως αναφέρθηκε ήδη, ο Dorpfeld είχε απορρίψει τη θεωρία του περί μεταπερσικής χρονολογήσεως του Προπαρθενώνος και υπεστήριζε, ακολουθούμενος και από άλλους, την παλαιά κλασική θεωρία του Leake και του Ross. Κατ' αυτόν τον τρόπο, η ύπαρξη ακόμη παλαιότερων ναών στην ίδια θέση θα ηδύνατο και πάλιν να θεωρηθεί, για λόγους ιστορικής συνεχείας, πολύ πιθανή.
Αναζητώντας, ωστόσο, ο Wiegand τη θέση του «κτηρίου Η», δεν έλαβε σοβαρά υπ' όψιν του ως πιθανή την καλυπτόμενη από τον Παρθενώνα έκταση και, ελλείψει άλλων καταλλήλων θέσεων, υπεστήριξε την άποψη ότι ο ναός έπρεπε να έχει υπάρξει, ως αυτοτελές κτήριο, ακριβώς στη θέση του σηκού του αρχαίου νεώ: ότι, δηλαδή, είχε αποτελέσει παλαιότερη φάση του αρχαίου νεώ, η οποία, σε μεγάλο βαθμό, διατηρήθηκε και στην τελική μορφή.
Η τελική αυτή μορφή επιτεύχθηκε, υποστηρίζει ο Wiegand, με απλή προσθήκη περιστάσεως στον άνευ περιστάσεως παλαιότερο ναό («κτήριον Η») και με κάποια μετατροπή του τελευταίου, κατά την οποία αφαιρέθηκαν ως άχρηστα τα πώρινα αετώματα και αυξήθηκε το ύψος του.
Με αυτή τη θεωρία ερμήνευε ο Wiegand και την υπάρχουσα ποιοτική διαφορά μεταξύ του θεμελίου της περιστάσεως και του θεμελίου του σηκού. Το πρώτο αποτελείται από μεγάλα τεμάχια λίθου του Καρά, το δεύτερο από μικρότερα τεμάχια λίθου της Ακροπόλεως. Ως προς αυτό το θέμα, πάντως, ο Dorpfeld είχε κάποτε σημειώσει ότι η διαφορά υλικού και τρόπου κατασκευής των δύο θεμελίων θα ήταν δυνατόν να οφείλεται ακόμη και μόνον σε τεχνικούς λόγους.
Η αναπαράσταση του «κτηρίου Η» ως διπλού εν παραστάσιν ναού, μήκους περίπου 34 μ., οδήγησε τον Wiegand στην άποψη ότι ο ναός αυτός έπρεπε να είναι το επιγραφικώς μαρτυρημένο «Εκατόμπεδον». Η αναπαράσταση εκείνη ήταν ατυχής κυρίως επειδή τα αετώματα που προέκυπταν δεν ήσαν αρκετά ευρύχωρα για τα μεγαλύτερα από τα πώρινα γλυπτά, δηλαδή για τους λέοντες.
Η θεωρία του Wiegand προσεβλήθη το 1922 από τον Ε. Buschor, ο οποίος υπεστήριξε ότι το αποδιδόμενο στο «κτήριο Η» υλικό δεν προέρχεται όλο από τον προκάτοχο του αρχαίου νεώ αλλά και από έναν άλλο ναό, ο οποίος πρέπει να ήταν ένας παλαιότερος πρόδρομος του Παρθενώνος. Τον άλλο αυτό ναό ονόμασε Urparthenon, δηλαδή «πρωταρχικό Παρθενώνα». Αργότερα (1929-33), ο ίδιος ερευνητής, στηριζόμενος σε υλικά μνημειακών κεραμώσεων, προέτεινε την ύπαρξη ενός ακόμη αρχαιότερου ναού στην ίδια θέση.
Με αυτή τη θεωρία ερμήνευε ο Wiegand και την υπάρχουσα ποιοτική διαφορά μεταξύ του θεμελίου της περιστάσεως και του θεμελίου του σηκού. Το πρώτο αποτελείται από μεγάλα τεμάχια λίθου του Καρά, το δεύτερο από μικρότερα τεμάχια λίθου της Ακροπόλεως. Ως προς αυτό το θέμα, πάντως, ο Dorpfeld είχε κάποτε σημειώσει ότι η διαφορά υλικού και τρόπου κατασκευής των δύο θεμελίων θα ήταν δυνατόν να οφείλεται ακόμη και μόνον σε τεχνικούς λόγους.
Η αναπαράσταση του «κτηρίου Η» ως διπλού εν παραστάσιν ναού, μήκους περίπου 34 μ., οδήγησε τον Wiegand στην άποψη ότι ο ναός αυτός έπρεπε να είναι το επιγραφικώς μαρτυρημένο «Εκατόμπεδον». Η αναπαράσταση εκείνη ήταν ατυχής κυρίως επειδή τα αετώματα που προέκυπταν δεν ήσαν αρκετά ευρύχωρα για τα μεγαλύτερα από τα πώρινα γλυπτά, δηλαδή για τους λέοντες.
Η θεωρία του Wiegand προσεβλήθη το 1922 από τον Ε. Buschor, ο οποίος υπεστήριξε ότι το αποδιδόμενο στο «κτήριο Η» υλικό δεν προέρχεται όλο από τον προκάτοχο του αρχαίου νεώ αλλά και από έναν άλλο ναό, ο οποίος πρέπει να ήταν ένας παλαιότερος πρόδρομος του Παρθενώνος. Τον άλλο αυτό ναό ονόμασε Urparthenon, δηλαδή «πρωταρχικό Παρθενώνα». Αργότερα (1929-33), ο ίδιος ερευνητής, στηριζόμενος σε υλικά μνημειακών κεραμώσεων, προέτεινε την ύπαρξη ενός ακόμη αρχαιότερου ναού στην ίδια θέση.
Η θεωρία αυτή δεν έγινε γενικώς δεκτή. Τη θεωρία αποδόσεως του υλικού του «κτηρίου Η» σε δύο κτήρια (Η1 και Η2) υπεστήριξε αργότερα και ο Schrader, ο οποίος δέχθηκε το Η1 ως δίστυλο εν παραστάσιν δωρικό ναό, στη θέση του αρχαίου νεώ και το κτήριο Η2 ως τρίστυλο εν παραστάσιν δωρικό ναό, στη θέση του Παρθενώνος.
Στην πρόταση αυτή οδηγήθηκε από τις μεταξύ των κιονόκρανων, τριγλύφων και άλλων μερών του «κτηρίου Η» διαφορές και από την ποσότητα και το μέγεθος των πώρινων εναετίων γλυπτών, κυρίως των λεόντων. Ιδιαίτερη θέση στη μελέτη του Η. Schrader είχαν ορισμένα γλυπτά αποδιδόμενα σε διαφορετικά ακρωτήρια (τα περισσότερα από αυτά όμως δεν ανήκουν, πραγματικά, στα ακρωτήρια).
Τα πράγματα έλαβαν νέα τροπή το 1935, όταν ο W.H. Schuchhardt παρουσίασε μια μελέτη που αναφερόταν στην επαετίδα του «κτηρίου Η». Συνέλεξε και μελέτησε εκατοντάδες θραυσμάτων. Συναρμόζοντας θραύσματα μεταξύ των ή εξετάζοντας συνδυασμούς με την παραδοχή ελαχίστων δυνατών κενών μεταξύ θραυσμάτων και χρησιμοποιώντας όλα τα δυνατά κριτήρια (τη φορά των κοσμημάτων, τη φορά της κινήσεως, τα μέτρα κ.λπ..
Τα πράγματα έλαβαν νέα τροπή το 1935, όταν ο W.H. Schuchhardt παρουσίασε μια μελέτη που αναφερόταν στην επαετίδα του «κτηρίου Η». Συνέλεξε και μελέτησε εκατοντάδες θραυσμάτων. Συναρμόζοντας θραύσματα μεταξύ των ή εξετάζοντας συνδυασμούς με την παραδοχή ελαχίστων δυνατών κενών μεταξύ θραυσμάτων και χρησιμοποιώντας όλα τα δυνατά κριτήρια (τη φορά των κοσμημάτων, τη φορά της κινήσεως, τα μέτρα κ.λπ..
Ακόμα και τα στρώματα του μαρμάρου, τα οποία δηλώνουν τη δυνατότητα να ανήκουν δύο θραύσματα στο αυτό μάρμαρο), κατέληξε σε ένα ελάχιστο μήκος για τη μία πλευρά του αετώματος, το οποίο ήταν μεγαλύτερο κι από εκείνο που θα ταίριαζε σε τρίστυλο εν παραστάσιν ναό (όπως είχε προτείνει ο Schrader).
Έπρεπε λοιπόν να αναπαρασταθεί το αέτωμα ακόμη μεγαλύτερο. Ωστόσο, χωρίς να δέχεται και τη θεωρία Buschor, αρκέσθηκε μόνον σε μία τροποποίηση της θεωρίας Wiengang, υποστηρίζοντας ότι το «κτήριο Η» –ως προκάτοχος της θέσεως του αρχαίου νεώ– έπρεπε και αυτό να ήταν εξαρχής ένας περίπτερος ναός. Τα γνωστά και πολυσυζητημένα θεμέλια του σηκού και της περιστάσεως του αρχαίου νεώ έπρεπε να ανήκουν, συμπεριλαμβανομένης και της κρηπίδος, στο «κτήριο Η».
Όμως τα σωζόμενα, εντοιχισμένα στο νότιο τείχος της Ακροπόλεως επιστύλια (του «κτηρίου Η») είναι κατά το μήκος κάπως μικρότερα από τα εντοιχισμένα στο βόρειο τείχος επιστύλια του αρχαίου νεώ, γι’ αυτό και ο Schchhardt, προκειμένου να φέρει σε συμφωνία τις γενικές διαστάσεις των δύο ναών, υπέθεσε ότι άλλα, μη σωζόμενα επιστύλια του «κτηρίου Η» θα πρέπει να υπήρξαν πολύ μακρύτερα.
Όμως τα σωζόμενα, εντοιχισμένα στο νότιο τείχος της Ακροπόλεως επιστύλια (του «κτηρίου Η») είναι κατά το μήκος κάπως μικρότερα από τα εντοιχισμένα στο βόρειο τείχος επιστύλια του αρχαίου νεώ, γι’ αυτό και ο Schchhardt, προκειμένου να φέρει σε συμφωνία τις γενικές διαστάσεις των δύο ναών, υπέθεσε ότι άλλα, μη σωζόμενα επιστύλια του «κτηρίου Η» θα πρέπει να υπήρξαν πολύ μακρύτερα.
Τη γνώμη αυτή απέρριψε ο Dinsmoor: η προταθείσα εξίσωση του πλάτους των δύο ναών «υπερβαίνει την... ελαστικότητα του λίθου» (εννοώντας ειρωνικά την ελαστικότητα των επιστημονικών υπολογισμών). Ο ίδιος διαπίστωσε επίσης ίχνη οδοντωτής ξοΐδος στις έδρες των λίθων του θεμελίου σηκού και περιστάσεως του νεωτέρου ναού, ενός εργαλείου του οποίου δεν βρέθηκαν ίχνη στις επαετίδες του «κτηρίου Η», επειδή κατά την πρώιμη εκείνη εποχή το οδοντωτό εργαλείο δεν πρέπει να είχε ακόμη επινοηθεί.
Κατ' αυτόν τον τρόπο κατέληξε και ο Dinsmoor στις απόψεις των Buschor και Schrader περί «πρωταρχικού Παρθενώνος» (Urparthenon). Περιέργως, όμως, κατέληξε σε μια τολμηρά... άτολμη αναπαράσταση του ναού, επιθυμώντας να επιτύχει μήκος 100 ποδών ακριβώς. Το αποτέλεσμα είναι τρίστυλες εν παραστάσιν προσόψεις και αετώματα μικρότερης χωρητικότητας από εκείνα που είχε προτείνει ο Schuchhardt. Η θεωρία Dinsmoor δεν έγινε γενικώς αποδεκτή.
Από όσες μελέτες ακολούθησαν, σπουδαιότερες για την τεκμηρίωση του υλικού και τη συμβολή τους σε πολλά θεωρητικά ζητήματα είναι εκείνες του Ι. Beyer (1975-1976). Ο Beyer, συνεχίζοντας τις έρευνες του Schuchhardt, κατέληξε στην αναγνώριση των εναετίων του ανατολικού αετώματος, βάσει κριτηρίων τεχνοτροπίας, υλικού και μεγέθους.
Η μετάθεση του «κτηρίου Η» ως Urparthenon στη θέση του Παρθενώνος –από τους Buschor, Schrader, Dinsmoor– εξηγούσε καλύτερα το γεγονός ότι σχεδόν όλα τα αρχιτεκτονικά μέλη και σχεδόν όλα τα γλυπτά του ναού βρέθηκαν μόνο νοτίως του Παρθενώνος και όχι προς το Ερεχθείο. Ένα άλλο φαινόμενο που έτσι εξηγείται πολύ καλύτερα είναι η βίαιη κακοποίηση των γλυπτών των αετωμάτων αμφοτέρων των ναών, μέχρι μετατροπής των σε μικρά τεμάχια.
Εάν ο αναζητούμενος ναός ήταν στην ίδια θέση με τον αρχαίο νεώ, η κατεδάφισή του θα έπρεπε να χρονολογηθεί στα 530 π.Χ. περίπου (καθόσον ο νεώτερος ναός ήταν έτοιμος το 520 π.Χ. ή όχι πολύ αργότερα), σε μια εποχή για την οποία δεν θα ήταν νοητή τέτοια κακομεταχείριση των παλαιών γλυπτών. Εάν, όμως, ο αναζητούμενος ναός ήταν στη θέση όπου αργότερα κτίσθηκε ο Προπαρθενών, η κατεδάφισή του θα ήταν δυνατόν να έχει συντελεσθεί κατά τμήματα με την πρόοδο της κατασκευής του έργου μεταξύ των ετών 490-480 π.Χ. ή ίσως το 500-480 π.Χ. (πιθανότερο πάντως είναι ότι το έργο παύθηκε το 485 π.Χ.).
Μια τέτοια χρονολόγηση κάνει πολύ πιθανότερη την παραμονή των γλυπτών έως το 480 π.Χ. σε θέσεις όπου θα ήταν δυνατόν να καταστραφούν από τους Πέρσες, κατά τον ίδιο άγριο τρόπο που καταστράφηκαν και τα γλυπτά του αρχαίου νεώ ή κάποια προκλητικά για τους Πέρσες μνημεία, μεταξύ των οποίων και το ανάθημα του μαραθωνομάχου ήρωα Καλλιμάχου.
Τέλος, η ως άνω τοπογραφική διάκριση και η συνακόλουθη δυνατότης χρονολογήσεως της καθαιρέσεως του ναού έως τη 2η δεκαετία του 5ου αι. π.Χ. καθιστά ευλογοφανέστερο τον χρόνο που μεσολάβησε έως την αναχρησιμοποίηση των μετοπών του στην επένδυση του μυκηναϊκού τείχους παρά τα Προπύλαια και των επιστυλίων, σπονδύλων και άλλων λίθων στην κατασκευή του κάτω μέρους του νοτίου τείχους της Ακροπόλεως.
Τέλος, η ως άνω τοπογραφική διάκριση και η συνακόλουθη δυνατότης χρονολογήσεως της καθαιρέσεως του ναού έως τη 2η δεκαετία του 5ου αι. π.Χ. καθιστά ευλογοφανέστερο τον χρόνο που μεσολάβησε έως την αναχρησιμοποίηση των μετοπών του στην επένδυση του μυκηναϊκού τείχους παρά τα Προπύλαια και των επιστυλίων, σπονδύλων και άλλων λίθων στην κατασκευή του κάτω μέρους του νοτίου τείχους της Ακροπόλεως.
Η επένδυση του Μυκηναϊκού τείχους προηγείται της κατασκευής του πρώτου μαρμάρινου προπύλου (490-485 π.Χ.). Η κατασκευή του νοτίου τείχους χρονολογείται στα 466 π.Χ. (Κιμώνιον τείχος). Δεν αποκλείεται, ωστόσο, να είναι το κάτω μέρος του ακόμη αρχαιότερο.
Οι πρόσφατες διερευνητικές διατρήσεις του θεμελίου του Παρθενώνος, χάριν των αναγκαίων στατικών μελετών, απέδειξαν ότι το θεμέλιο είναι γενικώς συμπαγές, δεν επέτρεψαν όμως ακριβή συμπεράσματα για τη μορφή πλοκής των λίθων και για τις πιθανολογούμενες δομικές φάσεις στο εσωτερικό του στερεοβάτου. Άλλες, όμως, έρευνες μας οδήγησαν σε θετικές ενδείξεις ως εξής:
• Στη δυτική πλευρά του στερεοβάτου του Προπαρθενώνος οι λίθοι της 19ης στρώσεως έχουν λοξή την κατεύθυνση προς το –δυστυχώς αθέατο– εσωτερικό της κατασκευής. Η απόκλισή των από τον άξονα του ναού είναι –3,5 βαθμοί προς τα αριστερά.
Την ίδια ακριβώς απόκλιση παρουσιάζει και το σχολιασμένο ήδη από τον Buschor λοξό λάξευμα στον βράχο, στο μέσον περίπου της δυτικής πλευράς. Είναι, επομένως, πολύ πιθανόν ότι ακριβώς πίσω από τους εξωτερικούς λίθους της δυτικής πλευράς του στερεοβάτου λανθάνει μια άλλη κατασκευή της οποίας ο προσανατολισμός αποκλίνει των αξόνων του Παρθενώνος κατά –3,5 βαθμούς προς τα αριστερά.
• Στη νότια πλευρά του στερεοβάτου και επί μήκους σχεδόν 20 μ. από τη ΝΔ γωνία, οι λίθοι της 18ης στρώσεως έχουν λοξή την κατεύθυνση προς το εσωτερικό της κατασκευής. Η απόκλισή των από τον άξονα του ναού είναι επίσης –3,5 βαθμοί προς τα αριστερά. Η εξήγηση είναι όπως και στην προηγούμενη περίπτωση. Δύναται, όμως, να υποτεθεί ότι οι εν λόγω λοξά τοποθετημένοι λίθοι παρακολουθούν την υποθετική εσωτερική κατασκευή όχι σε όλο το μήκος της, αλλά μόνον στο τμήμα της το οποίο πλησιάζει περισσότερο τη νότια πλευρά του στερεοβάτου.
• Το υπό το βόρειο πτερόν του Παρθενώνος μικρό ιερόν, αποτελούμενο από ναΐσκο και βωμό, είχε ιδιαίτερο προσανατολισμό. Ο άξων του κατά χώραν υποβάθρου του αγάλματος παρουσιάζει απόκλιση –3,5 βαθμών προς τα αριστερά του άξονος του κλασικού ναού.
• Η συμφωνία των αποκλίσεων τόσων διαφορετικών στοιχείων –ναΐσκος στα βόρεια, λάξευμα και ιδιότυπη δομή μέρους του στερεοβάτου στα δυτικά και πάλιν ιδιότυπη δομή μέρους του στερεοβάτου στα νότια– κάνει πιθανόν ότι τα αποκλίνοντα στοιχεία παραλληλίζονται προς τις πλευρές ενός εσωτερικού κτίσματος, του οποίου ο προσανατολισμός διαφέρει κατά 3,5 βαθμούς από εκείνον του στερεοβάτου. Το αθέατο αυτό κτίσμα, αν πράγματι υφίσταται, θα πρέπει να είναι θεμέλιο ή μέρος των θεμελίων ενός μεγάλου ναού, προγενεστέρου του Παρθενώνος Ι.
• Η δυτική πλευρά αυτού του κτίσματος δεν φαίνεται να είναι σε τυχαία θέση: ευρίσκεται περίπου σε μία γραμμή με τη δυτική πρόσοψη του αρχαίου νεώ.
• Η θέση του ναΐσκου δεν είναι τυχαία. Η πρόσοψή του είναι στην ίδια γραμμή με την ανατολική πρόσοψη του αρχαίου νεώ. Στην ίδια γραμμή επίσης ήταν και η πρόσοψη ενός οικήματος στα βόρεια του αρχαίου νεώ, το οποίο υπήρξε ο πρόδρομος του ανατολικού μέρους του Ερεχθείου (Εικόνα 23).
Τα ανωτέρω δεν είναι αποδείξεις. Είναι απλώς ενδείξεις, απαράβλεπτες όμως, οι οποίες δηλώνουν την πιθανότερη θέση και έκταση του ναού με τα μεγάλα πώρινα αετώματα. Το μήκος της κρηπίδος του θα πρέπει να έφθανε περίπου τα 46 μ. Η σχεδιαστική αναπαράσταση της αρχιτεκτονικής αυτού του ναού είναι δυνατή χάρις στο πλήθος και την ποικιλία των υλικών καταλοίπων του. Ό,τι, πάντως, ακολουθεί είναι μόνον μια αναγκαία πρώτη προσέγγιση, βασισμένη σε εκείνα ειδικώς τα θραύσματα που περισσότερο ευνοούν έναν απλό υπολογισμό χωρίς μεγάλα περιθώρια σφάλματος.
Η σε φυσική κλίμακα σχεδίαση και σύγκριση της τομής του εχίνου των καλύτερα σωζόμενων θραυσμάτων κιονόκρανων απέδειξε την ύπαρξη ατομικών διαφορών ως προς την ακριβή μορφή της καμπύλης του εχίνου, της μορφής και του μεγέθους των ιμάντων και ακόμη ως προς την ακριβή διάμετρο του υποτραχηλίου.
Οι πρόσφατες διερευνητικές διατρήσεις του θεμελίου του Παρθενώνος, χάριν των αναγκαίων στατικών μελετών, απέδειξαν ότι το θεμέλιο είναι γενικώς συμπαγές, δεν επέτρεψαν όμως ακριβή συμπεράσματα για τη μορφή πλοκής των λίθων και για τις πιθανολογούμενες δομικές φάσεις στο εσωτερικό του στερεοβάτου. Άλλες, όμως, έρευνες μας οδήγησαν σε θετικές ενδείξεις ως εξής:
• Στη δυτική πλευρά του στερεοβάτου του Προπαρθενώνος οι λίθοι της 19ης στρώσεως έχουν λοξή την κατεύθυνση προς το –δυστυχώς αθέατο– εσωτερικό της κατασκευής. Η απόκλισή των από τον άξονα του ναού είναι –3,5 βαθμοί προς τα αριστερά.
Την ίδια ακριβώς απόκλιση παρουσιάζει και το σχολιασμένο ήδη από τον Buschor λοξό λάξευμα στον βράχο, στο μέσον περίπου της δυτικής πλευράς. Είναι, επομένως, πολύ πιθανόν ότι ακριβώς πίσω από τους εξωτερικούς λίθους της δυτικής πλευράς του στερεοβάτου λανθάνει μια άλλη κατασκευή της οποίας ο προσανατολισμός αποκλίνει των αξόνων του Παρθενώνος κατά –3,5 βαθμούς προς τα αριστερά.
• Στη νότια πλευρά του στερεοβάτου και επί μήκους σχεδόν 20 μ. από τη ΝΔ γωνία, οι λίθοι της 18ης στρώσεως έχουν λοξή την κατεύθυνση προς το εσωτερικό της κατασκευής. Η απόκλισή των από τον άξονα του ναού είναι επίσης –3,5 βαθμοί προς τα αριστερά. Η εξήγηση είναι όπως και στην προηγούμενη περίπτωση. Δύναται, όμως, να υποτεθεί ότι οι εν λόγω λοξά τοποθετημένοι λίθοι παρακολουθούν την υποθετική εσωτερική κατασκευή όχι σε όλο το μήκος της, αλλά μόνον στο τμήμα της το οποίο πλησιάζει περισσότερο τη νότια πλευρά του στερεοβάτου.
• Το υπό το βόρειο πτερόν του Παρθενώνος μικρό ιερόν, αποτελούμενο από ναΐσκο και βωμό, είχε ιδιαίτερο προσανατολισμό. Ο άξων του κατά χώραν υποβάθρου του αγάλματος παρουσιάζει απόκλιση –3,5 βαθμών προς τα αριστερά του άξονος του κλασικού ναού.
• Η συμφωνία των αποκλίσεων τόσων διαφορετικών στοιχείων –ναΐσκος στα βόρεια, λάξευμα και ιδιότυπη δομή μέρους του στερεοβάτου στα δυτικά και πάλιν ιδιότυπη δομή μέρους του στερεοβάτου στα νότια– κάνει πιθανόν ότι τα αποκλίνοντα στοιχεία παραλληλίζονται προς τις πλευρές ενός εσωτερικού κτίσματος, του οποίου ο προσανατολισμός διαφέρει κατά 3,5 βαθμούς από εκείνον του στερεοβάτου. Το αθέατο αυτό κτίσμα, αν πράγματι υφίσταται, θα πρέπει να είναι θεμέλιο ή μέρος των θεμελίων ενός μεγάλου ναού, προγενεστέρου του Παρθενώνος Ι.
• Η δυτική πλευρά αυτού του κτίσματος δεν φαίνεται να είναι σε τυχαία θέση: ευρίσκεται περίπου σε μία γραμμή με τη δυτική πρόσοψη του αρχαίου νεώ.
• Η θέση του ναΐσκου δεν είναι τυχαία. Η πρόσοψή του είναι στην ίδια γραμμή με την ανατολική πρόσοψη του αρχαίου νεώ. Στην ίδια γραμμή επίσης ήταν και η πρόσοψη ενός οικήματος στα βόρεια του αρχαίου νεώ, το οποίο υπήρξε ο πρόδρομος του ανατολικού μέρους του Ερεχθείου (Εικόνα 23).
Τα ανωτέρω δεν είναι αποδείξεις. Είναι απλώς ενδείξεις, απαράβλεπτες όμως, οι οποίες δηλώνουν την πιθανότερη θέση και έκταση του ναού με τα μεγάλα πώρινα αετώματα. Το μήκος της κρηπίδος του θα πρέπει να έφθανε περίπου τα 46 μ. Η σχεδιαστική αναπαράσταση της αρχιτεκτονικής αυτού του ναού είναι δυνατή χάρις στο πλήθος και την ποικιλία των υλικών καταλοίπων του. Ό,τι, πάντως, ακολουθεί είναι μόνον μια αναγκαία πρώτη προσέγγιση, βασισμένη σε εκείνα ειδικώς τα θραύσματα που περισσότερο ευνοούν έναν απλό υπολογισμό χωρίς μεγάλα περιθώρια σφάλματος.
Η σε φυσική κλίμακα σχεδίαση και σύγκριση της τομής του εχίνου των καλύτερα σωζόμενων θραυσμάτων κιονόκρανων απέδειξε την ύπαρξη ατομικών διαφορών ως προς την ακριβή μορφή της καμπύλης του εχίνου, της μορφής και του μεγέθους των ιμάντων και ακόμη ως προς την ακριβή διάμετρο του υποτραχηλίου.
Βάσει αυτών των ατομικών διαφορών, διαπιστώνεται ότι τα σωζόμενα θραύσματα προέρχονται από 15 τουλάχιστον διαφορετικά κιονόκρανα. Είναι, επομένως, εκτός πάσης αμφιβολίας ότι ο ναός ήταν περίπτερος, φυσικά εξάστυλος. Από το πιθανόν μήκος της κρηπίδος του και από το μήκος των μικρότερων μετοπών του υπολογίζεται ότι ο πιθανός αριθμός των κιόνων στις μακρές πλευρές του ήταν 13.
Σπουδαιότατο μέσον για τη μελέτη του «κτηρίου Η» είναι το μεσαίο από τα αναχρησιμοποιημένα στο νότιο τείχος επιστύλια. Το αριστερό πέρας του είναι απλό επίπεδο, κατάλληλο για τη συνάρμοση με ένα όμοιο επιστύλιο, το δεξιό, όμως είναι ασυνεχές, κατάλληλο για συνάρμοση με τρεις επάλληλους λίθους ύψους 49, 49 και 59 εκ. Επειδή δεν είναι ακόμη βέβαιον ότι το βαθμιδωτό πέρας είναι αυθεντικό στοιχείο του λίθου, δεν είναι επίσης βέβαιον ότι το επιστύλιο προέρχεται από μια πρόσταση.
Σπουδαιότατο μέσον για τη μελέτη του «κτηρίου Η» είναι το μεσαίο από τα αναχρησιμοποιημένα στο νότιο τείχος επιστύλια. Το αριστερό πέρας του είναι απλό επίπεδο, κατάλληλο για τη συνάρμοση με ένα όμοιο επιστύλιο, το δεξιό, όμως είναι ασυνεχές, κατάλληλο για συνάρμοση με τρεις επάλληλους λίθους ύψους 49, 49 και 59 εκ. Επειδή δεν είναι ακόμη βέβαιον ότι το βαθμιδωτό πέρας είναι αυθεντικό στοιχείο του λίθου, δεν είναι επίσης βέβαιον ότι το επιστύλιο προέρχεται από μια πρόσταση.
Αλλά και εάν ήταν δυνατόν να αποδειχθεί η αυθεντικότης του βαθμιδωτού πέρατος, θα παρέμενε ακόμη προς διερεύνηση το είδος των προστάσεων: πρόστυλες ή εν παραστάσιν; Μια σχετική έρευνα έχει ήδη γίνει από τον Ι. Beyer, αλλά παραμένει αδημοσίευτη.
Τα τρίγλυφα ήσαν δύο ειδών:
• Τρίγλυφα μονοκόμματα, πλακοειδή, τα οποία κατά κάποιον τρόπο αποτελούσαν είδος επενδύσεως στο άνω μέρος του θριγκού, το οποίο ήταν κτισμένο με κανονικές λιθοπλίνθους.
• Τρίγλυφα λαξευμένα αμέσως επάνω στην επιφάνεια του τοίχου και επομένως αποτελούμενα καθένα από επάλληλους λίθους.
Οι μετόπες του ναού ήσαν διαφόρων ειδών:
• Απλές ακόσμητες πλάκες από υμήττειο μάρμαρο.
• Απλές πλάκες από υμήττειο μάρμαρο με επιχρωματισμένα εγχάρακτα δωρικά φύλλα, ακριβώς κάτω από την κεφαλή. Τέτοιες πλάκες σώζονται αναχρησιμοποιημένες στην επένδυση του μυκηναϊκού τείχους έξω από τα Προπύλαια. Σε δύο από αυτές τις πλάκες είναι χαραγμένη και η περίφημη επιγραφή IGII24.
• Μετόπες με μαρμάρινα γλυπτά, προσκολλημένα σε απλή επίπεδη επιφάνεια, αποτελούμενη από επάλληλες πώρινες λιθοπλίνθους. Τα γλυπτά αυτά δεν είναι άλλα από τις γνωστές ανάγλυφες παραστάσεις θηρίων (λεοπαρδάλεις και λέοντες σε υμήττειο μάρμαρο) στην Αίθουσα Ι του Μουσείου της Ακροπόλεως.
• Πλήρεις γλυπτές μετόπες από υμήττειο μάρμαρο. Οι γνωστοί τέσσερις μικροί ίπποι σε μετωπική όψη (Μουσ. Ακρ. 577) δεν είναι παρά μέρος μιας τέτοιας μετόπης. Το θέμα της, τέθριππο σε μετωπική όψη, όπως και στην πολύ γνωστή παρόμοια μετόπη του ναού C του Σελινούντος, ανήκει προφανώς στον θεματικό κύκλο της Γιγαντομαχίας.
Η Γιγαντομαχία, λοιπόν, ήταν ένα από τα θέματα και στον «πρωταρχικό Παρθενώνα» («κτήριον Η»), όπως ήταν αργότερα και στον ίδιο τον κλασικό Παρθενώνα.
Τα αετώματα του ναού συγκέντρωναν μεγάλες συνθέσεις λεόντων στο μέσον, αφηγηματικών παραστάσεων με μυθικά ή θρησκευτικά θέματα εκατέρωθεν και όφεων στα άκρα. Τη γνώση αυτών των αετωμάτων την οφείλουμε κυρίως στις έξοχες εργασίες του Schuchhardt και του Ι. Beyer.
Η σίμη του ναού ήταν λαξευμένη σε υμήττειο μάρμαρο και έτρεχε σε όλες τις πλευρές. Στην ανατολική και τη δυτική πλευρά, ως επαετίς, διέθετε η σίμη μεγαλύτερο ύψος και πρόσθετη εγχάρακτη κόσμηση: ταινία με το διακοσμητικό γεωμετρικό θέμα του «ψαροκόκαλου» στην ανατολική πλευρά και ταινία με ζατρικοειδές θέμα στη δυτική. Στα άκρα του αετώματος οι ταινίες αυτές κατέληγαν σε μεγάλες όρθιες έλικες.
Τα τρίγλυφα ήσαν δύο ειδών:
• Τρίγλυφα μονοκόμματα, πλακοειδή, τα οποία κατά κάποιον τρόπο αποτελούσαν είδος επενδύσεως στο άνω μέρος του θριγκού, το οποίο ήταν κτισμένο με κανονικές λιθοπλίνθους.
• Τρίγλυφα λαξευμένα αμέσως επάνω στην επιφάνεια του τοίχου και επομένως αποτελούμενα καθένα από επάλληλους λίθους.
Οι μετόπες του ναού ήσαν διαφόρων ειδών:
• Απλές ακόσμητες πλάκες από υμήττειο μάρμαρο.
• Απλές πλάκες από υμήττειο μάρμαρο με επιχρωματισμένα εγχάρακτα δωρικά φύλλα, ακριβώς κάτω από την κεφαλή. Τέτοιες πλάκες σώζονται αναχρησιμοποιημένες στην επένδυση του μυκηναϊκού τείχους έξω από τα Προπύλαια. Σε δύο από αυτές τις πλάκες είναι χαραγμένη και η περίφημη επιγραφή IGII24.
• Μετόπες με μαρμάρινα γλυπτά, προσκολλημένα σε απλή επίπεδη επιφάνεια, αποτελούμενη από επάλληλες πώρινες λιθοπλίνθους. Τα γλυπτά αυτά δεν είναι άλλα από τις γνωστές ανάγλυφες παραστάσεις θηρίων (λεοπαρδάλεις και λέοντες σε υμήττειο μάρμαρο) στην Αίθουσα Ι του Μουσείου της Ακροπόλεως.
• Πλήρεις γλυπτές μετόπες από υμήττειο μάρμαρο. Οι γνωστοί τέσσερις μικροί ίπποι σε μετωπική όψη (Μουσ. Ακρ. 577) δεν είναι παρά μέρος μιας τέτοιας μετόπης. Το θέμα της, τέθριππο σε μετωπική όψη, όπως και στην πολύ γνωστή παρόμοια μετόπη του ναού C του Σελινούντος, ανήκει προφανώς στον θεματικό κύκλο της Γιγαντομαχίας.
Η Γιγαντομαχία, λοιπόν, ήταν ένα από τα θέματα και στον «πρωταρχικό Παρθενώνα» («κτήριον Η»), όπως ήταν αργότερα και στον ίδιο τον κλασικό Παρθενώνα.
Τα αετώματα του ναού συγκέντρωναν μεγάλες συνθέσεις λεόντων στο μέσον, αφηγηματικών παραστάσεων με μυθικά ή θρησκευτικά θέματα εκατέρωθεν και όφεων στα άκρα. Τη γνώση αυτών των αετωμάτων την οφείλουμε κυρίως στις έξοχες εργασίες του Schuchhardt και του Ι. Beyer.
Η σίμη του ναού ήταν λαξευμένη σε υμήττειο μάρμαρο και έτρεχε σε όλες τις πλευρές. Στην ανατολική και τη δυτική πλευρά, ως επαετίς, διέθετε η σίμη μεγαλύτερο ύψος και πρόσθετη εγχάρακτη κόσμηση: ταινία με το διακοσμητικό γεωμετρικό θέμα του «ψαροκόκαλου» στην ανατολική πλευρά και ταινία με ζατρικοειδές θέμα στη δυτική. Στα άκρα του αετώματος οι ταινίες αυτές κατέληγαν σε μεγάλες όρθιες έλικες.
Όρθιες έλικες στα άκρα ενός στοιχείου επιστέψεως είναι ένα όχι σπάνιο θέμα. Απαντά σε πλείστα μνημεία διαφόρων τόπων και εποχών. Πλησιέστερα ανάλογα προς τις έλικες αυτού του ναού είναι εκείνες του αρχαϊκού ναού της αρχαίας Ίστριας. Οι έλικες αυτές είναι είδος ακρωτηρίων με καθαρά διακοσμητική αξία, χωρίς συμβολική σημασία και επομένως δεν υποκαθιστούν τα κανονικά εικονιστικά ακρωτήρια.
Για το πρόβλημα της αναπαραστάσεως των ακρωτηρίων που κάποτε κοσμούσαν τα αετώματα του ναού έχουν προταθεί διάφορες λύσεις: οι πιο γνωστές έκαναν χρήση των ανάγλυφων λεοπαρδάλεων, λεόντων (που όμως ανήκουν μάλλον σε μετόπες) ως και θραυσμάτων από μια Γοργώ, ίχνος της οποίας (δάκτυλα ποδιού) σώζεται σε ένα θραύσμα της επαετίδος (Schrader). Η παρούσα έρευνα έδειξε ότι περί τα μέσα του 6ου αιώνα τα ως άνω πρωταρχικά ακρωτήρια αντικαταστάθηκαν.
Για τα νέα ακρωτήρια υπάρχουν ευτυχώς πολύ ασφαλείς αποδείξεις: τα βάθρα των. Από αυτά σώζονται διάφορα θραύσματα, προερχόμενα από το δεξιό ακρωτήριο του δυτικού αετώματος, από το αριστερό του ανατολικού αετώματος και από τα κεντρικά ακρωτήρια αμφοτέρων των αετωμάτων. Τα βάθρα ήσαν και αυτά λαξευμένα σε υμήττειο μάρμαρο, όπως και η ίδια η σίμη. Η μικρότερη ηλικία αυτών των βάθρων αναγνωρίζεται και από τα ίχνη των οδοντωτών εργαλείων που χρησιμοποιήθηκαν για τη λάξευση.
Μεταξύ των γεωμετρικών στοιχείων και λεπτομερειών, των βάθρων αφενός και της σιμής αφετέρου, η συμφωνία των μέτρων και των σχημάτων είναι απόλυτη. Το καλύτερα σωζόμενο από τα βάθρα έχει στο κάτω μέρος μια εξαιρετικά πολύπλοκη μορφή, η οποία δεν είναι άλλο από το αρνητικό σχήμα της αντίστοιχης γωνίας της σιμής και της κεραμώσεως του ναού. Η εφαρμογή του βάθρου στη θέση του είναι ίσως το καλύτερο παράδειγμα πολύπλοκης συμπλοκής γεωμετρικών λαξευτών μορφών. Εκεί όπου στην πλευρά εκροής η σιμή διαθέτει σωληνωτό στόμιο, το βάθρο διαθέτει στην κάτω επιφάνειά του μια αντίστοιχη εκκοίλανση ημικυκλικής διατομής για την ελεύθερη ροή των υδάτων.
Στο άνω μέρος του βάθρου υπάρχει λαξευτή ορθογώνια υποδοχή για την πλίνθο ενός γλυπτού. Από τη μορφή και το μέγεθος της υποδοχής οδηγείται κανείς στη διαπίστωση ότι το γλυπτό αυτό δεν δύναται να είναι άλλο από την αρχαϊκή μαρμάρινη Σφίγγα, η οποία βρέθηκε το 1883 στα ανατολικά του Παρθενώνος.
Για το πρόβλημα της αναπαραστάσεως των ακρωτηρίων που κάποτε κοσμούσαν τα αετώματα του ναού έχουν προταθεί διάφορες λύσεις: οι πιο γνωστές έκαναν χρήση των ανάγλυφων λεοπαρδάλεων, λεόντων (που όμως ανήκουν μάλλον σε μετόπες) ως και θραυσμάτων από μια Γοργώ, ίχνος της οποίας (δάκτυλα ποδιού) σώζεται σε ένα θραύσμα της επαετίδος (Schrader). Η παρούσα έρευνα έδειξε ότι περί τα μέσα του 6ου αιώνα τα ως άνω πρωταρχικά ακρωτήρια αντικαταστάθηκαν.
Για τα νέα ακρωτήρια υπάρχουν ευτυχώς πολύ ασφαλείς αποδείξεις: τα βάθρα των. Από αυτά σώζονται διάφορα θραύσματα, προερχόμενα από το δεξιό ακρωτήριο του δυτικού αετώματος, από το αριστερό του ανατολικού αετώματος και από τα κεντρικά ακρωτήρια αμφοτέρων των αετωμάτων. Τα βάθρα ήσαν και αυτά λαξευμένα σε υμήττειο μάρμαρο, όπως και η ίδια η σίμη. Η μικρότερη ηλικία αυτών των βάθρων αναγνωρίζεται και από τα ίχνη των οδοντωτών εργαλείων που χρησιμοποιήθηκαν για τη λάξευση.
Μεταξύ των γεωμετρικών στοιχείων και λεπτομερειών, των βάθρων αφενός και της σιμής αφετέρου, η συμφωνία των μέτρων και των σχημάτων είναι απόλυτη. Το καλύτερα σωζόμενο από τα βάθρα έχει στο κάτω μέρος μια εξαιρετικά πολύπλοκη μορφή, η οποία δεν είναι άλλο από το αρνητικό σχήμα της αντίστοιχης γωνίας της σιμής και της κεραμώσεως του ναού. Η εφαρμογή του βάθρου στη θέση του είναι ίσως το καλύτερο παράδειγμα πολύπλοκης συμπλοκής γεωμετρικών λαξευτών μορφών. Εκεί όπου στην πλευρά εκροής η σιμή διαθέτει σωληνωτό στόμιο, το βάθρο διαθέτει στην κάτω επιφάνειά του μια αντίστοιχη εκκοίλανση ημικυκλικής διατομής για την ελεύθερη ροή των υδάτων.
Στο άνω μέρος του βάθρου υπάρχει λαξευτή ορθογώνια υποδοχή για την πλίνθο ενός γλυπτού. Από τη μορφή και το μέγεθος της υποδοχής οδηγείται κανείς στη διαπίστωση ότι το γλυπτό αυτό δεν δύναται να είναι άλλο από την αρχαϊκή μαρμάρινη Σφίγγα, η οποία βρέθηκε το 1883 στα ανατολικά του Παρθενώνος.
Μερικές απαράβλεπτες ιδιομορφίες αυτού του βάθρου, οι οποίες παρατηρούνται και στο άλλο γωνιαίο βάθρο, οδηγούν στο συμπέρασμα ότι σε κάποια απροσδιόριστη χρονική στιγμή τα νέα ακρωτήρια αντικαταστάθηκαν και αυτά, ενώ τα (γωνιαία) βάθρα ασφαλίσθηκαν έναντι ολισθήσεως με σιδηρές ράβδους.
Από τα συναρμοσμένα θραύσματα του βάθρου της κορυφής του δυτικού, μάλλον, αετώματος είναι δυνατή η ακριβής αναπαράσταση της μορφής του. Ήταν ένας ορθογώνιος λίθος πλάτους 83 εκ., ο οποίος έφθανε σε βάθος 1.20 μ. από την όψη της σιμής. Το μεγάλο λάξευμα στο άνω μέρος του μαρτυρεί την αντικατάσταση του νέου ακρωτηρίου από ένα ακόμη νεώτερο (μεγάλο ανθέμιο;).
Από το παρόμοιο βάθρο της κορυφής του ανατολικού, μάλλον, αετώματος σώζονται δύο θραύσματα τα οποία αποδεικνύουν ότι και αυτό το νέο βάθρο είχε δύο φάσεις. Κατά την πρώτη ήταν ένα απλό ορθογώνιο, όπως αυτό που ήδη περιγράψαμε. Κατά την επόμενη φάση προστέθηκαν εκατέρωθεν και συνδέθηκαν με συνδέσμους μορφής διπλού Τ δύο τετράγωνοι λίθοι. Το πιθανότερο είναι ότι οι λίθοι αυτοί εξυπηρέτησαν την τοποθέτηση δύο κορών εκατέρωθεν του νέου ακρωτηρίου.
ΙΕΡΟΝ ΣΤΗ ΒΟΡΕΙΑ ΠΛΕΥΡΑ ΤΟΥ ΠΑΡΘΕΝΩΝΟΣ
Κάτω από το βόρειο πτερόν του Παρθενώνος, και σε επιφάνεια που αντιστοιχεί στο διάστημα μεταξύ 5ου και 8ου κίονος, υπήρχε από παλαιότερη εποχή ένα μικρό ιερό αποτελούμενο από έναν βωμό στο ανατολικό μέρος και μικρό ναΐσκο ή μάλλον οίκημα (ναΐσκος χωρίς κίονες) στο δυτικό. Ο ναΐσκος πρέπει να στέγαζε ένα άγαλμα, του οποίου το υπόβαθρο σώζεται ακόμη στη θέση του. Το ιερό αυτό ήταν μέχρι το 447 π.Χ. ελεύθερο, έξω από τη βόρεια πλευρά του Προπαρθενώνος.
Από τα συναρμοσμένα θραύσματα του βάθρου της κορυφής του δυτικού, μάλλον, αετώματος είναι δυνατή η ακριβής αναπαράσταση της μορφής του. Ήταν ένας ορθογώνιος λίθος πλάτους 83 εκ., ο οποίος έφθανε σε βάθος 1.20 μ. από την όψη της σιμής. Το μεγάλο λάξευμα στο άνω μέρος του μαρτυρεί την αντικατάσταση του νέου ακρωτηρίου από ένα ακόμη νεώτερο (μεγάλο ανθέμιο;).
Από το παρόμοιο βάθρο της κορυφής του ανατολικού, μάλλον, αετώματος σώζονται δύο θραύσματα τα οποία αποδεικνύουν ότι και αυτό το νέο βάθρο είχε δύο φάσεις. Κατά την πρώτη ήταν ένα απλό ορθογώνιο, όπως αυτό που ήδη περιγράψαμε. Κατά την επόμενη φάση προστέθηκαν εκατέρωθεν και συνδέθηκαν με συνδέσμους μορφής διπλού Τ δύο τετράγωνοι λίθοι. Το πιθανότερο είναι ότι οι λίθοι αυτοί εξυπηρέτησαν την τοποθέτηση δύο κορών εκατέρωθεν του νέου ακρωτηρίου.
ΙΕΡΟΝ ΣΤΗ ΒΟΡΕΙΑ ΠΛΕΥΡΑ ΤΟΥ ΠΑΡΘΕΝΩΝΟΣ
Κάτω από το βόρειο πτερόν του Παρθενώνος, και σε επιφάνεια που αντιστοιχεί στο διάστημα μεταξύ 5ου και 8ου κίονος, υπήρχε από παλαιότερη εποχή ένα μικρό ιερό αποτελούμενο από έναν βωμό στο ανατολικό μέρος και μικρό ναΐσκο ή μάλλον οίκημα (ναΐσκος χωρίς κίονες) στο δυτικό. Ο ναΐσκος πρέπει να στέγαζε ένα άγαλμα, του οποίου το υπόβαθρο σώζεται ακόμη στη θέση του. Το ιερό αυτό ήταν μέχρι το 447 π.Χ. ελεύθερο, έξω από τη βόρεια πλευρά του Προπαρθενώνος.
Τα σπουδαιότερα, όμως, συστατικά του –ο βωμός και ο ναΐσκος– βρέθηκαν αργότερα κάτω από μεγάλες νέες κατασκευές εξαιτίας της ισχυρής προς βορράν αυξήσεως του βάθρου του Παρθενώνος. Ωστόσο, το μικρό ιερό δεν ήταν επιτρεπτό να καταργηθεί, όπως και στο Ερεχθείο, οι οικοδόμοι φρόντισαν για την κατάλληλη διατήρηση ενός μέρους του κάτω από το πτερόν και την ανακατασκευή του ναΐσκου και του βωμού στις ίδιες θέσεις, αλλά υψηλότερα, στο επίπεδο του δαπέδου του πτερού.
Η αναβίβαση του αγάλματος στη νέα στάθμη πραγματοποιήθηκε με την προσθήκη δύο σειρών λίθων μεταξύ της βάσεως και του υποβάθρου του, πριν από την τοποθέτηση του δαπέδου του κλασικού ναού και την ανακατασκευή του ναΐσκου.
Ο αρχικός προσανατολισμός του μικρού ιερού, μετρήσιμος με ειδικό τρόπο στο κατά χώραν υπόβαθρο του αγάλματος, παρουσιάζει αριστερόστροφη απόκλιση 3,5 βαθμών έναντι του άξονος του κλασικού ναού. Από τη μορφή του ιερού και τη θέση του στη βόρεια πλευρά του Παρθενώνος συνάγεται ότι τούτο θα πρέπει να είναι το αναφερόμενο από τον Παυσανία ιερόν της Αθηνάς Εργάνης.
ΣΥΓΚΕΦΑΛΑΙΩΣΗ
Οι φάσεις του ιερού της Αθηνάς συνοψίζονται ως εξής:
Α. Άγνωστη αρχική μορφή του κεντρικού τεμένους στη βόρεια πλευρά της κεντρικής οδού, με βωμό στο ανατολικό μέρος και μικρό ναό στα δυτικά. Το τέμενος εκτείνεται και στην άλλη πλευρά της οδού.
Β. (8ος-7ος αι. π.Χ.) Ανανέωση του ναού. Ο ναός είναι μάλλον χωρίς περίσταση, πλίνθινος με ξύλινους κίονες και, προς το τέλος της περιόδου, με πλούσια κεράμωση. Στεγάζει το ξύλινο άγαλμα της Αθηνάς. Ένας ακόμη ναός ανιδρύεται στο νότιο μέρος του τεμένους, στη θέση του σημερινού Παρθενώνος. Στο εξής, οι δύο ναοί θα συνυπάρχουν υπηρετώντας τις δύο κύριες υποστάσεις της Αθηνάς. Οι υποστάσεις αυτές τεκμηριώνονται και από τη σχετική εικονογραφία: η ειρηνική Αθηνά Πολιάς ή πολιούχος παρίσταται ένθρονη, η πολεμική Αθηνά Παρθένος παρίσταται όρθια και πάνοπλη.
Γ. (566 π.Χ.) Αναδιοργάνωση της τελετής των Παναθηναίων και ταχεία ανοικοδόμηση του νοτίου ναού («κτήριον Η» ή «πρωταρχικός Παρθενών»): εξάστυλος περίπτερος με πώρινη αρχιτεκτονική και πώρινα αετώματα. Μερικές μετόπες του και η περίμετρος της κεραμώσεως είναι από υμήττειο μάρμαρο. Βορείως του ναού διαμορφώνεται ένα μικρό Ιερό (της Εργάνης Αθηνάς;) με βωμό και ναΐσκο ή, μάλλον, μικρό οίκημα (ναΐσκος χωρίς κίονες), παρόμοιο προς εκείνο της Αθηνάς Νίκης.
Δ. (Επί Πεισιστρατιδών) Ανοικοδόμηση του αρχαίου νεώ: εξάστυλος περίπτερος πώρινος με μαρμάρινα αετώματα. Βορείως του ναού υφίστανται μερικά μικρά τεμένη και ιερά: Ερέχθειον, Πανδρόσειον, Κεκρόπιον κ.λπ. Στα τεμένη αυτά υπάρχουν ήδη μερικά μικρά δωρικά κτίσματα, ναΐσκοι ή (ή και) οικήματα.
Ο αρχικός προσανατολισμός του μικρού ιερού, μετρήσιμος με ειδικό τρόπο στο κατά χώραν υπόβαθρο του αγάλματος, παρουσιάζει αριστερόστροφη απόκλιση 3,5 βαθμών έναντι του άξονος του κλασικού ναού. Από τη μορφή του ιερού και τη θέση του στη βόρεια πλευρά του Παρθενώνος συνάγεται ότι τούτο θα πρέπει να είναι το αναφερόμενο από τον Παυσανία ιερόν της Αθηνάς Εργάνης.
ΣΥΓΚΕΦΑΛΑΙΩΣΗ
Οι φάσεις του ιερού της Αθηνάς συνοψίζονται ως εξής:
Α. Άγνωστη αρχική μορφή του κεντρικού τεμένους στη βόρεια πλευρά της κεντρικής οδού, με βωμό στο ανατολικό μέρος και μικρό ναό στα δυτικά. Το τέμενος εκτείνεται και στην άλλη πλευρά της οδού.
Β. (8ος-7ος αι. π.Χ.) Ανανέωση του ναού. Ο ναός είναι μάλλον χωρίς περίσταση, πλίνθινος με ξύλινους κίονες και, προς το τέλος της περιόδου, με πλούσια κεράμωση. Στεγάζει το ξύλινο άγαλμα της Αθηνάς. Ένας ακόμη ναός ανιδρύεται στο νότιο μέρος του τεμένους, στη θέση του σημερινού Παρθενώνος. Στο εξής, οι δύο ναοί θα συνυπάρχουν υπηρετώντας τις δύο κύριες υποστάσεις της Αθηνάς. Οι υποστάσεις αυτές τεκμηριώνονται και από τη σχετική εικονογραφία: η ειρηνική Αθηνά Πολιάς ή πολιούχος παρίσταται ένθρονη, η πολεμική Αθηνά Παρθένος παρίσταται όρθια και πάνοπλη.
Γ. (566 π.Χ.) Αναδιοργάνωση της τελετής των Παναθηναίων και ταχεία ανοικοδόμηση του νοτίου ναού («κτήριον Η» ή «πρωταρχικός Παρθενών»): εξάστυλος περίπτερος με πώρινη αρχιτεκτονική και πώρινα αετώματα. Μερικές μετόπες του και η περίμετρος της κεραμώσεως είναι από υμήττειο μάρμαρο. Βορείως του ναού διαμορφώνεται ένα μικρό Ιερό (της Εργάνης Αθηνάς;) με βωμό και ναΐσκο ή, μάλλον, μικρό οίκημα (ναΐσκος χωρίς κίονες), παρόμοιο προς εκείνο της Αθηνάς Νίκης.
Δ. (Επί Πεισιστρατιδών) Ανοικοδόμηση του αρχαίου νεώ: εξάστυλος περίπτερος πώρινος με μαρμάρινα αετώματα. Βορείως του ναού υφίστανται μερικά μικρά τεμένη και ιερά: Ερέχθειον, Πανδρόσειον, Κεκρόπιον κ.λπ. Στα τεμένη αυτά υπάρχουν ήδη μερικά μικρά δωρικά κτίσματα, ναΐσκοι ή (ή και) οικήματα.
Ε. (Τέλη 6ου αρχές 5ου αι. π.Χ., πρόγραμμα της νεοσύστατης δημοκρατίας εις αντικατάσταση του σχετικού προγράμματος για το Ολυμπιείον) Εργασίες για την ανέγερση ενός νέου, πολύ μεγαλύτερου ναού (Παρθενών Ι) στη θέση του πρωταρχικού Παρθενώνος. Απαιτείται πολύς χώρος προς νότο, επάνω από την κατωφέρεια του βράχου και επομένως είναι αναγκαία η κατασκευή ογκώδους υποδομής (στερεοβάτης).
Το υφιστάμενο κτήριο καθαιρείται, ίσως όχι όλο (η προσωρινή διατήρηση μέρους του ήταν ακόμη δυνατή). Μερικές μετόπες του χρησιμοποιούνται ως πλάκες επενδύσεως του μυκηναϊκού τείχους κατά την αναμόρφωση της δυτικής εισόδου της Ακροπόλεως. Η διατήρηση του ναΐσκου είναι δυνατή υπό όρους, κι ίσως τότε αρχίζει η κατασκευή της βάσεως του νοτίου τείχους. Το όλο πρόγραμμα διακόπτεται από τον επερχόμενο περσικό κίνδυνο.
ΣΤ. (490-495 π.Χ., μετά τη νίκη στον Μαραθώνα) Το σχέδιο αναθεωρείται (Παρθενών II, ή μαρμάρινος Προπαρθενών), αντί πώρου χρησιμοποιείται μάρμαρο, οι διαστάσεις, όμως, περιορίζονται κάπως, πράγμα που διευκολύνει και την περαιτέρω διατήρηση του προς βορράν ιερού. Στο ίδιο πρόγραμμα περιλαμβάνεται και η κατασκευή ενός μαρμάρινου προπύλου στη δυτική είσοδο της Ακροπόλεως.
ΣΤ. (490-495 π.Χ., μετά τη νίκη στον Μαραθώνα) Το σχέδιο αναθεωρείται (Παρθενών II, ή μαρμάρινος Προπαρθενών), αντί πώρου χρησιμοποιείται μάρμαρο, οι διαστάσεις, όμως, περιορίζονται κάπως, πράγμα που διευκολύνει και την περαιτέρω διατήρηση του προς βορράν ιερού. Στο ίδιο πρόγραμμα περιλαμβάνεται και η κατασκευή ενός μαρμάρινου προπύλου στη δυτική είσοδο της Ακροπόλεως.
Το 485 π.Χ., όταν οι εργασίες διακόπτονται χάριν των αμυντικών προγραμμάτων, οι κίονες του ναού έχουν στηθεί έως τον 2ο ή 3ο σπόνδυλο και ο κυματιοφόρος τοιχοβάτης είναι στη θέση του, ενώ ισοδύναμη ή ακόμη μεγαλύτερη ποσότητα μαρμάρων απομένει αχρησιμοποίητη γύρω από το έργο και μέσα στα λατομεία. Από το πρόπυλον έχουν κατασκευασθεί μόνον οι κρηπίδες και οι ορθοστάτες των τοίχων.
Καθ' όλη τη διάρκεια των ως άνω η νότια πλευρά της Ακροπόλεως υφίστατο με την παλαιά, μυκηναϊκής εποχής μορφή της, κύριο χαρακτηριστικό της οποίας ήταν η προς νότο κρημνώδης κατωφέρεια του βράχου με το μυκηναϊκό τείχος, εν τω μεταξύ ημικατεστραμμένο, σε στάθμη πολύ χαμηλότερη (μέχρι 20 μ.!) από την κεντρική ράχη του βράχου.
Καθ' όλη τη διάρκεια των ως άνω η νότια πλευρά της Ακροπόλεως υφίστατο με την παλαιά, μυκηναϊκής εποχής μορφή της, κύριο χαρακτηριστικό της οποίας ήταν η προς νότο κρημνώδης κατωφέρεια του βράχου με το μυκηναϊκό τείχος, εν τω μεταξύ ημικατεστραμμένο, σε στάθμη πολύ χαμηλότερη (μέχρι 20 μ.!) από την κεντρική ράχη του βράχου.
Ζ. (480 π.Χ.) Καταστροφή των ιερών της Ακροπόλεως και ειδικότερα του αρχαίου νεώ. Ο ημιτελής Προπαρθενών καταστρέφεται (και μαζί του τα πιθανώς ακόμη διατηρούμενα μικρά μέρη του πρωταρχικού Παρθενώνος). Το ημιτελές μαρμάρινο πρόπυλο της Ακροπόλεως καταστρέφεται επίσης.
Η. (Μετά τα Περσικά) Πρόχειρη επισκευή μέρους του αρχαίου νεώ. Νέα κατασκευή ή επισκευή προϋπάρχοντος οικήματος στα βόρεια του ναού (στη θέση του ανατολικού διαμερίσματος του Ερεχθείου). Στο οίκημα αυτό στεγάζεται το αρχαίον άγαλμα. Κατασκευή μέρους του βορείου τείχους. Ανέγερση του νοτίου και ανατολικού τείχους (466 π.Χ.).
Δεν είναι βέβαιον αν η βάση αυτού του τείχους, με το αναχρησιμοποιημένο υλικό του «κτηρίου Η», είναι και αυτή κιμώνια ή παλαιότερη, δηλαδή του τέλους του 6ου ή των αρχών του 5ου αιώνα και επομένως σύγχρονη με την έναρξη της διαλύσεως του «κτηρίου Η» και τη μεταχείριση των μετοπών του στην επένδυση του μυκηναϊκού τείχους παρά την είσοδο της Ακροπόλεως (τούτο παραμένει ακόμη προς διερεύνηση. Το κατεστραμμένο ημιτελές πρόπυλον της Ακροπόλεως ήταν ένα από τα πρώτα κτήρια που επισκευάσθηκαν. Η νέα κατασκευή, αν και πολύ οικονομικότερη της αρχικής, έμεινε επίσης ημιτελής.
Θ. (Επί Περικλέους) Γενική αναθεώρηση του ολικού σχεδίου της Ακροπόλεως και παράλληλα προγράμματα για την εκ βάθρων ανανέωση ή και την κατάργηση ορισμένων κτηρίων, συμπεριλαμβανομένων και των ήδη επισκευασμένων. Από τον αρχαίο νεώ διατηρείται μόνον το δυτικό μέρος του σηκού του, ο Οπισθόδομος. Η οικοδόμηση του Ερεχθείου και των Προπυλαίων αρχίζει μετά την περάτωση των οικοδομικών εργασιών στον Παρθενώνα. Στα θεμέλια του Ερεχθείου χρησιμοποιούνται και μάρμαρα του ημιτελούς προπύλου και λίθοι του στυλοβάτου του αρχαίου νεώ χρησιμοποιούνται στη δυτική πλευρά του ανδήρου του Παρθενώνος.
Θ. (Επί Περικλέους) Γενική αναθεώρηση του ολικού σχεδίου της Ακροπόλεως και παράλληλα προγράμματα για την εκ βάθρων ανανέωση ή και την κατάργηση ορισμένων κτηρίων, συμπεριλαμβανομένων και των ήδη επισκευασμένων. Από τον αρχαίο νεώ διατηρείται μόνον το δυτικό μέρος του σηκού του, ο Οπισθόδομος. Η οικοδόμηση του Ερεχθείου και των Προπυλαίων αρχίζει μετά την περάτωση των οικοδομικών εργασιών στον Παρθενώνα. Στα θεμέλια του Ερεχθείου χρησιμοποιούνται και μάρμαρα του ημιτελούς προπύλου και λίθοι του στυλοβάτου του αρχαίου νεώ χρησιμοποιούνται στη δυτική πλευρά του ανδήρου του Παρθενώνος.
Ο ίδιος ο Παρθενών (Παρθενών III) έχει σχεδιασθεί πολύ πλατύτερος από τον προηγούμενο, ενώ δεν είναι πια δυνατή η αύξηση των θεμελίων του προς νότον. Η προς βορράν αύξησή του συνδυάζεται, λοιπόν, με κατάλληλη διατήρηση του μικρού ιερού εντός του βορείου πτερού. Η λύση αυτή υπαγορεύει και την ακριβή θέση των τοίχων και κιόνων του ναού, με αποτέλεσμα να μένει στη νότια πλευρά ένα μέρος του στερεοβάτου (μια ζώνη πλάτους περίπου 1.60 μ.) αχρησιμοποίητο.
Οι εδαφικές διαμορφώσεις στα νότια και ανατολικά του Παρθενώνος ως και οι σχετικές εργασίες περατώσεως του άνω μέρους του τείχους ποτέ δεν ολοκληρώθηκαν. Αυτός, πάντως, δεν είναι ο λόγος της... απουσίας ενός βωμού στα ανατολικά του Παρθενώνος.
Η απουσία βωμού στα ανατολικά του Παρθενώνος και η ανυπαρξία, ή μη διατήρηση, μαρτυριών ονομάτων ιερειών του Παρθενώνος είναι οι αφορμές μιας θεωρίας σύμφωνα με την οποία ο Παρθενών δεν πρέπει να διέθετε αληθινό θρησκευτικό περιεχόμενο, αλλά μόνον πολιτικό. Η θεωρία αυτή, κάπως ελκυστική λόγω του φαινομενικά «μοντέρνου» πνεύματός της (στην πραγματικότητα είναι μια θεωρία του Α. Michaelis!), είναι εν τέλει αβάσιμη.
Ο αριθμός των βωμών, όχι μόνον στα αθηναϊκά αλλά σε όλα σχεδόν τα ελληνικά ιερά, ήταν ανεξάρτητος από τον αριθμό των ναών. Στη Δήλο πολλοί ναοί του Απόλλωνος ήσαν αντιταγμένοι σε έναν μόνον βωμό του θεού και στη Σάμο ο μεγάλος βωμός εξυπηρετούσε ακόμη περισσότερους ναούς. Για μία και την αυτή θεότητα ένας και μόνος βωμός αρκούσε, ασχέτως εάν η ύπαρξη περισσοτέρων αγαλμάτων ή άλλων λόγων είχε ως αποτέλεσμα την ύπαρξη περισσοτέρων ναών. Από την άλλη πλευρά, κάποιες μάλλον εξειδικευμένες υποστάσεις μιας και της αυτής θεότητας –Αθηνά Νίκη, Υγεία, Εργάνη– διέθεταν ιδιαίτερους βωμούς εφόσον διέθεταν ιδιαίτερα, αφιστάμενα τεμένη.
Υπέρ του θρησκευτικού περιεχομένου του Παρθενώνος ομιλεί η μακρά αλληλουχία διαδοχικών ναών στην ίδια θέση. Ομιλεί ακόμη η ιδιοτυπία της κατόψεώς του. Το μεγάλο δυτικό διαμέρισμα δεν έγινε για τον επιφανειακό λόγο της στεγάσεως του ταμείου της Δηλιακής Συμμαχίας: ο Προπαρθενών διέθετε ένα ακριβώς όμοιο δυτικό διαμέρισμα πολύ πριν από την ύπαρξη της Συμμαχίας. Αλλά τέτοια διαμερίσματα με είσοδο από τα δυτικά υπήρχαν και στους άλλους ναούς της Αθηνάς επί της Ακροπόλεως:
Ερέχθειον, αρχαίος νεώς, αλλά ουδέποτε σε άλλους ναούς εκτός Ακροπόλεως (στον ναό του Απόλλωνος στην Κόρινθο η αδυναμία αναπαραστάσεως κεντρικής θύρας στο μεσότοιχο του ναού δεν αποδεικνύει ότι το δυτικό διαμέρισμα είχε είσοδο από τα δυτικά ! Έκκεντρες ή πλευρικές θύρες, δεν είναι σπάνιες στους ελληνικούς ναούς, ιδίως σε εκείνους του Απόλλωνος: Βάσσαι, Κλάρος, Δίδυμα, Σελινούς).
Εύλογο είναι, λοιπόν, το συμπέρασμα ότι το δυτικό διαμέρισμα των ναών της Ακροπόλεως, συμπεριλαμβανομένου και του Παρθενώνος, ήταν ένα πολύ σπουδαίο μέρος των, απαιτούμενο από τις ιδιαίτερες παραδόσεις του ιερού και κυρίως από τη διατήρηση λατρειών παλαιοτέρων της λατρείας των θεών του Ολύμπου.
Αλλά τότε τι απομένει από το περίφημο πολιτικό περιεχόμενο του Παρθενώνος;
Απομένουν περίπου όλα όσα έχουν λεχθεί γι’ αυτό (δημιουργία θέσεων εργασίας, προβολή πολιτικών και πολιτιστικών αξιών, επίδειξη δυνάμεως κ.ά.)! Με τα προηγούμενα δεν επιχειρήθηκε η άρνηση του πολιτικού περιεχομένου, αλλά μόνον ο αντίλoγος στον ισχυρισμό περί απουσίας θρησκευτικού περιεχομένου. Η συνύπαρξη θρησκευτικού και πολιτικού περιεχομένου δεν είναι ένα ζήτημα ειδικώς του Παρθενώνος.
Τι άλλο είναι το περιεχόμενο έργων όπως ο ναός της Αρτέμιδος στην Έφεσο, η Αγία Σοφία ή ο Άγιος Πέτρος, για να αναφερθούν πρώτα τα γνωστότερα, ή ο δωρικός ναός της Εγέστης, ο καθεδρικός ναός της Siena ή ο καθεδρικός ναός της Speyr, για να αναφερθούν και κάποια άλλα;
Τι άλλο είναι από έναν πολύπλευρο συνδυασμό θρησκευτικού και πολιτικού περιεχομένου, ο οποίος εξυπηρετείται από λίαν υψηλά καλλιτεχνικά μέσα; Ο κατάλογος είναι, φυσικά, τεράστιος, στην πραγματικότητα περιλαμβάνει κάθε αξιόλογο θρησκευτικό έργο στον κόσμο. Η περίπτωση του Παρθενώνος διακρίνεται απλώς περισσότερο (ή πολύ περισσότερο) λόγω της εξαιρετικής θέσεώς του στην ιστορία του πολιτισμού.
Η επισκόπηση των τοπογραφικών ζητημάτων του κεντρικού ιερού της Ακροπόλεως ας κλείσει με μια σημείωση για τις τωρινές δυνατότητες εμπλουτισμού των παλαιοτέρων γνώσεων. Η γενική εντύπωση ότι η αρχαιολογική ανασκαφή της Ακροπόλεως υπήρξε εξαντλητική δεν ανταποκρίνεται ακριβώς στην πραγματικότητα.
Η επισκόπηση των τοπογραφικών ζητημάτων του κεντρικού ιερού της Ακροπόλεως ας κλείσει με μια σημείωση για τις τωρινές δυνατότητες εμπλουτισμού των παλαιοτέρων γνώσεων. Η γενική εντύπωση ότι η αρχαιολογική ανασκαφή της Ακροπόλεως υπήρξε εξαντλητική δεν ανταποκρίνεται ακριβώς στην πραγματικότητα.
Μεγάλα τμήματα του εδάφους της Ακροπόλεως παραμένουν ακόμη άσκαφα. Τα τμήματα αυτά εκτείνονται κυρίως κατά μήκος του νοτίου και ανατολικού τείχους και είναι αυτά ακριβώς, επάνω στα οποία εδράζεται το ανώτερο και προς τα μέσα πολύ πλατύτερο μέρος αυτών των τειχών έμειναν άσκαφα επειδή κάθε φορά οι ανασκαφικοί τομείς είχαν πολύ μεγάλα μήκη και επομένως η εκτέλεση έργων αντιστηρίξεως του επισφαλούς μέρους του τείχους δεν ήταν εύκολη.
Τώρα, όμως, πίσω από το τείχος υπάρχει και πάλι επίχωση. Επομένως μια ανασκαφή μέσω φρέατος (με ξύλινα στοιχεία αντώσεως στο εσωτερικό του) θα ήταν δυνατόν να φθάσει χωρίς κανένα κίνδυνο έως τον βράχο, ακριβώς μέσα από το τείχος. Ο κυριότερος σκοπός μιας τέτοιας ανασκαφής θα ήταν η χρονολόγηση του κάτω μέρους του τείχους, ενώ ένα άλλο σχεδόν βέβαιο αποτέλεσμα θα είναι η αθρόα συλλογή και άλλων σπουδαίων θραυσμάτων των ευρισκόμενων στο μουσείο γλυπτών.
Αλλά σπουδαιότερο πάντων θα ήταν να συλλέγουν από το ύπαιθρο, να ταξινομηθούν μέσα σε μεγάλη μουσειακή αποθήκη και να συντηρηθούν χιλιάδες λίθων και θραυσμάτων του αρχαίου νεώ, του «κτηρίου Η», του Προπαρθενώνος και των άλλων κτηρίων, ώστε να παύσει η καθημερινή φθορά των και να γίνουν δυνατές μελέτες ανταποκρινόμενες πραγματικά στη σοβαρότητα του θέματος.
(ΜΑΝΩΛΗΣ ΚΟΡΡΕΣ
ΑΡΧΙΤΕΚΤΩΝ ΜΗΧΑΝΙΚΟΣ)
(ΜΑΝΩΛΗΣ ΚΟΡΡΕΣ
ΑΡΧΙΤΕΚΤΩΝ ΜΗΧΑΝΙΚΟΣ)
πηγη http://greekworldhistory.blogspot.com/
Επισκεφτείτε την ιστοσελίδα μας http://www.tapantareinews.gr, για περισσότερη ενημέρωση. ⭐Εγγραφείτε - SUBSCRIBE: http://bit.ly/2lX5gsJ Website —►http://bit.ly/2lXX2k7 SOCIAL - Follow us...: Facebook...► http://bit.ly/2kjlkot






































-+'Parthenon+from+the+Propylea.jpg)


















































































































Δημοσίευση σχολίου
Αφήστε το σχόλιό σας ή κάνετε την αρχή σε μία συζήτηση
Σημείωση: Μόνο ένα μέλος αυτού του ιστολογίου μπορεί να αναρτήσει σχόλιο.